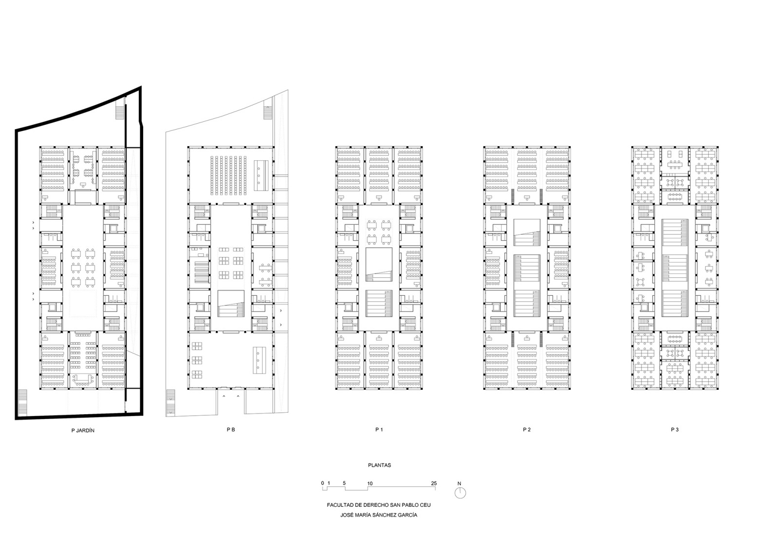
El edificio desarrollado por José María Sánchez se articula en torno a un gran vacío central en forma de atrio, que conecta tanto visualmente como físicamente todos los niveles. Este espacio se organiza mediante gradas de madera que generan múltiples situaciones de uso, favoreciendo la interacción espontánea. El programa se distribuye de manera clara: las áreas públicas en planta baja, las aulas en las plantas intermedias y los espacios docentes en la planta superior, todo ello vinculado mediante una serie de núcleos verticales y recorridos perimetrales, que refuerzan la relación entre los usuarios.
Para su ejecución, el sistema constructivo empleado combina una estructura reticular de hormigón ejecutada in situ con elementos prefabricados de madera contralaminada (CLT). Esta solución mixta permite optimizar los tiempos mediante procesos industrializados y el trabajo simultáneo en obra y taller. A su vez, la incorporación de vigas vierendeel posibilita la liberación de grandes luces, obteniendo como resultado espacios más flexibles. A nivel ambiental, el edificio se apoya en la ventilación natural a través del atrio y sistemas verticales, evitando falsos techos y dejando las instalaciones expuestas como parte del lenguaje arquitectónico.
En conjunto, el edificio para la Facultad de Derecho CEU San Pablo se presenta como un gran contenedor que articula en su interior la precisión de los elementos estructurales, la fluidez de las pasarelas y la presencia de espacios de apoyo concebidos para estimular el encuentro y la interacción de toda la comunidad educativa.

Facultad de Derecho CEU San Pablo por José María Sánchez Arquitectos. Fotografía por Roland Halbe.
Descripción del proyecto por José María Sánchez García
«Si algo describe la planta es la naturaleza de las relaciones humanas, pues los elementos cuyo trazo registra –paredes, puertas, ventanas y escaleras- se emplean primero para dividir y, más tarde, para reunir selectivamente el espacio habitado. Pero lo que generalmente está ausente, incluso en el edificio ilustrado con el mayor detalle, es cómo ocuparán las figuras humanas dicho espacio».
Robin Evans, Figuras, puertas y pasillos.
El proyecto para la nueva Facultad de Derecho San Pablo CEU tiene como principal aspiración reflexionar sobre las relaciones humanas y cómo estas definen un espacio común. Los espacios de circulación y relación son revisados, convirtiéndose en lugares de oportunidad.
El proyecto se configura a partir de un volumen compacto, organizado en torno a un patio inglés perimetral, el cual articula el programa docente y permite garantizar la correcta iluminación y ventilación natural de todos los espacios. De este modo, la estrategia de implantación del edificio parte del vaciado del solar para generar una nueva planta de jardín, rodeada de un espacio de estancia al aire libre. Esta operación define el acceso principal al edificio, que se produce a través de una pasarela sobre el patio que conecta la calle Julián Romea con la planta baja.
Un gran vacío central conecta las distintas plantas a través de una serie de gradas de madera contralaminada. De este modo, una concatenación de espacios estanciales, sobre la grada y bajo la grada, permite la relación espontánea de los usuarios. El atrio hace de gran intercambiador térmico permitiendo una renovación natural de aire; los exutorios en cubierta permiten una ventilación natural durante los meses de primavera y verano.
El programa se articula mediante cuatro núcleos de comunicación vertical y una serie de pasillos en torno al atrio. En la planta baja se sitúan los espacios más públicos: en las plantas jardín, primera y segunda se organizan todas las aulas, y en la última planta se ubican las áreas destinadas al profesorado y los despachos docentes.
Constructivamente, el proyecto se resuelve mediante un sistema mixto, compuesto por una estructura reticular de hormigón ejecutada in situ y una serie de elementos prefabricados de madera contralaminada CLT -gradas y paneles verticales- que configuran el interior del edificio.
La industrialización del proceso permitió trabajar de manera paralela en obra y en taller, acortando los plazos de ejecución. Esta dualidad, se manifiesta también en fachada, donde las carpinterías exteriores de madera se ensamblan a la estructura. El orden de la trama estructural se altera puntualmente con la introducción de una serie de vigas vierendeel de sección mixta, situadas en plantas alternas, que permiten liberar de pilares espacios más diáfanos en los cuales se ubican el aula magna, el vestíbulo de acceso y las aulas con tabiquería móvil.
Además de la gran chimenea energética, que conforma el atrio central, se incorporan una serie de elementos verticales que albergan ventilación y aporte de aire para las aulas, evitando conductos horizontales y la aparición de falsos techos, siendo vistas las instalaciones y paneles acústicos.