La propuesta desarrollada por LYT-X Studio se presenta como un ejemplo de reutilización y regeneración del patrimonio industrial costero desprovisto de su función original. Para ampliar su alcance hacia la comunidad local y el turismo internacional, la extensa cubierta alberga una secuencia de espacios públicos, semiabiertos y continuos, que conducen de manera gradual hacia el acceso del nuevo museo.
En sintonía con criterios de sostenibilidad, el proyecto introduce una serie de aberturas estratégicamente dispuestas que garantizan la ventilación natural y optimizan la eficiencia energética. De manera complementaria, la incorporación de paneles solares, vegetación en la cubierta y patios ajardinados contribuye a regular el microclima y a fomentar la biodiversidad.
Concebido como un nuevo emblema de la ciudad de Le Havre, el proyecto aborda con responsabilidad las demandas contemporáneas de uso, transformando la estructura del Brise-Vent en un referente cultural que conecta respetuosamente pasado y futuro.

La cubierta curva extendida forma un borde público continuo sobre el muelle frente al mar y los espacios de reunión al aire libre. Museo Brise-Vent del Puerto de Havre por LYT-X Studio. Visualización por LYT-X Studio.
Descripción del proyecto por LYT-X Studio
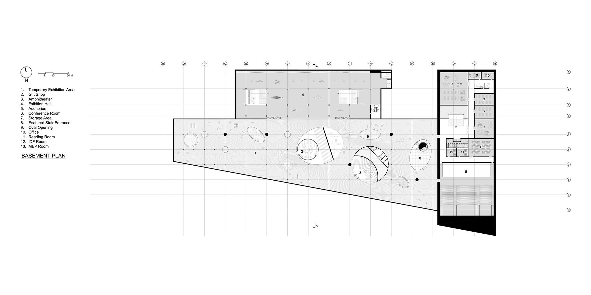
El Museo Brise-Vent del Puerto de Havre revitaliza una estructura portuaria en desuso y la convierte en una institución cultural contemporánea, restableciendo el patrimonio marítimo como un componente activo de la vida pública, en lugar de un simple artefacto preservado. El proyecto se enmarca en una investigación más amplia sobre cómo el patrimonio industrial costero puede reutilizarse de forma adaptativa para promover la continuidad cultural, la regeneración urbana y la sostenibilidad a largo plazo.
Concepto de proyecto
El diseño preserva el edificio portuario original como la capa histórica principal, a la vez que introduce una intervención arquitectónica contemporánea que extiende la cubierta curva existente hasta convertirla en una marquesina continua. Este enfoque conserva la icónica línea de la cubierta del edificio como un elemento reconocible de su pasado industrial, a la vez que la reinterpreta como un marco espacial activo que media entre la tierra, el agua y el uso público. En lugar de servir como un gesto puramente simbólico, la marquesina extendida organiza la circulación, enmarca los espacios públicos de reunión y proporciona protección ambiental, estableciendo un diálogo claro y funcional entre el tejido histórico y su contexto marítimo.
Cubierta Extendida
Bajo la cubierta extendida, se despliega una secuencia de espacios semiabiertos, incluyendo un patio público protegido y un nuevo muelle frente al mar. Esta configuración permite un acceso multimodal al museo, permitiendo a los visitantes llegar a pie, por la circulación urbana o directamente desde el agua. Al reintroducir la llegada por agua, el proyecto reactiva la zona portuaria y reposiciona el museo como un centro urbano conectado, en lugar de un destino aislado.
Espacio de Exposición Flexible
En su interior, el museo alberga espacios de exposición flexibles, plataformas sociales y terrazas panorámicas con vistas al puerto. Estos espacios albergan exposiciones, formación, espectáculos y eventos culturales informales, lo que permite que el programa se adapte con el tiempo. La organización arquitectónica enfatiza la apertura y la permeabilidad, asegurando que la actividad cultural se extienda más allá de las galerías cerradas hacia entornos públicos compartidos.
Patio Público
En el centro del proyecto se encuentra un patio de acceso público las 24 horas, concebido como un foro cívico abierto que permanece activo más allá del horario de apertura del museo. Este espacio público continuo fomenta el uso cotidiano, las reuniones informales y la interacción social, integrando el patrimonio cultural en la vida cotidiana. Mediante esta estrategia, el patrimonio se transforma de un objeto protegido a un nodo urbano vivo, que apoya tanto la memoria colectiva como el intercambio social contemporáneo.
Sostenibilidad
La sostenibilidad se integra como una estrategia espacial y de ciclo de vida, más que como una superposición técnica. La reutilización adaptativa reduce significativamente el carbono incorporado al conservar la estructura existente, mientras que la cubierta extendida proporciona sombreado pasivo y facilita la ventilación cruzada impulsada por las brisas marinas predominantes. Las aberturas del patio y la cubierta permiten la entrada de luz natural en los espacios de exposición interiores y de las plantas inferiores, reduciendo la dependencia de la iluminación artificial. La vegetación estacional modera aún más las condiciones microclimáticas, garantizando la usabilidad a largo plazo del espacio público.
Al combinar una intervención mínima y reversible con el acceso público continuo, el proyecto Brise-Vent demuestra cómo el patrimonio industrial costero puede transformarse en una infraestructura cultural resiliente. El proyecto ofrece un modelo repetible para integrar la preservación del patrimonio, el espacio público, la movilidad urbana y el desempeño ambiental, contribuyendo al discurso actual sobre la reutilización adaptativa y la arquitectura cultural a escala urbana y disciplinaria.