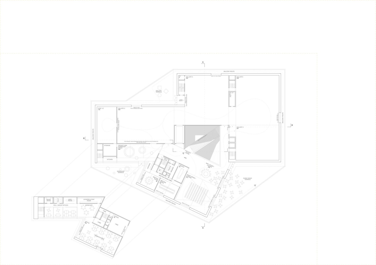
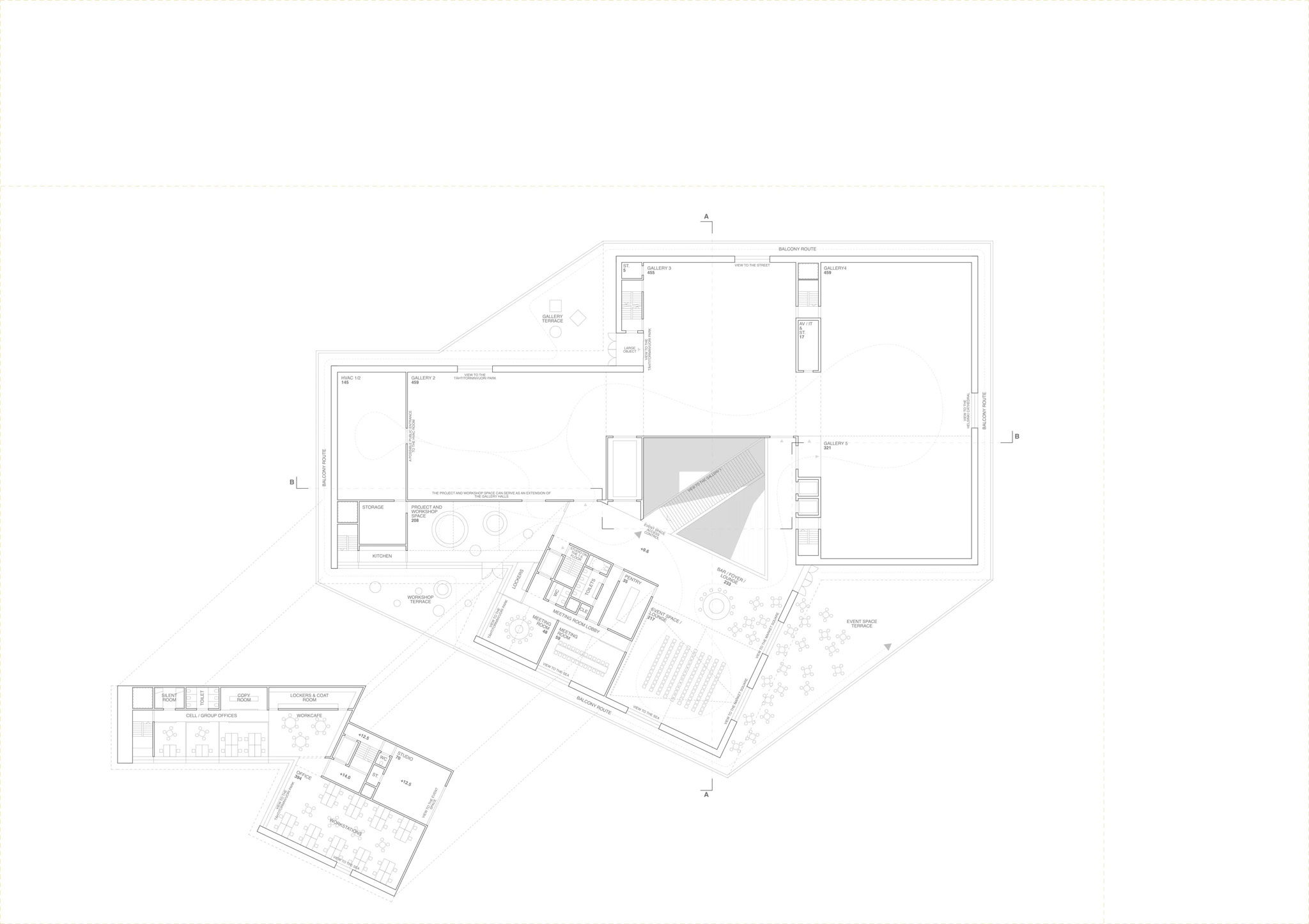
El proyecto ganador de JKMM Architects, propone un nuevo edificio museístico de 10.072 m² y crea un nuevo punto de referencia reconocible. Su fachada de ladrillo reciclado, la terraza circundante y su forma escultural aportan calidez y una fuerte conexión con la ciudad. Un museo emblemático frente al mar que mostrará la singular cultura arquitectónica y de diseño de Finlandia a nivel mundial.
«El jurado tomó una decisión unánime en el concurso anónimo», afirma Mikko Aho, presidente del jurado. «Kumma se integra con el paisaje urbano, protegiendo las valiosas vistas del histórico paseo marítimo, a la vez que se erige como un punto de referencia reconocible. El uso de ladrillo reciclado en la fachada aporta una calidez arquitectónica y escultural, y la terraza que rodea el edificio refuerza la conexión con la ciudad. La propuesta ganadora, que se percibe como monumental y angular, se desarrollará de una manera más accesible. Tanto nosotros como el equipo de diseño compartimos la opinión de que las soluciones climáticamente inteligentes son la clave para un futuro desarrollo».

Nuevo Museo de Arquitectura y Diseño de Helsinki. Proyecto ganador: Kumma, por JKMM Architects. Visualización por MIR y JKMM Architects.
JKMM Architects es uno de los estudios de arquitectura más importantes de Finlandia, responsable de proyectos célebres como el Museo de Arte Amos Rex de Helsinki, el Estadio Tammela de Tampere, la Universidad de las Artes de Helsinki, la Casa de la Danza de Helsinki y la contribución de Finlandia a la Expo 2020 de Dubái. El estudio trabaja actualmente en un anexo al Museo Nacional de Finlandia, también en Helsinki, cuya inauguración está prevista para 2027, y en un anexo al Museo de Arte de Lillehammer en Noruega.
«Espero que el desarrollo y la realización del nuevo Museo de Arquitectura y Diseño muestren el camino para construir cosas nuevas con responsabilidad y habilidad. La arquitectura y el diseño son profundamente humanos: nacen de los sueños y anhelos, y cobran sentido en los lugares donde podemos experimentar y convivir».
Samuli Miettinen, socio fundador de JKMM.

Nuevo Museo de Arquitectura y Diseño de Helsinki. Proyecto ganador: Kumma, por JKMM Architects. Visualización por MIR y JKMM Architects.
La propuesta ganadora de JKMM Architects recibió un premio de 60.000 €. Un segundo premio, de 35.000 €, fue otorgado a la propuesta «Ciudad, Mar y Cielo» de Cossement Cardoso, estudio de arquitectura fundado por Charles Cossement y Gil Cardoso, con sede en Portugal y Bélgica. El tercer premio, con 25.000 €, fue otorgado a Lopes Brenna, estudio de arquitectura con sede en Chiasso (Suiza), por su propuesta «Moby».