Con un presupuesto limitado, la respuesta proyectada por HW Studio, aunque estuvo condicionada económicamente, estuvo realmente influida por su camino hacia el Zen, el Dharma y Japón. Vista desde fuera, tan solo una sencilla caja, silenciosa y cerrada.
Sin embargo, al cruzar el umbral, la construcción no encierra, sino que contiene; no es hermética, sino que protege espacios delicados como un jardín de piedra. La casa es una secuencia de percepciones, de tránsitos delicados, en los que el jardín se convierte en el centro alrededor del cual todo se ordena y se vincula con la naturaleza, eludiendo los espacios sirvientes. Todos son espacios protagonistas, con separaciones que, en realidad, son solo filtros de luz, de sombra, de espacio.
El dormitorio se sitúa en la planta superior y las vistas son encuadres de la naturaleza desde la casa. El conjunto resultante es una casa para vivirla y no como escenografía expositiva.

Casa Kehai por HW Studio. Fotografía por Cesar Bejar.
Descripción del proyecto por HW Studio
La Casa del Arquitecto
Los japoneses creen que el alma de una casa no reside en sus paredes ni en su cubierta, sino en el vacío que contiene. «El vacío es absolutamente poderoso porque puede contenerlo todo», escribió Kakuzo Okakura. Nos permite respirar, movernos, pensar, vivir. Esa fue, desde el principio, la idea más profunda de esta casa: que su centro no fuera un objeto, sino un presente vacío.
Esta es mi casa. La casa del arquitecto —aquel acostumbrado a dar forma a los sueños ajenos— se enfrenta aquí a una pregunta mucho más cruda: ¿cómo construir una vida coherente con las palabras pronunciadas durante años?
Con un presupuesto limitado, las decisiones fueron menos estéticas que vitales. Cada moneda debía hablar con claridad; cada centímetro debía tener sentido. Pero más allá de las limitaciones económicas, fue mi largo y lento camino hacia el Zen, hacia el Dharma y hacia Japón, lo que realmente la moldeó.
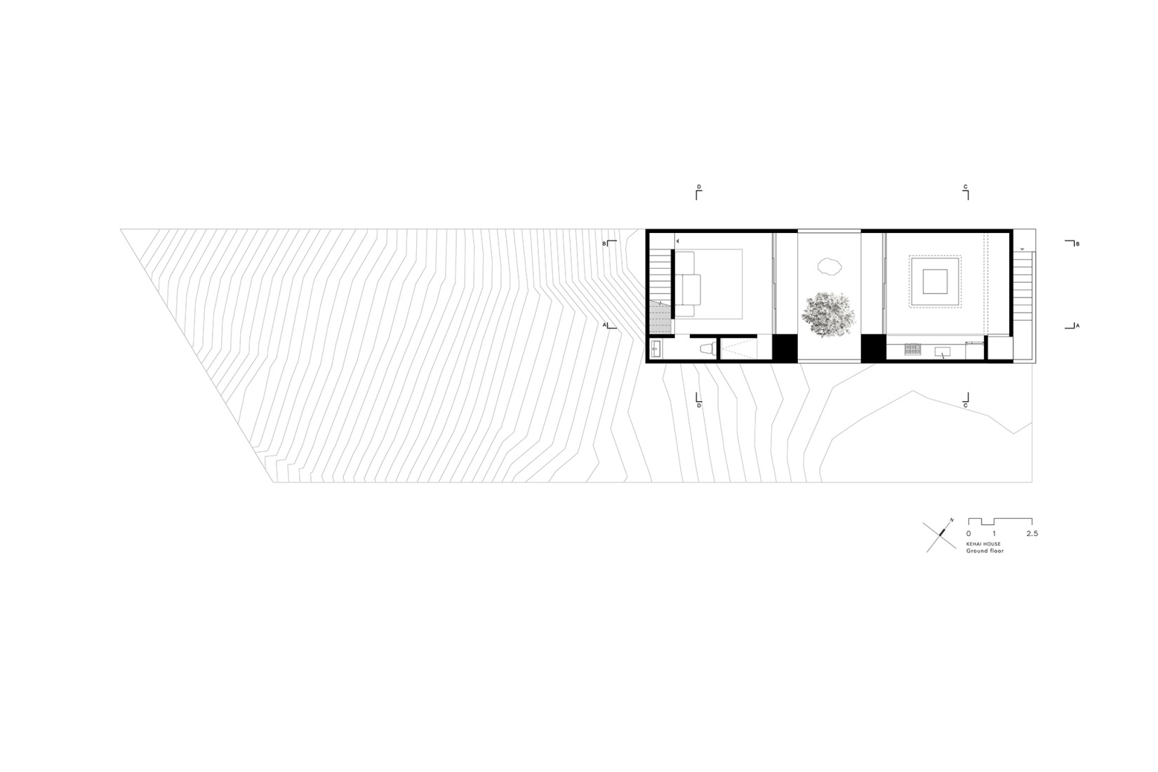
Desde fuera, la casa parece una simple caja, como las que he construido a lo largo de mi carrera. Silenciosa. Cerrada. Como una piedra en el paisaje urbano. Sin embargo, al cruzar el umbral, uno comprende que esta caja no encierra, sino que contiene. Lo que parece hermético en realidad protege algo delicado: un jardín de piedra que permanece intacto, pero que lo impregna todo.
Como en los templos de Kioto, las piedras están cuidadosamente dispuestas, no para representar algo, sino para evocar una sensación, quizás incluso un sentimiento. Sobre este lecho de grava gris flotan dos plataformas de madera, como en aquel templo. No son suelo: son pausas. Espacios para detenerse, para observar, para simplemente ser. El jardín no decora: organiza. Es el corazón alrededor del cual los espacios se ordenan como satélites que orbitan la quietud.
A un lado, la cocina y el comedor, de doble altura. Sobre ella, un volumen que recoge el humo del fuego, evocando no solo nostalgia, sino también la posibilidad real de que, algún día, la ciudad ya no nos proporcione lo que necesitamos. Al otro lado, la sala de estar: un espacio para la contemplación, donde grandes piedras reposan como islas en un mar en calma. No hay pasillo cubierto entre ambos espacios. Para ir de la sala de estar al comedor —si llueve— uno se moja… o espera a que deje de llover. La arquitectura aquí no protege del mundo: te reconcilia con él.
Las puertas shōji, hechas de papel de arroz, no son una concesión estética. Son el verdadero filtro entre el interior y el exterior. La luz, al atravesarlas, se suaviza hasta convertirse en tiempo. El día no entra apresuradamente, sino que se reposa. La sombra no es la ausencia de luz, sino su forma más delicada.
Finalmente, el dormitorio, situado arriba, es un espacio minimalista e íntimo. Una única ventana circular se abre al follaje de un árbol plantado en el centro del jardín. Es una mirada que contempla.
El programa es austero. No hay pasillos innecesarios ni gestos grandilocuentes. La casa está casi completamente desprovista de vidrio. Solo tres pequeñas ventanas se abren a lo que realmente vale la pena ver: una montaña, un pino vecino, el árbol que crece en el centro. Todo lo demás está contenido, orientado hacia adentro, como una caja de resonancia que guarda su propia música en secreto.
La entrada, en lugar de ascender, desciende. Se entra bajando, como quien se inclina ante algo sagrado. La escalera llega al lugar donde la piedra ofrecía estabilidad, evitando costos innecesarios en los cimientos. Pero también es un gesto espiritual: para habitar esta casa, hay que dejar cierto orgullo en la puerta y entrar con humildad, como quien atraviesa el torii de un santuario invisible.
En Japón, lo que se valora es lo imperfecto, lo incompleto, lo efímero. La belleza no reside en lo que brilla eternamente, sino en lo que está a punto de desaparecer. Esta casa no fue construida para impresionar. Fue construida para perdurar en silencio. soportar el ligero peso de una vida honesta.