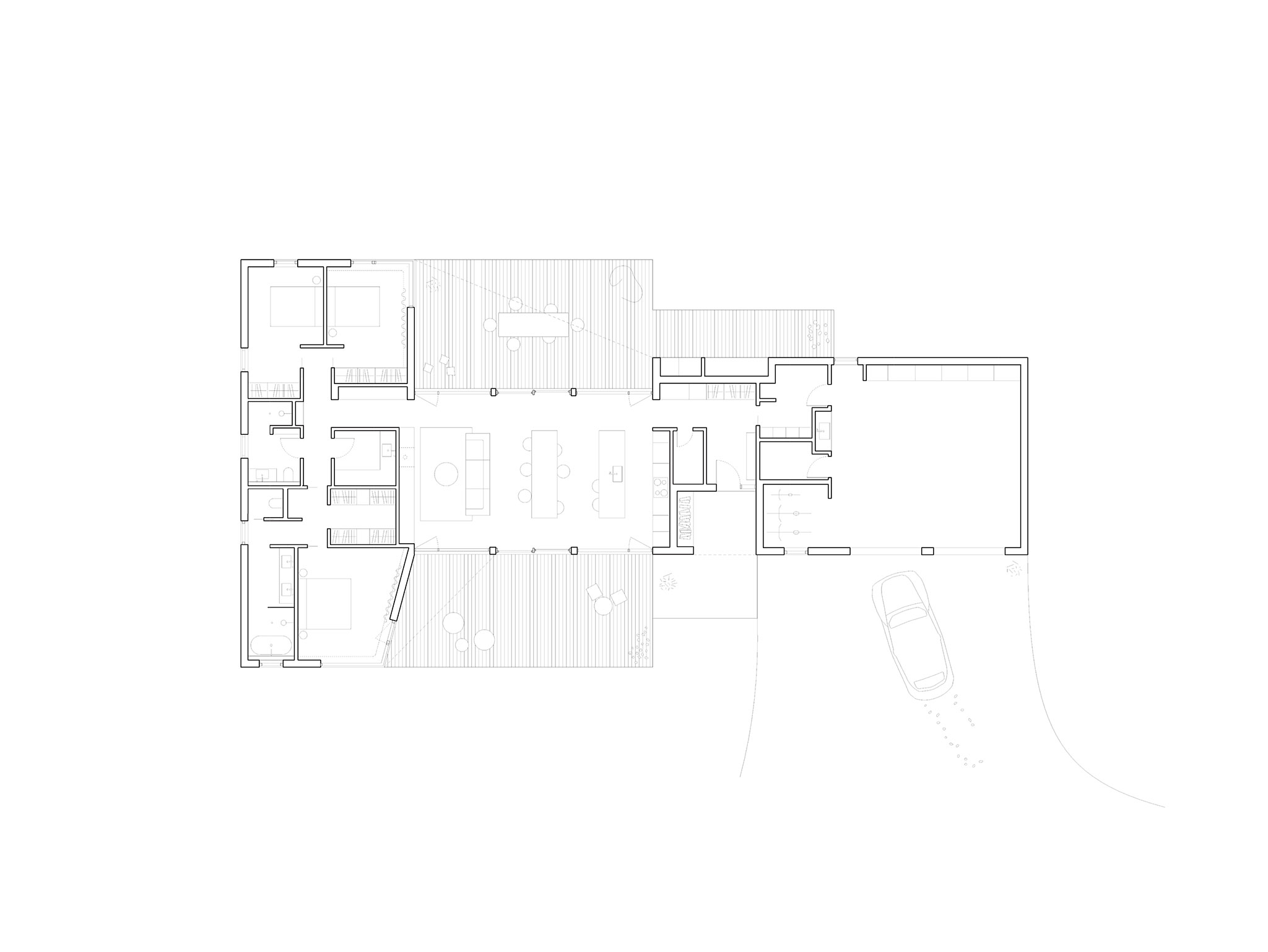
«Le Fenil» proyectada por _naturehumaine sobre un un eje norte-sur en el corazón del campo, está conformada por un volumen horizontal y una cubierta escultórica y angular que corona toda la planta baja, con una abertura central en el núcleo de los espacios habitables que permite que la luz natural atraviese la vivienda.
Para la estructura se optó por el uso de madera prefabricada para un montaje óptimo. En cuanto a la materialidad, el nivel superior de la vivienda fue revestido de cedro gris horizontal, mientras que para el volumen superior tipo loft, se utilizó un revestimiento vertical rematado con un techo metálico. En el interior, el espacio que integra la cocina, el comedor y la sala, se encuentra coronado por un techo de listones de pino claro, y se utilizaron colores sobrios, suelos de hormigón pulido y muebles integrados de roble blanco.

«Le Fenil» por _naturehumaine. Fotografía por Raphaël Thibodeau.
Descripción del proyecto por _naturehumaine
En busca de un refugio tranquilo lejos del ritmo de la vida urbana, una pareja decidió construir su hogar en el campo, sin renunciar a las bondades de la vida al aire libre. Descubrieron una parcela de diez acres en el municipio de Hatley, en la región de los Cantones del Este de Quebec, antiguamente cultivada para la producción de cereales para el ganado. Allí, imaginaron una residencia de una sola planta que se convertiría en su santuario principal. Decididos a preservar el patrimonio agrícola de la tierra, optaron por una mínima huella ecológica, honrando su propósito original y garantizando la vitalidad de la propiedad a largo plazo.
Le Fenil toma su nombre del pajar, típico de la parte superior de un granero, suspendido sobre el ganado. Elevado sobre su base e integrado en la estructura del techo, este espacio permite que el heno se seque de forma natural. Esta noción arquitectónica de superposición —yuxtaposición de función y forma— se convirtió en el principio rector de la casa. Le Fenil une dos elementos contrastantes: un volumen horizontal y sólido para la vida cotidiana, y un techo más escultórico y angular que corona toda la planta baja. La estructura de madera de la casa fue prefabricada, lo que permitió una precisión de montaje óptima y una reducción del tiempo de construcción en obra.
La interacción entre estos dos volúmenes se acentúa mediante la materialidad: el nivel superior de la vivienda está revestido de cedro gris horizontal, mientras que el volumen superior, tipo loft, presenta un revestimiento vertical rematado con un elegante techo metálico. Las proyecciones triangulares del techo crean terrazas exteriores protegidas que flanquean el espacio central de la vivienda, reforzando la sensación de capas y evocando los sutiles tonos del trigo dorado y los graneros tradicionales de los pueblos circundantes.
Ubicada en un eje norte-sur en el corazón del campo, Le Fenil se abre a vistas panorámicas de colinas onduladas por un lado y a una abundante luz natural por el otro. Una abertura central en el núcleo de los espacios habitables permite que la luz y las perspectivas atraviesen la casa, fomentando un diálogo fluido entre el interior y el exterior. Las fachadas norte y sur, más opacas, brindan privacidad respecto a la carretera y las propiedades vecinas, a la vez que mantienen una sensación de amplitud y serenidad.
El corazón de la casa —un amplio espacio diáfano que integra cocina, comedor y salón— está coronado por un alto techo de listones de pino claro y se abre generosamente al paisaje a través de grandes puertas de cristal. En el interior, una sobria paleta de colores, con suelos de hormigón pulido y muebles integrados de roble blanco, garantiza que la atención se centre en las vistas. La distribución en forma de T crea acogedores rincones orientados hacia el campo, donde los espacios privados se resguardan de la luz solar directa sin renunciar a unas vistas armoniosas y cuidadosamente enmarcadas. El resultado es una casa que equilibra privacidad y amplitud, tranquilidad y circulación, conectando a sus habitantes con el ritmo del paisaje y la apacible fluidez de la vida cotidiana.