Alineado con los principales requisitos de la categoría 4 de la UEFA, el nuevo Estadio Tammela, proyectado por JKMM Architects, podrá ser utilizado tanto para partidos de la UEFA Europa League como para partidos de selecciones nacionales. La capacidad total es de 8.000 asientos, que puede aumentar en eventos, como la celebración de conciertos, hasta los 15.000 espectadores.
El antiguo estadio Tammela fue uno de los primeros espacios deportivos de Finlandia proyectados exclusivamente para el fútbol y ha funcionado como tal desde inicios de la década de 1930. Tras el lanzamiento de un concurso por invitación en 2014, el Ayuntamiento de Tampere buscó una propuesta que respondiese a las necesidades del fútbol contemporáneo y densificara la zona del emplazamiento original.
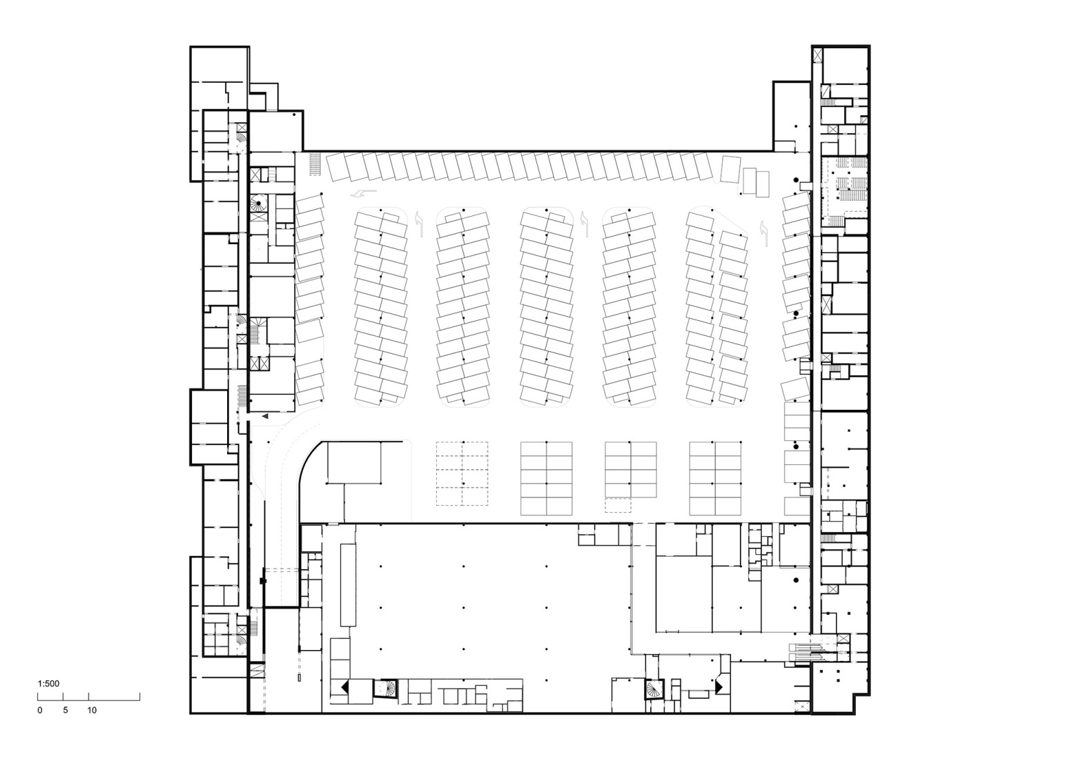
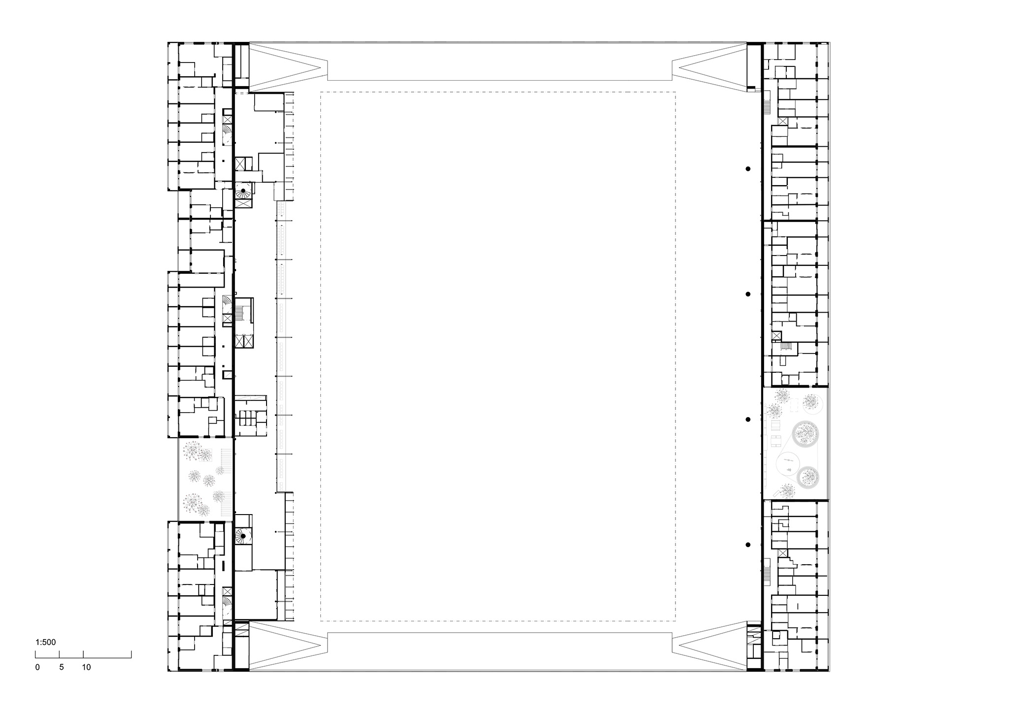
«Hattutemppu» (en español, tres tantos) —la propuesta ganadora— fue concebida como un edificio híbrido, en el que las tipologías y las estructuras se entrelazan. Lejos de limitarse a responder únicamente a demandas programáticas propias del mundo futbolístico, el proyecto forma un bloque polivalente de casi 50.000 m², compuesto por el estadio de fútbol, cinco edificios residenciales, un centro comercial y una serie de aparcamientos. Como una ciudad en miniatura, el Estadio Tammela acoge múltiples funciones que se integran proporcionadamente en la densa estructura urbana de la ciudad.

Estadio Tammela por JKMM Architects. Fotografía por Tuomas Uusheimo.
Descripción del proyecto por JKMM Architects
Concepto híbrido en términos futbolísticos
El antiguo estadio Tammela ha servido como campo de fútbol desde principios de la década de 1930 y es uno de los primeros recintos deportivos de Finlandia construidos específicamente para este deporte. El Ayuntamiento de Tampere quería preservar el estadio en su ubicación tradicional a pesar de la necesidad de densificar la zona.
Se buscó una solución mediante un concurso por invitación celebrado en 2014. La propuesta de JKMM, «Hattutemppu» (en español, tres tantos), ganó el concurso al abordar creativamente los desafíos de diseño urbano, arquitectónico, estructural y de tráfico dentro de la compacta estructura de bloques, respetando al mismo tiempo el carácter y la escala de la zona.
En el edificio híbrido, las tipologías y las estructuras se entrelazan. Los edificios residenciales revestidos de ladrillo se abren a un espacio de calle activo que da a los laterales del estadio. Sus patios se elevan hasta la cota de la azotea entre las masas. En el compacto campo de fútbol, las gradas se elevan inmediatamente desde los bordes del terreno. Las entradas acristaladas del estadio protegen el campo del viento, a la vez que mantienen la conectividad espacial con el entorno.
El techo arqueado que cubre la manzana de este a oeste es el rasgo más distintivo del monumento. La forma del estadio evoca la estructura de las marquesinas de acero suspendidas, extendiéndose hasta las azoteas de los edificios residenciales, integrando la manzana con su entorno y señalando la naturaleza del edificio público. El punto más bajo del arco se sitúa a lo largo del eje longitudinal del campo, garantizando que la marquesina no proyecte sombra sobre el campo ni sobre el patio norte del colegio.
Estrategia para una ciudad más sostenible
Tampere es la zona urbana más atractiva de Finlandia. La densificación sostenible y de alta calidad del centro de la ciudad refuerza aún más la vitalidad y la estructura de servicios de la ciudad. No se demolieron edificios en el emplazamiento del estadio; en su lugar, se reutilizaron las antiguas gradas, el alumbrado y las estructuras del campo en otros campos de la ciudad. La céntrica ubicación del estadio se basa en la infraestructura existente y es accesible en transporte público. El club de fútbol local Ilves Tampere es responsable de la operación del Estadio Tammela.
La versatilidad del estadio reduce sus tiempos de uso, ofreciendo servicios a una amplia gama de usuarios. El bloque está conectado a una eficiente red urbana de calefacción y refrigeración. La optimización de las estructuras fue un punto de partida clave en su diseño. La superficie clara de la cubierta limpia los contaminantes del aire urbano y refleja la luz, refrescando los espacios inferiores.
El estadio híbrido lleva la vibrante cultura futbolística al corazón de la ciudad, con espectadores que llegan desde diferentes direcciones. El estadio complementa la zona de la cuadrícula de Tammela. Los espacios comerciales en planta baja complementan los servicios de la zona. Todo el desarrollo espera que los habitantes de la ciudad lo adopten.
Funciones y arquitectura de una ciudad en miniatura
El Estadio Tammela se asemeja a una ciudad en miniatura, con múltiples funciones. Se integra a la perfección con la red de manzanas de la ciudad. Los edificios residenciales dan a las calles con parque y a las plazas sur y norte del estadio, por donde los espectadores acceden a las esquinas de la manzana. Los aficionados del equipo visitante tienen su propia entrada en la esquina noreste de la manzana. Las entradas para jugadores, espectadores VIP, árbitros y prensa se encuentran en el lado oeste de la manzana.
El aparcamiento, el centro comercial, su mantenimiento y las instalaciones de apoyo residencial se encuentran en el sótano, con acceso desde el lado sur. La concentración de edificios residenciales ofrece una variada selección de apartamentos. Las plantas superiores ofrecen vistas panorámicas, e incluso los apartamentos más grandes tienen vistas al campo.
Las entradas al estadio se encuentran bajo las gradas laterales, y el mantenimiento del campo se encuentra en la esquina noroeste de la manzana. A nivel de calle, los espacios públicos del estadio rodean el campo por tres de sus lados, con espacios adicionales en todos los lados en el segundo nivel. La tribuna principal se sitúa en el extremo este del campo, mientras que el restaurante, las tribunas VIP y de prensa se encuentran en el extremo oeste. Durante la fase de diseño, se añadieron asientos adicionales para espectadores sobre la tribuna principal, lo que permitió al estadio cumplir con los requisitos de la categoría 4 de la UEFA.
La iluminación del edificio realza la intensidad de los eventos. El diseño busca crear experiencias. Los artistas Tommi Grönlund y Petteri Nisunen han creado una instalación de arte lumínico llamada «Puolenvaihto» (descanso en inglés) en la parte inferior de las marquesinas. La forma gráfica de la luz en movimiento evoca la energía y el movimiento del fútbol.
Estructuras y materiales
Tectónica
La arquitectura del proyecto es de naturaleza tectónica, marcada por la forma estructural y la articulación de las juntas. La arquitectura imprime significado a la estructura, y la estructura da forma a la arquitectura, articulando sus detalles. La estructura tiene un propósito y cumple su función. Las gradas no tienen columnas, y las juntas de las marquesinas de los extremos permiten el movimiento. De cerca, los detalles de la estructura son imponentes, incluso toscos. De lejos, forman líneas ligeras, casi poéticas. La colaboración entre el ingeniero estructural, el arquitecto y el constructor ha sido crucial para resolver los desafíos desde el inicio del proyecto.
Pilares
Los pilares son principalmente columnas compuestas de acero, estructuras de muros y losas de hormigón armado hormigonadas in situ. Cada esquina del estadio cuenta con un pilar inclinado con una base de hormigón armado y un pilar de acero prefabricado de dos secciones en la parte superior. La parte superior está rodeada por un collar de acero soldado al pilar de acero instalado in situ. Los pilares de acero soportan las cargas de compresión de las marquesinas de los extremos y las transfieren a través del sótano hasta los cimientos. Esta configuración evita las tensiones de carga en los edificios residenciales, garantizando que su renovación y vida útil sean independientes del estadio.
Vigas
Las vigas incluyen vigas WQ en el lado de la tribuna del restaurante, vigas de hormigón armado en la tribuna inferior de la tribuna principal y vigas I soldadas en la tribuna del balcón. Las tribunas de los extremos se sustentan sobre estructuras de muro y losa de hormigón armado hormigonado in situ.
Forjados
Los forjados son principalmente losas alveolares y, en algunos casos, estructuras hormigonadas in situ. Las estructuras de soporte de las tribunas de los extremos son estructuras de losa de hormigón armado hormigonado in situ. Las estructuras del forjado de las tribunas son elementos de hormigón armado en forma de L.
Marquesinas de los extremos
Las marquesinas de los extremos presentan una estructura suspendida tipo puente sostenida por seis cables. Los cables están anclados en los extremos de la marquesina mediante estructuras de hormigón armado y estructuras de pilares inclinados. Los cables soportan las vigas de acero, que se fijan a los cables. Estas vigas actúan como rigidizadores de la cubierta, transfiriendo fuerzas entre elementos mediante juntas horizontales resistentes al corte. Estas permiten la flexión de la cubierta y el estiramiento de los cables.
Cerraduras de Cristal
Las estructuras verticales de acero de las cerchas de cristal se adaptan a las fuerzas mecánicas que actúan sobre ellas. El soporte de la cercha soporta la estructura de acero de la cercha de fachada mediante una junta que facilita el movimiento. La parte inferior de las cerchas, fijada a la losa de hormigón, está articulada para permitir el movimiento lateral en la parte superior. Esta estructura permite el movimiento vertical de la marquesina suspendida cuando la nieve afecta de forma desigual la cubierta.
Cubiertas Laterales
Las estructuras de la cubierta de las cerchas laterales se apoyan en pilones de acero. La estructura de acero de la cubierta se apoya en los pilones mediante conexiones directas y varillas de acero unidas entre el pilono y la cercha. Cada pilono se apoya en tres tensores anclados a la roca, colocados dentro de un tubo protector en el lado residencial.
Cubierta
Las láminas portantes se apoyan sobre vigas de acero, con juntas diseñadas para absorber los movimientos entre los elementos de las vigas. Sobre las láminas, la cubierta se construye con contrachapado de revestimiento y una membrana bituminosa de color claro que purifica los contaminantes del aire. Las marquesinas laterales y de los extremos están separadas por una junta de movimiento que absorbe los movimientos estructurales.
Materiales de la fachada
El perímetro exterior del bloque está revestido de ladrillo claro, con vidrio y placas de acero perforadas en los extremos. Las superficies de hormigón in situ de las entradas se extienden hacia el interior del estadio, delimitado por estructuras de acero. El césped artificial verde del campo sirve como escenario para partidos de fútbol, del tamaño de una abertura en la cubierta.