Conservando prácticamente intacto el graderío original, la intervención realizada por IDOM se resume en la incorporación de un plano horizontal continuo que vincula perimetralmente las diferntes zonas. Por encima de este bulevar de conexión, una estructura ligera y permeable alberga el programa de ampliación requerido.
Para su ejecución, la propuesta conserva la estructura de hormigón del estadio original, elevando sobre ella un segundo graderío en hormigón armado y una cubierta de estructura mixta de acero y madera. En línea con criterios de sostenibilidad, la propuesta aplica los principios de reducción, reutilización y reciclaje, la circularidad y la participación activa de la industria en el proyecto.

Proyecto de Modernización del Estadio de Universidad Católica por IDOM. Fotografía por Cristóbal Palma.
Descripción del proyecto por Borja Gómez y César Azcárate
Ubicación y concepto
El estadio San Carlos de Apoquindo (actualmente conocido como Claro Arena) fue inaugurado oficialmente el 4 de septiembre de 1988. Situado en la comuna de Las Condes, en Santiago de Chile, el estadio se ubica en la precordillera en un terreno en ligera pendiente hacia Santiago.
El estadio estaba parcialmente enterrado, con el acceso a cota en la banda oriente hacia la precordillera (denominado Fouilloux) y la banda opuesta orientada a poniente (denominada Livingstone) elevada sobre el terreno. A un lado queda la cordillera, con el cerro Provincia presidiendo las vistas y en el opuesto el Manquehue y la ciudad de Santiago.
Ante la necesidad de aumentar el aforo de 12.000 a 20.000 jugadores y vista la evolución del fútbol mundial desde la fecha de su inauguración, el club convoca un concurso para atender la modernización que era necesaria para responder a los retos del presente y futuro de la infraestructura.
El nuevo estadio debería responder tanto a los aspectos relacionados con las retransmisiones televisivas como la solución de los aspectos tecnológicos, sostenibles, de confort y hospitalidad propios del fútbol moderno. Asimismo, el enfoque del concurso ya anticipaba la aspiración de diseñar un edificio multipropósito de actividad permanente, evitando limitar el uso del edificio a dos eventos deportivos al mes.
Desde IDOM, diseñamos a tal efecto un estadio actual, de acuerdo con los más altos estándares del fútbol, concebido como un edificio racional, con una aproximación rigurosa al programa, la estructura y la sostenibilidad. El proyecto toma en consideración el sol, el viento, el consumo de energía y el confort interior y exterior. Cuenta con espacios para albergar actividades 7/365 y amplía la oferta de hospitalidad. Se trata de un edificio diseñado a medida del club, enraizado en su tradición e historia y construido desde la realidad material local que ofrece una auténtica atmósfera de fútbol fuera, a la vez visible desde el entorno y respetuoso con el mismo.
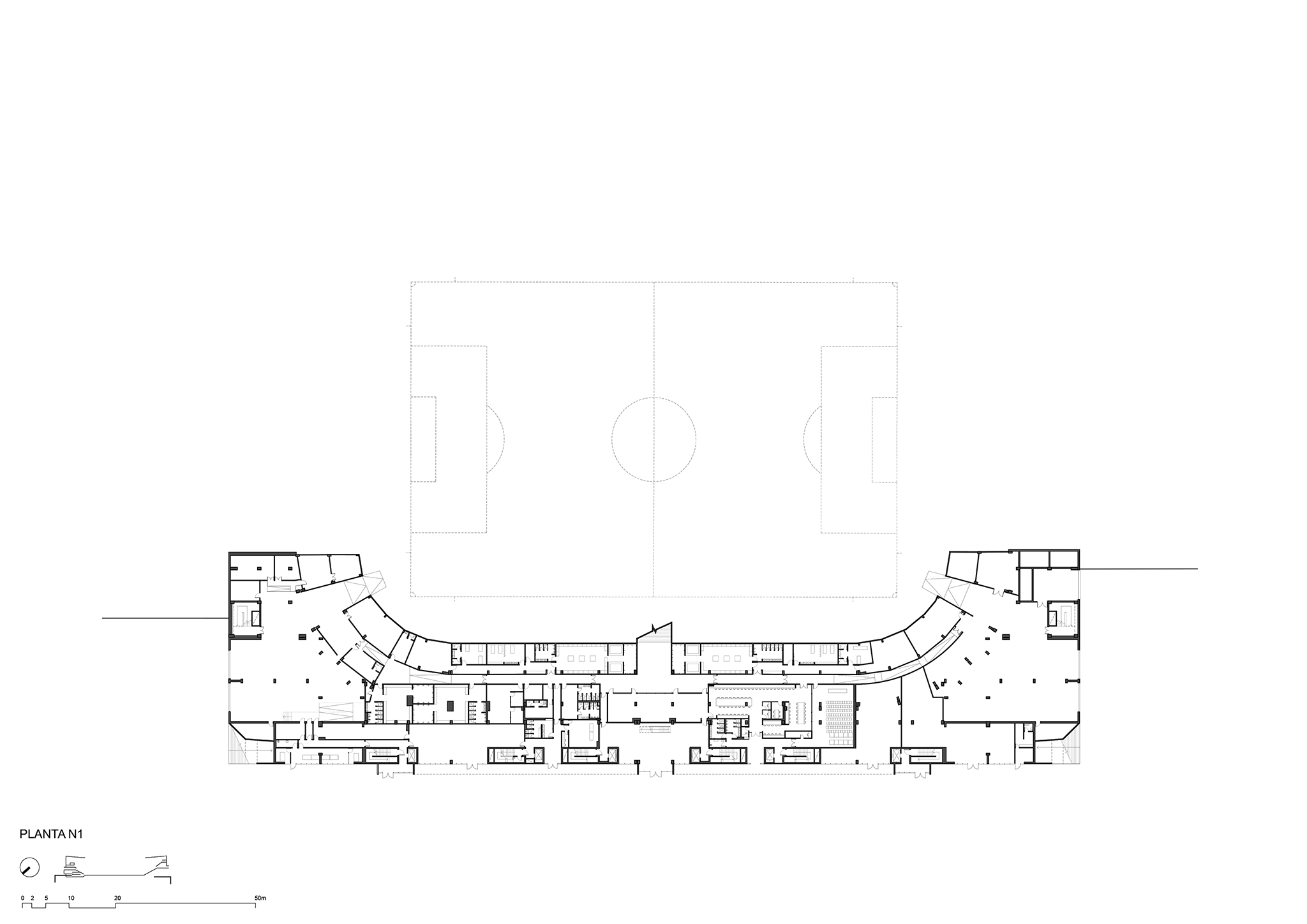
La sección expresa la operación. Manteniendo prácticamente intacto el graderío actual se establece un plano horizontal continuo que conecta bandas y fondos a la cota de acceso de Fouilloux (Un bulevar 360 grados). Bajo este bulevar queda el estadio antiguo, anclado a la tierra y sobre él se eleva con una estructura más ligera y permeable, la ampliación.
En planta optamos por la geometría más eficiente, la rectangular. Las esquinas en lugar de curvarse y perder la visual se transformaron en un evento único, marcando las entradas al edificio y dotando a los espectadores de un espacio diferencial.
Programa (función)
El graderío bajo del estadio original presentaba unas muy buenas visuales que con muy pocas modificaciones fue posible conservar prácticamente al 95%. En su cota superior se sitúa el bulevar 360 grados citado anteriormente. Sobre el bulevar se construyen las nuevas galerías que albergan en los fondos público general y en Fouilloux tanto público general como palcos.
En Livingstone, la ampliación ocurre tanto bajo la cota del bulevar, como sobre la misma. Bajo el bulevar y hacia Santiago el nuevo edificio albergará tanto los nuevos usos deportivos (camarines, salas de prensa, áreas de trabajo de la prensa), como espacios de hospitality (tercera banca) y hospitality premium (palcos vip y presidencial) como las zonas de televisión, radio y técnicas.
Además, la oferta de hospitality se completa con cuatro salas en las esquinas que unen la visual del paisaje con el evento deportivo. Estas salas multiusos pueden ser utilizadas alternativamente en tiempo de partido y de evento, estando conectadas por los forjados tras las graderías y abriendo la posibilidad de nuevas formas de uso de la infraestructura en eventos no de partido. La superficie del terreno de juego ha sido modificada situando su posición a la altura óptima para maximizar las visuales.
Estructura y cubierta
Se mantiene toda la estructura de hormigón del edificio original, y estando la misma sana, se toma la determinación de intervenir lo mínimo posible. Con ello, la ampliación del estadio debe crecer en torno al bowl existente.
Un esqueleto de vigas y pilares de hormigón y losas armadas de espesores en torno a los 18 centímetros completan la geometría del edificio en los fondos y las bandas con sus correspondientes juntas de dilatación. Las esquinas del edificio, también dilatadas, solucionan su cubierta con una estructura mixta hormigón acero invertida, optimizando el uso del acero en las zonas de tracción y dejando el hormigón visto al interior de las salas. La altura del edificio está condicionada normativamente y las alturas de las plantas están limitadas por las alturas del edificio original en Livingstone, muy ajustada en algunas zonas, siendo estas las condiciones de contorno necesarias a las que el edificio debe ceñirse.
Las condiciones sísmicas de Chile nos llevan a plantear una cubierta no muy pesada, con objeto de limitar una gran carga a tanta altura del suelo. Chile es un país rico en madera y estando la tecnología local desarrollada y gracias a una alianza estratégica entre el club y la maderera CMPC ha sido posible diseñar una estructura mixta madera acero.
El diseño de la estructura de cubierta, que pasa por múltiples etapas e iteraciones, concluye con la solución más eficiente. Se utiliza el tipo estructural adecuado para cada luz. En los fondos, vigas de madera laminada de alma llena cada 8 m, salvan luces de 17 m. En las bandas se diseña una estructura mixta madera-acero tridimensional con apoyos cada 8 m salvando luces de 27 m en Livingstone y 31m en Fouilloux.
A propuesta del ingeniero chileno Mario Wagner, esta estructura puede entenderse como el despliegue de dos cerchas planas que, tomando como eje el cordón inferior comprimido giran para abrirse en el cordón superior, reduciendo así la luz de las correas (costaneras) de madera de la cubierta. Los cordones inferiores de madera se resuelven con perfiles curvos de madera laminada, de tal manera que los esfuerzos se trasladan al pilar por compresión, minimizando la necesidad de acero en las placas de anclaje. Es necesario no obstante estabilizar las piezas en su posición. Sobre ello una chapa ligera y una impermeabilización de TPO completan el paquete de cubierta.
Envolvente y confort deportivo
Ya en el concurso se había planteado una solución de fachada que mejorara las condiciones ambientales del espacio interior-exterior del bowl. Siendo este un espacio no climatizado y abierto la fachada se diseña para: reducir el deslumbramiento en la tarde, controlar la emisión acústica y facilitar la ventilación.
Desde la cota del bulevar hasta la cubierta, la envolvente del edificio se diseña en madera de pino radiata chileno laminado, manteniendo un ritmo vertical cada metro con lamas de 500 mm x 90 mm que integran iluminación led. En función de la orientación y los requisitos técnicos de cada fachada el espacio entre lamas se completa adecuadamente (en las fachadas no soleadas queda abierto, en las fachadas soleadas se incorpora un bastidor de lamas de 250 mm x 60 mm orientado adecuadamente, y en la fachada donde se requiere protección acústica se incorpora un panel traslúcido). Una cinta continua de hormigón marca el arranque de la madera sobre el bulevar, haciendo las veces de remate.
Sostenibilidad, circuladirad y economía local
El impacto de la tipología y el interés del club hizo posible que los industriales del acero, plástico, madera y energía se incorporaran como socios estratégicos en el diseño y que con ello las estrategias de sostenibilidad pudieran discutirse de manera transversal superando los límites del diseño y transcendiendo los marcos de las certificaciones. Utilizando la simplificación de las tres R pueden agruparse las principales acciones en las siguientes:
-Reducir la construcción, haciendo el diseño lo más eficiente posible. Se minimizó la superficie en planta y en cubierta, y frente a una posible solución circular se apostó por una solución rectangular y ajustada en sus metros cuadrados.
-Reducir también el consumo de energía mediante sistemas de climatización eficiente y aislamiento, utilización de vidrios de altas prestaciones y control solar mediante una doble fachada de madera.
-Reducir el consumo de agua, reciclando las aguas grises e instalando una cancha de césped artificial con sistema de drenaje y recogida de agua.
-Utilizar energía verde y reducir el consumo eléctrico tanto con tecnología de iluminación led como mediante la instalación de producción de energía fotovoltaica en el estadio.
-Reutilizar la estructura de hormigón del estadio existente de manera prácticamente íntegra y optimizando así la huella de carbono del nuevo edificio.
-Reciclar los materiales que provienen de la demolición. El acero recuperado de la cubierta metálica del edificio de 1988 fue reciclado en planta y utilizado en la edificación de nuevo, así como el plástico de las butacas que fue reciclado y conformado como nuevas butacas.
Además, se utilizan 1.600 m3 de madera laminada de pino chileno, acompañadas de un potente desarrollo industrial local que hizo posible proveer el volumen necesario de material estructural, abriendo el camino a la edificación de volumen de grandes luces en madera en Chile y capturando al menos 1.500 toneladas de C02 solo en este ítem.