Forn Lleva’t por Quim Olea Estudi d’Arquitectura, se desarrolla en un volumen amplio y abierto, en el que se realizan las actividades principales del obrador: el trabajo manual, la manipulación de las masas y la elaboración del pan. El espacio abierto convierte el proceso productivo en un recorrido visible y compartido.
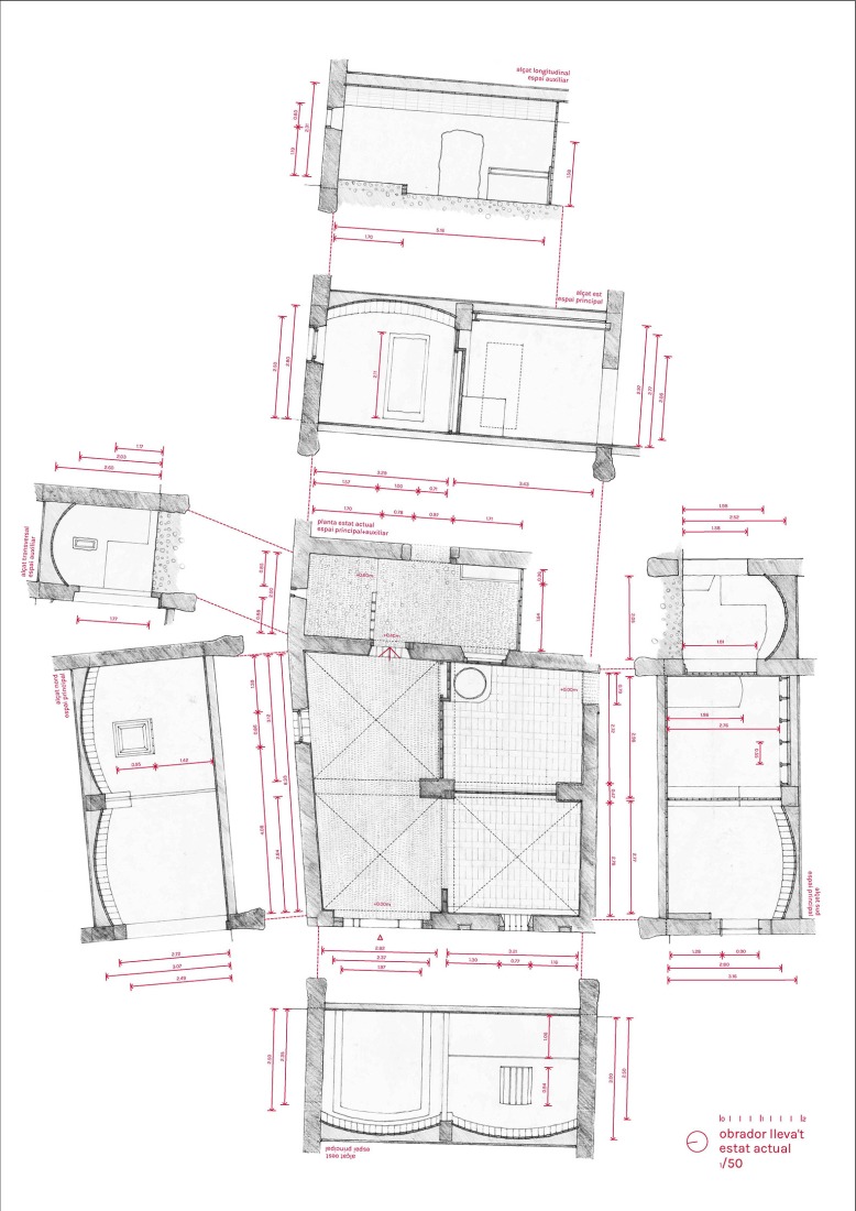
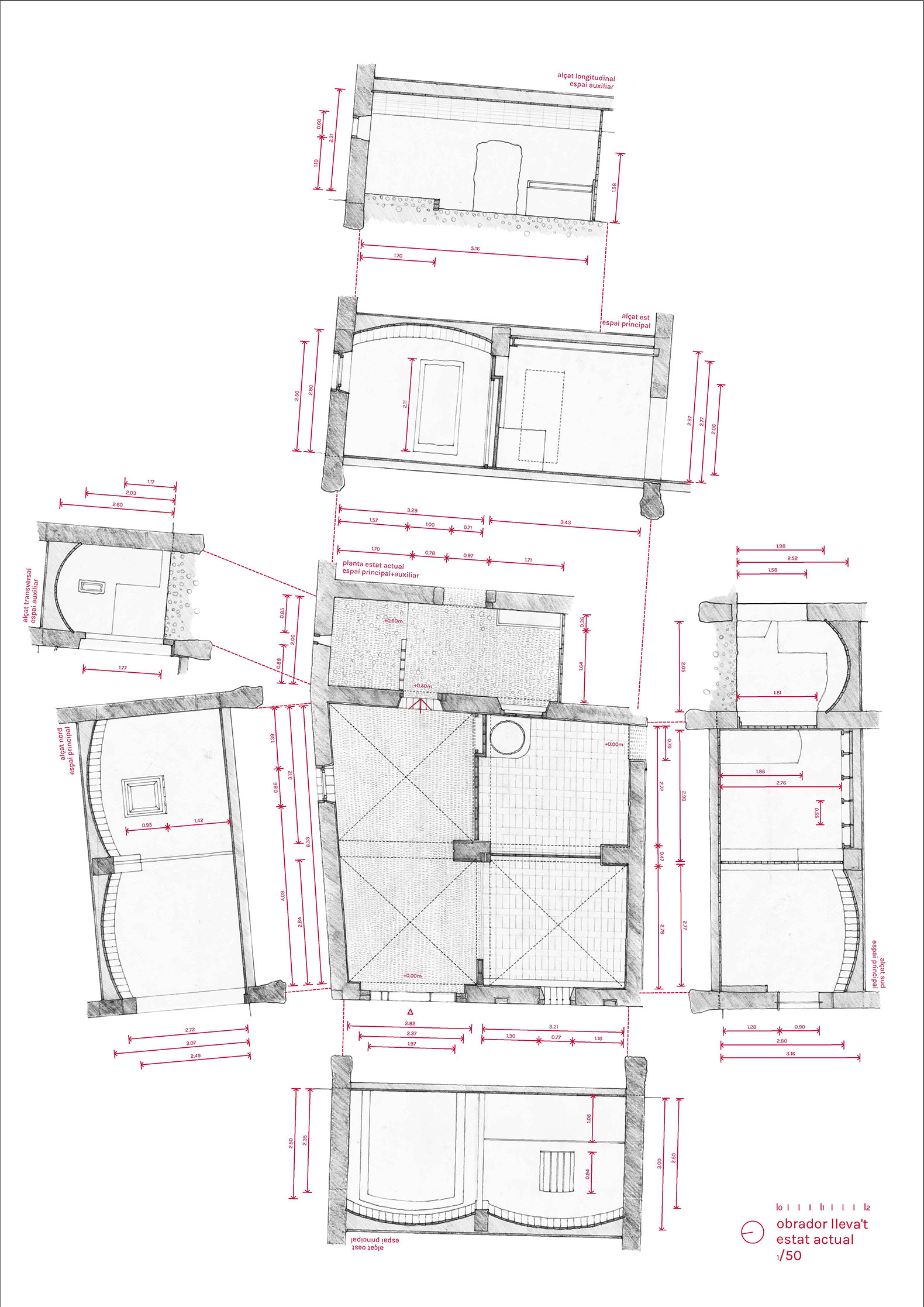
A partir del núcleo central, el proyecto se extiende hacia un espacio cubierto por una media bóveda en donde se ubican la cámara de fermentación y las zonas auxiliares y sin interrumpir las actividades del conjunto, el recorrido culmina en un tercer espacio destinado al apoyo logístico y los servicios higiénicos.
La esencia de Forn Lleva’t es revelada en sus muros de piedra, techos cerámicos, texturas irregulares y un pavimento en hormigón pulido teñido en tonos terrosos. Los revestimientos de los muros, resueltos en dos niveles, utilizan piezas cerámicas de gran formato en tonos tierra para asegurar la resistencia, desde el nivel de piso hasta noventa centímetros de altura. A partir de esta medida hasta los dos metros, se utilizan piezas pequeñas blancas esmaltadas que otorgan carácter al espacio. El espacio central de Forn Lleva’t, se encuentra sostenido por un pilar central cubierto por tres bóvedas cerámicas y un techo de viguetas pretensadas de hormigón.

Forn Lleva’t por Quim Olea Estudi d’Arquitectura. Fotografía por Pol Viladoms.
Descripción del proyecto por Quim Olea Estudi d’Arquitectura
Forn Lleva’t transforma un antiguo almacén de la calle de los Fossos, en el corazón histórico de Avinyonet de Puigventós, en un obrador artesanal que recupera la tradición del pan y la devuelve al centro de la vida cotidiana del pueblo. Más que una reforma, la intervención es una lectura atenta del lugar: una arquitectura que escucha, interpreta y acompaña. El espacio, cargado de memoria y materia, se despliega como una secuencia de tres ámbitos enlazados, cada uno con una escala, un sistema constructivo y un carácter propio. Esta sucesión construye una narrativa espacial coherente, funcional y sobre todo, viva.
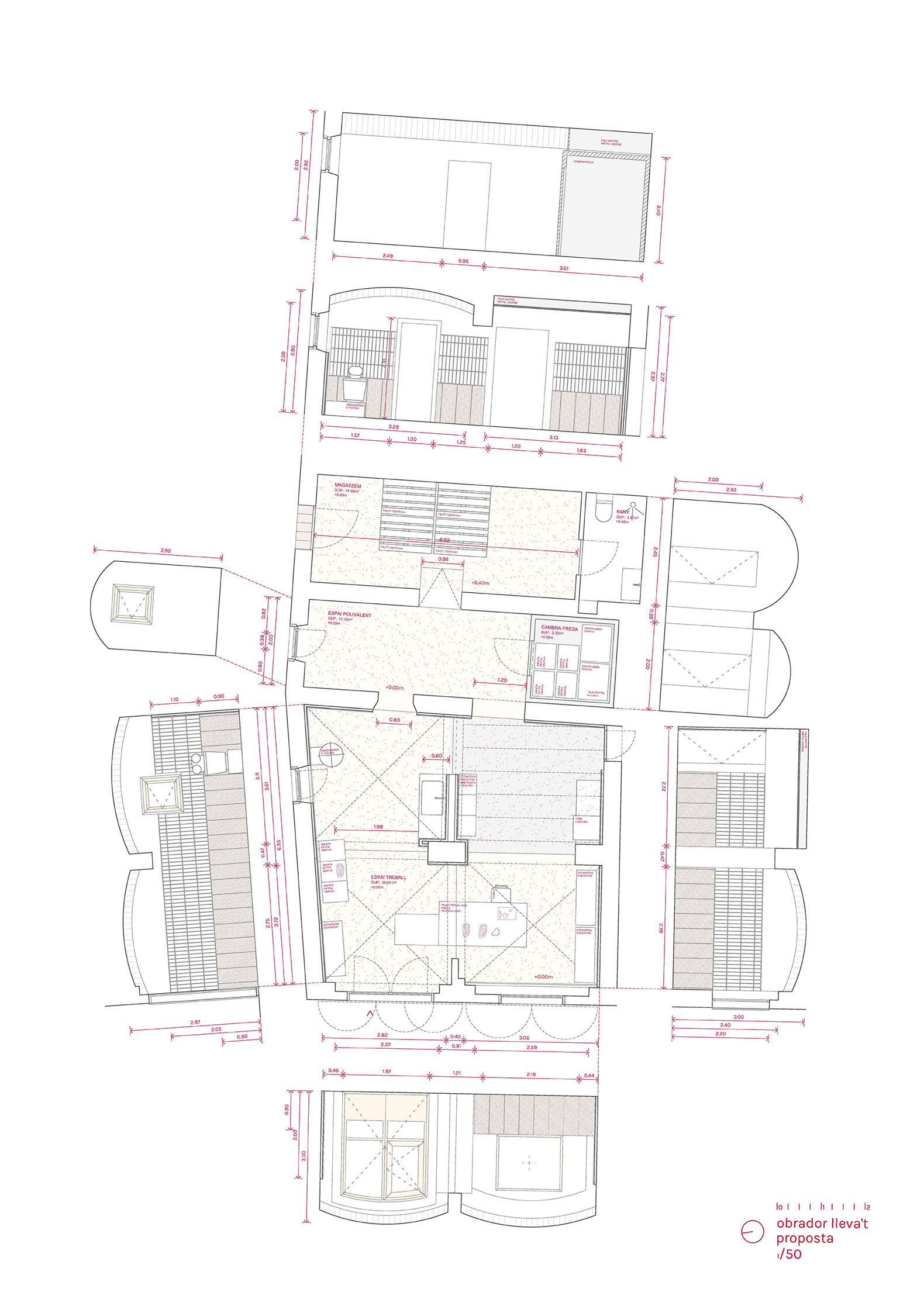
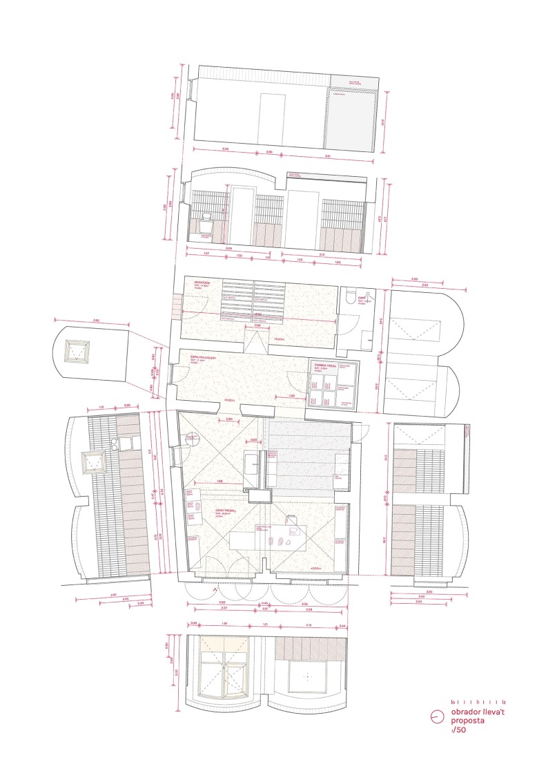
El primer ámbito, situado en la esquina entre la calle de los Fossos y la calle Bellaire, es un volumen amplio y abierto, sostenido por un pilar central y cubierto por tres bóvedas cerámicas y un techo de viguetas pretensadas de hormigón. Este espacio, corazón físico y simbólico del proyecto, acoge las tareas principales del obrador: el trabajo manual, la manipulación de las masas, la elaboración del pan. Su geometría abierta y sin particiones convierte el proceso productivo en un recorrido visible y compartido, donde la arquitectura actúa como escenario y soporte del oficio.
Desde este núcleo central, el proyecto se prolonga hacia un segundo espacio estrecho, cubierto con una media bóveda cerámica, que alberga la cámara de fermentación y zonas auxiliares. Esta conexión directa garantiza la continuidad funcional del taller, manteniendo la coherencia material y estructural del conjunto.
El recorrido se cierra con un tercer espacio de mayor amplitud, con acceso propio desde la calle Bellaire y cubierto por una media bóveda de piedra y mortero de cal. Este ámbito acoge el almacén y los servicios higiénicos, espacios de apoyo logístico que sostienen el trabajo diario sin interrumpir la fluidez del conjunto.
El proyecto se construye desde una actitud de respeto hacia lo existente. Los muros de piedra, los techos cerámicos, las texturas irregulares y las huellas del tiempo se asumen como parte del carácter del lugar. La arquitectura no pretende borrar, sino revelar. Los paramentos se limpian y rejuntan para recuperar la esencia material original, con una delicadeza que evita la reconstrucción y apuesta por una lectura sincera de cada superficie.
La materia existente dialoga con una nueva capa funcional, definida a través de un lenguaje constructivo honesto y eficiente. El pavimento se resuelve con hormigón pulido ligeramente teñido en tonos terrosos, que aporta unidad y calidez. Sobre esta base cromática se organizan los paramentos en dos niveles: hasta 90 centímetros de altura, piezas cerámicas de gran formato en tonos tierra aseguran la resistencia y facilidad de limpieza a la altura de los planos de trabajo; a partir de ahí y hasta los dos metros, una franja de piezas pequeñas blancas esmaltadas envuelve el espacio, reflejando la luz y dignificando los gestos cotidianos del trabajo.
Las aberturas existentes se mantienen, preservando las proporciones y la relación con el exterior, mientras que las carpinterías se renuevan con madera natural teñida en un tono oscuro que armoniza con la paleta cromática general. La entrada principal se resuelve con una ventana convertible que puede actuar como punto de venta o como una gran puerta que diluye el límite entre la calle y el obrador.
El mobiliario se organiza alrededor del pilar central siguiendo una lógica de circuito, evitando cruces y favoreciendo una producción clara y secuencial. Las piezas se clasifican según su función y materialidad: mesas móviles de madera de haya que permiten transformar el espacio; equipos fijos de acero inoxidable colocados estratégicamente para tareas de limpieza o apoyo; y el horno, la pieza principal, ubicado bajo el techo de hormigón, aprovechando este punto para alojar un falso techo técnico que mantiene limpios los volúmenes de las bóvedas cerámicas.
Forn Lleva’t es un proyecto que nace del lugar y se pone al servicio de un oficio. No inventa, sino que afina; no construye sobre, sino con. En su humildad material, en la claridad de su orden y en la delicadeza de sus decisiones, encuentra una belleza profunda. Abre el proceso de hacer pan a la calle, invita a mirar, a participar, a reconocer. Convierte lo cotidiano en un gesto colectivo. Y en ese gesto sencillo y compartido, reafirma que la arquitectura puede ser también una manera de hacer memoria, de transmitir conocimiento y de tejer comunidad.