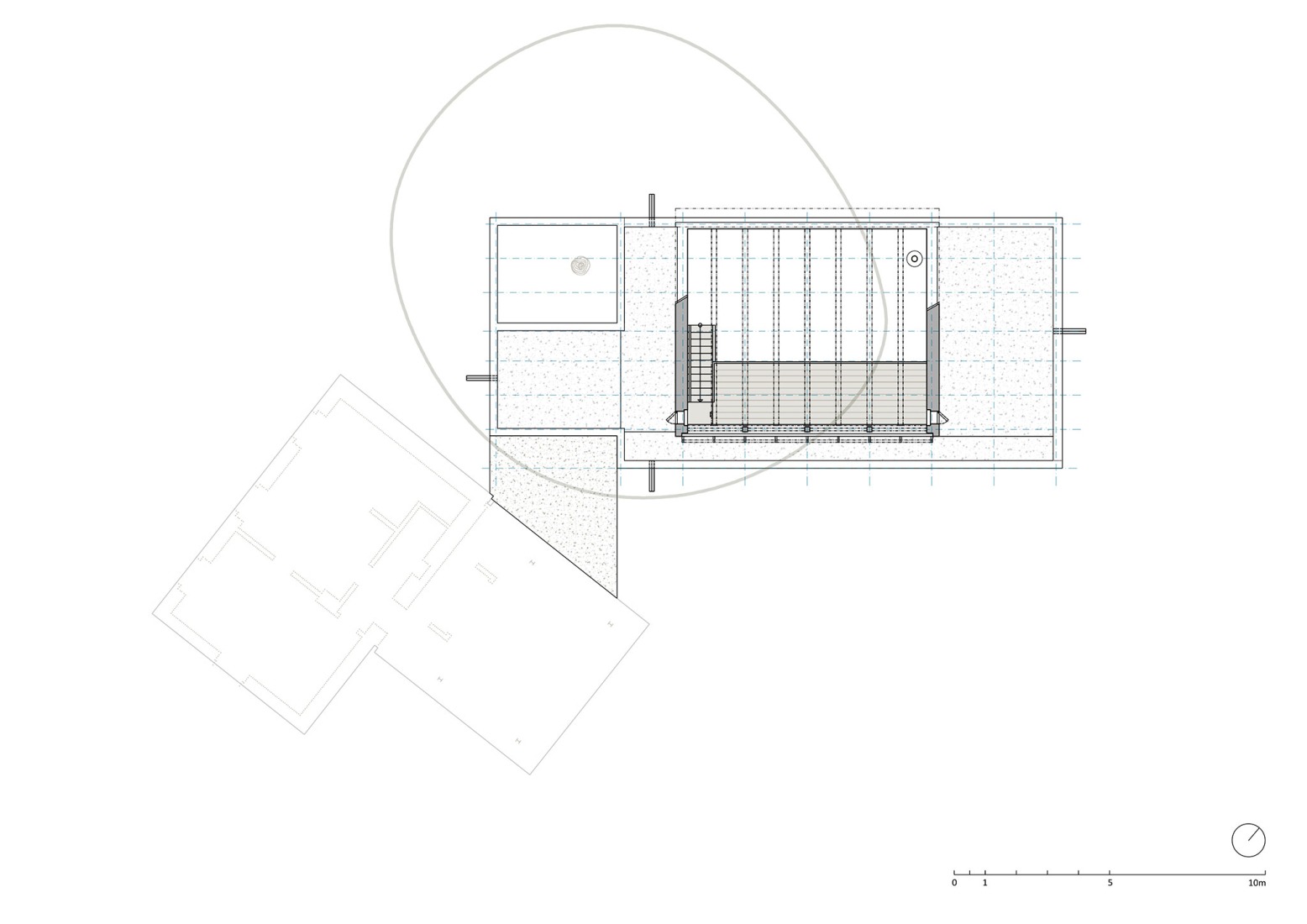
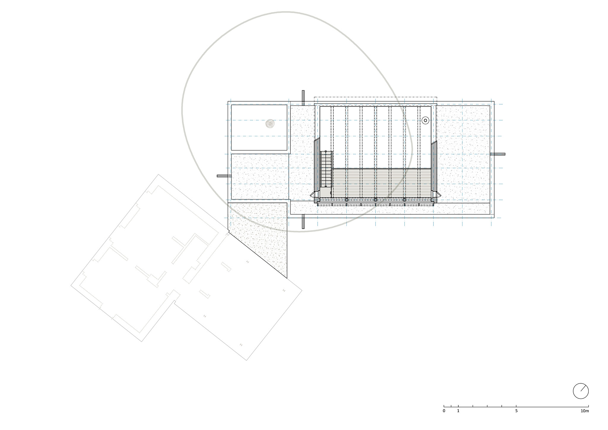
La intervención de Päivä Architekti añade a la vivienda un estudio diáfano y zonas de descanso independientes con baño completo. Se plantea como una construcción independiente en el límite de la parcela, conectada a la vivienda a través de una terraza cubierta en la que se integra un roble adulto. El edificio se abre al valle mediante ventanas correderas, una terraza y una galería.
El edificio se construye sobre micropilotes y consta de una estructura de acero y madera. La fachada se reviste con tablones de alerce curado, una madera de alta resistencia a la intemperie. En el interior, el mobiliario queda integrado, con acabados de paneles de abeto bioestructurado que garantizan un buen aislamiento térmico.

Casa Medník por Päivä architekti. Fotografía por Radek Úlehla.
Descripción del proyecto por Päivä Architekti
El encargo del cliente consistía en ampliar la vivienda familiar existente.
El edificio original se construyó a principios del siglo XX al borde de una ladera rocosa sobre el río Sázava. En 2010, se llevó a cabo una importante reforma y se añadió una extensión de la parte que da al jardín. Sin embargo, poco a poco se hizo evidente que el tamaño del edificio ya no satisfacía las necesidades del cliente. Su idea era crear un espacio diáfano tipo estudio para sus actividades creativas, con abundante luz natural, complementado con una zona de descanso independiente con baño completo.
Al buscar una ubicación y un volumen adecuados, se respetó la forma triangular del terreno, la configuración del paisaje y los árboles maduros existentes. Además, resultó fundamental preservar las vistas desde el jardín de la casa hacia el valle del Sázava y la cima del Medník.
Diseñamos la ampliación como una construcción independiente en el límite entre el bosque y el jardín, conectada a la casa existente mediante una terraza cubierta. En ella, integramos un roble adulto ubicado en las inmediaciones del edificio. Se diseñó una pasarela cubierta que conduce al jardín. El edificio se abre a la terraza y al valle mediante ventanas correderas, y una esquina cerrada se adosa a la construcción existente. En el estudio se inserta una sencilla galería colgante. La morfología de la ampliación sigue la línea de la casa original.
La solución estructural se basa en la posibilidad que tuvo el cliente de realizar parcialmente la construcción. La cimentación del edificio sobre micropilotes fue realizada por una empresa especializada. El resto de la estructura, la estructura portante de acero y la posterior superestructura de madera, se llevaron a cabo de forma autónoma. La casa está revestida con tablones de alerce curado. El interior está acabado con paneles de abeto bioestructurado, con mobiliario y espacios de almacenamiento integrados.