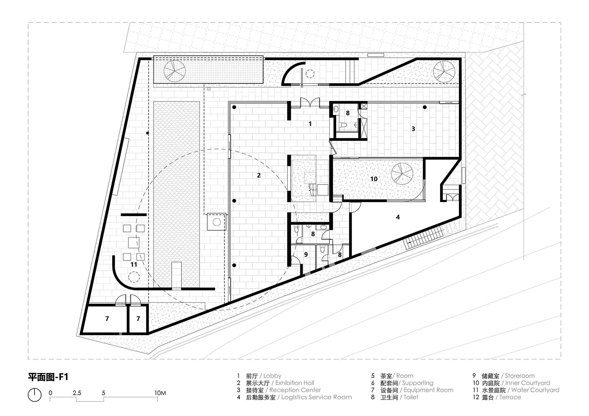
Para la «Red Box», Mix Architecture propone un gran muro sólido en la fachada norte, que da al parque, sobre el que flota un volumen rectangular. En la fachada sur, las terrazas se escalonan hacia atrás, fundiendo la arquitectura con la naturaleza. En el muro del patio, un corte triangular oculta la entrada del edificio, donde la carretera de acceso serpentea hacia el interior del mismo. El espacio de entrada es alto y da a una escalera de seis peldaños. El lado oeste del edificio es un espacio público que se infiltra en el patio adyacente y más grande del proyecto, donde se conserva un árbol y se implanta un estanque rodeado de pasillos y vegetación. La fachada norte tiene un patio estrecho y la fachada sur, un patio de pinos.
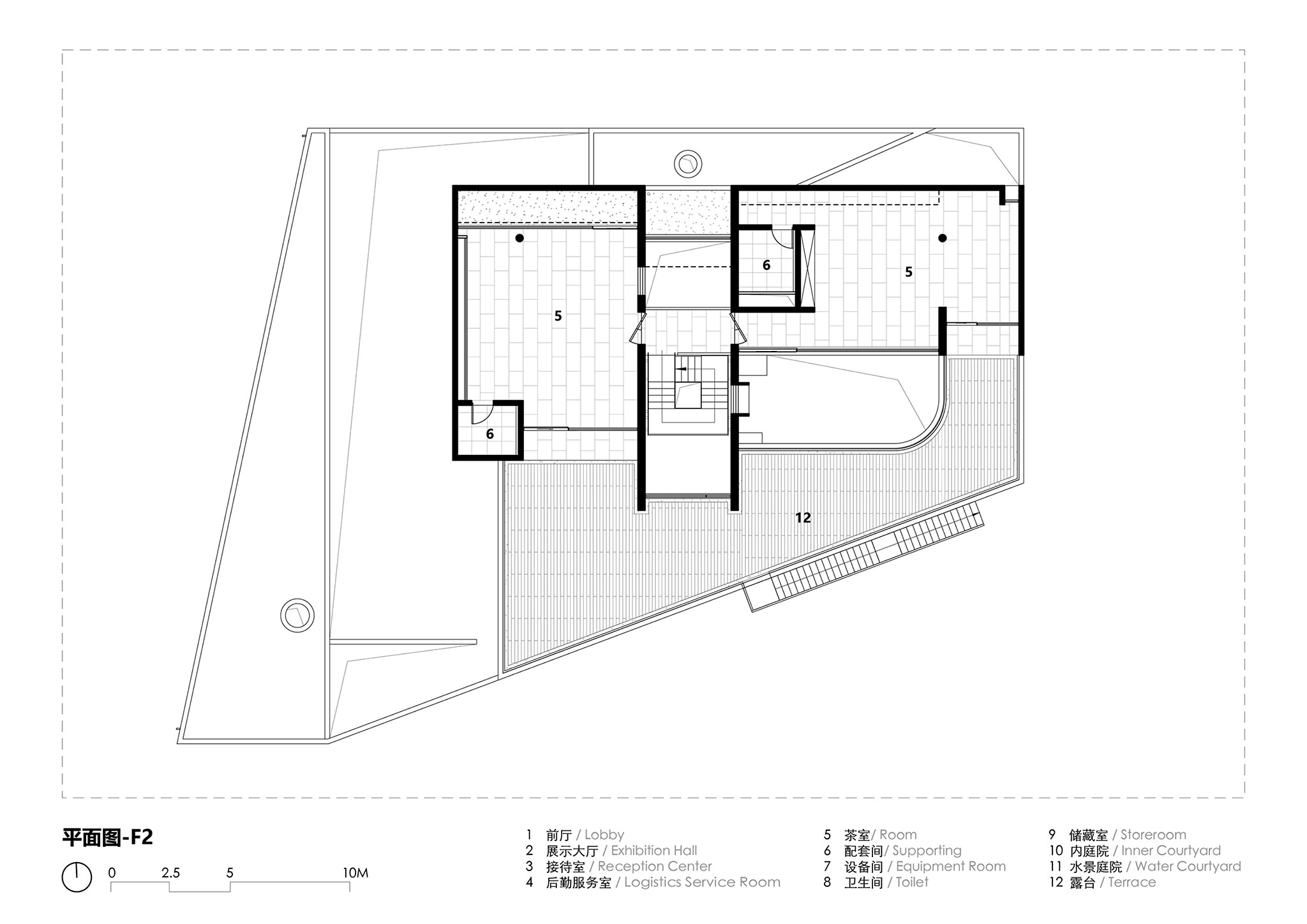
En la planta alta, un pasillo conecta los dos espacios utilizables como un puente desde el que se ve la «Red Mountain» hacia el sur. Las paredes principales de estos dos espacios están realizadas en un material acrílico semipermeable: una con forma de puntos, transmitiendo la luz como un cielo estrellado; la otra, similar al ladrillo, complementa a los edificios de ladrillo rojo del parque.

Centro de Exposiciones «Red Box» por Mix. Fotografía por Arch-Exist.
Descripción del proyecto por Mix Architecture
La «Red Box», proyectada por Mix Architecture, está hecha de hormigón rojo. El «rojo» responde al entorno, lo que tiene tres significados diferentes.
En primer lugar, la «Red Box» responde al «rojo» de la memoria cronológica. El «Red Mountain Park», anteriormente conocido como Fábrica de Maquinaria de Combate de Nanjing, fue fundado en la década de 1950 y ha experimentado el vigoroso desarrollo de la fundación de la Nueva China. El recuerdo «rojo» ha acompañado el crecimiento de varias generaciones.
En segundo lugar, en respuesta al «rojo» del edificio original de ladrillo rojo de la zona industrial del «Red Mountain Park», Mix Architecture decidió convertir la «Red Box» en un edificio único con el mismo ritmo que la fábrica. El hormigón rojo se vierte utilizando plantillas de madera, y el tamaño de la textura de la madera es similar al de los ladrillos rojos existentes.
Por último, el edificio también responde al «rojo» de la «Red Mountain». «Red Mountain» no era su nombre original. Hace unos 1500 años, en la era de las Seis Dinastías, la gente la llamaba «Gran Montaña Espectacular», donde el emperador Chen Xuan inspeccionó una vez el entrenamiento acuático del lago Xuanwu. Durante el período de la República de China, la gente notó el color rojo del suelo de la montaña y luego descubrió hematita en la «Red Mountain». En consecuencia, la «Gran Montaña Espectacular» pasó a llamarse gradualmente «Red Mountain». En 1948, «Red Mountain» se convirtió en su nombre oficial y apareció en el «Mapa detallado de las calles de Nanjing». El componente principal de la hematita es el óxido de hierro, que es precisamente lo que hace el hormigón rojo para convertirse en el principal aditivo.
La «Red Box» está situada al pie de la «Red Mountain», con un gran muro sólido que da al parque en el lado norte, como un volumen rectangular que flota sobre el muro horizontal del patio. Las terrazas del lado sur están escalonadas hacia atrás, haciendo eco de la «Red Mountain», dejando que la naturaleza se funda con el edificio. Un corte triangular en el muro del patio oculta la entrada del edificio, permitiendo que la carretera serpentee hacia el interior del mismo. El espacio de la entrada es alto y da a la escalera de seis peldaños.
El lado oeste es un espacio público, que se infiltra en el patio adyacente y es el patio más grande de la «Red Box». En el patio se conserva un gran árbol. El estanque reflectante está rodeado de pasillos, y los árboles y las ondas del agua reflejan el bosque de la «Red Mountain» en el patio. El espacio del lado este es más privado.
El lado norte tiene un patio estrecho, mientras que el lado sur tiene un patio de pinos, que es siempre verde. Al subir las escaleras, el pasillo conecta los dos espacios utilizables de la segunda planta, como un puente. Desde el puente, mirando hacia el sur, se ve el verdor de la «Red Mountain».
Las dos paredes principales de los dos espacios de la segunda planta están hechas de un material acrílico semipermeable, aparentemente incrustado al azar en la pared de hormigón rojo. Una tiene forma de puntos, que transmiten la luz del interior y el exterior como un cielo estrellado; la otra es similar a un ladrillo, con ladrillos calados que complementan los edificios de ladrillo rojo del parque. Desde el interior hasta la gran terraza, la montaña roja se precipita hacia la vista, convirtiendo el edificio en un marco mientras la «Red Mountain» se funde con la «Red Box».
La determinación del color rojo del hormigón proviene de múltiples pruebas de vertido de bloques de hormigón. Una vez que la textura y el color cumplieron con los requisitos de diseño, la proporción de materias primas se controló con precisión mediante un ordenador durante la construcción formal para garantizar que el color no se desviara.
El diseño y la construcción están altamente industrializados, con un diseño sincrónico de la arquitectura, el interior y el paisaje. La «Red Box» es como un producto mecánico, exquisito y delicado, que integra el interior y el exterior. Para lograr ese resultado, el diseñador trabajó en estrecha colaboración con múltiples fabricantes de hormigón, puertas y ventanas, aire acondicionado, iluminación y muchos otros sistemas para garantizar que todos los elementos estuvieran interconectados.
La búsqueda de la durabilidad es la intención original del diseño. Por ello, el diseñador y los fabricantes colaboraron estrechamente durante todo el proceso de concepción del diseño. Los fabricantes cumplieron con los exigentes estándares de precisión requeridos, garantizando que la forma, el espacio, la iluminación y el equipamiento encajaran a la perfección, y asegurando un producto final que perdurará en el tiempo.