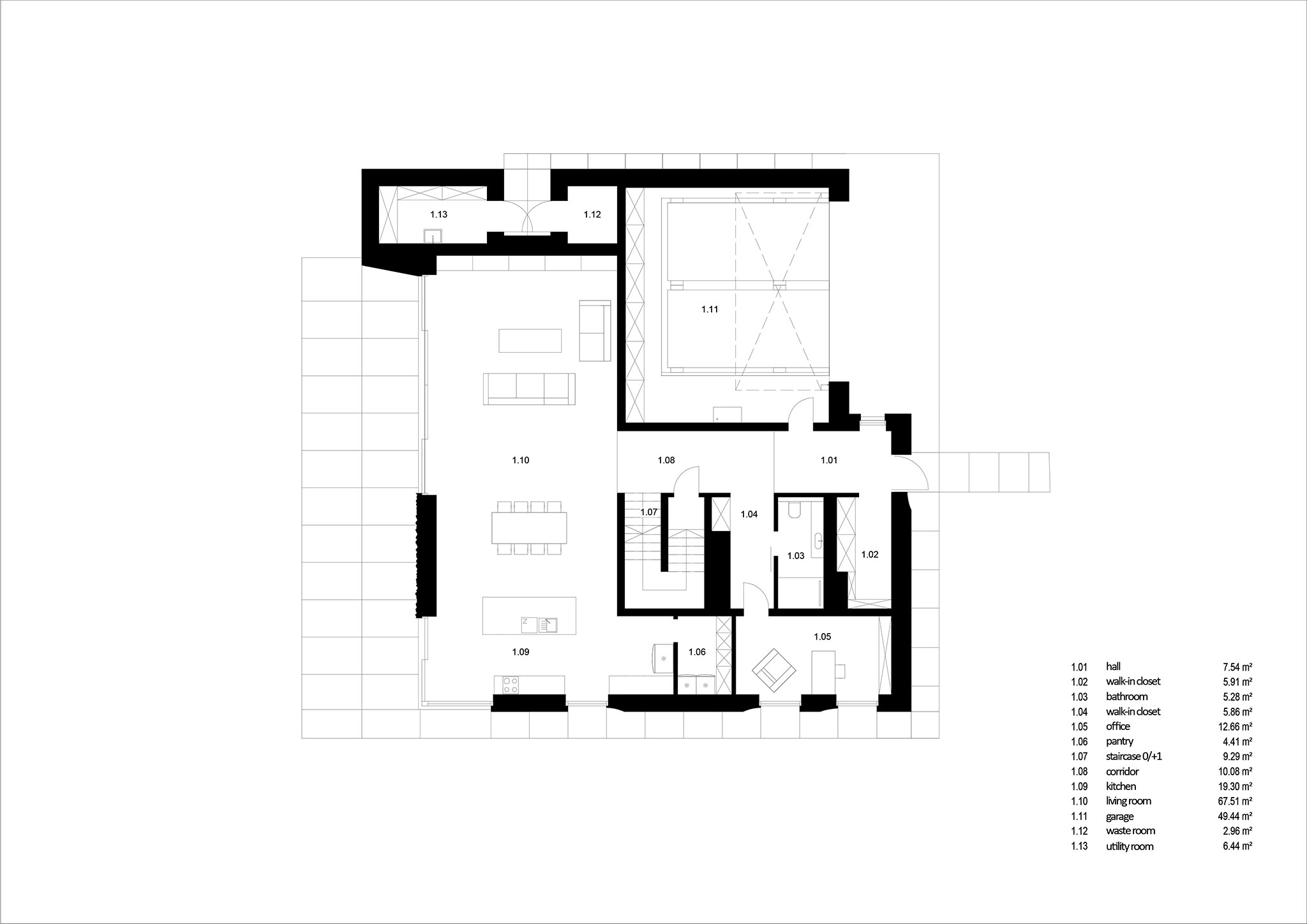
La planta de la Casa en Blanco, proyectada por UCEES, es de forma casi cuadrada, conformada a partir de un proceso de «cincelado» volumétrico que esculpe terrazas y formas cóncavas en una planta superior, contrastando con el carácter monolítico de la entrada y con la forma abierta posterior que dialoga con el jardín.
La villa se construye con paneles GRC tridimensionales prefabricados que crean un conjunto completo, con una minuciosa atención al detalle, lo que hace que su expresión completa solo se aprecie desde la cercanía. El material de estos paneles es cemento TioCem y elimina los óxidos de nitrógeno del aire contaminado, confiriéndole a la villa el carácter de campo de pruebas en soluciones ecológicas.

Casa en Blanco por UCEES. Fotografía por Paweł Ulatowski.
Descripción del proyecto por UCEES
El edificio debe su nombre a sus muros y vallas blancas. Se encuentra en Wola Justowska, el distrito residencial más prestigioso de Cracovia. El distrito es conocido como el Beverly Hills de Cracovia, un lujoso barrio de Los Ángeles, hogar de ricos y famosos.
Este antiguo pueblo cerca de Cracovia debe su popularidad principalmente a su ubicación: está cerca del centro y, al mismo tiempo, conserva su verde, una combinación poco común en las grandes aglomeraciones urbanas. Además, se encuentra junto al parque forestal más grande de la zona de Cracovia, el zoológico y el Montículo de Piłsudski.
Desde el principio, los arquitectos se centraron en la típica villa urbana como la forma adecuada para la casa. El edificio de techo plano, situado en una pequeña parcela y rodeado de vegetación, pretendía llamar la atención y provocar la reflexión. En lugar de competir con la arquitectura circundante, se diseñó para respetar la cercana villa modernista.
Los arquitectos diseñaron el edificio con una planta casi cuadrada. El cubo blanco, compacto y uniforme, se diseñó con la forma y la textura como únicas herramientas.
El material de construcción principal fue el hormigón. Se utilizó cemento blanco para formar paneles tridimensionales reforzados con fibra de vidrio que cubren la fachada del edificio desde la base hasta la cubierta. Esto permitió crear una expresión arquitectónica moderna y dinámica que destaca entre los edificios circundantes.
La casa fue diseñada para impresionar desde el primer contacto, pero aún más importante, para mantener esa impresión a lo largo del tiempo. Su forma arquitectónica se moldeó mediante el proceso de "cincelado" de las capas del cubo. Así, se creó la planta superior, reducida a la mínima expresión, junto con formas cóncavas y esculpidas en forma de lente, terrazas empotradas en la planta baja, ventanas y detalles de fachada de hormigón meticulosamente fresados.
Las losas de hormigón crean un conjunto completo, como un rompecabezas, a lo largo de la fachada. Por eso, no se incluyó herrajes en el diseño: no hay alféizares, cornisas ni voladizos de materiales distintos del hormigón. La única excepción es el vidrio en las ventanas y una balaustrada transparente, casi invisible, en la planta superior.
La expresión final del carácter de la Casa Blanca es el resultado de una minuciosa atención al detalle. Cada punto de conexión de los elementos de la fachada, las losas planas y tridimensionales, y su integración con las carpinterías de ventanas y puertas, fue fruto de una reflexión deliberada y un diseño preciso.
Este detalle está presente en toda la altura del edificio. Aparece en los huecos en forma de áticos redondeados, la ruptura repentina pero rítmica de las líneas de la fachada, el pavimento y el contorno de las terrazas. También se extiende más allá de la propia forma del edificio, a través de los postes verticales de la valla y el revestimiento liso y uniforme de la puerta principal y el acceso.
La sutileza de las soluciones permite que su expresión completa solo se perciba de cerca. La precisión de la ejecución y el rigor arquitectónico confieren al edificio un carácter refinado y minimalista.
Todas las soluciones espaciales planificadas, que se extienden gradualmente tanto en la proyección como en la altura del edificio, confieren una distintiva cualidad teatral a la estructura. Subrayan el diálogo entre la forma abierta que da al jardín y la expresión más cerrada y monolítica del lado opuesto. Los toldos salientes, los soportes y la textura diferenciada de la fachada se diseñaron para crear una forma dinámica, minimizando al mismo tiempo la reflexión de la luz y protegiendo así la fauna local.
Los arquitectos de la Casa en Blanco priorizaron las soluciones ecológicas. El material de los paneles de GRC que cubren la fachada se basó en cemento TioCem, que elimina los óxidos de nitrógeno del aire contaminado. Se trata de una tecnología innovadora, y la Casa en Blanco sirve como campo de pruebas para el hormigón de fachadas con propiedades anticontaminantes en viviendas unifamiliares.
La ubicación del edificio en la parcela permitió preservar todos los árboles existentes, convirtiéndolos en un valor innegable para el sitio. El cuidado del medio ambiente también se demuestra mediante el uso de sistemas de ventilación con recuperación de calor, paneles fotovoltaicos, sistemas de recolección de agua de lluvia y terrazas verdes.