Mimosa architekti plantea una paleta unificada de materiales y colores para la cabaña «Entre la Roca y el Río», creando un interior con un ambiente similar al de una cueva. Este interior cuenta con habitaciones compactas y una amplia zona principal que se extiende hasta la altura total del edificio, animando a los visitantes a pasar tiempo juntos. El espacio común acristalado conecta los acantilados con el río, hacia el que se orienta y al que se abre a través de una terraza elevada.
La cabaña cuenta con una estructura ligera de madera asentada sobre el zócalo de piedra de su predecesora. En el interior, la madera está revestida con paneles de abeto, mientras que el exterior presenta tablones de alerce carbonizado, lo que confiere durabilidad a la fachada. En la parte trasera, frente a la ladera, la estructura está revestida de chapa metálica impermeable. La terraza se vuelve «inexpugnable» gracias a una persiana plegable.

Cabaña «Entre la Roca y el Río» por Mimosa. Fotografía por Petr Polák.
Descripción del proyecto por Mimosa architekti
La cabaña a orillas del río Sázava reemplaza a su predecesora en el mismo emplazamiento. Tras el incendio de la cabaña original, solo quedó el pedestal de piedra, que la nueva estructura integra de forma natural. Ofrece protección contra las inundaciones y brinda una perspectiva única: sobre el río y, quizás, sobre el ajetreo diario. Basta con abrir la contraventana que da al río y simplemente escuchar el murmullo del agua y el susurro de los pinos, observar a los martines pescadores sobre la superficie y los rápidos rompiendo contra las rocas. Asar a la parrilla en la hoguera, encender la estufa, charlar con los amigos. Al atardecer, de camino al pequeño dormitorio del ático —apenas suficiente para dormir— el horizonte del río desaparece y se abre ante nosotros la vista de los acantilados tras la cabaña, recordándonos lo cerca que el Sázava nos envuelve en este lugar.
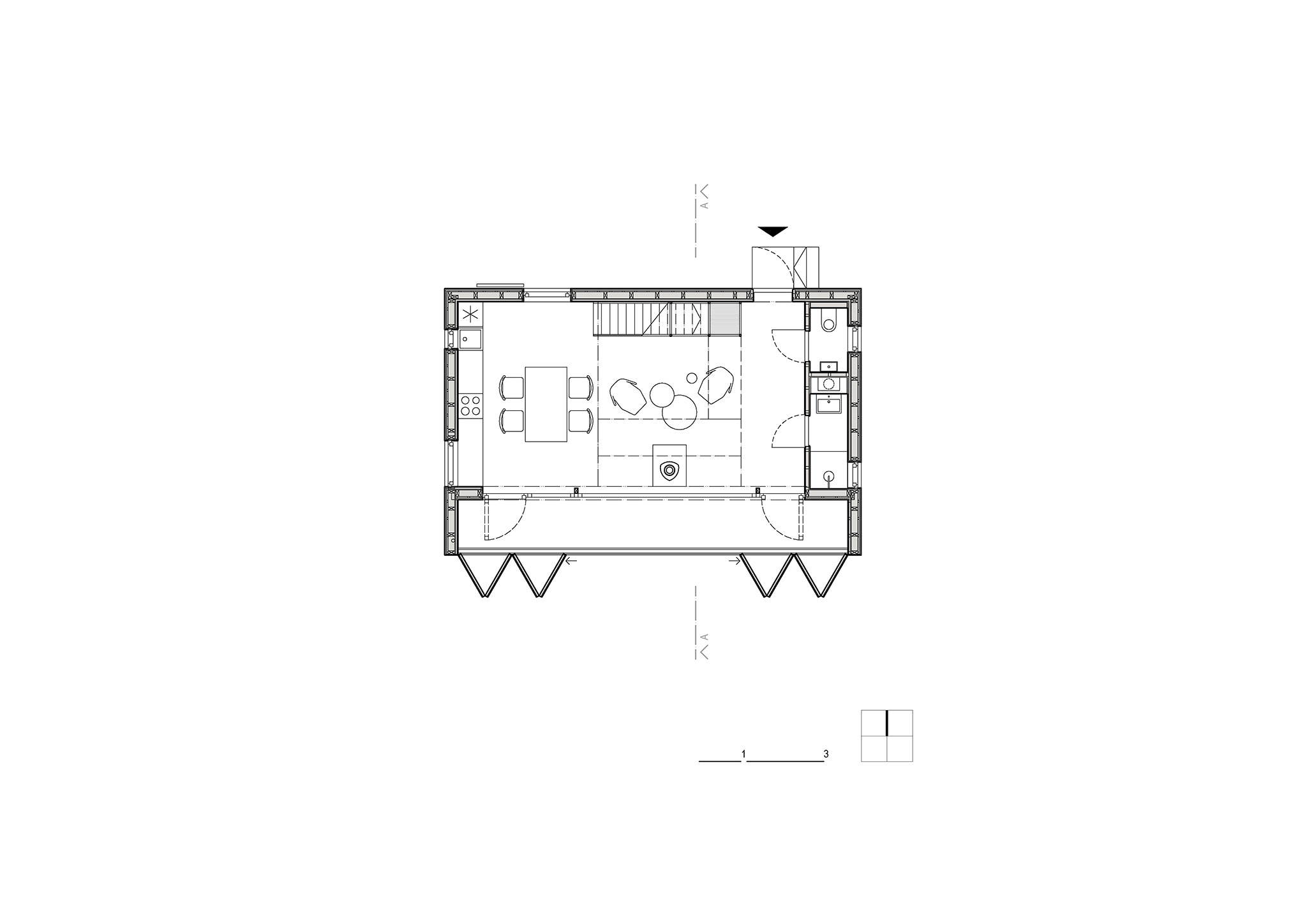
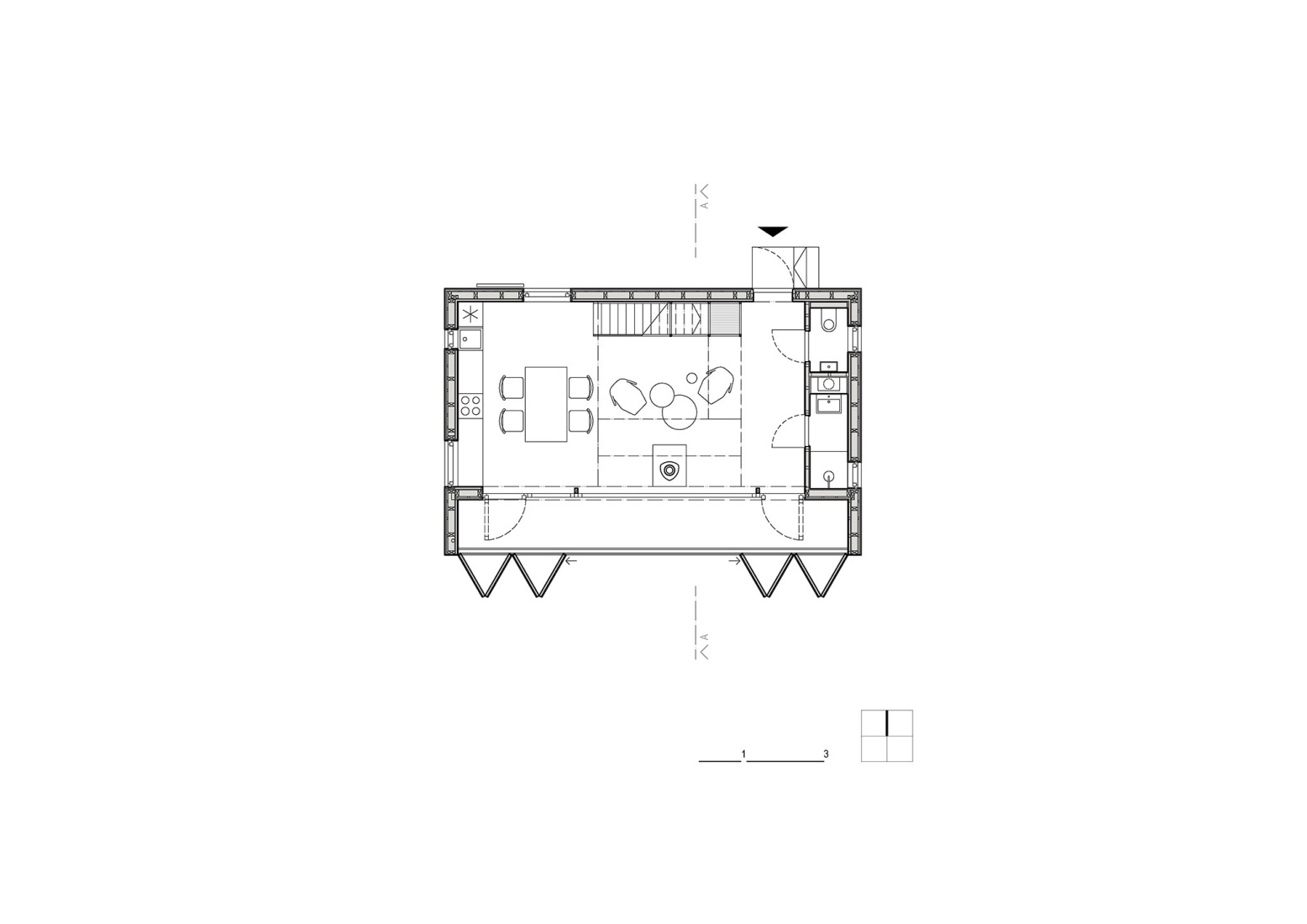
La cabaña es una ligera estructura de madera asentada sobre un robusto pedestal de piedra. La estructura de madera está revestida en el interior con paneles de abeto y en el exterior con tablones de alerce carbonizados. El proceso de carbonización confiere durabilidad a la madera de la fachada, a la vez que hace que la cabaña resulte menos atractiva para intrusos. Además, —quizás con cierto cinismo— la conecta con la estructura anterior. Hacia la pendiente detrás de la cabaña, la estructura está revestida con chapa metálica resistente al agua que cae del tejado. Gracias a la paleta de materiales y colores unificada —paneles de madera en tonos naturales y metal negro—, el interior se convierte en una especie de «cueva» en lugar de una simple colección de muebles. El metal negro de la estufa de leña, la escalera y otros elementos interiores continúa de forma natural la temática de la fachada carbonizada, tanto en color como en su «proximidad» al fuego. El resistente suelo de linóleo natural permite una libre circulación entre la cabaña y el exterior. Excepto por la electricidad, la cabaña es autosuficiente. El agua se obtiene de un pozo propio y las aguas residuales se recogen en un depósito en el zócalo. La calefacción se proporciona mediante una estufa de leña y calefactores eléctricos.
La amplitud del espacio principal se logra al reducir las habitaciones de la planta superior a pequeñas pero suficientes zonas para dormir. Al fin y al cabo, el objetivo de salir de la ciudad es estar juntos… El espacio común, que abarca toda la altura de la cabaña, conecta la parte delantera y la trasera: el río y los acantilados. Orientado hacia el río, el espacio principal está completamente acristalado a lo largo de toda su extensión, y la terraza elevada sustituye el contacto directo con el suelo, ofreciendo vistas panorámicas ininterrumpidas del Sázava. La terraza se puede cerrar con una persiana plegable cuando el sol de verano aprieta demasiado o cuando termina el fin de semana y la cabaña se transforma en una caja cerrada e «inexpugnable». Hasta la semana que viene…