
El proyecto consiste en un centro deportivo en el que Henning Larsen, junto con su equipo, proyecta cada una de las instalaciones prestando máxima atención a la salud pública, el deporte y la actividad comunitaria de personas de todas las edades. Centralbadet ofrecerá actividades como natación, saltos olímpicos y baloncesto, entre otras.
El complejo constará de cuatro pabellones deportivos, un gimnasio totalmente equipado, saunas, piscinas, un restaurante y oficinas. Para ello, se emplearán materiales que reduzcan la huella de carbono y que sean muy duraderos. Combinarán el hormigón de la piscina con estructuras de madera ligera e impermeable que permitan grandes espacios.
El proyecto integra ladrillos reciclados en las paredes exteriores, componentes de madera concebidos para desmontarse y reutilizarse, y cubiertas vegetales que fomentan la diversidad biológica y gestionan las aguas pluviales.

Centralbadet por Henning Larsen. Visualización por Henning Larsen.
Descripción del proyecto por Henning Larsen
Junto con Winell & Jern Architects, Ramboll y John Dohlsten, profesor de Ciencias del Deporte de la Universidad de Gotemburgo, Henning Larsen resultó ganador del concurso organizado por la ciudad de Gotemburgo, superando a equipos como BIG y Wingårdh Arkitektkontor.
Con su inauguración prevista para 2031, Centralbadet representa una inversión a largo plazo en el futuro de Gotemburgo. La piscina cubierta con estructura de madera se integra a la perfección con su entorno mediante un paisaje cuidadosamente diseñado que conecta los parques cercanos con el río. La instalación apoyará la salud pública, el deporte y la actividad comunitaria para personas de todas las edades.

«La propuesta ganadora será el punto de encuentro de los ciudadanos de Gotemburgo. Aquí podrán acomodarse en los bancos integrados en el zócalo de ladrillo o hacer sus deberes en los rincones colgantes que complementan las piscinas y los pabellones deportivos. Fortalece la conexión entre Valhallagatan y Burgårdsparken. Los visitantes podrán recorrer los edificios, subir a la azotea o sentarse en las escaleras soleadas junto al río. Este será un lugar para aprender a nadar, alcanzar nuevas metas en el baloncesto y conocer gente... todo en un entorno precioso».
Johan Sävhage, Presidente del Jurado y Director de la Administración de Deportes y Asociaciones.

Un hogar para todos
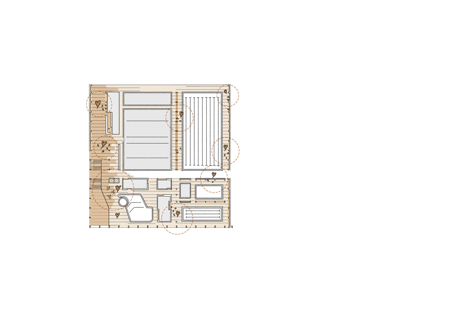
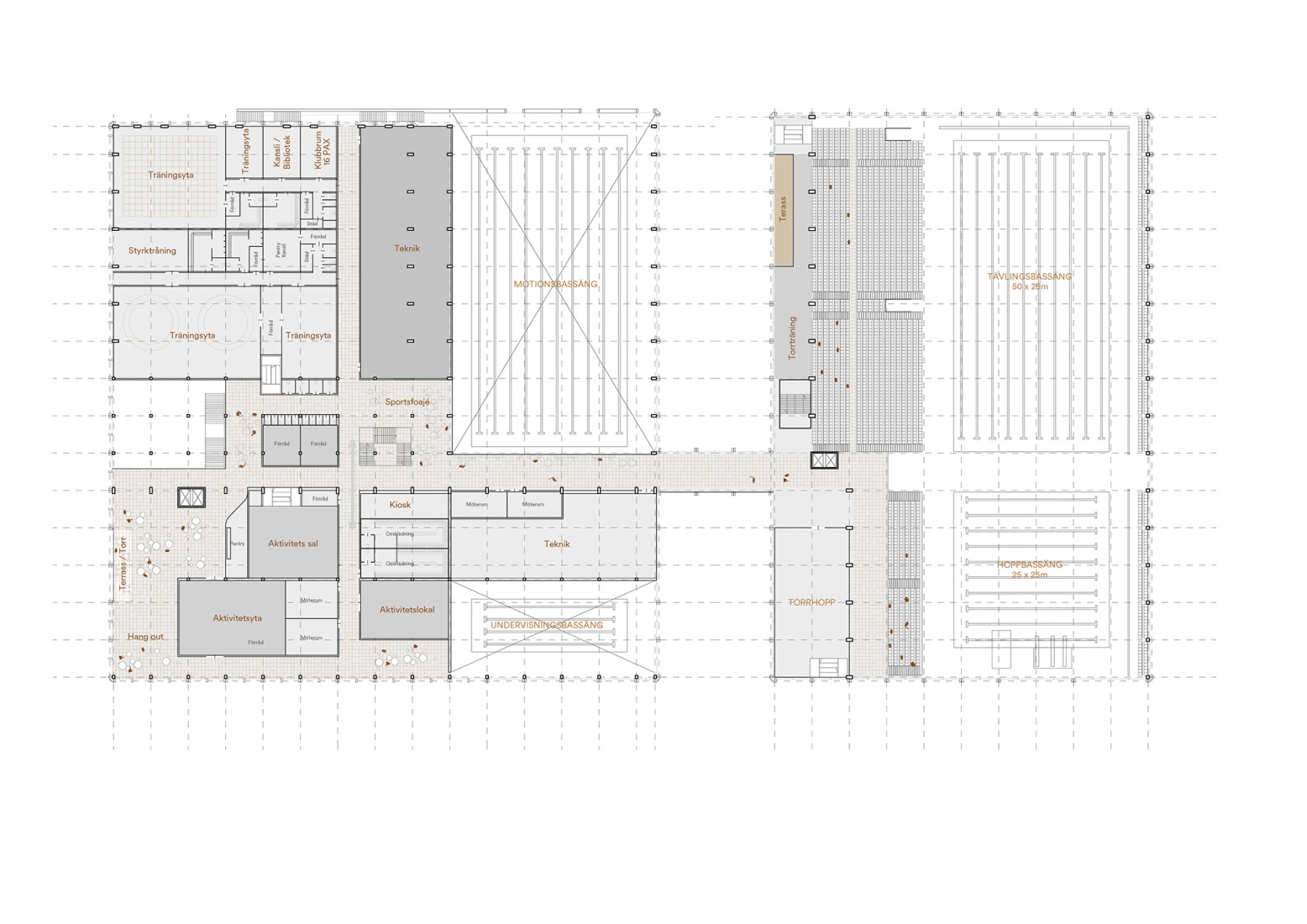
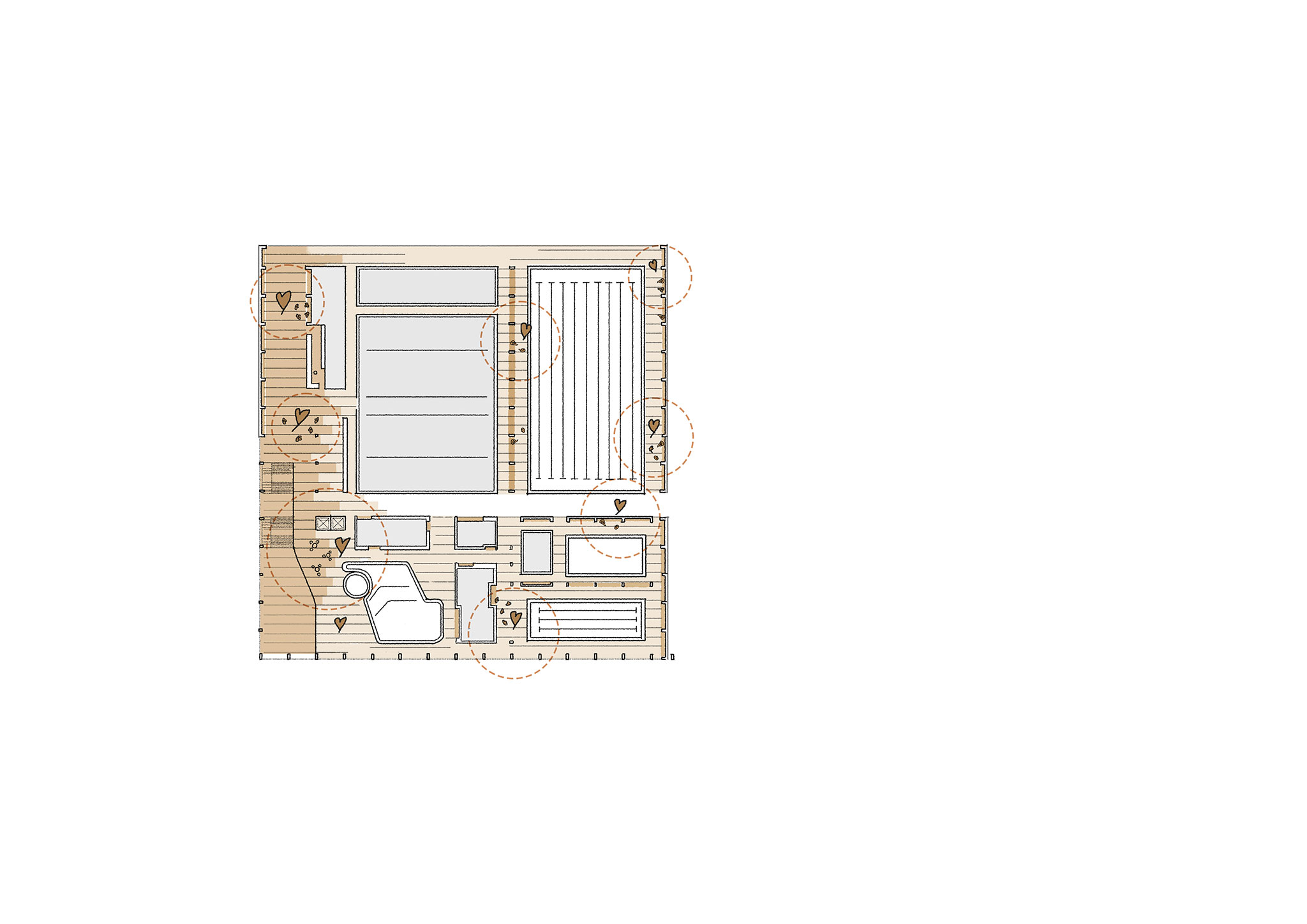
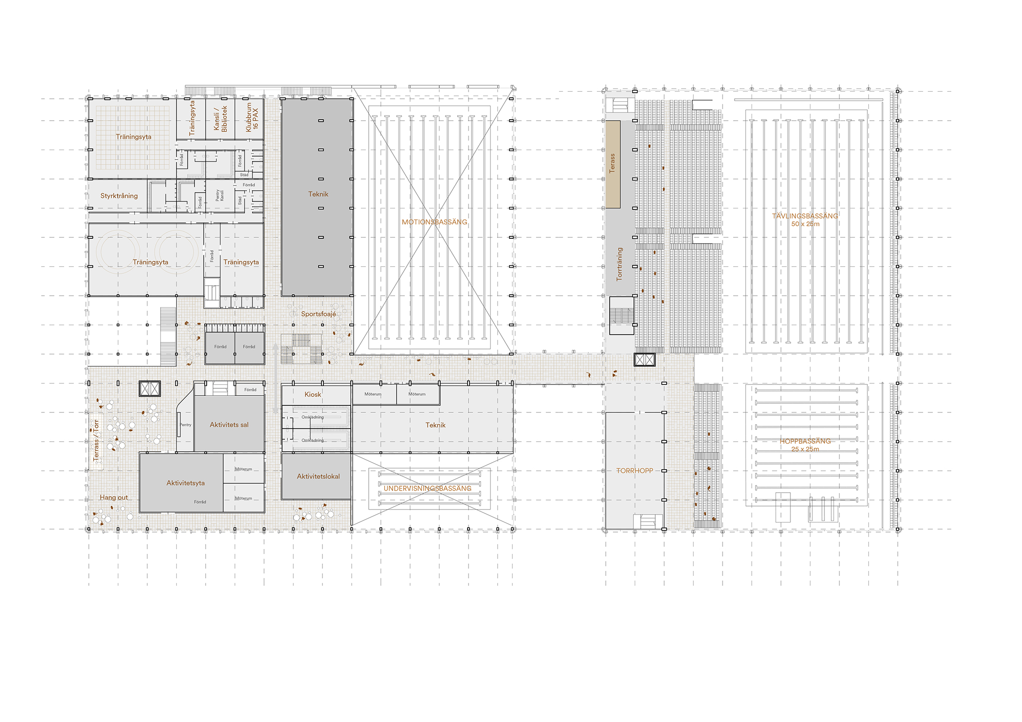
Con una superficie de 51.850 m², Centralbadet aúna el atletismo de élite y la recreación diaria, incluyendo natación y saltos olímpicos, piscinas familiares y de aprendizaje, cuatro pabellones deportivos, una cancha de baloncesto y un gimnasio totalmente equipado. Además de las actividades deportivas, el edificio ofrece saunas, piscinas al aire libre, cafetería y restaurante, zonas de reunión flexibles y oficinas para 200 empleados municipales. Servicios prácticos como vestuarios, garaje para bicicletas y aparcamiento para cochecitos garantizan la accesibilidad para todos.
«Centralbadet es mucho más que piscinas y pistas; se trata de experiencias cotidianas que unen a las personas. Hemos diseñado el espacio para garantizar que cada visita priorice los beneficios sociales y de salud, creando un espacio democrático donde todos se sientan bienvenidos. Desde rincones tranquilos hasta terrazas animadas, desde piscinas de aprendizaje lúdicas hasta azoteas soleadas, cada visita se sentirá acogedora y conectada con los ritmos de la ciudad».
Martin Stenberg Ringnér, Director de Diseño, Henning Larsen.

Un paisaje conectado
La salud, el descanso y la vida al aire libre han caracterizado desde hace mucho tiempo a Katrinelund, donde se encuentran las históricas piscinas cubiertas de Gotemburgo. El nuevo Centralbadet continúa esta visión con una estrategia paisajística robusta y flexible que se adapta al desarrollo de la ciudad a lo largo del tiempo. La entrada se abre hacia el futuro estadio deportivo, situado al sur, y conecta con las zonas verdes de Burgårdsparken y el río Mölndal.
Con fachadas activas que dan a la calle, líneas de visión abiertas e iluminación integrada, el edificio garantiza seguridad y accesibilidad en todo momento. La cubierta multinivel amplía la experiencia deportiva al aire libre, con zonas de calentamiento, pistas de atletismo que conectan con el parque, gimnasios al aire libre y terrazas soleadas. Jardineras elevadas con pequeños árboles y arbustos definen espacios diferenciados, mientras que gran parte de la cubierta se dedica a cubiertas verdes, que albergan diversas plantaciones y promueven la biodiversidad de insectos.

Materialidad
La estrategia de materiales equilibra la durabilidad con una cuidadosa selección de materiales que reducen la huella de carbono y favorecen la reutilización. El hormigón proporciona la estabilidad necesaria para los vasos de las piscinas, mientras que las estructuras superiores se transforman en madera ligera, incluyendo vigas de madera laminada encolada de gran luz diseñadas para ambientes húmedos. La madera también se utiliza en particiones interiores, elementos de techo y aislamiento siempre que es posible, lo que reduce la huella de carbono en todo el edificio.
El diseño incorpora ladrillos reciclados en las fachadas, elementos de madera diseñados para desmontarse y reutilizarse y techos verdes que apoyan la biodiversidad y gestionan las aguas pluviales, creando un edificio resistente y duradero.