The Missillac Market, designed by LAUS architectes, creates an engaging, open yet covered public space, built with a restrained palette of materials supplied by local companies: concrete for the floors and ancillary elements, and timber for the structure, cladding, joinery, and roof, finished with roughly hewn larch shingles.
The structure, in exposed timber, is composed of inverted trusses alternated with visible joints that facilitate maintenance and enhance the market’s durability. It features pillars and beams arranged in a “scissor” configuration; the suspended beams support the timber slat roof.

Missillac Market by LAUS architectes. Photograph by Gaëtan Chevrier.
Project description by LAUS architectes
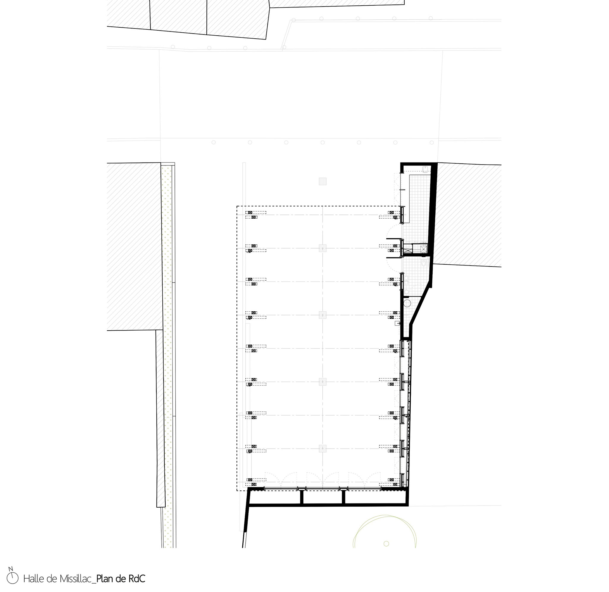
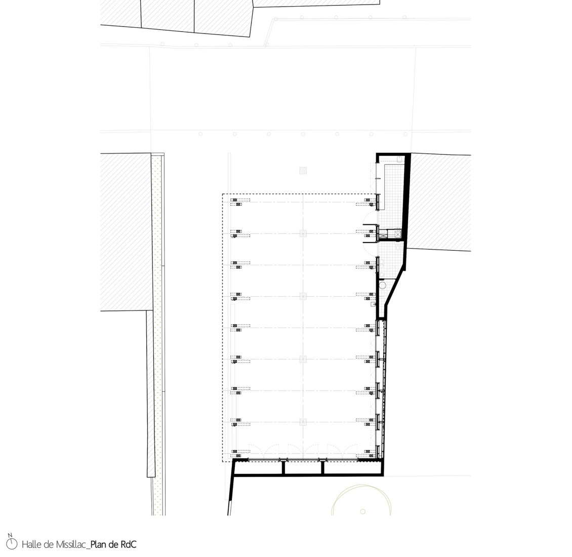
In a recently freed-up vacant lot, the new market hall re-establishes the urban fabric. It offers a tranquil respite, echoing the church square. Set back on two sides, it creates a forecourt against the main street and opens a narrow alleyway connecting it to a changing inner courtyard. By thickening the two remaining sides, it provides enclosed service areas. Nestled on a gently sloping site, and using a unified palette of materials, the market hall offers a significant, non-dominant, and timeless presence: an open, lively, and welcoming retreat within the city.
The market hall is part of a tradition of structuring and economical urban amenities that enhance the city's outdoor life. It is an open shelter with unheated annexes, expressed through a minimal use of materials, utilizing the expertise of local companies: concrete (floors, annexes) and wood (framework, cladding, joinery, roofing). For their durability and repairability, the technical structures and joints are exposed. The rough-hewn larch shingle roof allows for ventilation in winter and cool airflow in summer.
The scissor-like action of the posts and rafters smooths the visual appearance of the load-bearing and stabilizing elements. The alternating timber frame joints, with every other truss reversed, introduce variety within the repetition. The roof decks, with their louvered shape, rest on rafters suspended from the purlins. In contrast to this lightness, the annexes form thick, monolithic boundaries, seamlessly integrated with the concrete floor. They incorporate large, active windows made of fixed or movable rough-hewn wood panels. A counterweight pulley system raises shutters to open the kiosk bar and the exhibition booths.