Para «Kaye», Grzywinski+Pons propuso como solución una torre sobre un podio, con una base que dialoga coherente y armoniosamente con los edificios cercanos. El podio mira a la calle, mientras que la torre mira al horizonte, volviéndose más etérea y diáfana a medida que se eleva. La base es una celebración de la solidez técnica, mientras que la cima es un estudio de luz y reflejo, en un juego sincopado de volúmenes proyectados sobre una fachada rigurosa.
El podio, legible desde la calle y tratado como una masa que parece erosionarse, presenta espacios abiertos, accesibles y acogedores. Los retranqueos y vacíos en planta baja fomentan la conexión de la calle con el núcleo del edificio. En la fachada de la «Fourth Avenue», una columnata de ladrillo y piedra artificial contrasta con la protección climática de los niveles superiores y retranquea el umbral del edificio, ampliando el espacio público y difuminando la frontera entre el interior y el exterior. En la calle Blanchard, el edificio también se retranquea para crear un patio interior con zona de juegos. Un sencillo arco en relieve se construye sobre cada dintel de ventana. El sofito superior, revestido de paneles metálicos, se considera una «quinta fachada». El mobiliario urbano y la vegetación invitan a la gente a habitar el espacio exterior ampliado.

«Kaye» por Grzywinski+Pons. Fotografía por Nicholas Worley.
Descripción del proyecto por Grzywinski+Pons
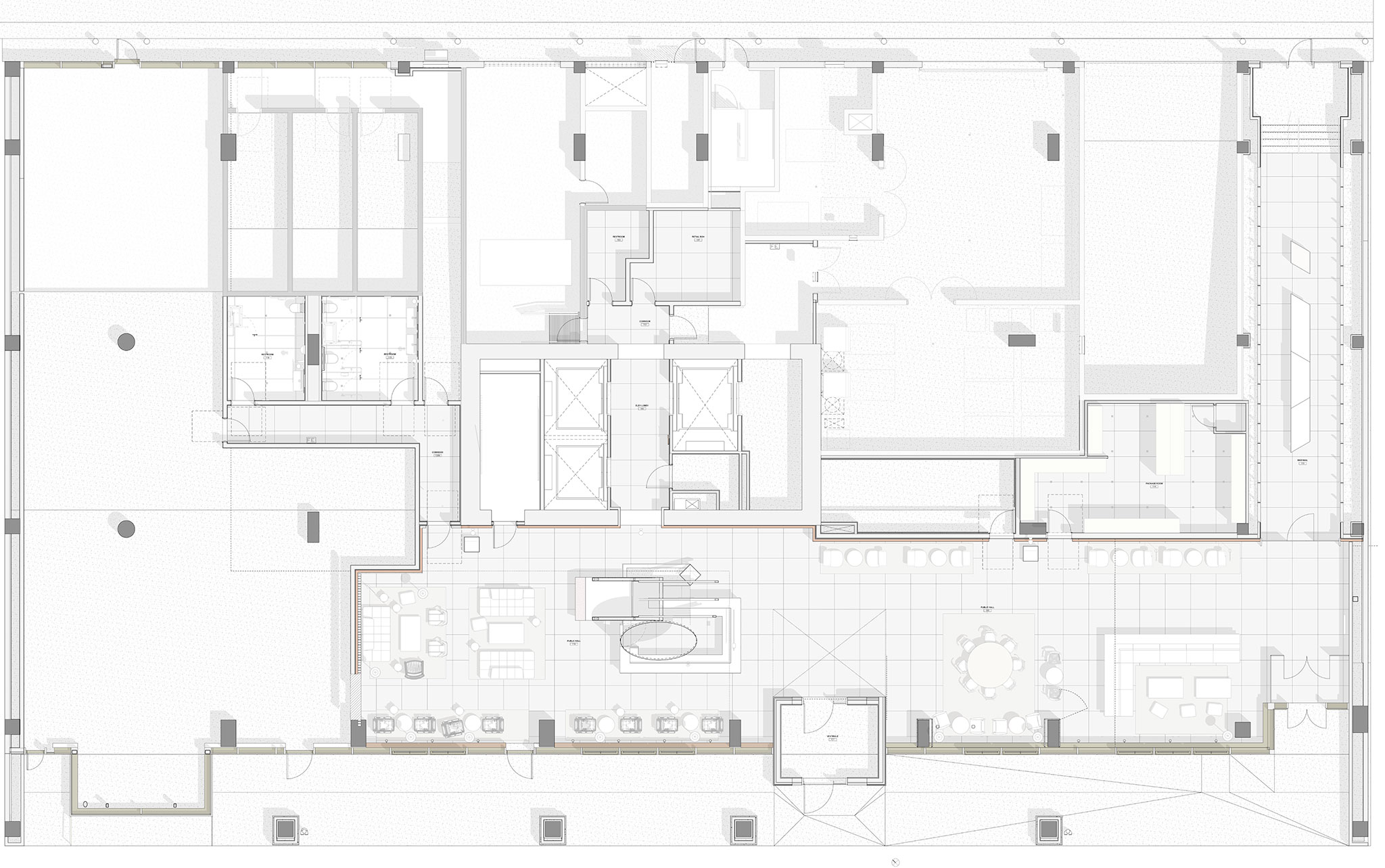
Kaye es un nuevo edificio de treinta y un pisos en el barrio Belltown de Seattle, que consta de 324 apartamentos, servicios de alta gama en la planta baja, séptima y trigésimo segunda, un espacio de coworking en el entrepiso y un espacio comercial a nivel del suelo. Grzywinski + Pons diseñó el edificio y todos los interiores, así como gran parte del mobiliario, para nuestro cliente, Skanska.
Belltown es el barrio urbano más denso de Seattle y encarna la tensión entre el pasado y el futuro de la Ciudad Esmeralda, donde los nuevos rascacielos se combinan con vestigios arquitectónicos del patrimonio marítimo e industrial ligero de la zona. Queríamos diseñar un edificio que celebrara las mejores cualidades de sus vecinos de principios del siglo XX, a la vez que creara nuevos hogares para quienes disfrutan del emocionante futuro de Seattle.
Nuestro terreno comparte manzana con una residencia multifamiliar de tres pisos de estilo neotudor y una estructura de una sola planta de estilo neogeorgiano, ambas construidas en la década de 1920 y revestidas de mampostería y piedra artificial. Diseñamos Kaye como una torre sobre un podio, una configuración que nos permitió crear un zócalo coherente tanto con nuestros vecinos inmediatos, revestidos de ladrillo, como con la torre que se alza sobre él.
Diseñamos el podio para que estuviera orientado hacia la calle y en armonía con nuestros vecinos de mediana altura: firme, masónico y decidido. Por otro lado, la torre está orientada hacia el horizonte, volviéndose cada vez más etérea y diáfana a medida que se eleva. Estas intenciones se manifiestan en el material y la forma: la base es una celebración del peso tectónico, mientras que la cima es un estudio de luz y reflejo.
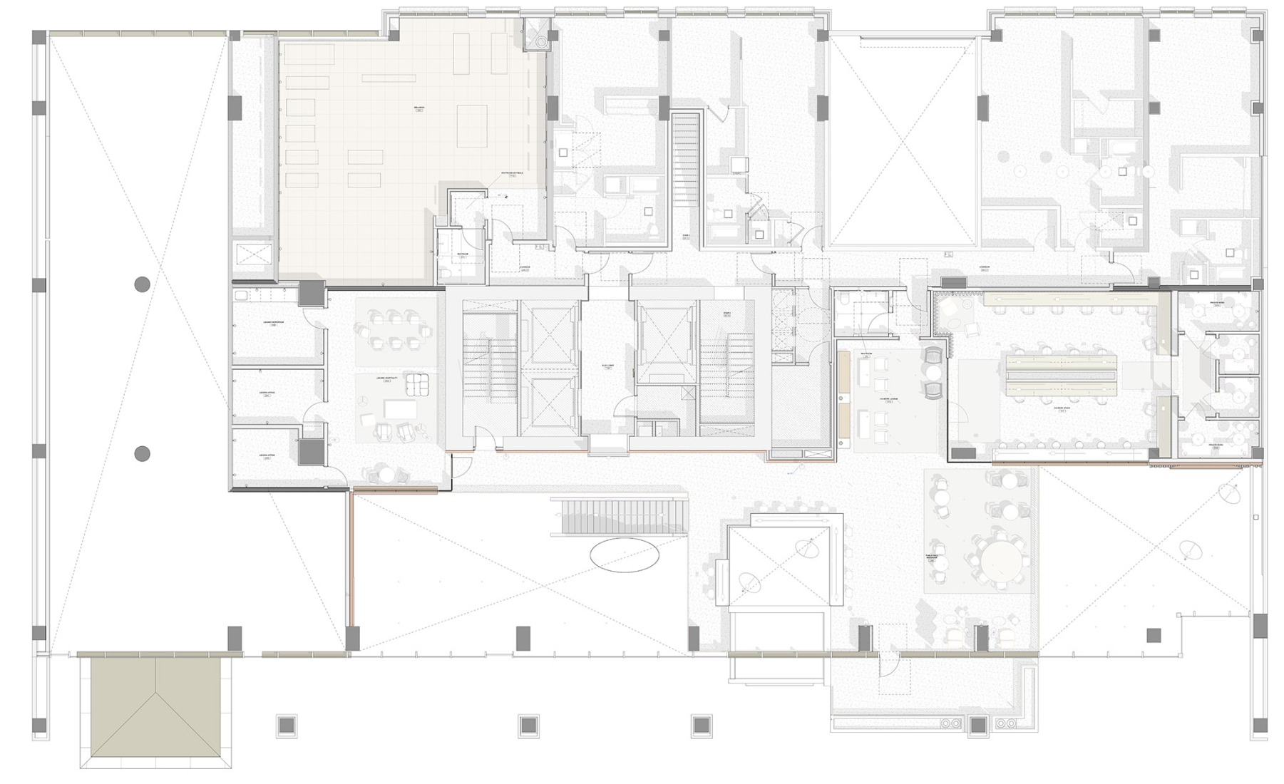
Establecimos principios rectores para la base de seis plantas de Kaye. Queríamos que el podio fuera legible desde la calle, con elementos programáticos visibles, espacios abiertos y una circulación intuitiva. Los grandes espacios y los volúmenes imponentes se sienten accesibles y acogedores, con detalles granulares representados con materiales cálidos y táctiles. Dado que diseñamos tanto el edificio como el interior, pudimos tratar los espacios de la planta baja como una extensión de la calle.
Creamos un «gran salón» tras una fachada de cristal practicable, con una fachada secundaria interna revestida de mampostería y fenestrada como si se tratara de otro muro que da a la calle. Una escalera monumental revestida de ónix invita a huéspedes y residentes a los espacios de servicios en el entrepiso, todos bañados de luz natural y conectados con la Cuarta Avenida. La sala de correo y bicicletas funciona también como una conexión visual y física desde la Cuarta Avenida, a través del gran salón, hasta el callejón trasero: la materialización arquitectónica de un "camino de deseos" anticipado para los residentes que se dirigen al este o al sur. Las medianeras a ambos extremos del gran salón están revestidas con ladrillos de vidrio hechos a medida, y un volumen comercial proyectado de vidrio y mármol rosa de Tennessee se encuentra bajo un toldo con acabado de espejo, que refleja a los peatones que pasan.
Para adaptar el zócalo a escala humana, tratamos la masa como algo que se erosiona. Mediante la construcción de masas sustractivas, creamos retranqueos y vacíos en puntos estratégicos, invitando a las conexiones desde la calle hacia el núcleo del edificio. En el muro de la Cuarta Avenida, diseñamos una columnata en lugar de la protección climática superior prescriptiva de Seattle. Esta medida retrasó el umbral del edificio, extendiendo el espacio público hacia la estructura y difuminando la barrera entre el interior privado y la acera pública.
En la elevación de la calle Blanchard, utilizamos un retranqueo adicional, descendiendo para reconocer la escala del edificio Otis de una sola planta situado al sur. Esto creó un patio interior que sirve como zona de juegos protegida para los niños residentes. La terraza del sexto piso cuenta con un puente exterior que salva este vacío: una circulación visible que proporciona una clara sensación de escala y movimiento a la parte superior del podio.
Inspirándonos en nuestros vecinos, diseñamos la fachada del podio con estos principios en mente. La planta baja de doble altura, retranqueada tras la columnata de ladrillo y piedra artificial, cuenta con una fachada de cristal con un muro de poni integrado, ventanas de guillotina operables y un vestíbulo de entrada revestido de piedra. El sofito superior se considera una "quinta fachada" y está revestido con paneles metálicos con acabado de latón envejecido. El mobiliario urbano y la abundante vegetación invitan a residentes y transeúntes a habitar el espacio exterior ampliado.
El resto de la base está revestido de ladrillo romano vidriado en tonos salvia con hiladas prefabricadas. Diseñamos un sencillo arco en relieve en cada dintel de ventana. En la esquina suroeste, creamos un jardín de invierno donde el revestimiento de Fourth Avenue gira hacia la fachada Blanchard del límite del terreno, revestida en ladrillo macizo sin vidriar.
Para la parte de la torre, queríamos que el edificio se sintiera más diáfano a medida que se eleva. La confianza de Skanska en nosotros para diseñar tanto la arquitectura como los interiores nos brindó la oportunidad de tomar decisiones que beneficiaran a ambos.
La decisión formal más tectónica fue la creación de volúmenes proyectados, o «salones al aire libre», en algunas unidades. En una fachada por lo demás rigurosa, exploramos la síncopa: la interrupción curada de elementos organizados de masa y espacio.
Estas proyecciones ofrecen vistas de 270 grados a algunas unidades. El acristalamiento en las caras perpendiculares permite a los habitantes mirar hacia atrás y más allá del edificio, abriendo en ocasiones líneas de visión hacia el oeste hasta Elliott Bay, hacia el norte hasta la Space Needle y hacia el este hasta el Lake Union desde una sola habitación. Estas proyecciones refuerzan el principio de erosión que aplicamos en el podio, donde el amplio acristalamiento en los salones esquineros permite a los visitantes ver a través del edificio desde la calle.
Queríamos maximizar la textura y amplificar la recesión espacial de la fachada de la torre. Incluso dentro de una envolvente altamente transparente, priorizamos el almohadillado en todos los componentes opacos, incluyendo parteluces, enjutas y marcos de paneles operables. También desarrollamos cuadrículas que se ciernen sobre los paneles acristalados, mejorando la percepción de profundidad a través de sombras y reflejos. Concentramos más estos componentes en la parte baja de la torre, reduciendo la textura en las plantas superiores y mejorando la percepción de gradación vertical. En los espacios públicos, suavizamos el expresionismo estructural con una paleta de materiales cálidos, acogedores y resistentes: suelos de piedra con alfombras generosas; paredes revestidas con mampostería, yeso de cal y paneles de persiana de madera; y ventanas con cortinas suntuosas. Amueblamos los espacios con sofás, banquetas y sillones mullidos para invitar a la estancia.
En las unidades residenciales, utilizamos una paleta de tonos neutros suaves y diseñamos muebles empotrados. Una mesa/isla híbrida con cubierta de mármol y marco de madera se ubica perpendicular a las amplias cocinas. Un gran aparador con estanterías integradas se integra en el espacio entre las amplias ventanas de las unidades, cuyas dimensiones son iguales a los montantes de las ventanas adyacentes. Diseñamos la iluminación y los revestimientos de las ventanas para complementar la utilidad, el ambiente y la calidez de las unidades desde el interior y contribuir a la experiencia nocturna del edificio desde el exterior.
Esperamos que Kaye sea un protagonista en un barrio definido por sus capas. Al sintetizar el lenguaje masónico de la década de 1920 con una torre diáfana, buscamos crear una arquitectura que respete la seriedad de sus vecinos históricos —el Charlesgate y el Otis—, a la vez que abraza el futuro de Seattle. Kaye participa en un diálogo urbano continuo, explorando una densidad que puede ser a la vez sólida y etérea. Es sumamente gratificante ver a The Kaye integrado en la estructura de este barrio dinámico y en constante evolución.