
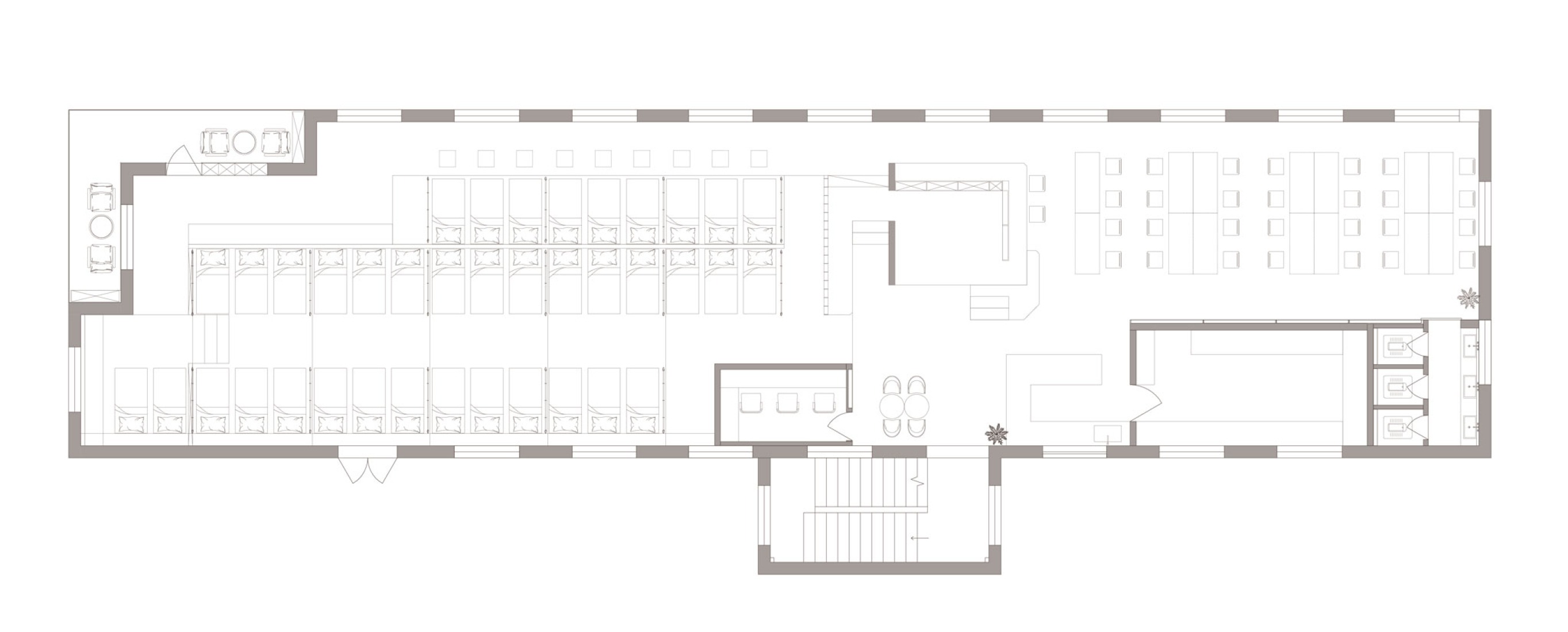
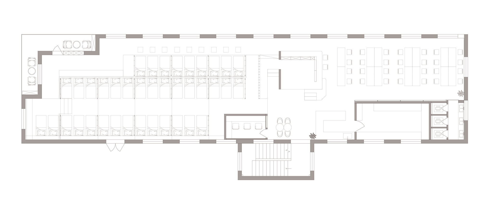
La propuesta ideada por 11-Design aprovecha las condiciones exteriores del entorno y deja que la iluminación de una calle adyacente arbolada cruce las ventanas y se filtre a través de la vegetación en el interior. La oficina y la recepción se encuentran en la entrada, mientras que la cocina y el baño se ubican en zonas más privadas y sin ventanas. En el centro del edificio se encuentran las carpas y zonas de lectura, donde los adultos pueden esperar a sus hijos.
Los materiales empleados fueron locales: madera contrachapada, lona y tubos de acero naranja. Se emplearon los mismos elementos en toda la guardería. Escaleras, estructura, escritorios y pizarras comparten materiales, siguiendo la misma lógica de construcción, que permite crear una unidad visual llena de equilibrio y cohesión. Los muebles buscan solo la funcionalidad, liberándose de sus formas tradicionales.

Guardería y centro extraescolar DEYA por 11-Design. Fotografía por Cao Rong.
Descripción del proyecto por 11-Design
«Carpas Lúdicas» — 11-Design crea una guardería infantil original en Yantai
Un entorno imaginativo construido con materiales económicos para niños de 6 a 12 años
Ubicada en Yantai, Provincia de Shandong, China, la Guardería DEYA se dedica a brindar guardería de alta calidad a niños de 6 a 12 años. Para su espacio interior de 270 metros cuadrados, DEYA encargó a 11-Design la creación de un entorno creativo y acogedor. Inspirándose en el concepto de «carpa», el equipo de diseño creó un sistema claro, rentable y lúdico que redefine la percepción de los niños sobre los espacios de aprendizaje y descanso.
Una carpa para cada niño: Un mundo personal de seguridad y pertenencia
¿Cómo puede cada niño sentir seguridad y pertenencia? En lugar de basarse en divisiones espaciales convencionales, 11-Design convirtió la “carpa” en la unidad básica del espacio. Para los diseñadores, la carpa simboliza no solo refugio, sino también libertad, exploración y diversión. Las carpas convencionales no se ajustaban bien o aprovechaban el espacio de forma ineficiente, por lo que el equipo desarrolló un sistema de carpas a medida, compuesto por estructuras metálicas naranjas, lona blanquecina, iluminación integrada y plataformas de madera, que creaban espacios íntimos y multifuncionales para leer y descansar.
«Esta es la primera sucursal de DEYA. Con pocas restricciones y siendo el propietario del inmueble, pudimos abordar el diseño con una perspectiva a largo plazo y, finalmente, cumplir nuestro sueño de crear un espacio verdaderamente lúdico para niños».
Li Xiaosi, Fundador de 11-Design.

Estructura como lenguaje: Un sistema de diseño modular y honesto
Plataformas elevadas de madera de diferentes alturas crean una distribución escalonada que permite que las carpas se extiendan por el espacio. Este diseño no solo aborda las diferencias de nivel del suelo, sino que también introduce rutas de escalada y senderos para la exploración. Los bordes de las plataformas funcionan como estanterías abiertas para facilitar el acceso, y al mediodía, se transforman en cómodas camas para la siesta: un gesto considerado hacia la multifuncionalidad.
Cada tienda está construida con componentes de acero naranja que sostienen cubiertas de lona. La lógica estructural es intuitiva y visiblemente comprensible incluso para los niños, ayudándoles a comprender cómo se construyen las cosas. La iluminación está integrada en la estructura de la tienda, lo que permite que la estructura misma cumpla funciones tanto estéticas como funcionales, reflejando la búsqueda del equipo de diseño de lo que ellos llaman una "estética de la honestidad": evitar la ornamentación superflua.

Creando experiencias enriquecedoras con materiales básicos
El proyecto utilizó únicamente materiales locales y rentables: madera contrachapada, lona y tubos de acero naranja. A pesar de estas limitaciones, el equipo colaboró estrechamente con fabricantes locales de metal a través de múltiples rondas de prototipos para lograr resultados óptimos. Elementos como escritorios, soportes para pizarras, manijas, portavasos y luces siguen los mismos materiales y la misma lógica de construcción, formando un sistema visual coherente y reconocible.
Las mesas rompen con la tradición: una tabla de madera sobre un marco se convierte en un escritorio, y un plano inclinado se transforma en un atril para libros ilustrados. Estas sutiles transformaciones animan a los niños a repensar la esencia de los objetos cotidianos, liberándolos de las formas fijas y protegiendo su creatividad innata.
«No quería que este fuera solo un lugar para hacer las tareas y la siesta. Anhelaba un espacio de lectura infantil comunitario: un lugar divertido, inspirador y lleno de imaginación».
Cao Rong, Fundador de 11-Design.

Un espacio totalmente funcional con detalles bien pensados
Ubicado en la tercera planta, el espacio da a una calle arbolada. La luz natural y la vegetación se filtran por las ventanas orientadas al oeste. Se añadieron sombras y ventilación mínimas solo donde fue necesario, preservando la belleza natural del entorno. La oficina del profesorado y la recepción se encuentran cerca de la entrada, con aberturas circulares para facilitar la supervisión. Una «caja de madera» central funciona como separador y como un acogedor rincón de lectura para los padres que esperan en el lugar. La cocina y el baño se integran en áreas sin ventanas, maximizando la eficiencia de la circulación.
En busca de lo infinito en lo limitado
Este proyecto es un estudio de diseño de alto impacto a bajo costo. Sin recurrir a materiales de lujo ni a una construcción compleja, 11-Design creó un espacio racional y cálido mediante un enfoque modular, materiales básicos y un alto grado de integración de sistemas. Cada elemento cumple una función clara, y cada detalle refleja un compromiso profundo con la idea de un espacio para niños en crecimiento.
«Nos encanta afrontar los desafíos del diseño. Incluso si las soluciones a veces son toscas o artesanales, transmiten una sensación de calidez y artesanía. Solo se necesita un poco más de paciencia».
Cao Rong, Fundador de 11-Design.