Situada estratégicamente lejos de la sombra que arroja una hilera de casuarinas, la vivienda desarrollada por GAA – Grupo abierto de arquitectura propone un volumen especialmente compacto y cerrado, coronado por una cubierta a cuatro aguas. Su carácter introvertido responde a la necesidad de resguardar la vida interior.
Para su ejecución, la casa emplea un sistema constructivo elegido previamente por los clientes. Una estructura sencilla, compuesta por bastidores metálicos, se interrumpe de manera puntual mediante una serie de ventanas que vinculan los espacios interiores con la vegetación y el paisaje circundante.

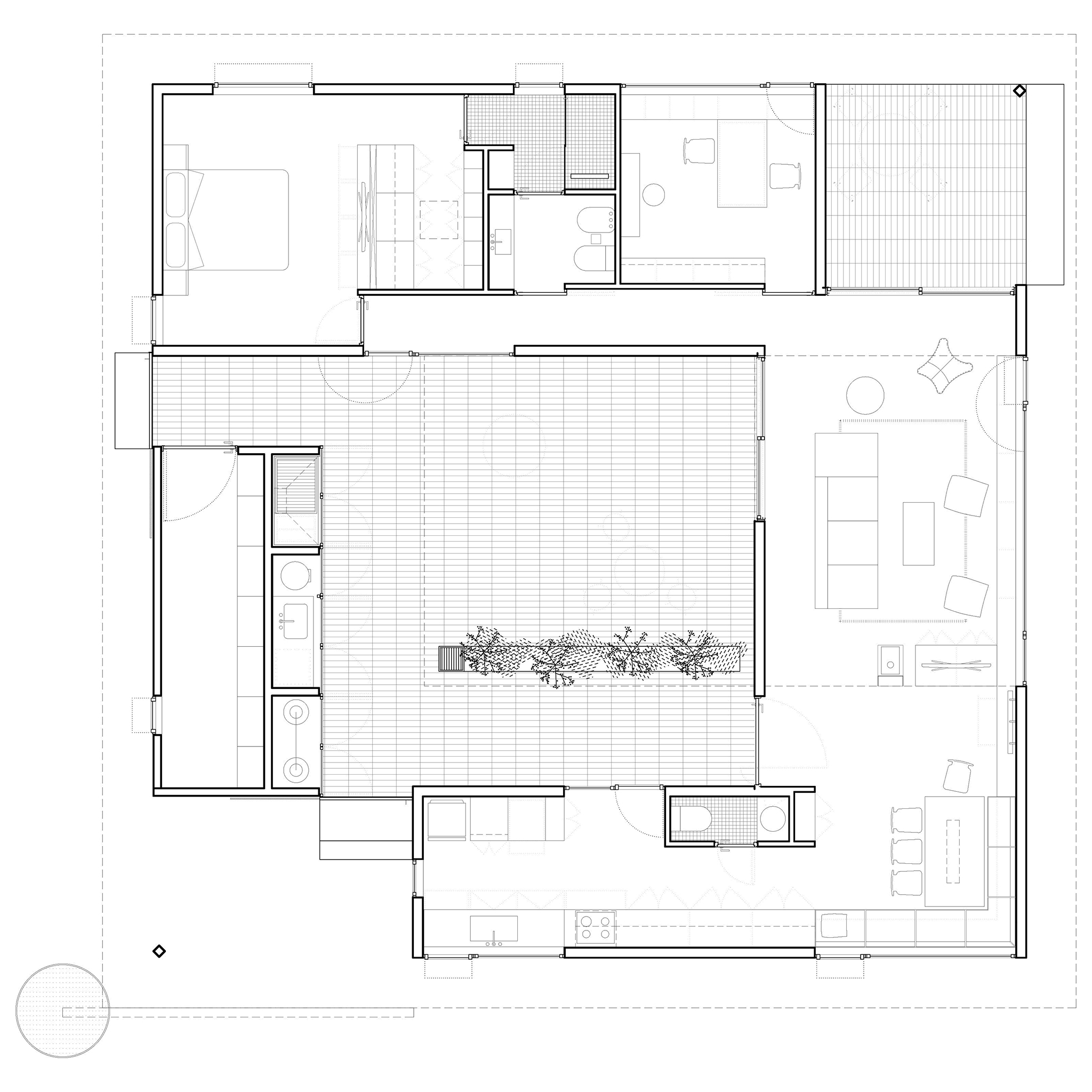
«Las Casuarinas» por GAA – Grupo abierto de Arquitectura. Fotografía por Ezequiel Spinelli.
Descripción del proyecto por GAA – Grupo abierto de arquitectura
Una joven pareja que encuentra un terreno en las afueras de la ciudad nos convoca. Nos cuentan su decisión de abandonar la vida urbana para vivir en el campo. Les proponemos un patio, una casa patio, que les garantice la privacidad que buscan, y el resguardo necesario en medio del lote.
Este atrio no solo otorga la protección buscada, sino que organiza el acceso y los espacios interiores de la casa. Ubicada lejos de la sombra que arroja una hilera de casuarinas y en el eje del lote, su silueta y una serie de futuras ampliaciones garantizan el éxito de esta organización en planta de esquema cerrado.
Estructuralmente la vivienda se resuelve como una simple estructura de bastidores metálicos, sistema constructivo elegido previamente por los clientes. Sobre estas paredes estructurales, las ventanas enmarcan las visuales en relación al uso interior y a los árboles circundantes.