La propuesta de Triptyque genera un edificio elegante y esbelto, tomando la estructura como principio compositivo al apoyarse en una retícula estructural de hormigón que caracteriza el proyecto. Esta estructura, que impregna la envolvente exterior, genera una imagen singular en el paisaje urbano que la rodea. Además, al situar los elementos portantes en la periferia, la retícula estructural libera los espacios interiores, permitiendo que cada planta se ocupe de forma libre, flexible y reprogramable.
La estructura facilita la creación de jardines en todas las plantas, que dan la sensación, a su vez, de ser un conjunto vertical de jardines colgantes, lo que otorga a la torre una dimensión cambiante y dinámica. La parte superior traslada la coherencia formal vertical al plano horizontal, generando una retícula entre la que emerge un pequeño bosque que conecta la arquitectura con el horizonte.

Inspira SP por Triptyque. Fotografía por Maíra Acayaba.
Descripción del proyecto por Triptyque Architecture
El edificio Inspira SP, ubicado en la zona de la Avenida Paulista, surge como una respuesta contemporánea a un contexto urbano consolidado, marcado por la intensidad cultural y corporativa de São Paulo.
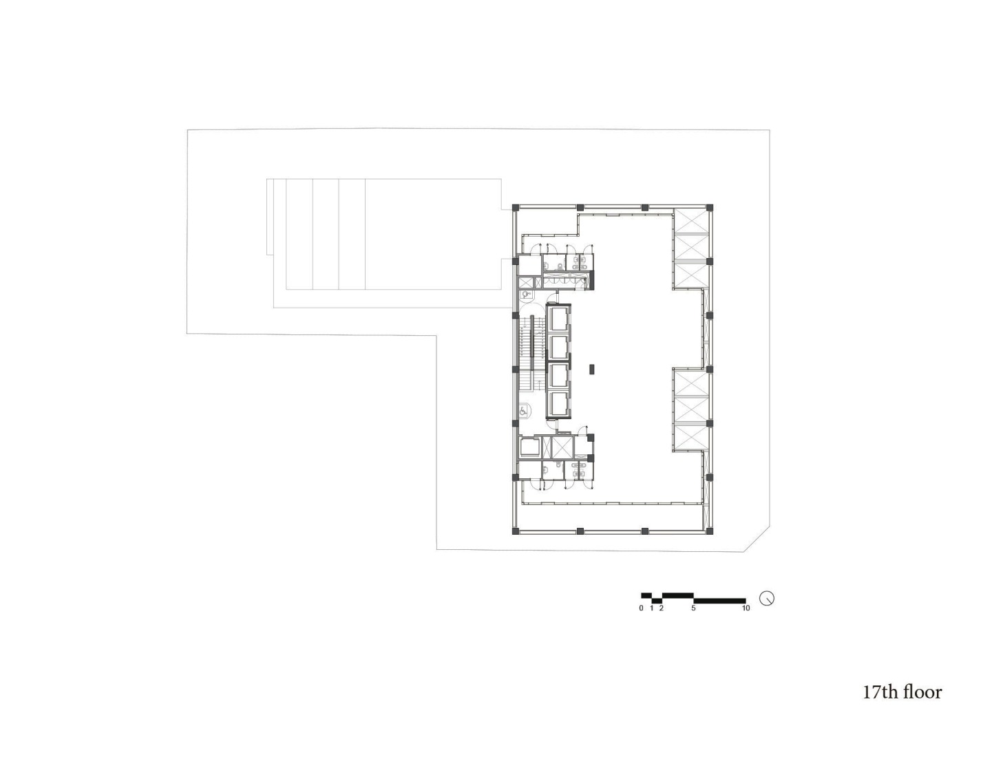
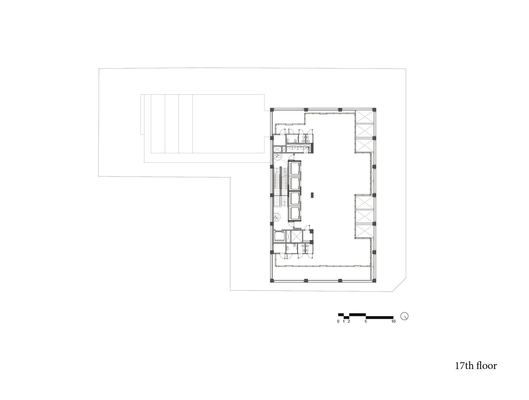
La estructura como principio
La torre está proyectada con base en una retícula estructural periférica de hormigón, característica principal del proyecto. Esta estructura permanente, estable y potente aborda la ciudad como el primer orden arquitectónico, afirmando su presencia en el paisaje urbano.
Espacios libres y reprogramables
Al desplazar los elementos portantes a la periferia, la retícula estructural libera los espacios interiores, permitiendo que cada planta se ocupe de forma libre, flexible y reprogramable. Esta condición garantiza la longevidad del uso y la adaptabilidad a diferentes programas a lo largo del tiempo.
Infraestructura vegetal
Más que un simple edificio, Inspira se convierte en una infraestructura verde. Un sistema continuo de jardineras, integrado en la estructura de hormigón, permite que la vegetación colonice y contradiga la geometría autoritaria del edificio.
Entre lo neutro y lo artificial, la vegetación se extiende, recompone el bioma autóctono y otorga a la torre una dimensión cambiante y dinámica. El edificio se convierte así en un soporte activo para un paisaje cambiante, introduciendo nuevas capas de uso, percepción y disfrute.
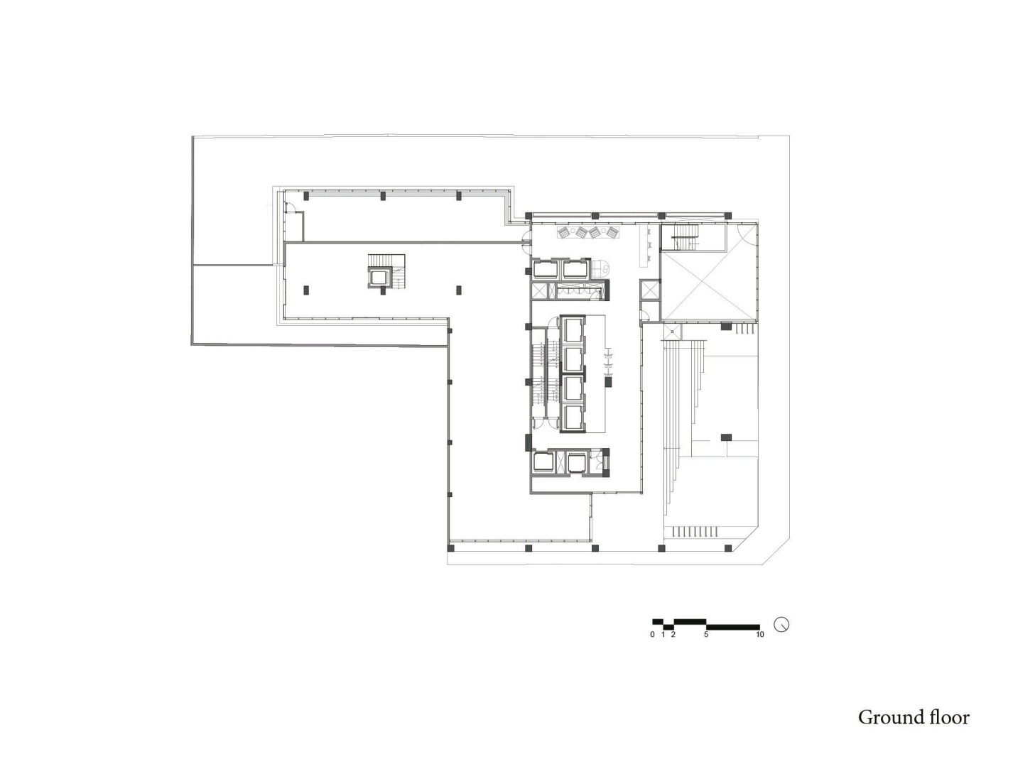
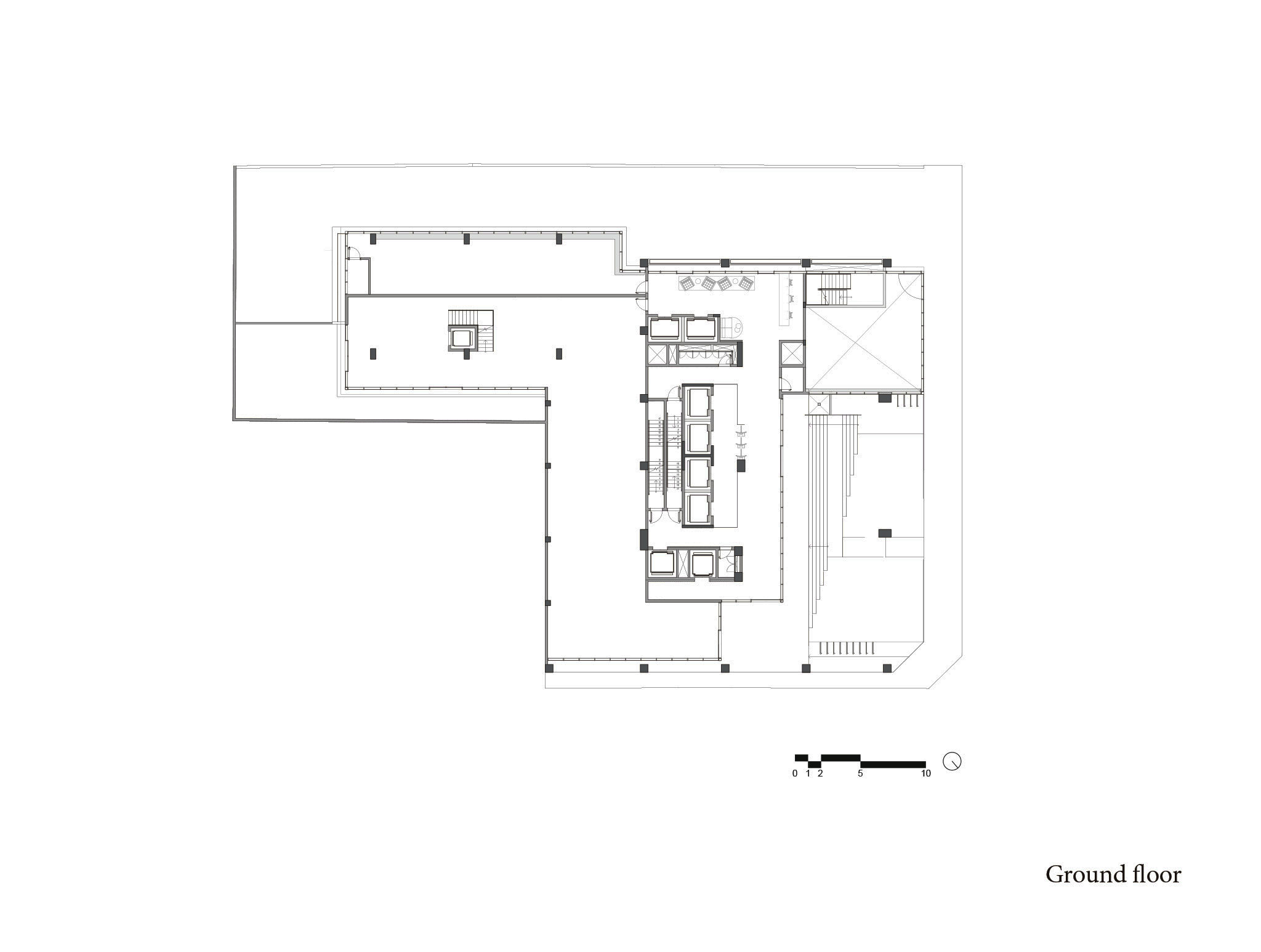
En relación con la ciudad
El edificio establece una delicada relación con el suelo y el cielo, entendidos como los extremos diluidos de su sistema constructivo. En la planta baja, la torre se abre a la ciudad a través de una tribuna pública y un exuberante jardín, disolviendo la frontera entre el edificio y el espacio urbano.
En la parte superior, la retícula estructural se pliega horizontalmente, completando el gesto arquitectónico y sirviendo al edificio a la perfección. En este plano elevado, un pequeño bosque conecta la arquitectura con el horizonte, transformando la cubierta en una extensión continua de vegetación. Así, Inspira se presenta como un edificio elegante y esbelto, pero siempre en diálogo con las dos dimensiones que lo anclan: la vida colectiva en el suelo y la inmensidad abierta del cielo.