Organizado en tres franjas longitudinales, el corazón del proyecto desarrollado por BOS Arquitectes aloja un patio central que actúa como el eje de articulación del edificio. A través de un sistema de circulación perimetral continuo, las diferentes estancias entablan un estrecho contacto visual con el exterior.
Como premisa constructiva, la propuesta apuesta por la honestidad de los materiales: estructuras expuestas, texturas y materiales naturales, sin agregados innecesarios, convierte el espacio en un espacio educativo acogedor e interactivo. La cubierta emplea un acabado cerámico vidriado de tono amarillo-ocre, integrándose con naturalidad en el color arena del marés y el amarillo de las tejas de barro que dominan el entorno.

Escoleta infantil de Muro por BOS Arquitectes. Fotografía por Del Rio Bani.
Descripción del proyecto por BOS Arquitectes
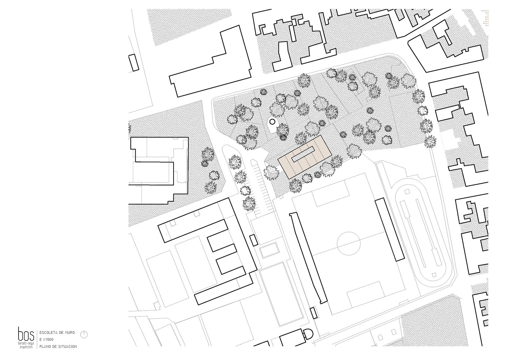
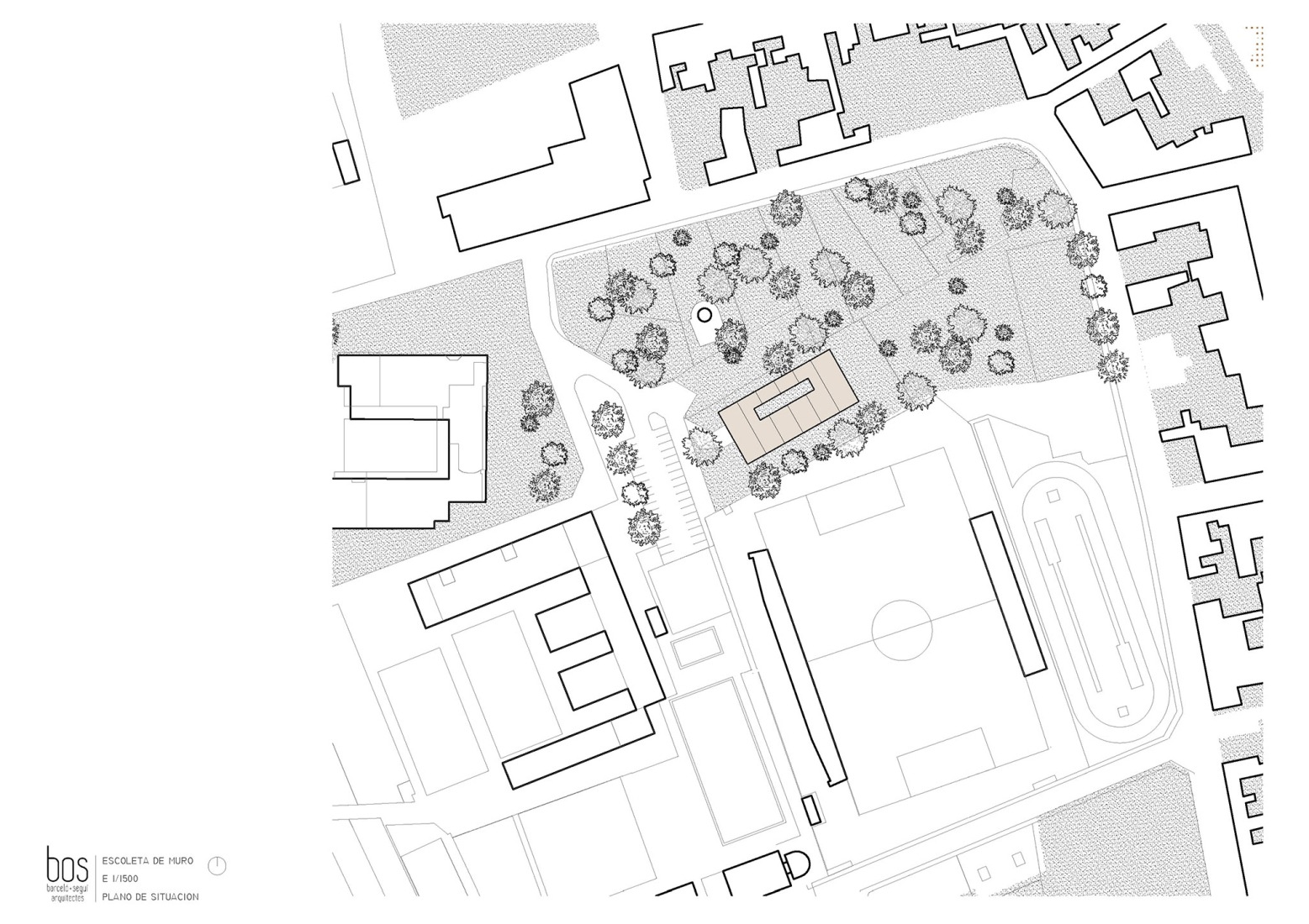
La escoleta infantil de Muro, en Mallorca, se sitúa en la zona elevada de un territorio de transición entre el tejido urbano y los campos de cultivo. En su entorno próximo se reconocen hitos del paisaje y de la vida colectiva, como un antiguo molino de piedra de marés, las gradas del campo de fútbol y el perfil urbano edificado. Desde su posición el solar permite una amplia visión del lugar y de sus principales referentes, como la iglesia de Sant Joan Baptista y el Convento de Santa Anna.
En este contexto, el edificio se plantea en una sola planta y no busca elevarse ni imponerse. Su cubierta, observable desde distintos puntos del paisaje, se diseña como una sucesión de bóvedas de baja altura que dibujan una silueta ondulada y continua en el horizonte. Su forma envolvente es visible pero recogida, pensada para esconderse en el paisaje y proteger el espacio interior.
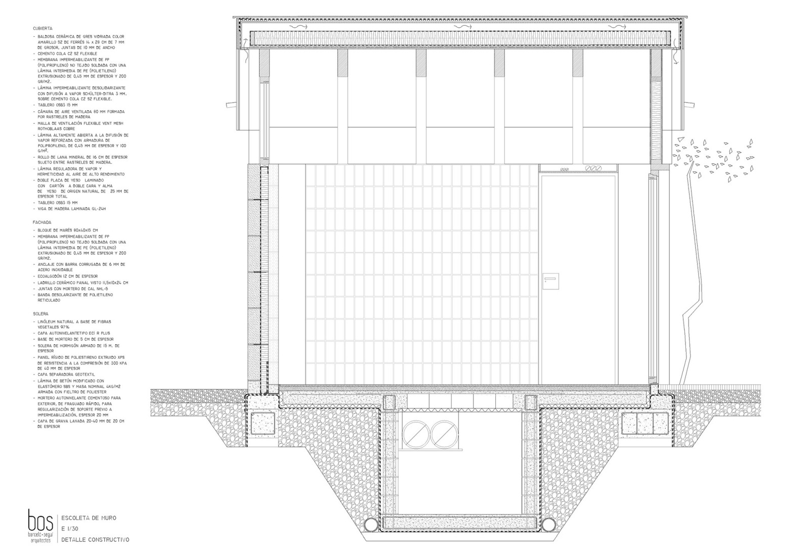
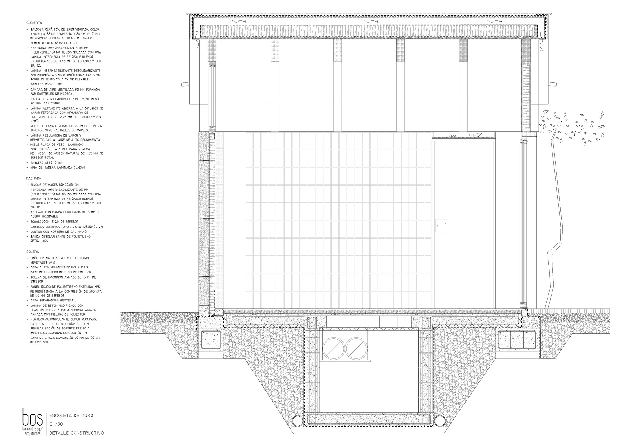
La cubierta se resuelve con un acabado cerámico vidriado de tono amarillo-ocre, deliberadamente sobrio y en sintonía con el cromatismo del entorno vinculado al uso del marés de color arena y de las tejas de barro amarillas.
El volumen de geometría compacta, concebido desde una estrategia pasiva para reducir la demanda energética del edificio, organiza el conjunto. Por el lado del acceso define una plaza de carácter público; por los otros, delimita los ámbitos más reservados que conforman los espacios de la escuela infantil: los patios de las aulas orientados al sur, el patio común al este y la franja de servicios situada en el lado norte.
Un patio central favorece la ventilación cruzada y la entrada de luz natural. Este vacío genera un nuevo espacio educativo que siendo exterior está protegido del viento. Su visión desde todas las estancias ayuda a la vigilancia y control de los niños.
El control solar se optimiza mediante el porche de las aulas y la incorporación de vegetación en el patio. La ventilación cruzada se prevé tanto en planta como en sección, favorecida por grandes huecos en los frentes orientados al sur y por aberturas más pequeñas y altas en la fachada norte.
La construcción adopta una sucesión de bóvedas que evocan la protección primigenia del refugio a través de su forma cóncava. Su sistema estructural que se organiza mediante la repetición en cada crujía de un perfil curvo de vigas de madera laminada. El edificio queda modulado en seis crujías, cada una de siete metros de anchura. Estas vigas resuelven de forma natural la pendiente de la cubierta. La cubierta cerámica pone en valor el recorrido del agua de lluvia. Del mismo modo que la fachada guía la entrada de la luz, la cubierta forma el itinerario del agua, de manera que la lluvia deja de ser un simple residuo.
Esta configuración espacial da lugar a un interior cálido y recogido, generando un ambiente amable para la primera infancia; un lugar que acoge, protege y transmite calma.
El edificio se organiza en tres franjas longitudinales. Un patio central actúa como el corazón del edificio, organizando las estancias con una circulación continua a su alrededor. Éste no solo acoge a niños, sino que también les educa. La sinceridad constructiva, basada en mostrar estructuras, texturas y materiales naturales, sin revestimientos superfluos ni capas aditivas, convierte el espacio en un soporte didáctico. La materia se hace legible y tangible: aquello que los niños ven y tocan les explica cómo está construido.
Se reduce el impacto sobre los recursos naturales empleándose materiales de baja huella ambiental tanto en la fase de ejecución como a lo largo de la vida útil del edificio, priorizando sistemas constructivos eficientes, materiales de ciclo controlado y estrategias pasivas.
La masa térmica se concentra en los elementos en contacto con el terreno, mediante soleras de hormigón, muros de piedra y fábricas de ladrillo. La cubierta, más expuesta a la radiación solar, se resuelve como un sistema ligero de baja inercia térmica y ventilado, cuyo acabado cerámico de color claro reduce la absorción solar en verano.El edificio se apoya en un conjunto de sistemas activos que refuerzan su funcionamiento eficiente y reducen su impacto ambiental.
La arquitectura se fundamenta en cuatro principios: una respuesta climática ajustada al entorno, alta eficiencia energética mediante estrategias pasivas, el uso de materiales naturales, locales y de baja huella ambiental, y una tecnología eficiente que acompaña al edificio sin imponerse.
El resultado es un edificio amable y acogedor, donde forma, construcción y uso se combinan de manera natural, dando lugar a un espacio comprensible y habitable, que quiere incorporarse de forma respetuosa en el paisaje.