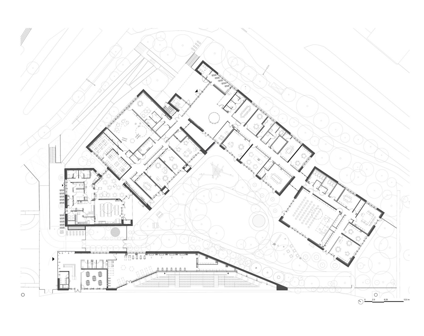
El proyecto planteado por HEMAA Architectes se adapta a la topografía, organizándose en cinco unidades —guardería, primaria, centro infantil, cafetería y tribuna deportiva— alrededor de un patio ajardinado y conectadas por pasillos acristalados que facilitan la entrada de la luz y la relación con el entorno. La arquitectura, construida con tapial portante y madera, prolonga la escuela hacia el parque mediante senderos entre árboles, creando un jardín infantil inspirado en el Waldkindergarten, donde el aprendizaje es lúdico y vinculado a la naturaleza.
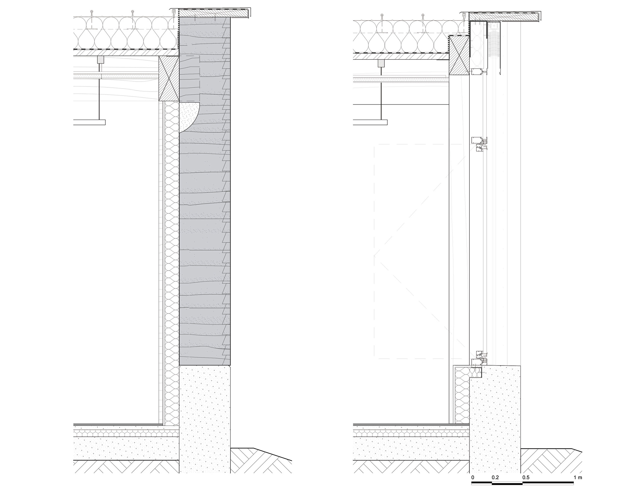
El enfoque ambiental es riguroso: las fachadas de tapial reutilizan tierra procedente del metro de Grand Paris, las cubiertas verdes mejoran el confort y la gestión del agua, y la orientación y los elementos pasivos regulan la luz y la ventilación. La vegetación y los materiales biosurados reducen la isla de calor y fomentan la biodiversidad. La combinación de madera, tierra y hormigón bajo en carbono genera un entorno cálido, táctil y adecuado para la infancia.
El complejo deportivo prolonga este lenguaje arquitectónico, con una tribuna de 300 asientos y una cubierta en suave pendiente que preserva la luz y las vistas, consolidando un espacio público compartido y abierto en el corazón de la ciudad.

Centro Infantil y Deportivo Parc des Loges por Hemaa Architectes. Fotografía por Sergio Grazia.

Centro Infantil y Deportivo Parc des Loges por Hemaa Architectes. Fotografía por Sergio Grazia.
Descripción del proyecto por HEMAA Architectes
Una arquitectura con raíces profundas
Perfectamente integrado en la topografía natural del terreno, el proyecto sigue la pendiente sin alteraciones artificiales. Cinco unidades —guardería, escuela primaria, centro de cuidado infantil, cafetería y tribuna deportiva— se organizan alrededor de un patio central ajardinado, resguardado de la calle pero abierto al paisaje. Conectados por delicados pasillos acristalados, estos volúmenes autónomos fomentan la luz natural, las conexiones visuales y la relación con el entorno. Como alegoría de los materiales que componen el parque del albergue, las fachadas son de tapial portante y la estructura interior es íntegramente de madera.
Los senderos serpentean entre los árboles recién plantados, extendiendo la escuela de forma natural hacia el parque. El jardín infantil se convierte en un bosque domesticado, plantado con robles, fresnos, arces y olmos, y salpicado por un claro que invita al juego libre. Inspirado en la filosofía del Waldkindergarten, el proyecto ofrece una visión lúdica e inmersiva del aprendizaje, profundamente arraigada en la naturaleza y el mundo vivo.
Materiales de sobriedad
Todo el proyecto sigue un exigente enfoque ambiental. Los 665 m³ de tierra portante utilizados para las fachadas, equivalentes a 1330 m² de muros de 50 cm de espesor, se obtuvieron de las excavaciones del túnel del metro de Grand Paris. Aisladas con lana de cáñamo, estas paredes conservan la transpirabilidad natural del tapial. Las cubiertas verdes (15-20 cm de sustrato) mejoran el confort térmico y favorecen la gestión natural del agua. Los parasoles ajustables y los profundos aleros regulan la luz solar de forma natural. La orientación del edificio capta la luz invernal y favorece la ventilación natural en verano. La abundante y diversa vegetación limita el efecto isla de calor urbano y fortalece la biodiversidad local.
La madera y el tapial crean una arquitectura suave y arraigada con formas geométricas sencillas. En esta comunidad obrera, donde muchos niños no salen de la ciudad durante las vacaciones escolares, el centro infantil se concibe como un lugar de aprendizaje y un espacio de esparcimiento. La tierra apisonada, un material vivo y transpirable, invita al tacto y ofrece un entorno único para los niños que crecen en una ciudad construida principalmente de hormigón. La madera, cálida y táctil, define los interiores y la estructura. En la base, el hormigón texturizado bajo en carbono, salpicado de paneles vidriados a la altura de los niños (60 cm), combina robustez, luz natural e intimidad.
Un espacio compartido
El complejo deportivo extiende de forma natural este lenguaje arquitectónico. Su tribuna de 300 asientos, perfectamente orientada, garantiza una comodidad visual óptima. Su cubierta, de suave pendiente, desciende hacia la zona de ocio, preservando la luz y las vistas de los patios. Integrado en el conjunto, refuerza la idea de un espacio público compartido, intergeneracional y abierto en el corazón de la ciudad.