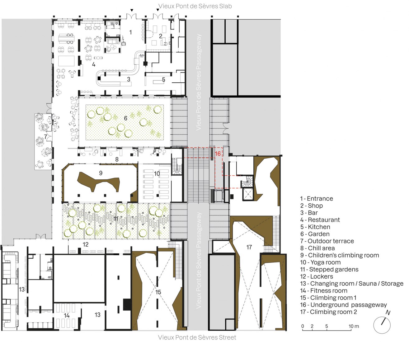
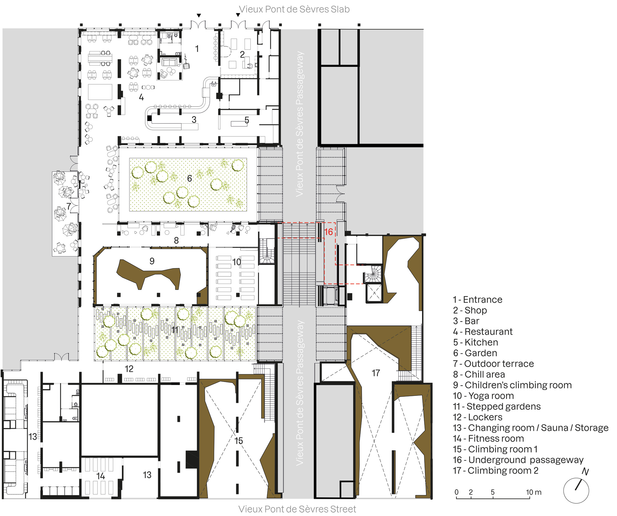
Through the recovery of spaces and the renovation of the infrastructure, the "Passage du Vieux Pont de Sèvres" becomes the heart of the neighborhood. The atypical configuration of the space includes two stepped gardens, one next to the other on one side of the passage, creating true spaces for rest and contemplation.

Restructuring of the Vieux Pont de Sèvres public passageways and climbing complex by Atelier du Pont. Photograph by Frédéric Delangle.
Description of project by Atelier du Pont
Built in the 1970s, the Pont de Sèvres is a classic concrete slab-built neighbourhood dating back to the end of the Glorious Thirties and characterised by its high level of density. Classified as a “ZUS” Sensitive Urban Area in 1996, the plan to redevelop the neighbourhood began in 2008. Priority was given to renovating the public space, specifically the Vieux Pont de Sèvres and Aquitaine passageways.
Mixing architecture, urban development, and infrastructure, the new “Passage du Vieux Pont de Sèvres” and “Passage Aquitaine” reconnect the historic concrete slab construction to the newly redeveloped Trapèze neighbourhood. The goal of this project was to carve out a public passageway from a former open-air parking structure and through the concrete to rediscover natural light – practically a Gordon Matta Clark!
Decorated with terrazzo and polished concrete, the luminous “Passage du Vieux Pont de Sèvres” now provides people passing through with a path that is fluid, pleasant, and secure.
Since the summer of 2021, an indoor climbing area, a restaurant, and several shops welcome the passageway and create the social bonds between the two neighbourhoods connected by the passageway.
The 1,800 m² complex includes climbing walls for adults and children, fitness and yoga areas, a bar, a restaurant, and a shop. Creating an athletics facility in the heart of a rapidly transforming neighbourhood is a significant act that draws residents together and firmly anchors the project within the city.