El jurado señaló como elemento diferenciador en la propuesta de Magén Arquitectos el atrio central, ideado como un gran espacio común de encuentro e interacción, construido con una estructura de madera, en el que la luz natural entra gradualmente gracias a una sección escalonada. También fue valorado el tratamiento del acceso, que enmarca y acentúa la entrada al edificio.
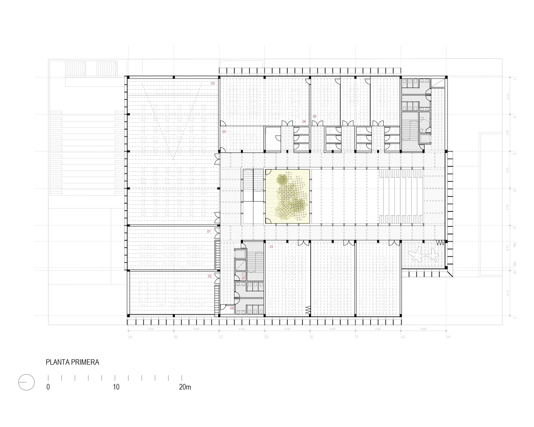
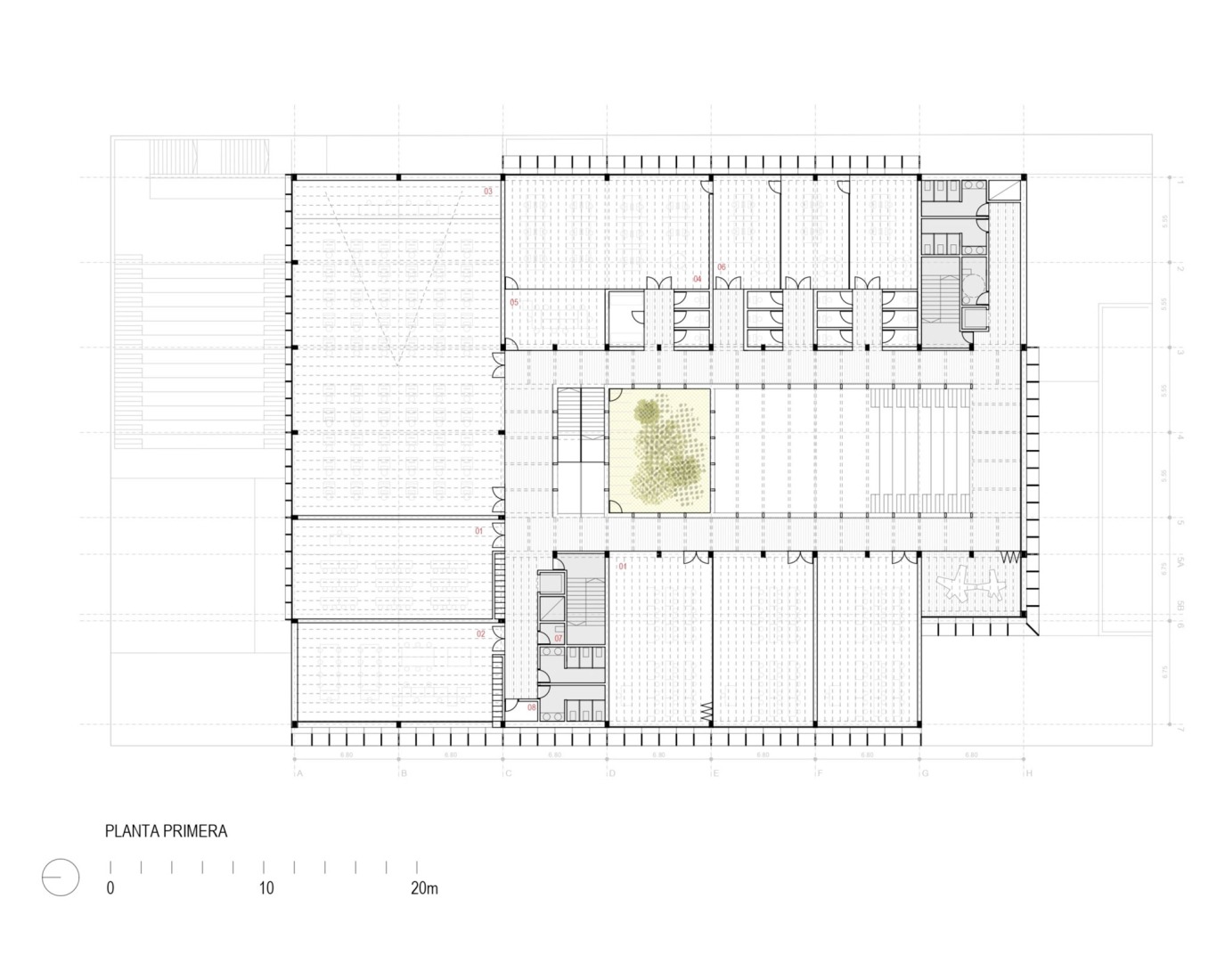
La propuesta muestra una clara organización del programa, de manera eficiente y flexible, articulando una crujía perimetral que envuelve un amplio espacio central a modo de ágora interior. Este núcleo es planteado por los arquitectos como un atrio-patio escalonado que enlaza diagonalmente los distintos niveles del edificio y permite vistas directas hacia las cubiertas ajardinadas.

"Ágora Verde" por Magén Arquitectos. Visualización por Bigshots.
El edificio contará con un programa funcional en le que se implementará tecnología de vanguardia, laboratorios de robótica y fabricación aditiva para impresión 3D, una sala inmersiva con realidad virtual y mixta, un aula de gaming orientada al diseño de videojuegos, talleres de hardware y electrónica, un centro de datos compacto, además de catorce aulas, doce cabinas individuales de videoconferencia para formación virtual. Asimismo, se incorporan tres viveros de empresas y un área de coworking.
Estas nuevas instalaciones permitirán el traslado del actual centro de Formación Profesional digital, que en la actualidad se encuentra ubicado en el pabellón de Aragón de la Expo 92.