Nottingham Contemporary fue diseñado por los arquitectos Caruso St John, con oficina en el London’s East End. Después de la tormenta olímpica creemos que este proyecto no fue suficientemente valorado, por lo que creemos que merece una revisión.

Los arquitectos, Caruso y St. John, fueron seleccionados para diseñar el nuevo Centro de Nottingham dedicado el arte contemporáneo, a través de un concurso internacional realizado en 2004.

Los autores definen el origen de la ideas de su proyecto habiendo tomado como referencia los siguientes parametros: por un lado el arte visual como objetivo fundamental y el arte basado en la respresentación del tiempo, tiene sus orígenes en los espacios de artistas del barrio del "Down town" de Nueva York hacia finales de la década de 1960, (e.g. Nueva York basicámente en los años 70 o Berlín en los años 90 del siglo XX) y en el trabajo de artistas como Gordon Matta Clark y Trisha Brown, cuyo trabajo estaba comprometido directamente con los espacios de la ciudad. El emplazamiento del nuevo edificio se encuentra en una zona del centro de Nottingham llamada "Lace Market", cuya historia y la forma de su construcción tienen paralelismos con el distrito de "hierro fundido" de Nueva York, que permitirá que el Centro recupere su conexión cultural perdida. En el diseño, nos propusimos ofrecer una amplia gama de interiores que respondiesen a la variedad y especificidad de los espacios de una fábrica o almacén, dentro de un nuevo edificio: salas que pondrán a prueba la instalación y producción de arte contemporáneo ofreciendo nuevas maneras de que los artistas y el público interactuen.

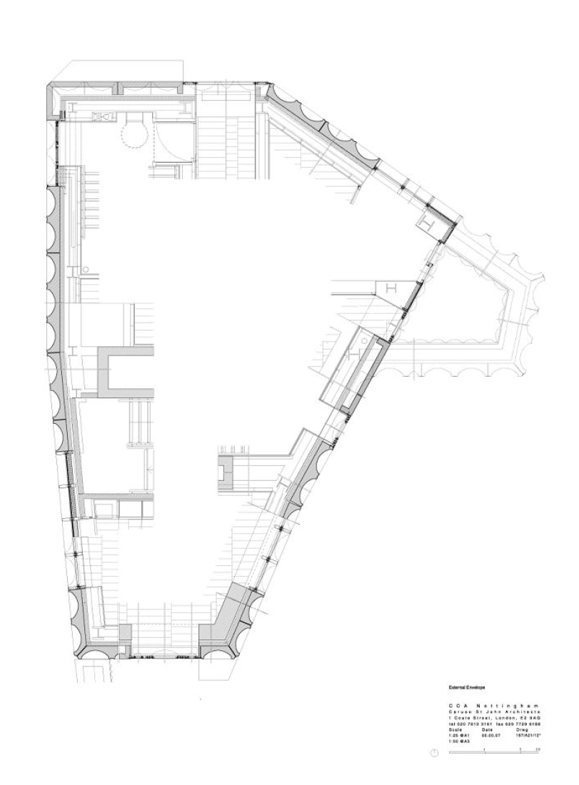
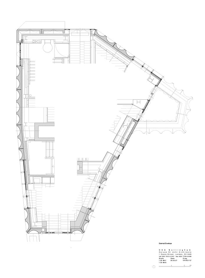
El exterior del Centro se inspira en los increíbles edificios del siglo 19 de Nottingham, y en particular, de las fachadas impresionantes del Lace Market.

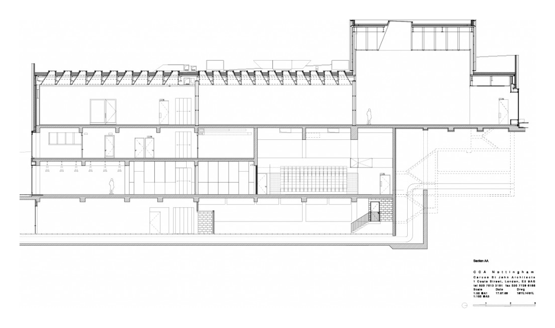
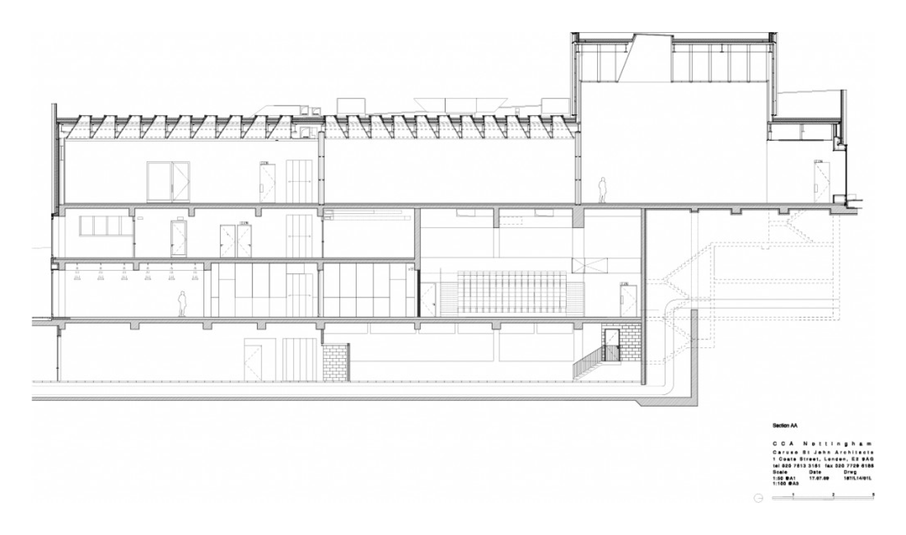
Con unos 3.000 metros cuadrados, Nottingham Contemporary es uno de los mayores centros de arte contemporáneo en el Reino Unido. Cuenta con cuatro galerías - iluminadas por 132 lucernarios - un espacio de actuación y cine, una sala de aprendizaje, el estudio, la tienda y Café.Bar.Contemporary. El edificio parece más grande por dentro que por fuera, ya que gran parte de su extremo norte se hunde en la roca arenisca que corre a lo largo del centro de la ciudad. Al mismo tiempo, es un edificio muy abierto: grandes ventanales ofrecen vistas directas desde la calle a la galería, tienda, cafetería y oficinas.

CRÉDITOS

Arquitecto.- Caruso St John Architects / Adam Caruso, Peter St John.
Colaboradores.- Mouchel, Jackson Coles , Jackson Coles , Tim Lewers , David Bonnet Associates , Arup , Jackson Coles , Arup , Arup , Arup, Elliot Wood (trabajos externos) , John Angus, University of Derby, Textile Studios (trabajos de desarrollo), Matthew Brannon, Pablo Bronstein, Nathan Coley, Sarah De Bondt, Mark Gubb.

Project Manager: Segue Consultancy. Ingeniero Civil: Ove Arup & Partners. Estructuras: Ove Arup & Partners, Elliottwood Partnership. Aparejador: Jackson Coles. Accesos consultoría: David Bonnet Associates. Consultor acústico: Tim Lewers. Artists: Matthew Brannon, Pablo Bronstein, Nathan Coley. Diseño Gráfico: Sara De Bondt. Consultor de Teatro: Charcoalblue. Arqueología: Mills Whipp Projects. Supervisor: Tower Surveys.

Localización.- Nottingham Contemporary, Weekday Cross. Nottingham NG1 2GB. Nottingham, UK.
Cliente.- Nottingham City Council.
Contratista principal.- Sol Construction

Superficie bruta interior.- 3,400 m²
Coste total.-  12.3 milliones de £
Coste por m² £3,620£
Annual CO2 emissions 58kg/m²
Area: 3,500m²
Project Status.- Built.
Dates.- 2004–2009. Opening.- 2010.

Premios.-

  • 2010 Ganador del RIBA Award.
  • 2011 Proyecto seleccionado en los European Union Prize for Contemporary Architecture Mies van der Rohe Award.
Leer más
Contraer

Más información

Caruso St John Architects se fundó en 1990. La oficina de aproximadamente 30 trabajos es un estudio abierto en una fábrica al este de Londres de 1930 que la oficina ha transforamdo en su propio estudio. En 2010 una segunda oficina fue inaugurada en Zurich.

Adam Caruso estudió arquitectura en la Universidad McGill de Montreal. Trabajó para Florian Beigel y Arup Associates antes de establecer su propia oficina con Peter St John en 1990.

Enseñó en la Universidad del Norte de Londres de 1990-2000, y fue profesor de arquitectura en la Universidad de Bath desde 2002-2005. Ha sido profesor visitante en la Academia de Arquitectura de Mendrisio, en la Graduate School of Design de la Universidad de Harvard, en la ETH Zurich, y en el Programa de Ciudades en la Escuela de Economía de Londres. En 2011 Adam Caruso fue nombrado profesor de Arquitectura y Construcción de la ETH Zurich.

Peter St John comenzó sus estudios de arquitectura en la Escuela Bartlett de Arquitectura de la Universidad College de Londres, completandolos en la Architectural Association en 1984. Trabajó para Richard Rogers, Florian Beigel, Jones Dixon, y Arup Associates antes de establecer su propia oficina con Adam Caruso.

Peter enseñó en la Universidad del Norte de Londres de 1990-2000. Ha sido profesor visitante en la Academia de Arquitectura de Mendrisio, Suiza, del 1999-2001, y profesor visitante en el Departamento de Arquitectura e Ingeniería Civil de la Universidad de Bath desde 2001-2004. En 2005 él era un crítico invitado en la Graduate School of Design de la Universidad de Harvard. De 2007 a 2009 fue profesor visitante en la ETH de Zurich. En la actualidad es un examinador externo en la Escuela de Arquitectura de Scott Sutherland en Aberdeen y Cardiff School of Architecture.

Rod Heyes estudió arquitectura en la Universidad de Cambridge y la Universidad del Norte de Londres (ahora Universidad Metropolitana de Londres). Se unió a Caruso St John en 1998 y fue nombrado asociado principal en 2005. Desempeña un papel importante en la gestión de la práctica, que trata específicamente con recursos y programación. Él fue el arquitecto del proyecto para la Casa de ladrillo, la remodelación de la Sala Barbican Concert, Spike Island en Bristol y Chiswick House Cafe. Vara está actualmente liderando el trabajo de la práctica en la Tate Britain. Ha sido profesor de arquitectura en la Universidad de Bath y en la London Metropolitan University y ha llevado a la Unidad 4 Diploma de la Universidad de Kingston en los últimos tres años. Ha dictado numerosas conferencias en el Reino Unido, incluyendo Plymouth Univeristy, la Univerity de Greenwich y la Universidad de Edimburgo.

www.carusostjohn.com

Dirección:

Londres
1 Coate Street
London E2 9AG
+44 20 7613 3161

Zürich
Räffelstrasse 32
8045 Zürich
+41 44 454 80 90

Act.>. 01/2013 - 06/2016

Leer más
Publicado en: 29 de Enero de 2013
Cita:
metalocus, JOSÉ JUAN BARBA
"Nottingham Contemporary por Caruso St John Architects" METALOCUS. Accedido el
<https://www.metalocus.es/es/noticias/nottingham-contemporary-por-caruso-st-john-architects> ISSN 1139-6415
Loading content ...
Loading content ...
Loading content ...
Loading content ...
Loading content ...
Loading content ...
Loading content ...
Loading content ...
Loading content ...
Loading content ...
Loading content ...
Loading content ...
Loading content ...
Loading content ...
Loading content ...
Loading content ...
Loading content ...
Loading content ...
Loading content ...
Loading content ...
Loading content ...
Loading content ...
Loading content ...
Loading content ...
Loading content ...
Loading content ...
Loading content ...
Loading content ...
Loading content ...
Loading content ...
Loading content ...
Loading content ...
Loading content ...
Loading content ...
Loading content ...
Loading content ...
Loading content ...
Loading content ...
Loading content ...
Loading content ...
Loading content ...
Loading content ...
Loading content ...
Loading content ...
Loading content ...
Loading content ...
Loading content ...
Loading content ...
Loading content ...
Loading content ...
Loading content ...
Loading content ...
Loading content ...
Loading content ...