
La Casa Auseva llevada a cabo por el equipo de Graus establece una cuidadosa relación con el cielo. La apertura hacia la bóveda celeste es estratégicamente modulada, entendiendo la luz natural como un elemento más del proyecto, que refuerza la calidad atmosférica de los ambientes interiores.
Adicionalmente, una secuencia de techos inclinados y dobles alturas enriquece la volumetría de la vivienda potenciando, a la vez, la sensación de apertura desde el interior. La simplicidad espacial, la claridad de los materiales elegidos y el continuo vínculo con el entorno natural dan como resultado una arquitectura sobria y atemporal que se desprende de lo ornamental en pos de lo fundamental.

Casa Auseva por Graus. Fotografía por Jaime Navarro.
Descripción del proyecto por Graus
Ubicada en la zona sur de la Ciudad de México, esta residencia parte de una premisa clara: depurar lo innecesario para revelar una arquitectura de orden, luz y contemplación. La propuesta responde a una búsqueda rigurosa de pureza geométrica y honestidad material, donde cada decisión proyectual se articula desde la simplicidad formal y la sensibilidad espacial.
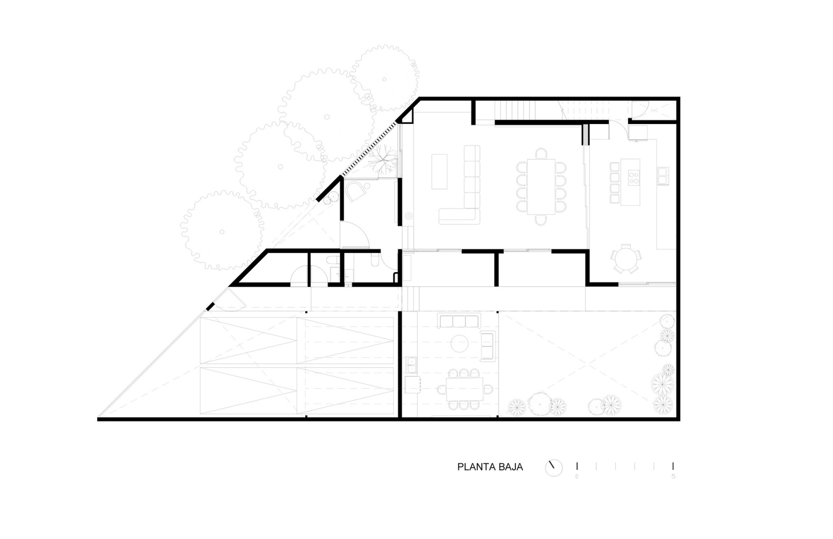
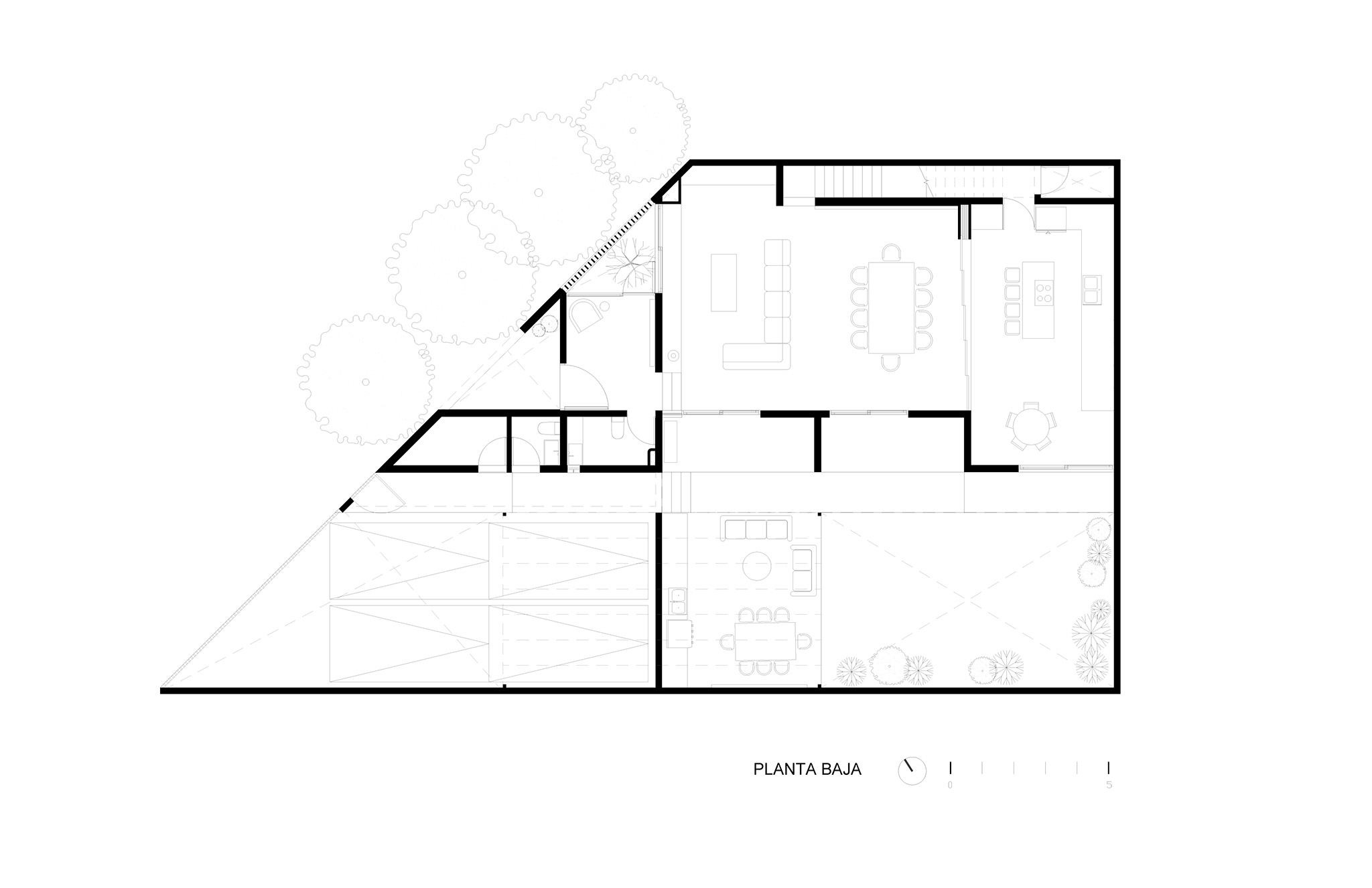
Lejos de imponerse al terreno, la casa se asienta en el centro del predio, permitiendo que los espacios exteriores funcionen como transiciones vivas entre los distintos núcleos habitables. Esta disposición refuerza un equilibrio entre autonomía funcional e integración paisajística, generando un continuo entre interior y exterior que amplía la experiencia doméstica.

Uno de los ejes conceptuales del proyecto es la relación cuidadosamente modulada con el cielo. Cada ambiente establece una intensidad específica de apertura hacia lo celeste: franca en las zonas sociales, más contenida en los espacios íntimos, siempre mediada por la luz natural como herramienta compositiva y atmosférica. Esta lectura se traduce en gestos precisos, como el acceso principal, concebido como un vestíbulo a cielo abierto que enmarca la bóveda celeste y convierte la llegada en un ritual determinado por la hora, el clima y la estación.
El sistema de escaleras principales se plantea como una secuencia dinámica, donde la luz incide de forma cambiante sobre los planos arquitectónicos, provocando una percepción activa del recorrido. En el remate visual, una escultura se posiciona estratégicamente para dialogar con el movimiento del usuario y subrayar la dimensión sensorial del ascenso.

En las habitaciones secundarias, techos inclinados y dobles alturas enriquecen la volumetría interior, mientras tapancos suspendidos abren posibilidades lúdicas y funcionales. La recámara principal, por su parte, se eleva con un gesto similar: un techo a dos aguas enmarca el cielo desde una ventana alta, amplificando la sensación de apertura y reforzando la conexión íntima con el entorno natural.
La elección de materiales —contenida, duradera, esencial— subraya la voluntad de atemporalidad y sobriedad. La claridad en la organización espacial y la relación constante con la luz natural definen una arquitectura que prescinde del ornamento y privilegia lo fundamental: habitar el tiempo, el espacio y el paisaje.