
Ubicado entre las cuatro torres residenciales que conforman el espacio central del conjunto, el proyecto de viviendas desarrollado por Atelier Kempe Thill architects and planners respeta la volumetría y la altura de los edificios vecinos. La intervención combina estratégicamente dos prototipos arquitectónicos: el atrio y la torre.
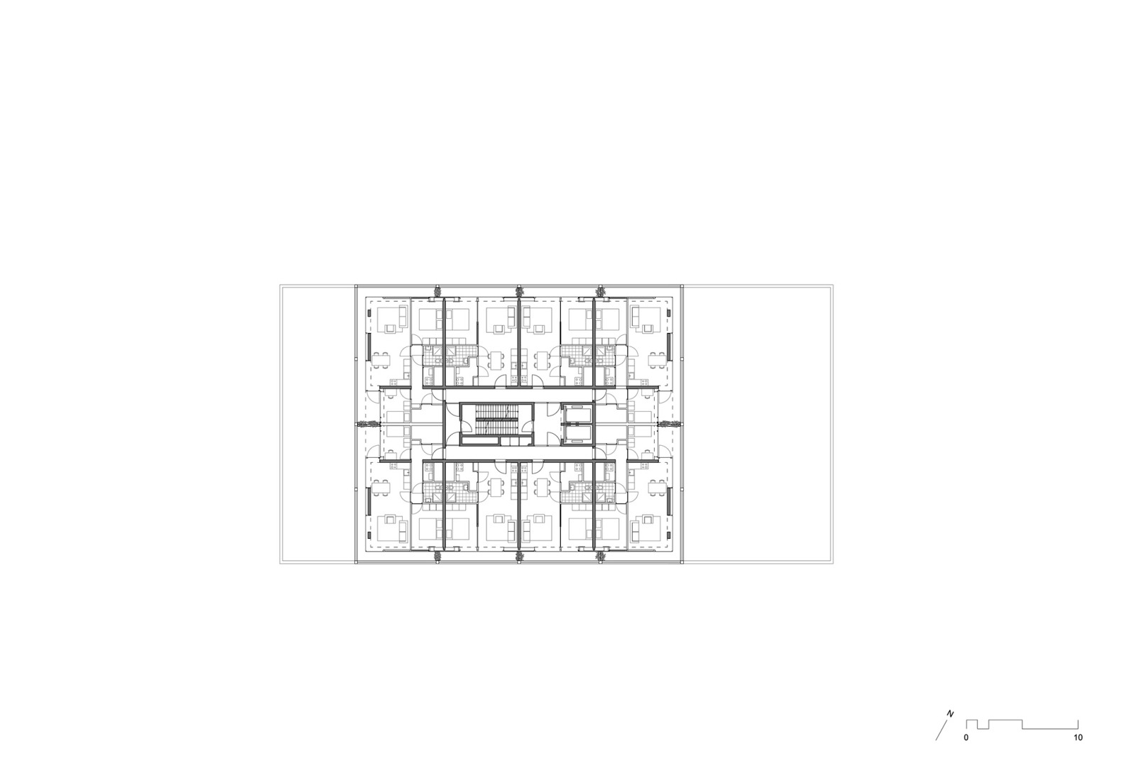
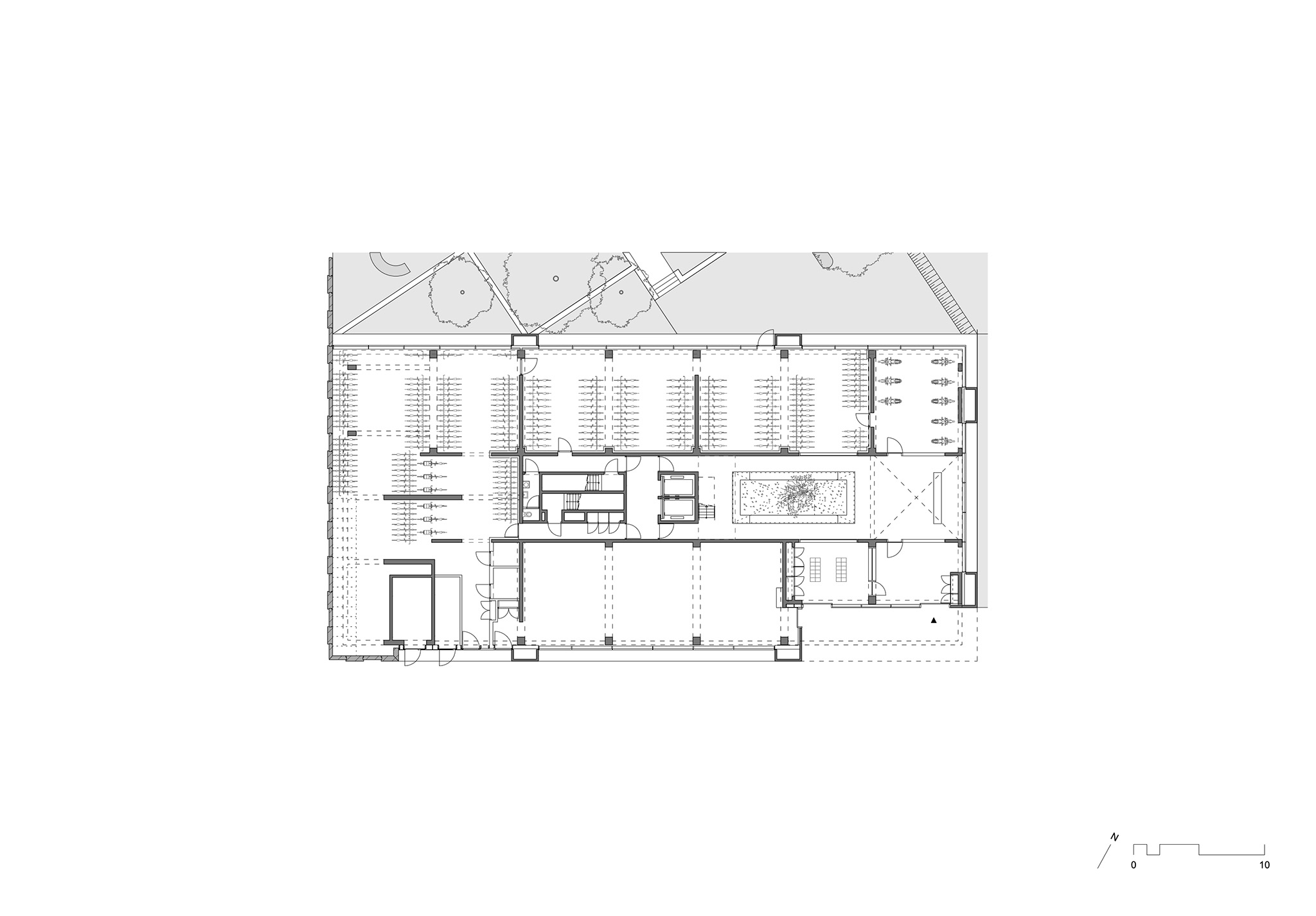
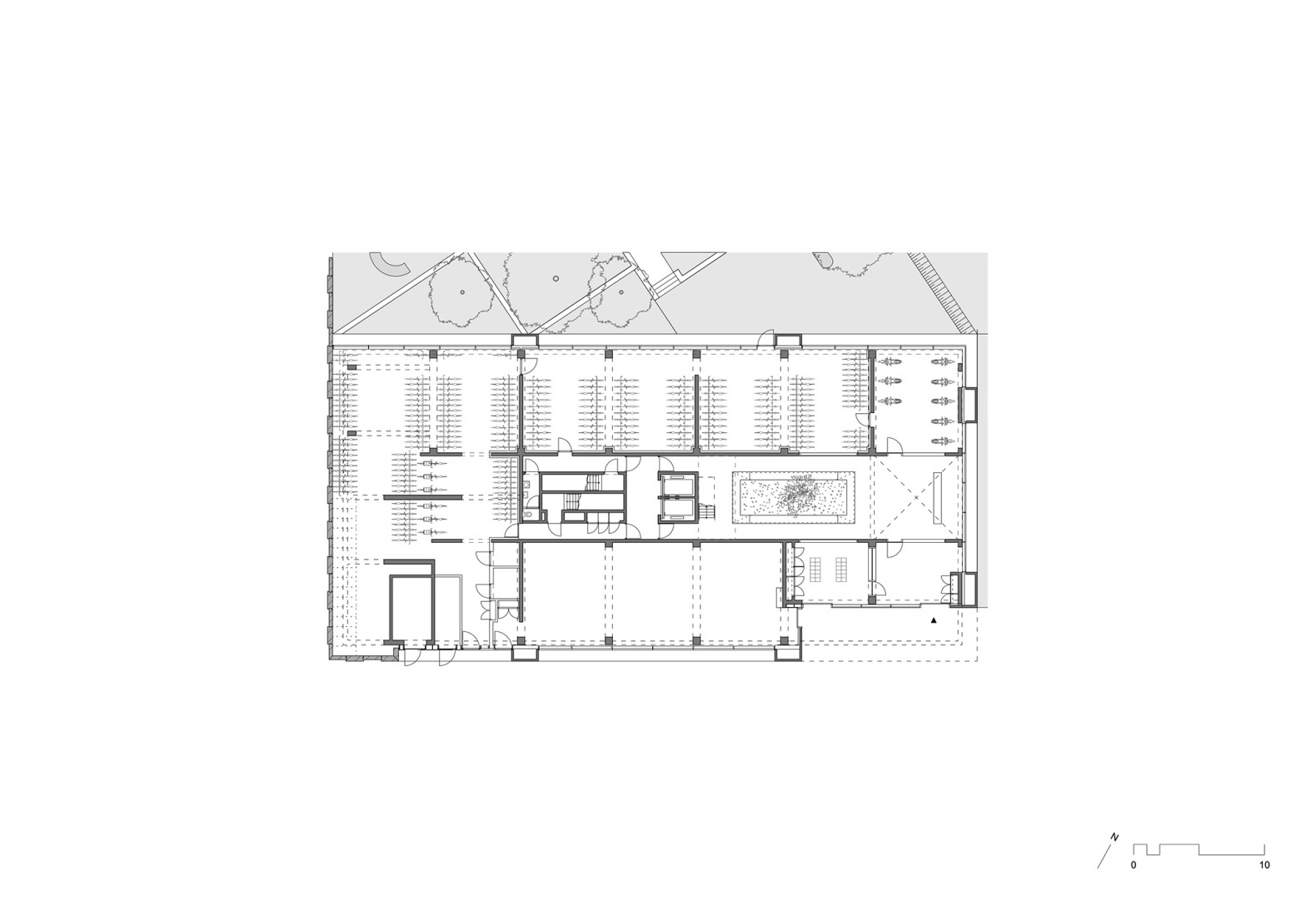
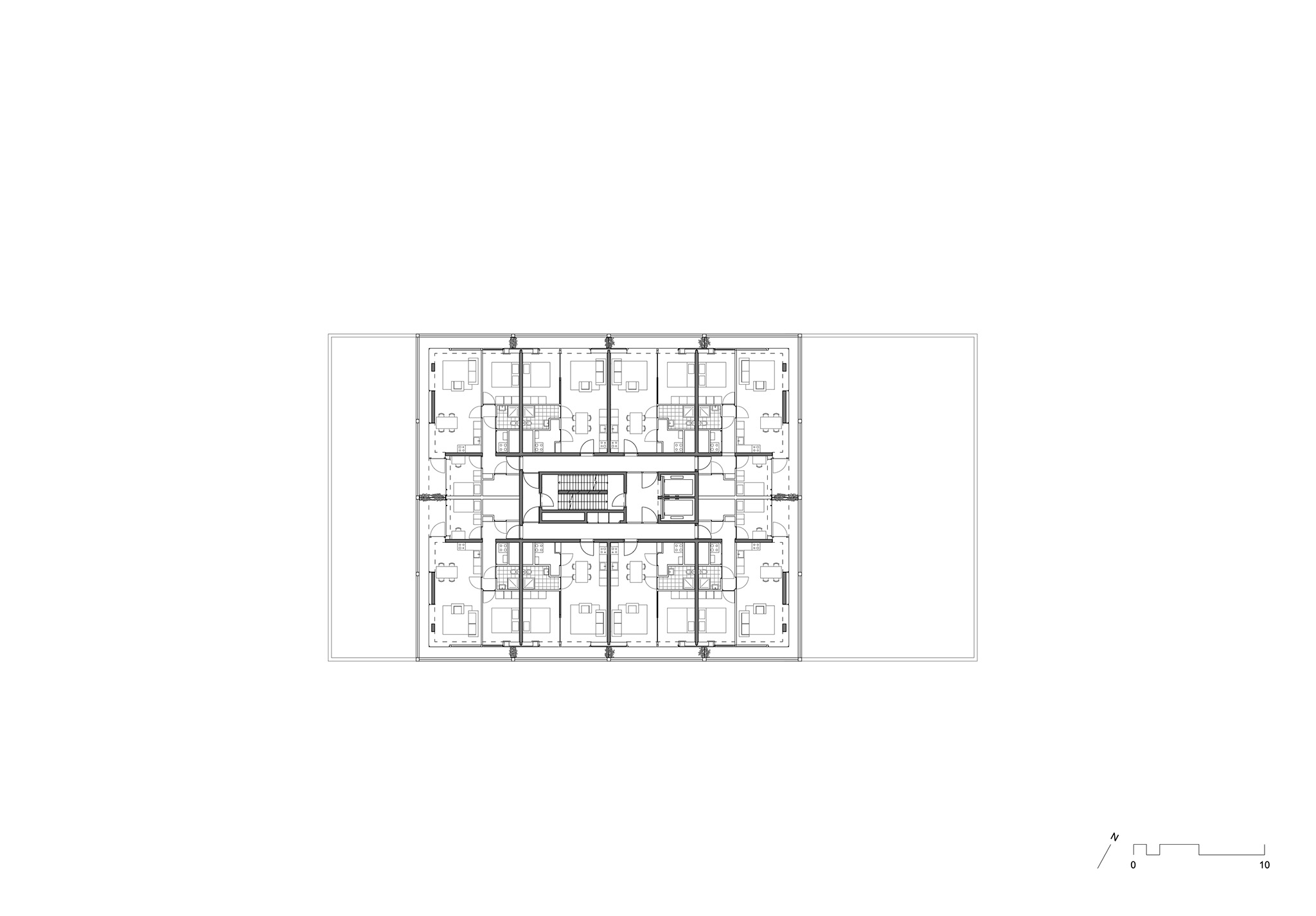
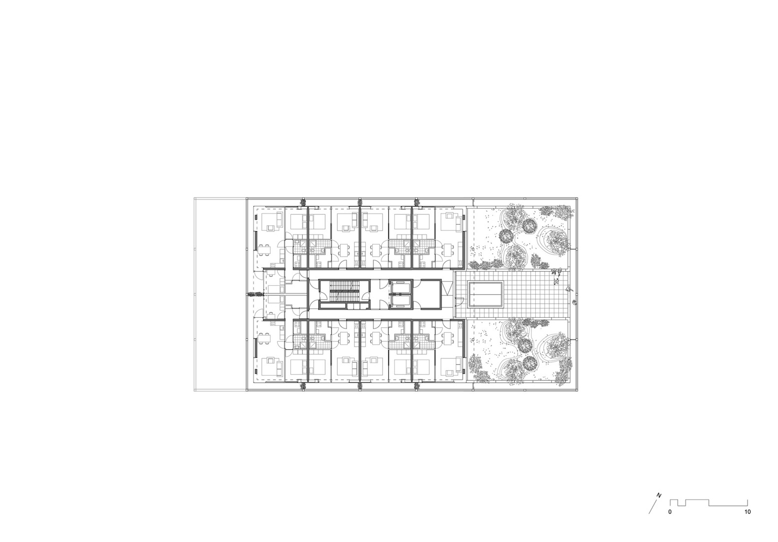
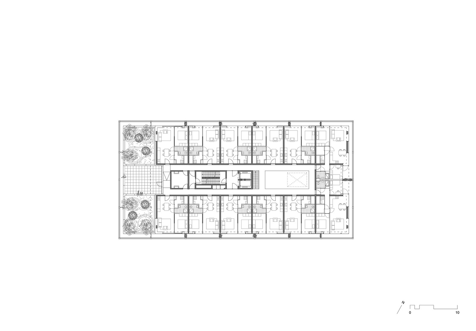
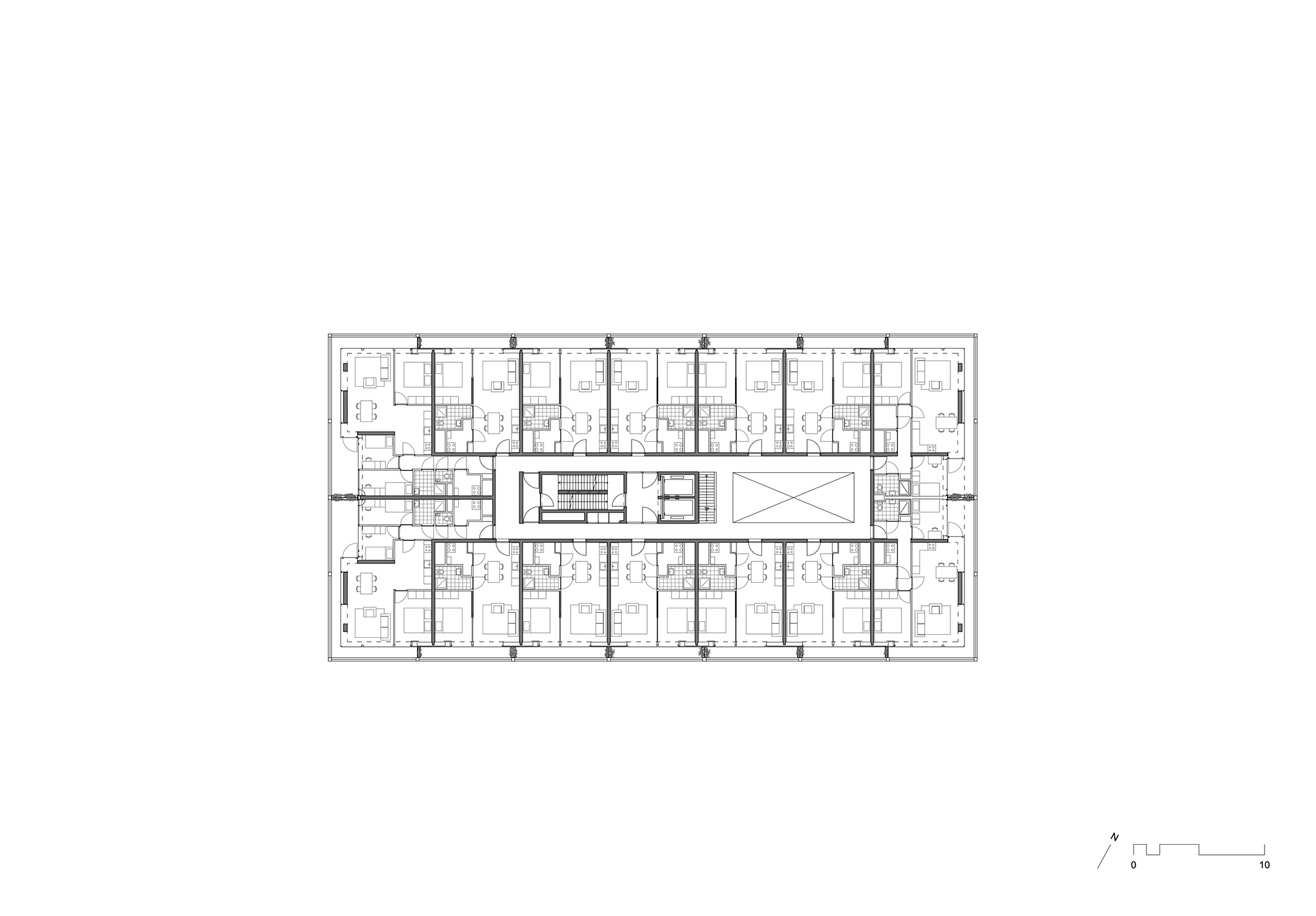
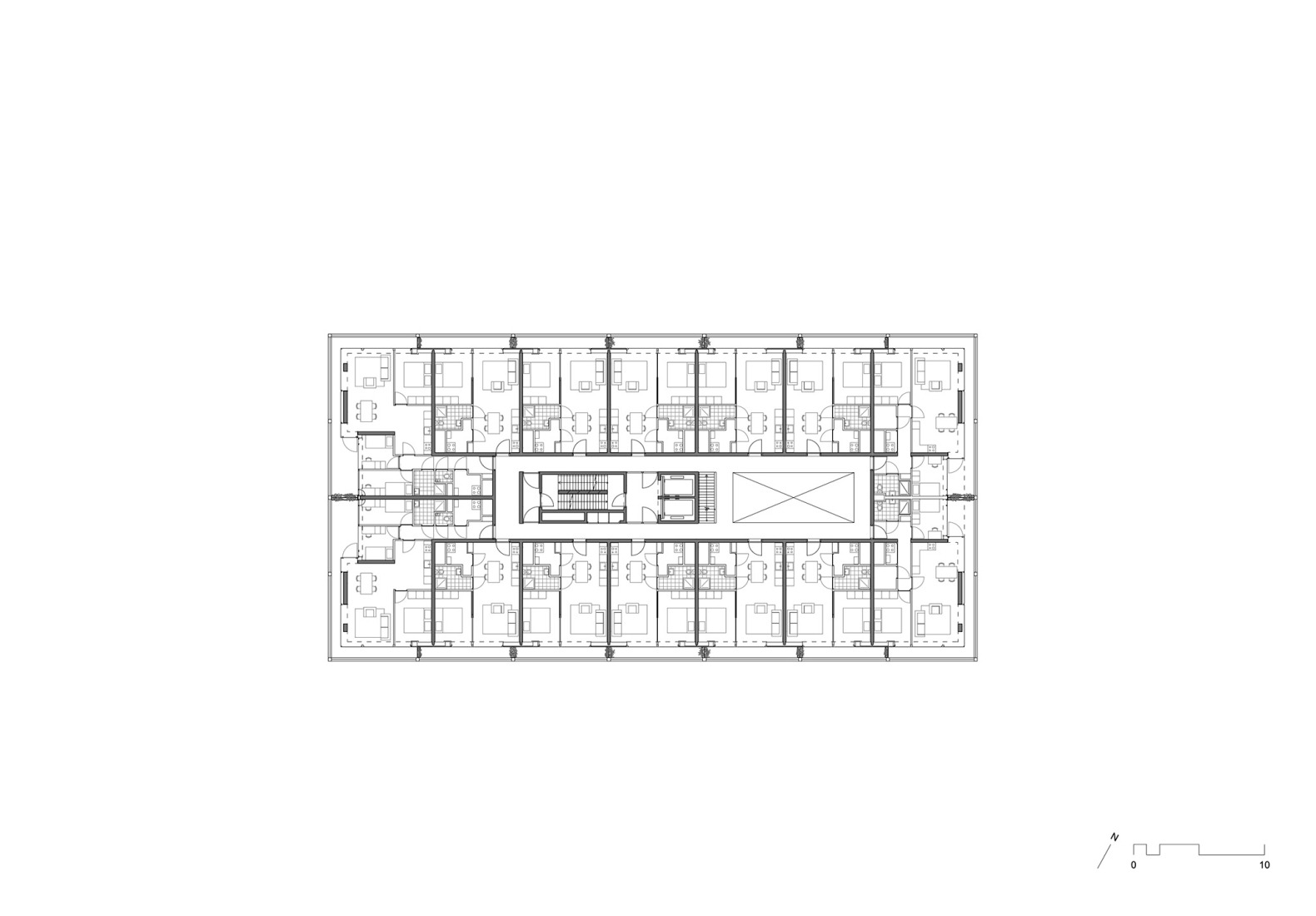
Las seis primeras plantas albergan catorce apartamentos organizados alrededor de un atrio central. De manera complementaria, las zonas comunes, los usos comerciales y un amplio aparcamiento para bicicletas en la planta baja favorecen una mejor integración del edificio en el nuevo paisaje urbano. La torre residencial, de nueve plantas, cuenta con ocho apartamentos distribuidos alrededor de una escalera doble y dos ascensores.
Una planta baja activa, amplias áreas públicas y dos terrazas comunes en la azotea fortalecen la convivencia y estimulan el sentido de pertenencia de los residentes. «De Vrijheid» celebra la colectividad y promueve la comunicación dentro del edificio. A su vez, logra establecer un diálogo con los demás edificios del conjunto, respondiendo tanto a las exigencias sociales como a los requisitos inherentes al propio desarrollo urbano.

Complejo de viviendas sociales «De Vrijheid» por Atelier Kempe Thill architects and planners. Fotografía por Ulrich Schwarz.
Descripción del proyecto por Atelier Kempe Thill architects and planners
El proyecto para el Campo de Construcción F, en el nuevo distrito de Bajeskwartier en Ámsterdam, constituye un punto culminante en la investigación de Atelier Kempe Thill sobre la construcción de vivienda social durante los últimos veinticinco años. La experiencia de proyectos anteriores para asociaciones de vivienda, como el Hiphouse en Zwolle, Montmartre-París o el Atriumhaus (Edificio Atrio) en Bremen, ha sido una influencia significativa. El resultado es un edificio con una excelente relación calidad-precio. Forma parte de una serie de proyectos de la firma que abordan la construcción residencial en altura y buscan integrar mejor esta tipología en el entorno urbano, ofreciendo al mismo tiempo atractivas cualidades residenciales.
CIAM revisitado
El punto de partida del proyecto fue la propuesta urbanística realizada por OMA, Fabrications y Lola Landscape Architects. En él, el complejo penitenciario de Bijlmerbajes, de estilo moderno tardío, de la década de 1970, se transforma progresivamente en un nuevo distrito urbano con más de 1100 apartamentos. El plan prevé la demolición de aproximadamente el 75 % del volumen edificado existente, verdaderamente desolado. Sin embargo, algunos elementos importantes, como parte del prominente muro de la prisión, el edificio central de servicios y un rascacielos con celdas, se conservan ejemplarmente como reliquias culturales importantes. El proyecto urbanístico propuesto puede considerarse, por lo tanto, una reinterpretación del histórico complejo penitenciario y una revisión del urbanismo de la modernidad clásica.

Lo que se propone es una especie de «Plan Voisin» para el siglo XXI. Retomando el complejo original, se propone para el distrito —para Ámsterdam— una construcción urbana abierta y bastante atípica, con una secuencia de nueve rascacielos esculturales integrados en un paisaje verde. El nuevo distrito forma un enclave prácticamente sin coches con un amplio parque público dentro del conjunto urbano de Ámsterdam.
«De Vrijheid»
El proyecto de Atelier Kempe Thill se ubica en el conjunto central de rascacielos, un conjunto compuesto por cuatro torres residenciales de hasta 60 metros de altura, agrupadas en torno a una pequeña plaza pública de proporciones cuadradas. Cada edificio está diseñado por una firma para generar una diversidad arquitectónica considerable. Al mismo tiempo, el claro efecto de conjunto propuesto en el plan director se ha examinado y desarrollado arquitectónicamente mediante talleres intensivos con las firmas de planificación. La planificación general está siendo orquestada y supervisada por OMA. Como resultado, la volumetría y altura de los edificios, la elección de materiales y colores, la ubicación de las entradas prominentes en la plaza pública y los detalles arquitectónicos importantes de los edificios están cuidadosamente coordinados.

Edificio atrio y torre residencial
Para el Campo de Construcción F, con 140 apartamentos, se propone una combinación estratégica de dos prototipos arquitectónicos. Las seis plantas inferiores se diseñan como una base muy compacta de 49,5 m x 25 m. De este modo, catorce apartamentos por planta se distribuyen eficientemente alrededor de un atrio central. La base, flexible y polifacética, alberga zonas comunes, usos comerciales y un amplio aparcamiento para bicicletas, lo que facilita una integración urbanística de alta calidad del edificio en el nuevo paisaje urbano. Sobre este atrio se alza una torre residencial compacta de nueve plantas de 29,5 x 25 m. Ocho apartamentos se ubican en cada planta, distribuidos alrededor de una escalera doble y dos ascensores. El resultado es un nuevo prototipo escultural que también se deriva de las exigencias del desarrollo urbano y del diálogo con los demás edificios del conjunto.
Nueva colectividad
Para fortalecer la convivencia de los aproximadamente 300 residentes, se busca diseñar las áreas públicas del edificio de forma espaciosa y acogedora. La planta baja, por lo tanto, se diseñó de forma especialmente diáfana. Con una altura libre de 4,5 m, ofrece vistas abiertas a los diversos espacios interiores y al entorno verde. La materialización se diseñó para ser de alta calidad y robusta. Además de paredes de hormigón visto y un suelo de hormigón pulido, se utilizaron madera de roble y terrazo. En el centro de la base, se encuentra un espacioso salón con zonas verdes interiores y un árbol de 11 metros de altura. Sobre él se desarrolla un atrio de seis plantas con luz natural y una escalera abierta adicional.

Dos terrazas comunes en la azotea para los residentes se encuentran en las cubiertas del edificio del atrio. Cuentan con una estructura de sustrato de hasta 80 cm de altura. Con la plantación de un grupo de árboles de 5 metros de altura, en los próximos años se desarrollará un intenso paisaje verde que invita al descanso y la relajación. Mediante todas estas medidas, se busca crear un marco atmosférico que celebre la colectividad y estimule la comunicación dentro del edificio. El resultado es un microcosmos social inspirador que fortalece la autopercepción de los residentes y facilita una vida más comunitaria en la ciudad.
Alegre «Existenzminimum»
Los apartamentos del edificio, en consonancia con la situación económica actual, son bastante pequeños. Para optimizar el espacio disponible, solo se ofrecen cocinas abiertas, y en los apartamentos más pequeños se prescinde de vestíbulos y pasillos. A lo largo de las fachadas, se instalan parcialmente paredes correderas que forman pequeñas enfiladas. Las fachadas están acristaladas hasta el nivel del suelo para ampliar el espacio de los apartamentos hacia el exterior y hacerlos parecer más espaciosos. Todos los apartamentos cuentan con un balcón circunferencial, al que se accede a través de una ventana corredera de 2,3 m x 2,3 m. Las esquinas del edificio se diseñaron de forma abierta para generar ligereza tanto en el interior como en el exterior. En general, se intentó aplicar conscientemente los principios CIAM, como la luz, el aire y el panorama, también en el espacio interior. El objetivo es demostrar que cierto lujo espacial también es posible en la construcción residencial social.

El muro, la entrada y un edificio ligero
El diseño del edificio se basa en gran medida en la integración arquitectónica del histórico muro de la prisión en la composición general, así como en la formación de una entrada esquinera de gran importancia urbanística que da a la plaza pública. Para facilitar esto, la base del edificio debe formar generosas extensiones en voladizo en varios puntos. Para expresar este hecho estructural también tectónicamente, la planta baja alta se diseñó con seis patas macizas y una losa gruesa que da la impresión de una mesa saliente. Está equipado con elementos de terrazo pulido con suficiente peso visual, incorporando simultáneamente el gris de la pared de la prisión hecha de componentes prefabricados en su diseño. Todo el edificio reposa así sobre la mesa, lo que crea una sensación de ligereza y contraste. Esta se desarrolla hacia arriba con calma gracias a la fachada metálica en forma de rejilla de los balcones. Elementos de diseño importantes son, por lo tanto, las esquinas abiertas acristaladas, las pérgolas ligeras que rodean las dos terrazas de la azotea y el borde alto de la cubierta, tras el cual se oculta la tecnología del edificio. En general, el edificio oscila intencionadamente entre la verticalidad y la horizontalidad, buscando un equilibrio entre la pesadez urbana y la ligereza moderna para evocar de forma óptima el carácter del nuevo distrito residencial.
Económico + Ecológico
Para construir el edificio de forma económica, se han integrado en la planificación desde el principio diversas medidas deliberadas. Una buena base tipológica se crea gracias a los hasta catorce apartamentos por planta, el acceso muy eficiente con solo dos ascensores y dos escaleras, y la envolvente compacta de las fachadas. Al mismo tiempo, el uso de dimensiones axiales estándar facilita la construcción en serie con un alto grado de prefabricación. Los balcones envolventes también se utilizan como andamios, reduciendo así considerablemente los costes de construcción del edificio. Gracias al hormigón diseñado de la envolvente, los costes de construcción interior se reducen al mínimo. Gracias a su gran compacidad, el edificio ofrece simultáneamente unas condiciones básicas excepcionales en cuanto a la física de la edificación. Las fachadas están ejecutadas con triple acristalamiento de control solar y, además, cuentan con sombreado pasivo gracias a los balcones.

Todas las viviendas están conectadas a un sistema de calefacción y refrigeración, lo que garantiza un alto confort térmico incluso en los cálidos meses de verano. En conjunto, el edificio se sitúa aproximadamente un 20 % por debajo del ya elevado estándar BENG de los Países Bajos (aprox. 24 kWh/m²). Todas las cubiertas están diseñadas como cubiertas verdes para fomentar la biodiversidad del barrio y, al mismo tiempo, almacenar suficiente agua de lluvia. En la planta superior se ha instalado además una instalación fotovoltaica. La estructura exterior tiene una vida útil estimada de al menos 100 años. Para facilitar una futura transformación con apartamentos más grandes, las mejoras en los tabiques divisorios entre viviendas se pueden realizar de forma relativamente sencilla, ya que se prevén zonas sin refuerzos. La empresa de viviendas de Ámsterdam De Alliantie Ontwikkeling B.V., fundada en 1868, cuenta así con una sólida base para una posible transformación del edificio en el siglo XXII.