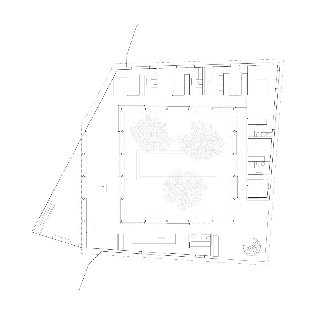
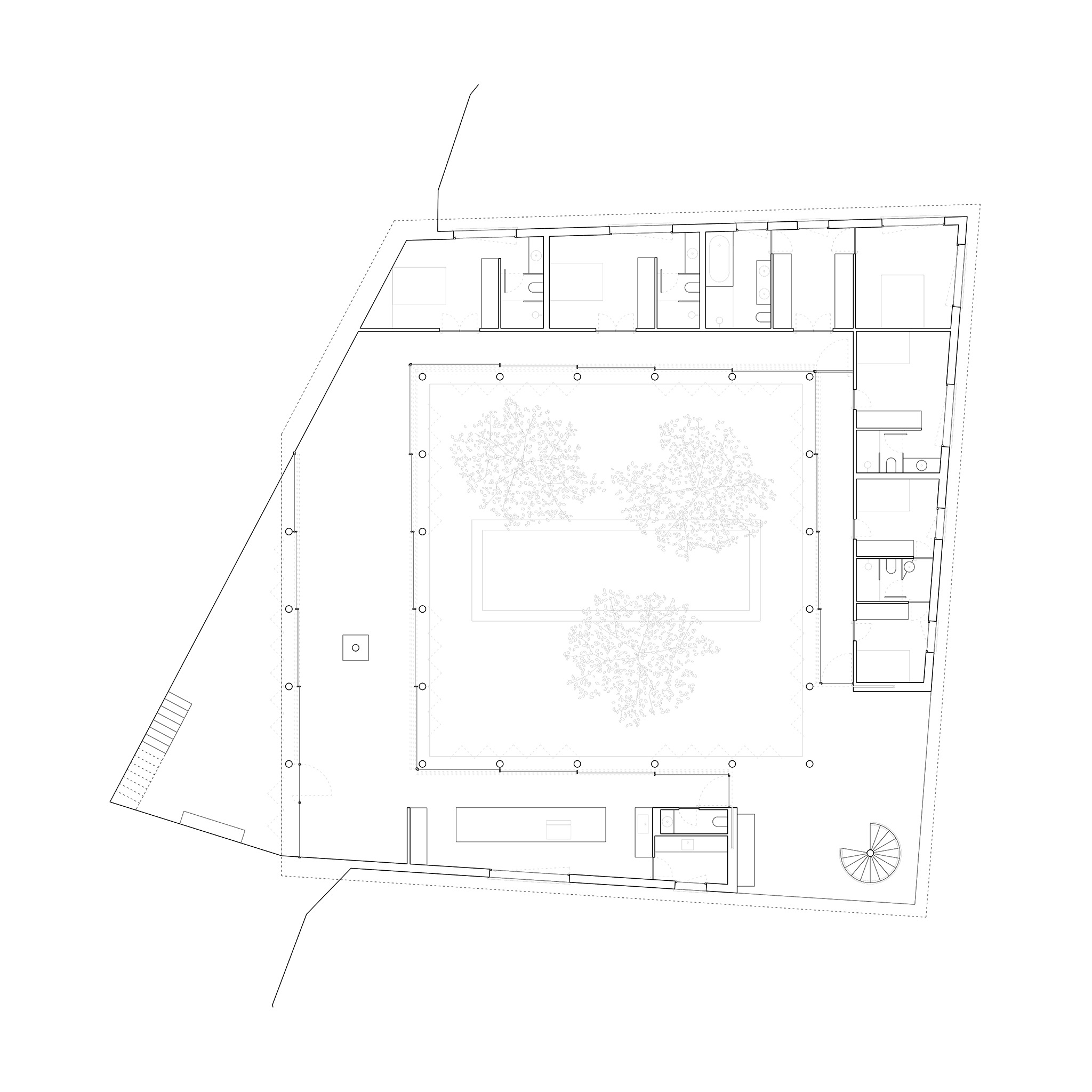
Arquitectura-G hace que el patio, generado como resto de parcela, se convierta en protagonista al producirse el acceso a través de él. Bajando las escaleras, la vivienda surge del resultado de cubrir el programa bajo un gran plano desplegado a partir del patio central, que tiene unas dimensiones de 15 x 15 m, un cuadrado que acoge una pequeña balsa de agua y tres árboles «que dan sombra», y que se delimita verticalmente por una columnata de veinte pilares, acompañando un espacio de anchura variable que, unas veces, es corredor y otras, prolongación de los espacios interiores.
Semienterrada por la pendiente, su diálogo con el entorno es total, dado que gran parte de su cerramiento se realiza con carpinterías que pueden quedar abiertas, dejando las estancias expuestas al patio; un cerramiento que también puede funcionar como filtro de luz y viento, compuesto por paneles de lamas de librillo que protegen del sol mientras dejan pasar la brisa.
Una escalera circular perfora la cubierta y conecta verticalmente la pequeña planta inferior, la planta principal y la cubierta.

Casa patio por Arquitectura-G. Fotografía por Maxime Delvaux.

Casa patio por Arquitectura-G. Fotografía por Maxime Delvaux.
Descripción del proyecto por Arquitectura-G
La vivienda se desarrolla en planta baja, bajo una cubierta/porche que encierra un patio cuadrado. La forma del contorno exterior de la casa proviene de un setback de la forma de la propia parcela, que se deja intacta a modo de anillo natural alrededor de la vivienda.
El patio principal, de 15 x 15 m y rodeado por una columnata, tiene una balsa de agua como eje central y 3 árboles que dan sombra. El patio secundario funciona como acceso. Las carpinterías se pueden abrir dejando las estancias expuestas al patio con la mediación de un filtro compuesto por paneles de lamas de librillo que protegen del sol mientras dejan pasar la brisa.
El patio está rodeado por un corredor que se entiende como un porche de anchura variable, que se va transformando de pasillo a zonas comunes como el estar y la cocina. De esta manera, al recorrer el interior se percibe la cubierta como una lámina que se apoya en columnas en un lado y en el muro perimetral en el otro.