
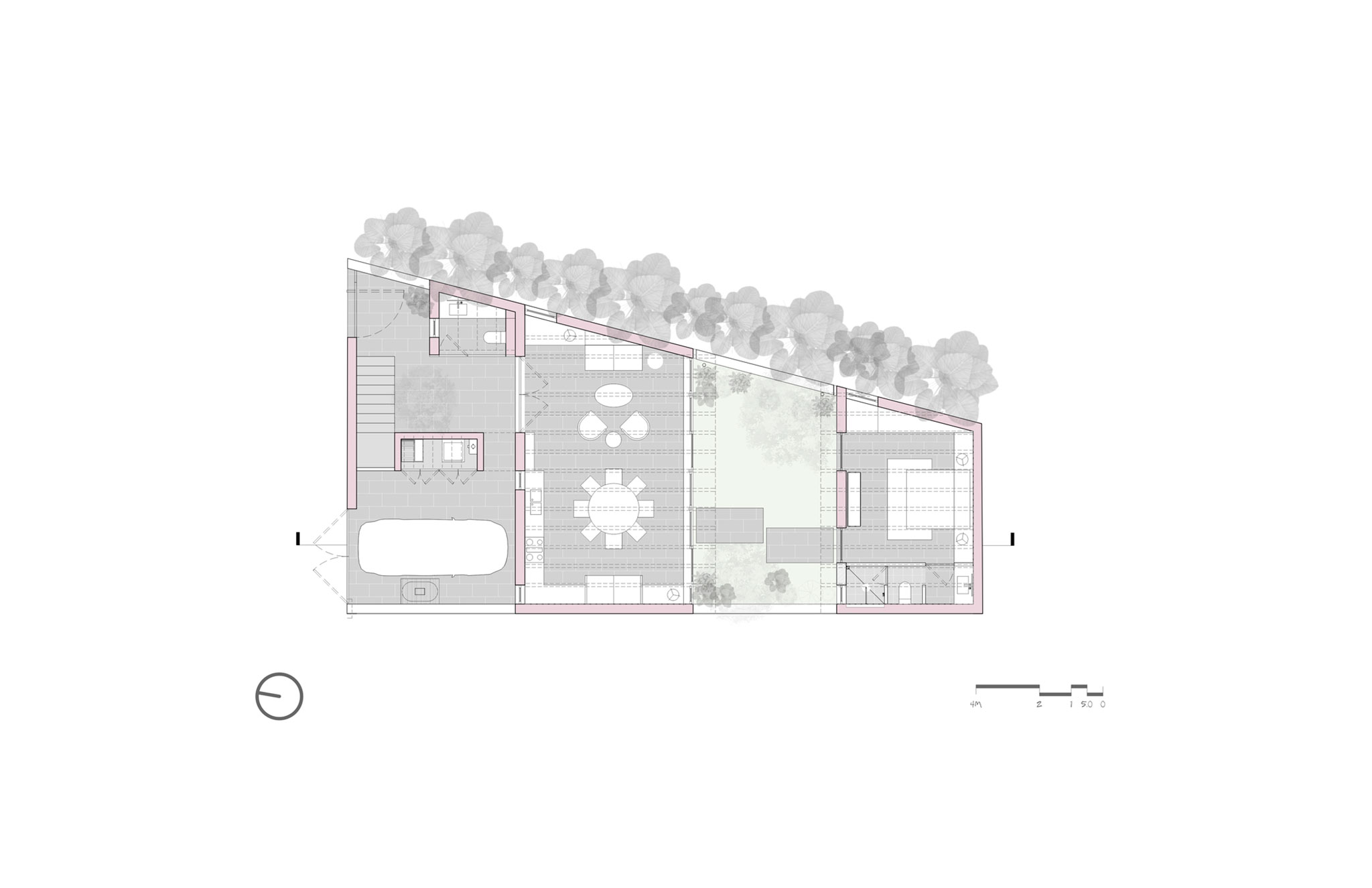
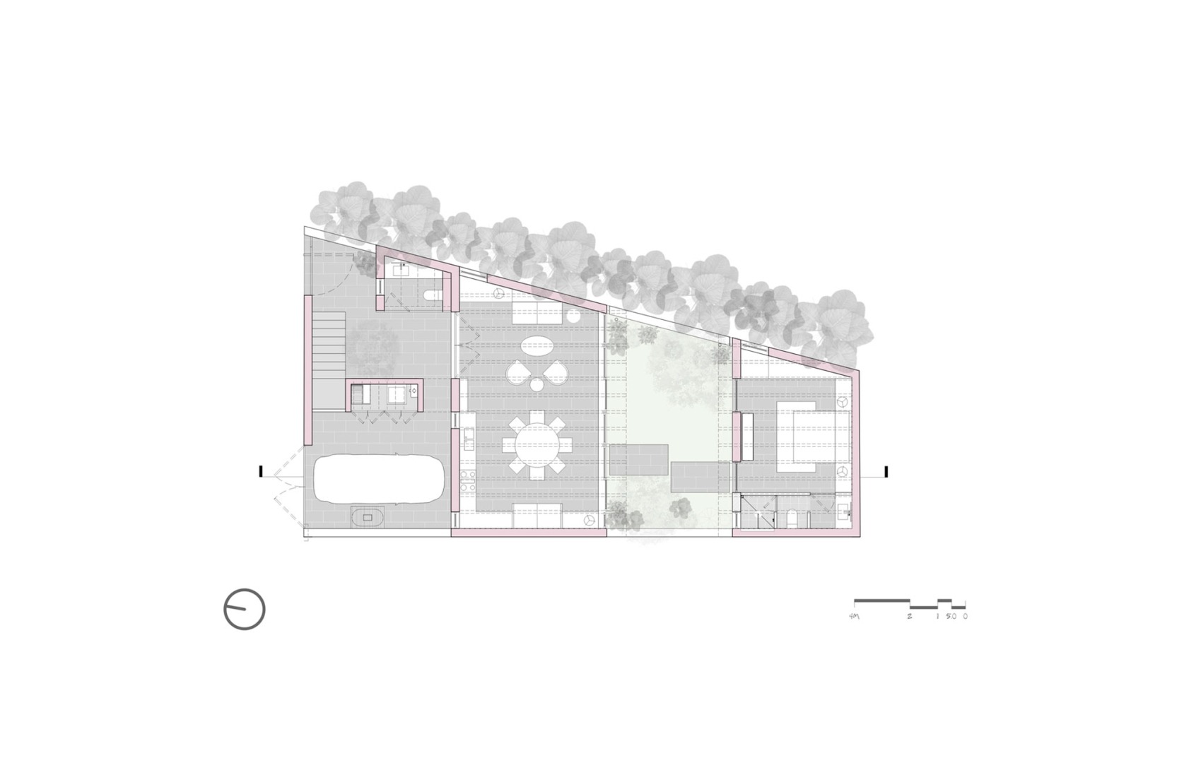
La obra planteada por Fino Lozano y Moro Taller de Arquitectura, proyectada con materialidad vista y volúmenes puros en una superficie de construcción de 125 m², es resuelta en dos niveles. En planta baja se encuentran la sala, el comedor, la cocina, un medio baño, la lavandería y el garaje, y a su vez, cuenta con un espacio de transición a través de un patio interior que dirige a la habitación principal, con baño completo y armario. En el ingreso de la casa, se ubica una escalera que accede a la primera planta, destinada a la contemplación y disfrute del paisaje que la rodea.
Casa Nandi busca ser amable con el medio ambiente y económica en su ejecución. Utiliza el sistema tradicional de construcción con tierra apisonada fusionado con el uso contemporáneo del hormigón armado. Esta combinación mejora sus condiciones térmicas, acústicas y estructurales. Para los acabados, utilizan una interesante paleta monocrática, en la que el cemento pulido, el hierro en las carpinterías y la piedra negra de los pavimentos se convierten en protagonistas, demostrando la honestidad de su materialidad y los objetivos de bioconstrucción.

Casa Nandi por Fino Lozano y Moro Taller de Arquitectura. Fotografía por Rafael Palacios Macías.
Descripción del proyecto por Fino Lozano y Moro Taller de Arquitectura
Ubicada en San José de Gracia, Michoacán, Casa Nandi es una vivienda de 2 niveles, en la cual tuvimos la oportunidad de colaborar con Moro Taller para su ejecución; está integrada en la segunda planta una terraza que permite vistas panorámicas al paisaje, invitando a la contemplación del contexto inmediato.
Se desplaza en un terreno con orientación norte-sur y tiene una superficie de construcción de 125 m². Este proyecto supuso un reto para el taller ya que, afortunadamente, nos hizo salir de nuestra ciudad para estudiar otros paisajes de México y así poder integrar nuestras ideas con un contexto nuevo y emocionante.
El proyecto busca como objetivos principales ser económica y ambientalmente viable, desarrollando técnicas de bioconstrucción que contribuyan a desarrollar una obra que se mimetice con el paisaje, teniendo siempre en cuenta la simplicidad del lugar, aprovechando al máximo la orientación para generar una atmosfera iluminada pero privada, que se ventile de forma natural generando momentos de armonía y tranquilidad para el habitante.

Teniendo presentes estos objetivos, se propone una estructura sustentable y simple, que al mismo tiempo funcione para generar grandes claros dentro de la vivienda, teniendo como base unas vigas de madera de pino y sobre ellas un ladrillo artesanal de barro medio pliego que recibe la losa llena de concreto, esto expone el barro natural y las trabes de madera en el lecho inferior, sin necesidad entonces de recubrir el material que por naturaleza es agradable.
En los muros vemos un sistema antiguo de tierra apisonada, fusionada con técnicas contemporáneas de colado de concreto que nos habla de lo atemporal que es la arquitectura cuando se selecciona el diseño y la materialidad adecuada para el proyecto., se combinó el uso de muros de concreto y muros de tierra apisonada, de esta forma la función de estos muros no se queda tan solo como estructural, al incorporar estas técnicas de construcción permitimos generar atmosferas aislantes térmicas y acústicas, que además de ser funcionales, generan muy buen contraste con el piso de piedra negra recinto, la ventanería de herrería, y los acabados de muebles en carpintería y barras de cemento pulido, logrando una paleta monocromática pero con acentos sutiles que nos muestran gran honestidad en los materiales.

El programa arquitectónico se proyecta para ser recorrido de forma sencilla permitiendo la contemplación de cada rincón, considerando en planta baja el ingreso al patio recibidor, cochera, cuarto de lavado, medio baño, sala comedor y cocina, teniendo un patio de transición para poder entrar a la recámara principal que contiene un baño completo y closet; al ingreso se tiene la escalera que, en caso de apetecerse, nos permitirá contemplar el despertar del sol o una noche estrellada en la terraza.