Cristián Nanzer orientó la vivienda hacia el noreste y proyectó dos plantas rectangulares con grandes huecos en la fachada y lucernarios en la cubierta, lo que permite la entrada de luz y la integración con el entorno. La planta baja se construyó con muros ciclópeos que albergan las habitaciones de invitados, talleres, zonas de servicio y garajes.
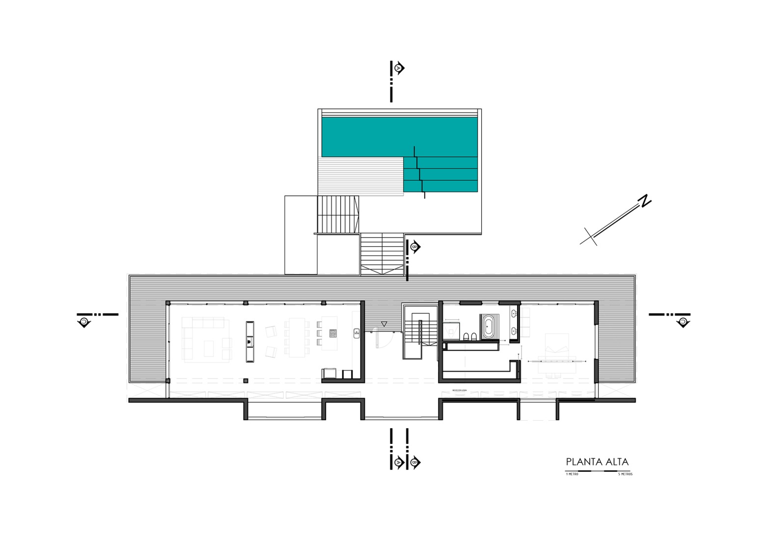
Por otro lado, la primera planta presenta una estructura modular independiente de hormigón visto, con pórticos de seis metros de luz y voladizos en el perímetro. El vestíbulo de entrada, con vistas hacia el sur, separa las zonas sociales de las más íntimas, como el dormitorio y el baño. Estas ocupan la mitad del espacio destinado a las zonas públicas, como el salón, la cocina y el comedor. La circulación es lineal a lo largo de las dos plantas y, desde cualquier punto del interior, se aprecia el paisaje que rodea la vivienda.

Casa en el Dragón por Cristián Nanzer. Fotografía por Gonzalo Viramonte.
Descripción del proyecto por Cristián Nanzer
La vivienda se emplaza en el Valle de Punilla, Provincia de Córdoba, en proximidades del Cerro El Dragón, entre las localidades de La Falda y Huerta Grande. El entorno presenta un paisaje de lomadas y sierras con amplias visuales hacia el valle, característico de la región semiárida cordobesa. El terreno, de topografía abrupta, abarca todo el faldeo del pedemonte que separa el Valle de Punilla del de las Sierras Chicas.
Sobre una meseta elevada, cercana al camino de acceso y en el punto más alto del lote, la casa se desarrolla en dos plantas con una disposición lineal y una apertura franca hacia el noroeste.
La planta baja, concebida como basamento, se materializa con muros de hormigón ciclópeo que alojan los dormitorios para huéspedes, un taller de artesanías, áreas de servicio y el ingreso desde la cochera, junto a un sector de expansión exterior.
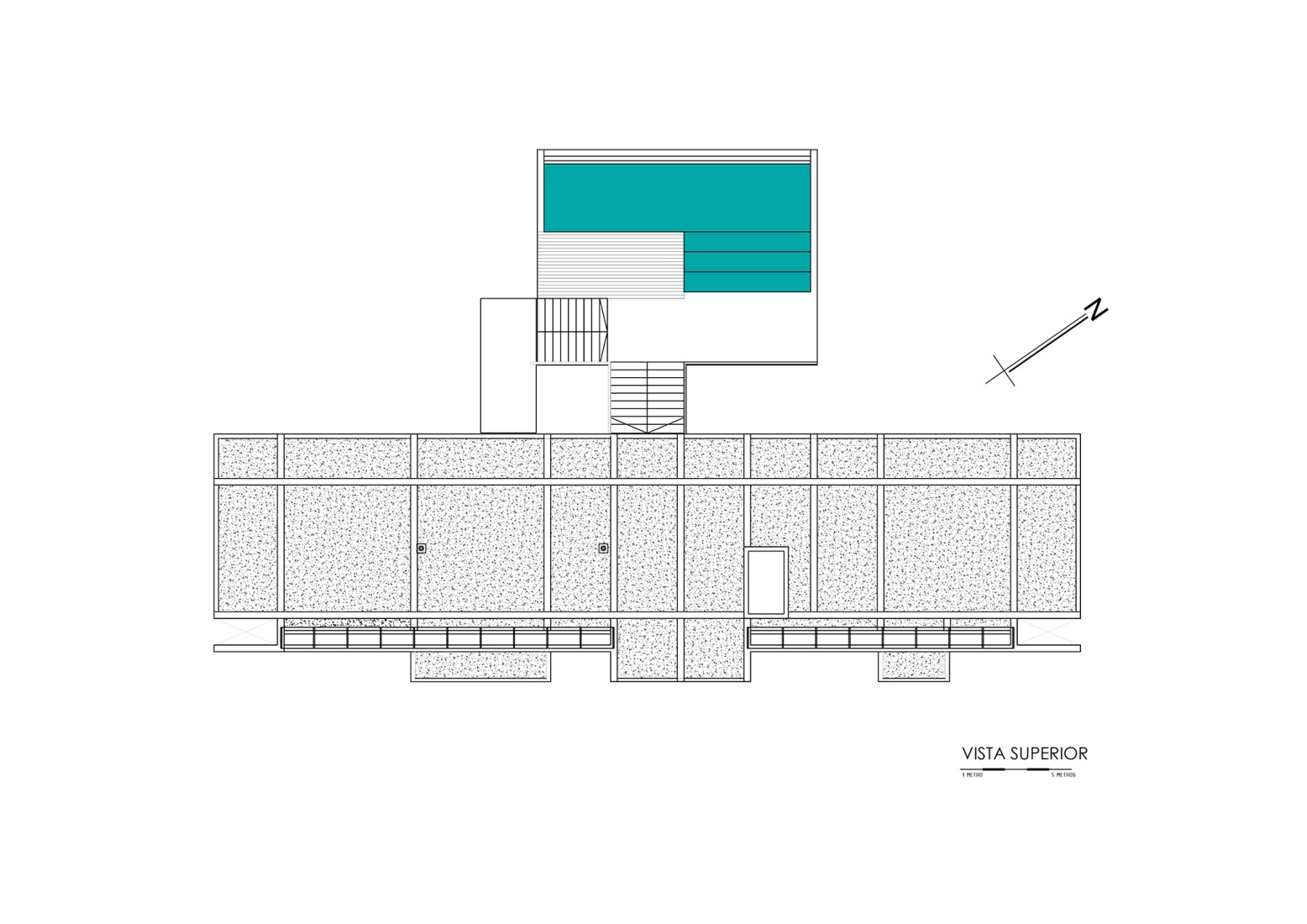
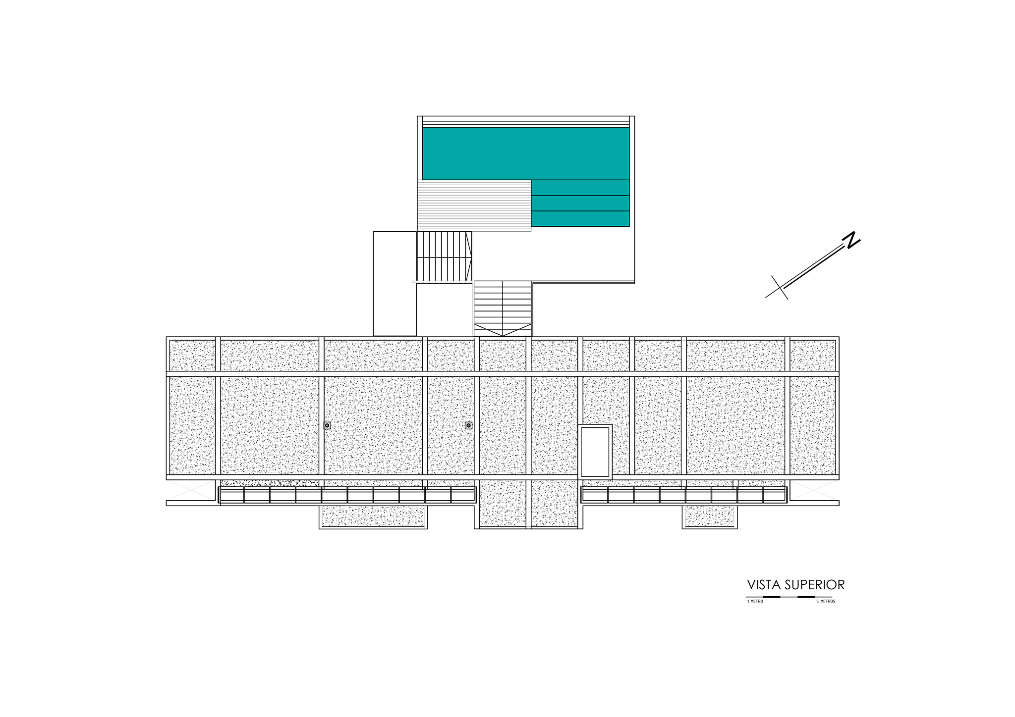
La planta alta se resuelve con una estructura independiente de hormigón visto, organizada mediante una matriz dimensional de pórticos de 6 metros de luz y voladizos perimetrales. La modulación varía según el programa: 6 metros en el área social y 3 metros en la zona íntima. Ambas áreas, claramente diferenciadas, se separan por un amplio hall de acceso que, desde el ingreso, ofrece una vista panorámica hacia el sur.
La casa expone deliberadamente su mecanismo estructural: aquí, la estructura es la arquitectura. El basamento pétreo conformado por los muros ciclópeos, alineado a la geometría modular que organiza todo el proyecto, sostiene el volumen superior que se proyecta hacia el perímetro, conformando galerías en todos sus frentes, salvo al sur. En este último, también en voladizo, se dispone la circulación longitudinal interior, protegida por un tabique suspendido entre pórticos que se interrumpe únicamente en tres grandes cajas de hormigón, enmarcando visuales específicas. Esta circulación recibe iluminación cenital, lo que permite que la luz solar directa cualifique los espacios interiores adyacentes al tabique sur.
Concepto
La vivienda establece un diálogo permanente entre el paisaje circundante y su propia expresión material. La elección, deliberadamente restringida, de dos únicos materiales —la piedra natural y el hormigón, “piedra artificial”— unifica todos los elementos constructivos y enfatiza la tensión entre la fuerza de gravedad y la ligereza que introduce la luz. Esta luz, a veces de apariencia sólida, evoca la atmósfera y la geografía de estas latitudes.
Concebida como un escenario inacabado, flexible y dinámico, la casa asume su condición de obra abierta: incompleta en el sentido más fértil del término, sujeta a la apropiación subjetiva de sus habitantes, aspirando a convertirse en una extensión íntima del entorno que la contiene.