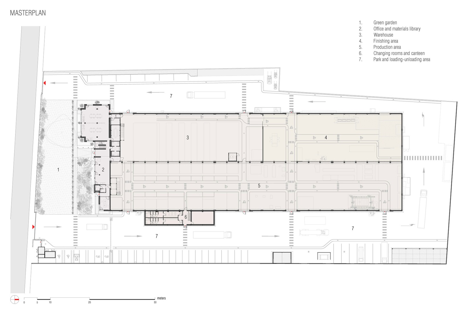
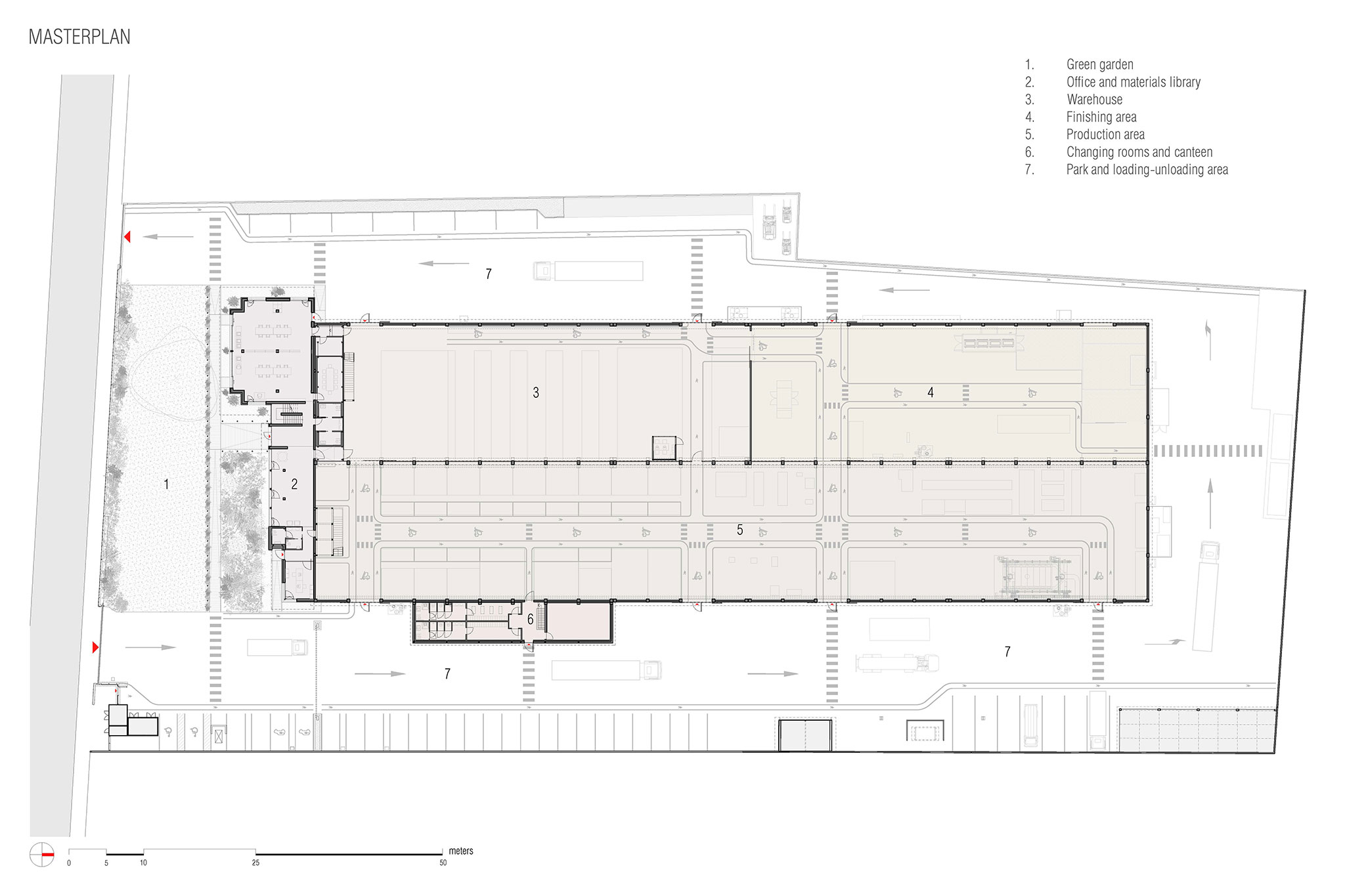
En esta renovación industrial para Dante Negro, Studio Bressan ubicó las oficinas, la biblioteca de materiales y los espacios técnico-administrativos en la sección principal de estilo brutalista, mientras que el área de producción se ubica en el volumen de doble bóveda.
El diseño mantiene la configuración general de la estructura, eliminando todas las particiones internas no estructurales para crear un espacio fluido y abierto. Se han añadido grandes aberturas continuas a la fachada, que enfatizan la relación entre el exterior y el interior y mejoran la iluminación natural en los espacios de trabajo.

Renovación industrial para Dante Negro. Fotografía por Giovanni Nardi.
Descripción del proyecto por Studio Bressan
El proyecto de renovación industrial se centra en un edificio de producción abandonado, construido a principios de la década de 1970 y ubicado en una importante ruta industrial y comercial en Villorba, al norte de Treviso. El proyecto permitió el establecimiento de la nueva sede de Dante Negro, una empresa de maestros herreros especializada en la producción de muebles metálicos de diseño.
El edificio original constaba de dos partes: en la sección principal, de estilo brutalista, se crearon las oficinas ejecutivas, la biblioteca de materiales y los espacios técnico-administrativos; mientras que en el doble volumen abovedado de 112 m de profundidad, se estableció el área de producción. Se decidió mantener la configuración general de la estructura, adaptando la distribución interior a las nuevas funcionalidades. La nueva distribución de la producción fortaleció la relación funcional entre los espacios interiores y los patios exteriores, optimizando el ciclo de transformación de las materias primas, que llegan por la puerta este y emergen como productos terminados por la puerta oeste.
Las intervenciones en el área de oficinas revitalizaron y mejoraron la composición original, garantizando la conformidad sísmica y energética de las estructuras. Se eliminaron todos los tabiques internos no estructurales en favor de espacios fluidos y diáfanos. Las fachadas se rediseñaron con grandes ventanales, en su mayoría continuos, que mejoraron la iluminación natural en los espacios de trabajo y enfatizaron la relación entre los interiores, las terrazas exteriores y el jardín frontal.
La imagen brutalista de bandas superpuestas e interpenetradas se mantuvo mediante la restauración de los parapetos de hormigón salientes y se potenció aumentando el contraste cromático de las zonas más profundas con colores más oscuros y ventanas más grandes. Se instalaron cortinas filtrantes especiales para controlar la radiación solar diurna y la introspección visual nocturna. Se prestó especial atención a la selección de acabados y colores para que los espacios fueran más racionales y acogedores.
La decisión de recuperar un edificio abandonado fue un verdadero reto para la propiedad. Invertir en la rehabilitación de un edificio de este tipo significa devolver a la zona una valiosa arquitectura, con la perspectiva de transformarla en un espacio cultural, reemplazando un polígono industrial degradado. No se trata de demoler y reconstruir, sino de revitalizar.