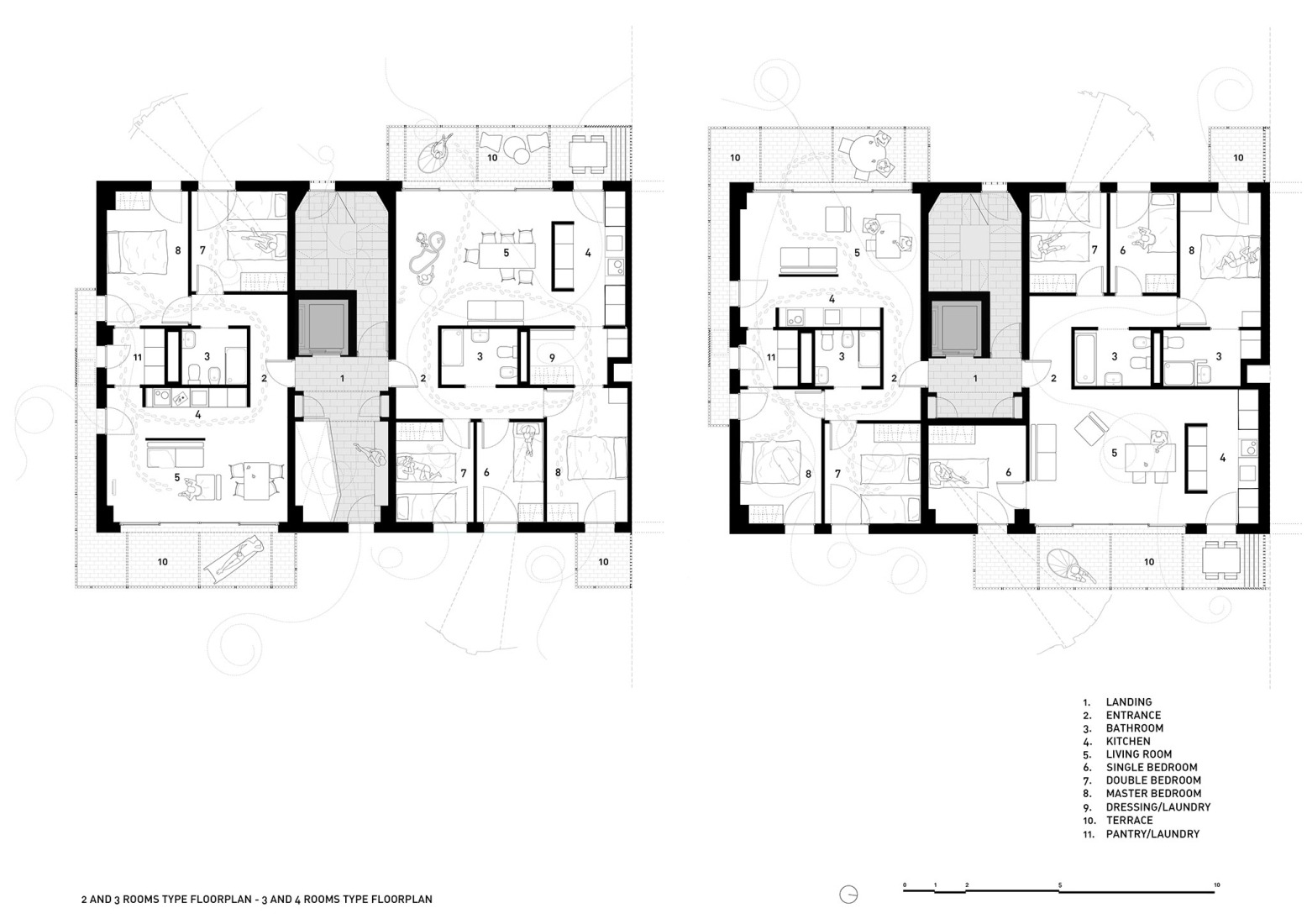
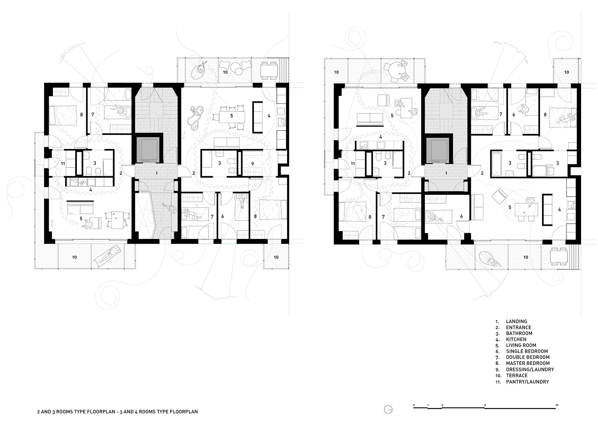
El proyecto de MADhel, MARMOLBRAVO y Miel Arquitectos, está conformado por 50 viviendas sociales distribuidas en siete plantas. Los espacios comunes constan de una circulación de rampas y escaleras con jardineras abiertas que invitan a estar, conectadas con portales pasantes con visuales de calle a calle. El interior del edificio cuenta con espacios de triple altura con colores vibrantes para una auténtica experiencia de sus usuarios y los apartamentos, poseen aperturas y terrazas abiertas que prolongan el espacio interior hacia el exterior, generando la sensación de un espacio más amplio sin límites.
La materialidad del edificio dialoga con el contexto y preserva su atmósfera, utilizando muros de ladrillo rojo, fachadas de mortero, celosías cerámicas, baldosas vitrificadas de la Bisbal y suelos de terrazo para interior y exterior. Estos materiales son utilizados estratégicamente para lograr un edificio de bajo consumo energético, y a su vez, reflejar identidad y memoria histórica en su contexto.

DE PEUS A TERRA por MADhel, MARMOLBRAVO y Miel Arquitectos. Fotografía por Jose Hevia.
Descripción del proyecto por MADhel, MARMOLBRAVO y Miel Arquitectos
DE PEUS A TERRA (i el cap pels núvols) es un edificio de 50 viviendas sociales en el barrio de Bon Pastor en Barcelona, donde se mezclan la sensatez y el arrebato (el seny i la rauxa), exaltando sin reparos lo colectivo y cuidando con precisión el ámbito de lo doméstico.
Nuestro edificio forma parte de la transformación de “las casas baratas de Bon Pastor”, un polígono de viviendas que nació para dar cobijo a todos aquellos trabajadores llegados a Barcelona para trabajar en la Exposición Internacional de 1929. Ese conjunto de 784 viviendas, de una sola planta con patio interior, se ha ido sustituyendo desde el año 2002 por un urbanismo de edificios plurifamiliares en altura… ¡el nuestro de PB+6¡
Nuestra preocupación inicial fue la de restaurar la sociabilidad del barrio, que se había desarrollado hasta el momento a pie de calle. El primer escollo a superar fue el impacto frente al peatón de esta nueva escala urbana del bloque abierto, para lo que desarrollamos varias estrategias:
- Escalonar 2 plantas hacia el parque que linda a SUR, disponiendo de una visión más amable frente a los juegos infantiles.
- Aprovechando que las fachadas principales (Este y Oeste) disponen de una exposición solar muy parecida hicimos reversibles las distribuciones de las viviendas colindantes, disponiendo el salón de una a Este y el de sus vecinos a Oeste, de esta manera redujimos el número de terrazas apiladas… a primera vista el edificio parece más bajito y dinámico.
- La masividad y amplitud de la planta baja de ladrillo en contraste con la esbeltez y ligereza del edificio que se posa sobre ella aligera la percepción de todo el conjunto.
- La planta baja se diluye con el entorno mediante rampas y escaleras con el mismo acabado que la urbanización invitando a sentarse, a recorrerlas y mediante jardineras abiertas que buscan fundirse con la magistral vegetación del barrio que lo rodea.
A continuación, magnificamos los espacios colectivos desplegando rampas y escaleras por doquier para llegar a unos portales pasantes que nos permiten ver de calle a calle, aportando luz y seguridad al interior... ¡y transparencia al exterior!
Ya dentro los portales explotan verticalmente con espacios de triple altura que acompañan a sus habitantes hasta el rellano de su vivienda. Todo ello ensalzado por colores vibrantes para fomentar el dialogo y el entendimiento… ¡para qué sino los techos verdes y los bancos de madera en cada planta!
En el interior doméstico, las viviendas reversibles y pasantes disponen de aperturas y terrazas a ambas fachadas, potenciando la iluminación natural y la ventilación cruzada. Unas terrazas que prolongan los salones al exterior mediante aperturas de más de 5m de ancho, borrando el límite entre “la casa y el patio”, dotando a cada vivienda de un espacio para soñar.
El cuerpo de baño queda exento en el medio de la planta gracias a un espacio comodín en uno de sus extremos que puede ser tanto vestidor como alacena, almacén, segundo baño o zona de paso, un espacio que fomenta la flexibilidad de uso de la casa, que incita al cambio, al intercambio de roles e incluso de inquietudes.
La posición contrapeada de las terrazas nos permite crear situaciones de convivencia transversal entre diferentes plantas y diferentes escaleras, una calle en altura.
DE PEUS A TERRA se viste con los mismos materiales que crearon a este barrio para preservar su atmosfera única: muros de ladrillo rojo enriquecidos con diversos aparejos (algunos casi trepadores), fachadas de mortero que resaltan la belleza de la imperfección de la mano que lo aplicó, celosías cerámicas y baldosas vitrificadas de la Bisbal, suelos de terrazo para interior y exterior, etc.… Todos ellos ensalzados hasta las máximas prestaciones que exige nuestro contexto de emergencia climática y calentamiento global en un edificio de muy bajo consumo energético.