Conceived by Sebastián Bayo Monjas as an open canvas, this element becomes a symbol of collective expression that invites the reinterpretation of borders as imaginary constructs. In this way, the intervention not only alters the urban environment but also articulates a profound social and cultural discourse aligned with the principles of the Mugak/ Biennial.
The wall symbolizes an inaccessible utopia for those on either side, projecting human aspirations toward the unknown. In a global context marked by borders and inequalities, the installation invites reflection on the kind of utopia we actually inhabit. At the same time, rebuilding a previously demolished wall alludes to humanity’s tendency to repeat the mistakes of the past, reinstalling a visual and physical obstacle designed to unsettle, provoke, and awaken critical awareness.
Transformed into a platform for dialogue and debate, the wall serves as a shared space for artists, thinkers, and citizens, consolidating itself as a work with a critical purpose that exposes the limits and injustices of the present. Once the intervention concludes, the panels will be preserved as an active memory—much like the fragments of the Berlin Wall scattered across the world—reminding us that barriers, even when torn down, continue to challenge contemporary society.

"Utopia: No entry" by Sebastián Bayo Monjas. Photograph by Mikel Blasco. Image courtesy by Mugak/2025.
Project description by Sebastián Bayo Monjas
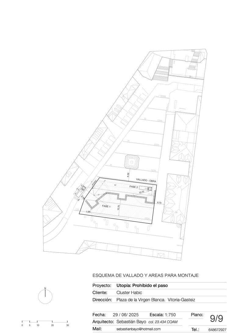
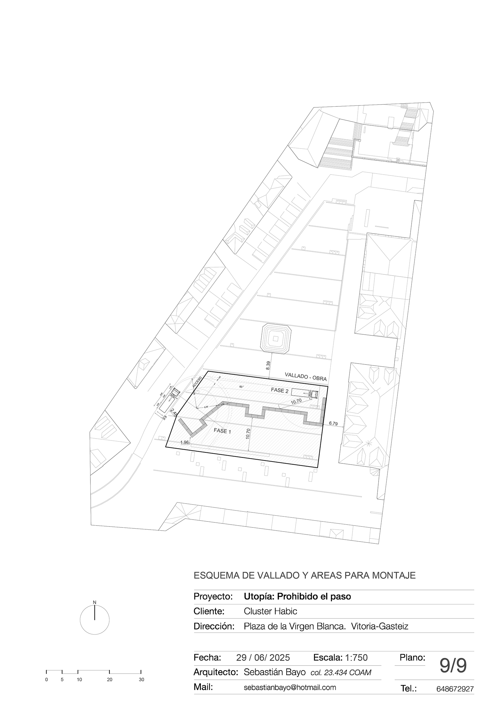
For the first time, the capital of Álava will feature an installation in a public space within the Mugak Biennial. The selected proposal is "Utopia: No Entry," by architect and artist Sebastián Bayo, which will be located in the central Plaza de la Virgen Blanca. In fact, it will divide the plaza in two: the proposal consists of a wall that will provoke reflection on the barriers that divide the world.
Thus, a wooden structure will recreate a four-meter-high wall to reflect on the real and symbolic divisions that fragment societies and territories. It addresses the concept of utopia from its paradox: it builds a wall to question their existence. Thus, the project transforms the emblematic plaza, making it difficult to pass through and limiting views; offering an experience that encourages citizen participation, allowing citizens to intervene in the wall as they wish.
“The wall, conceived as a canvas, invites the public to intervene, becoming a symbol of collective expression. This reflective gesture invites us to reinterpret borders as fictional constructions, appealing to the public to reflect on limits and their impact on social and territorial dynamics. It is an architectural intervention that not only transforms public space but also generates a powerful social and cultural discourse in line with the objectives of the Mugak Biennial.”
The wall acts as a symbol of an inaccessible utopia for those left outside (or inside) and who project their aspirations onto the other side. In a world marked by borders and inequalities, this proposal invites us to reflect on the utopia we truly inhabit.
Reconstructing a previously demolished wall refers to the constant capacity to repeat past mistakes. What was once removed in the pursuit of modernity is now reconstructed as a visual and physical obstacle that inconveniences, provokes, and calls for critical action.
The wall thus becomes a discursive medium, a space for expression and open debate, inviting artists, thinkers, and citizens. A critical installation that highlights the limits and injustices of our present.
After the intervention, the panels are preserved as an active memory, like the fragments of the Berlin Wall, distributed throughout the world as testimony to a history that still speaks volumes.