SO-IL designed the 144 Vanderbilt with a staggered volume. The prominent intersection of historic Vanderbilt and Myrtle avenues offers the building’s southeast corner heightened prominence and visibility from its surroundings. From the exterior, the building’s composition is stacked at different heights, angles and setbacks—with each residence articulated separately by subtle shifts, and featuring oversized windows that frame vistas of Brooklyn, Fort Greene Park, Manhattan and beyond.
The building is wrapped almost entirely in pink precast concrete, enabling a fully realised, carefully detailed architectural vision that is unlike any other in New York City. The scalloped surfaces of these bespoke yet precisely fabricated panels cast ever-changing shadows throughout the day. Two finishes, an acid wash and a sandblasted texture, expose the warm tones of the concrete aggregate, adding complexity and nuance to the facade. The material variation and subtle shifts in orientation create a dynamic effect.
--
SO-IL proyectó el edificio 144 Vanderbilt con un volumen escalonado. La prominente intersección de las históricas avenidas Vanderbilt y Myrtle otorga a la esquina sureste del edificio una mayor visibilidad y prominencia. Desde el exterior, la composición del edificio se presenta apilada a diferentes alturas, ángulos y retranqueos, con cada residencia articulada individualmente mediante sutiles variaciones y grandes ventanales que enmarcan vistas de Brooklyn, Fort Greene Park, Manhattan y más allá.
El edificio está revestido casi por completo de hormigón prefabricado rosa, lo que permite una visión arquitectónica completa y meticulosamente detallada, única en la ciudad de Nueva York. Las superficies onduladas de estos paneles, fabricados a medida con precisión, proyectan sombras cambiantes a lo largo del día. Dos acabados, un lavado ácido y una textura arenada, exponen los tonos cálidos del agregado de hormigón, añadiendo complejidad y matices a la fachada. La variación de materiales y los sutiles cambios de orientación crean un efecto dinámico.

«144 Vanderbilt Ave» por SO - IL. Fotografía por Iwan Baan.
"144 Vanderbilt Ave" by SO – IL. Photograph by Iwan Baan.
Descripción del proyecto por SO–IL Project description by SO–IL
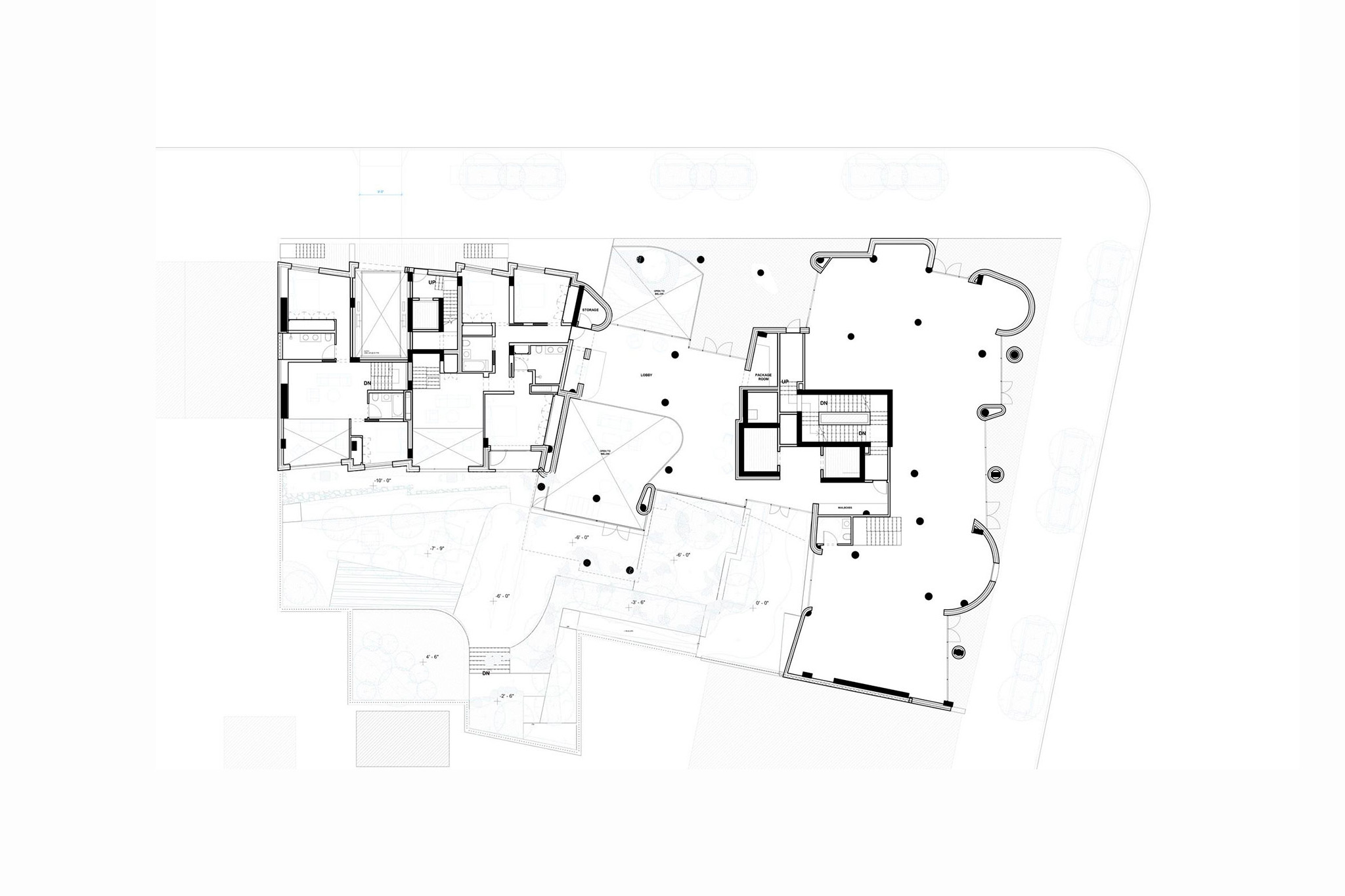
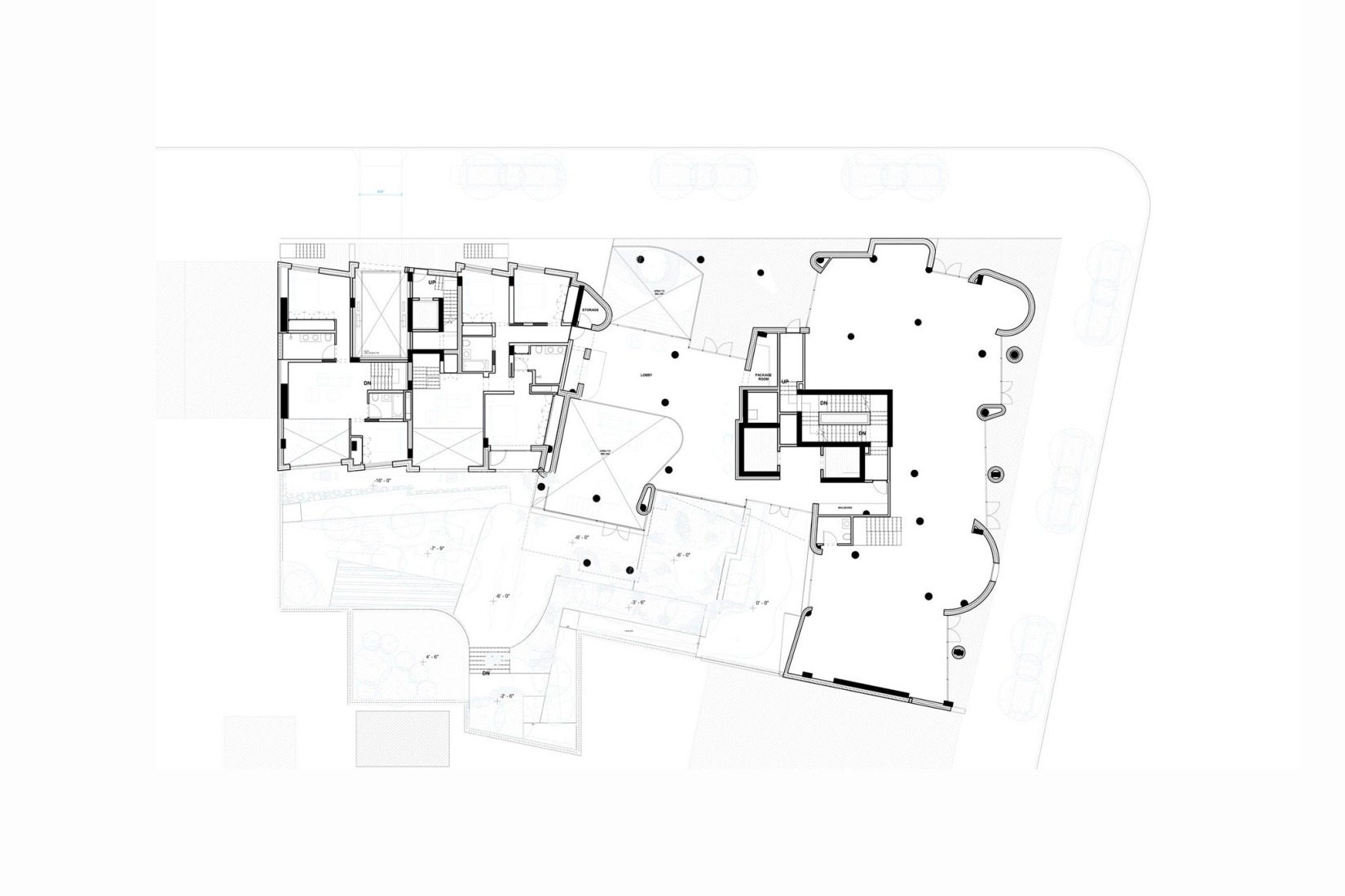
This project represents the third (after 450 Warren and 9 Chapel) in a series aimed at transforming the conventional multifamily housing typology in New York. Its distinct corner location, straddling two zoning districts, heavily influences the building's structure and layout. On one side, it aligns with a row of townhouses, rising to four stories. On Myrtle Avenue, known for its commercial activity, the building expands to accommodate six residential floors above two commercial levels. The project explores these two contrasting urban experiences, creating a structure that acts as a porous barrier, creating a tranquil inner haven that contrasts with the vibrant street life outside.
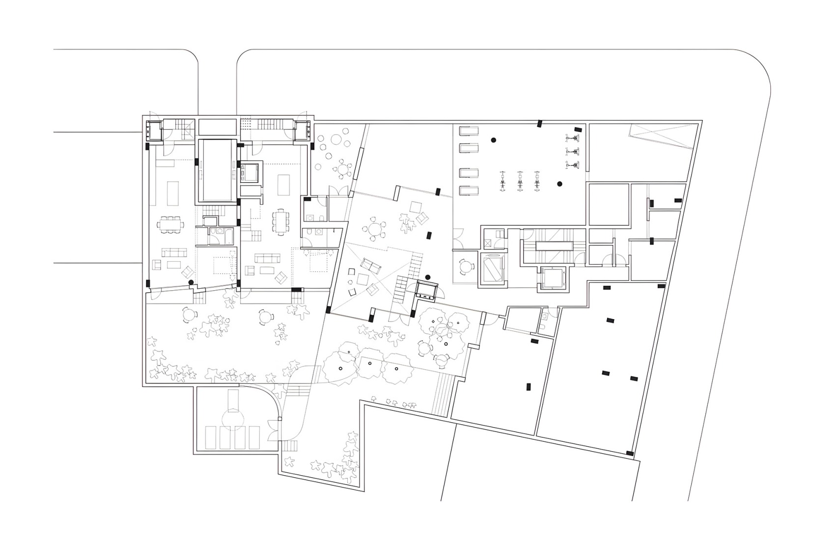
The building is filled with greenery. Its staggered design offers a variety of communal outdoor spaces, each distinct in size and function, fostering collective activities. A verdant, secluded backyard extends the local streetscape, while a central courtyard is enlivened by surrounding movement. An elevated public square also provides a visible communal area that blends indoor and outdoor environments.
The units are designed to engage residents in multiple environments simultaneously. Every apartment enjoys access to both the lively street front and the more serene interior of the site. Residents also have proximity to shared outdoor spaces within the building, encouraging outdoor living, neighbourly interactions, and engagement with the building's communal life.
The building's facade comprises precast concrete panels varying in shape, size, and finish. This diversity contributes to the building's unique and robust urban appearance, marking it as a bespoke architectural piece within New York's multifamily housing landscape.
---
Este proyecto es el tercero (tras el 450 Warren y el 9 Chapel) de una serie destinada a transformar la tipología convencional de la vivienda multifamiliar en Nueva York. Su singular ubicación en esquina, a caballo entre dos distritos de zonificación, influye considerablemente en la estructura y la distribución del edificio. Por un lado, se integra en una hilera de casas adosadas, con una altura de cuatro plantas. En Myrtle Avenue, conocida por su actividad comercial, el edificio se expande para albergar seis plantas residenciales sobre dos niveles comerciales. El proyecto explora estas dos experiencias urbanas contrastantes, creando una estructura que actúa como una barrera porosa, creando un remanso de paz interior que contrasta con la vibrante vida callejera del exterior.
El edificio está repleto de vegetación. Su diseño escalonado ofrece una variedad de espacios comunes al aire libre, cada uno distinto en tamaño y función, que fomentan las actividades colectivas. Un patio trasero frondoso y apartado amplía el paisaje urbano local, mientras que un patio central cobra vida gracias al movimiento que lo rodea. Una plaza pública elevada proporciona además una zona común visible que fusiona los ambientes interiores y exteriores.
Las viviendas están diseñadas para que los residentes disfruten de múltiples entornos simultáneamente. Cada apartamento tiene acceso tanto a la animada calle como al interior más tranquilo del edificio. Además, los residentes tienen acceso a espacios exteriores compartidos dentro del edificio, lo que fomenta la vida al aire libre, la interacción con los vecinos y la participación en la vida comunitaria.
La fachada del edificio está compuesta por paneles prefabricados de hormigón de diferentes formas, tamaños y acabados. Esta diversidad contribuye a la apariencia urbana única y robusta del edificio, lo que lo convierte en una obra arquitectónica singular dentro del panorama de la vivienda multifamiliar de Nueva York.
