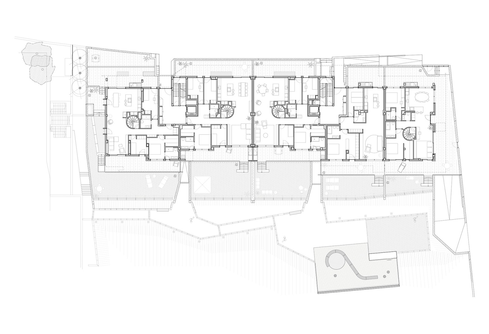
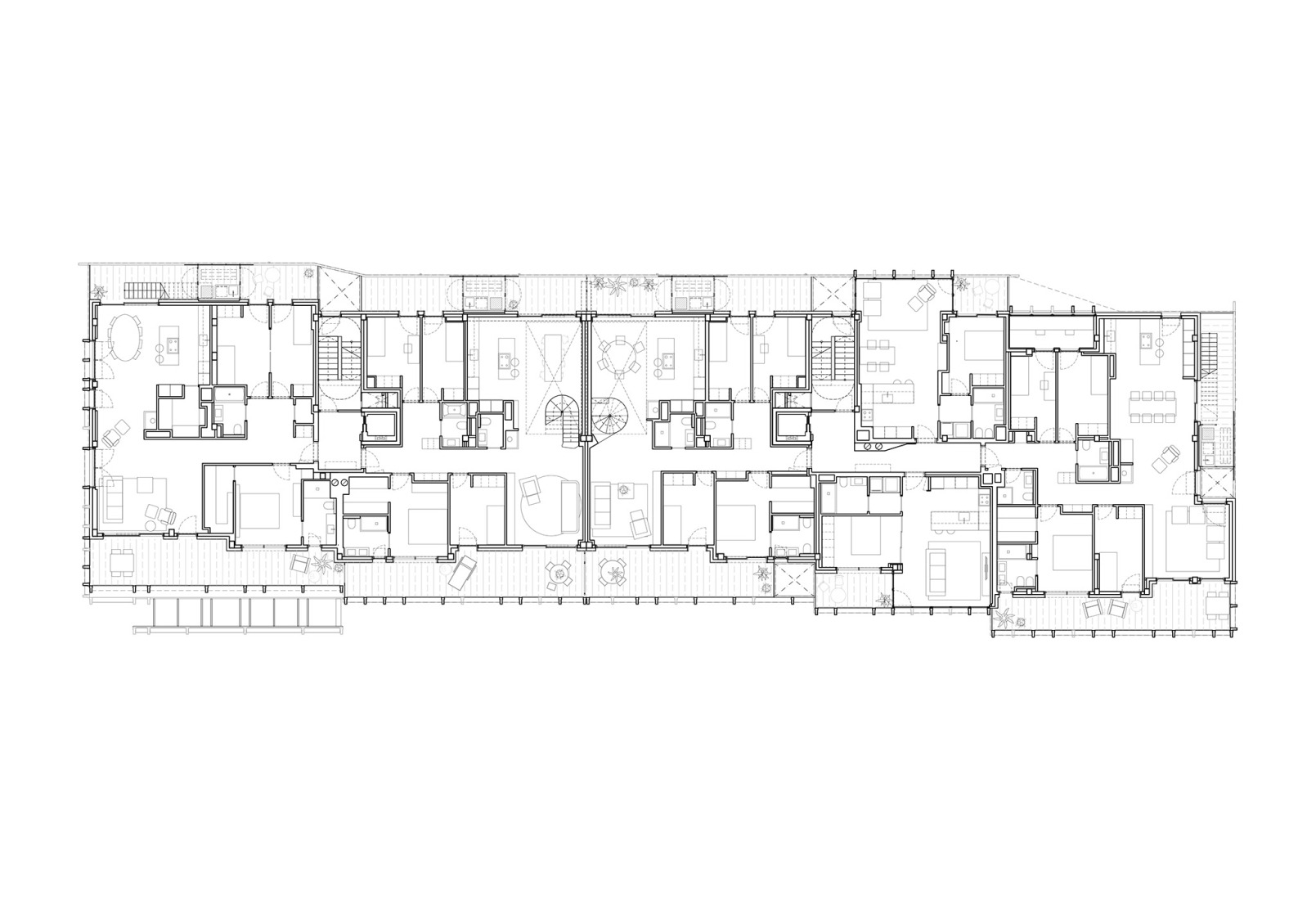
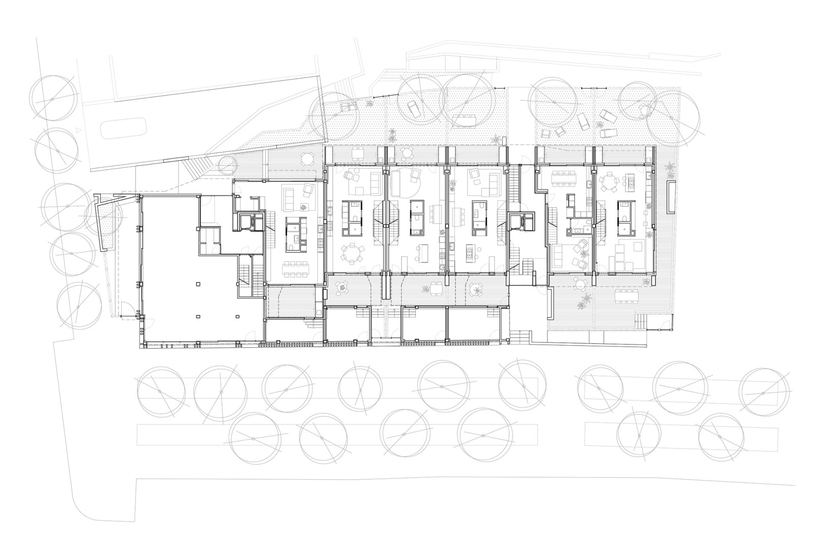
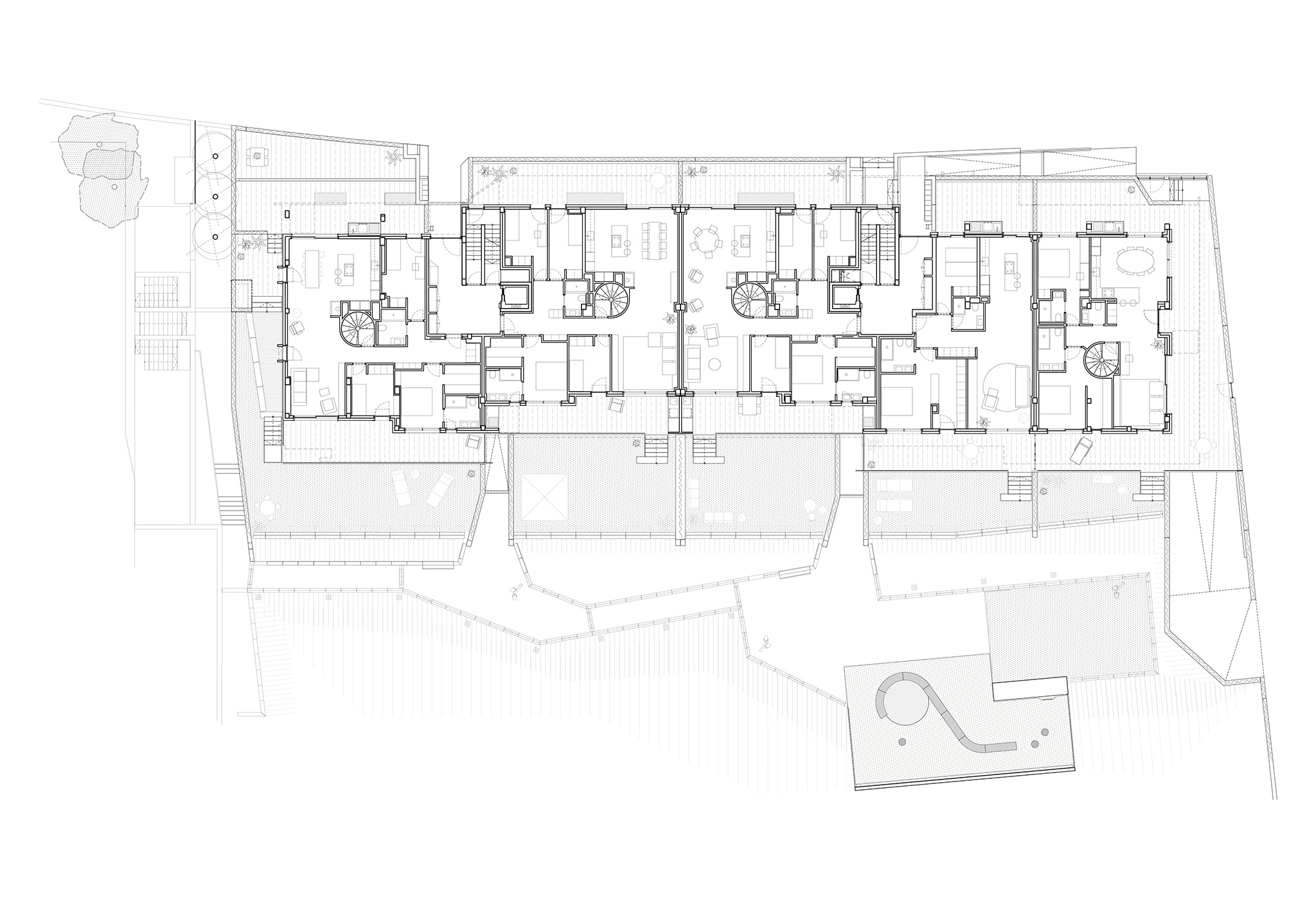
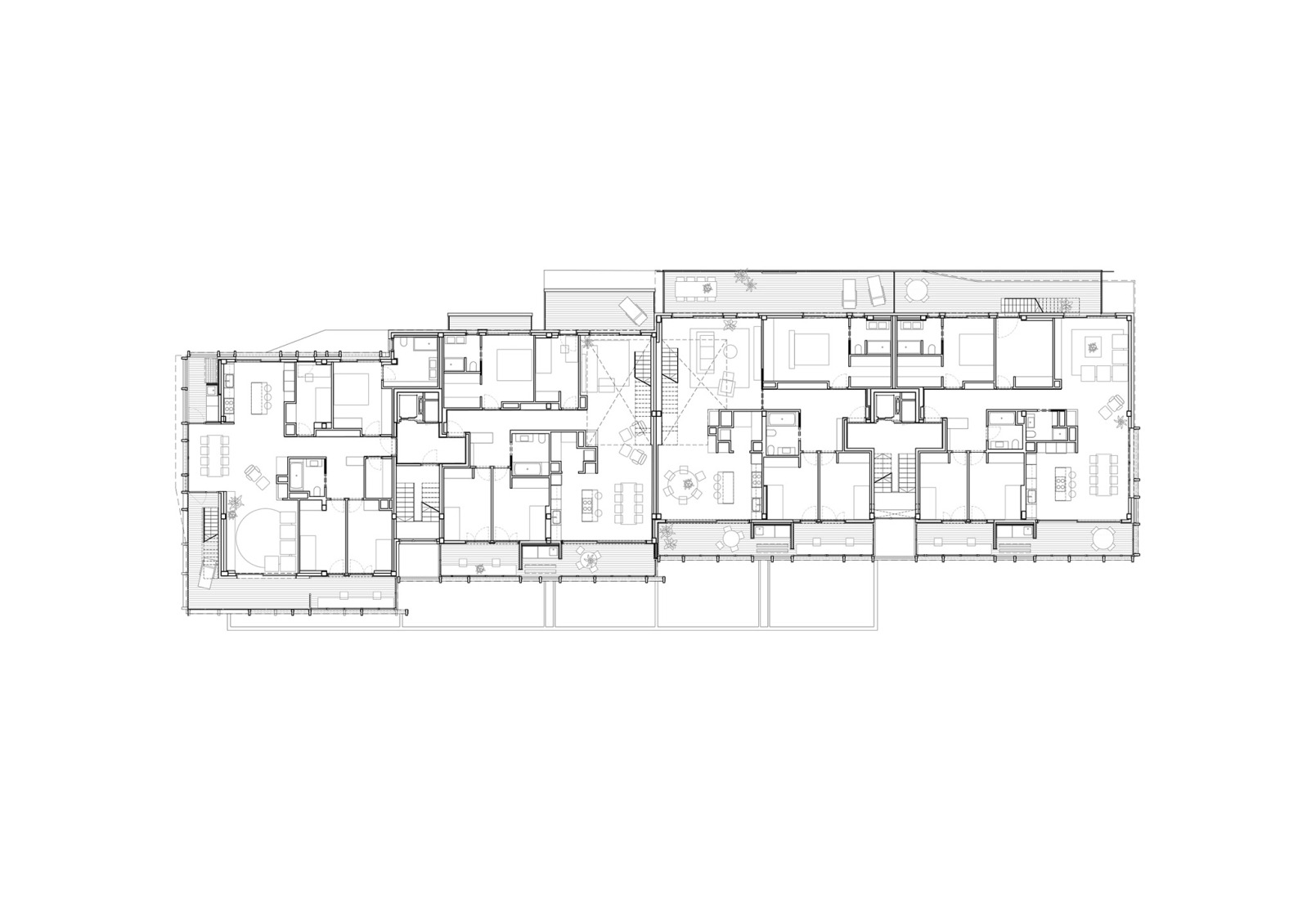
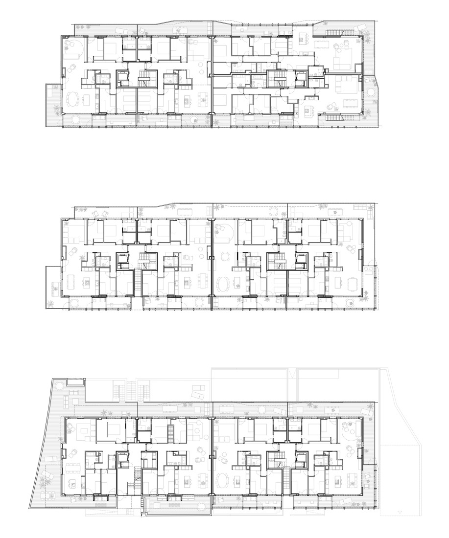
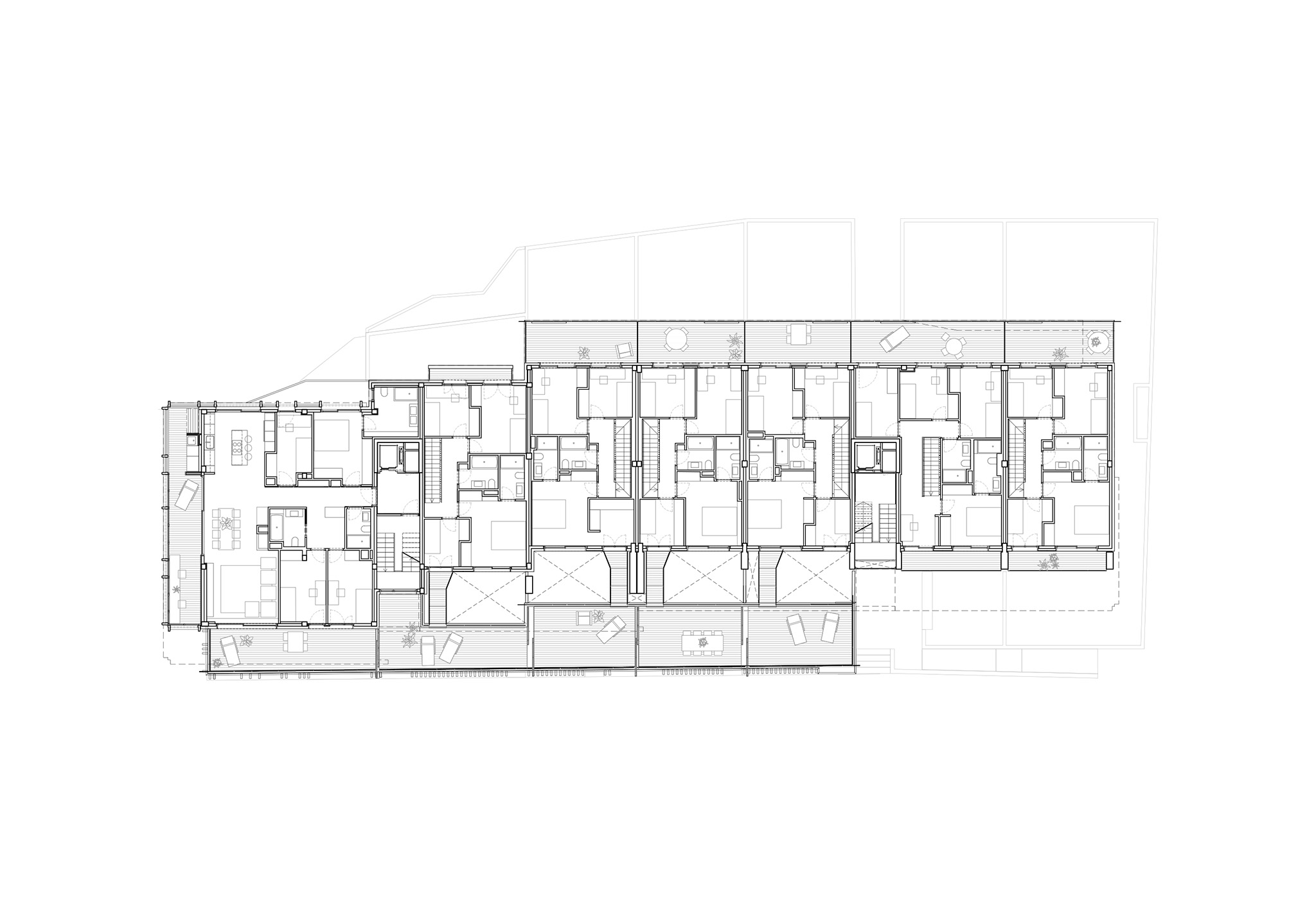
For these "Garden Apartments" in "Espai Natura," BAILORULL proposes ambiguous spaces without a defined use—balconies, terraces, galleries, patios, and gardens—to create porous, breathable homes that are open yet protected from the outside. These homes are characterized by having a distinct layout in each phase, adapting to the orientation of the lot and the site.
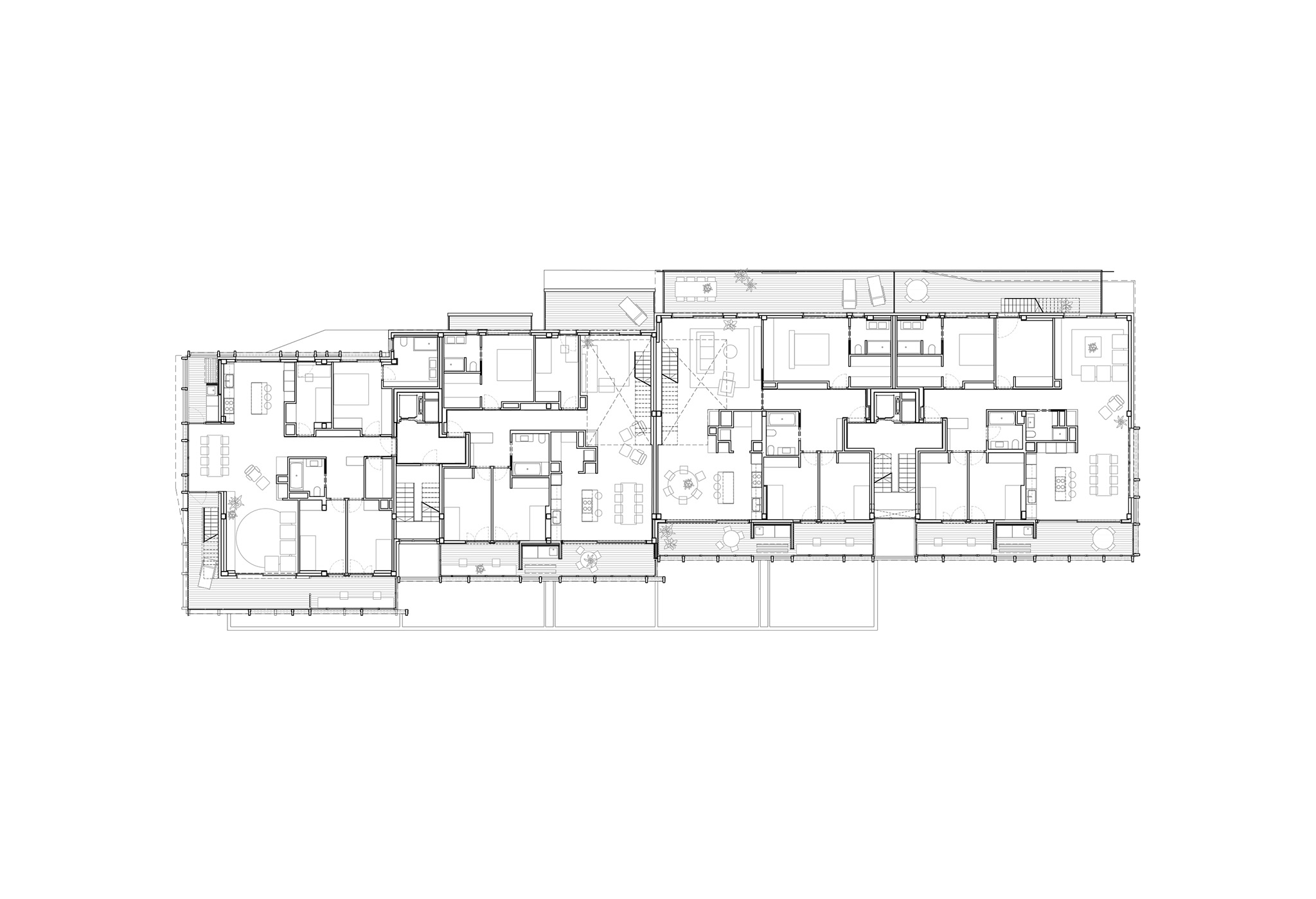
In this Phase 3, unlike in previous phases, the south-facing facades have not been enclosed; the "buffer" or climate-transition spaces—constructed using precast concrete elements—remain open, equipped solely with sunshades. On the northeast facade, balconies of varying widths have been designed with railings made of solid precast concrete elements, increasing the privacy of the homes.

"Espai Natura" by BAILORULL. Photograph by Jose Hevia.
Project description by BAILORULL
Garden Apartments
Ten years ago, we began the residential project Espai Natura, a project that, from its conception, we knew would be developed and carried out slowly over several years. We appreciate a kind of architecture that unfolds gradually over time—architecture that matures slowly.
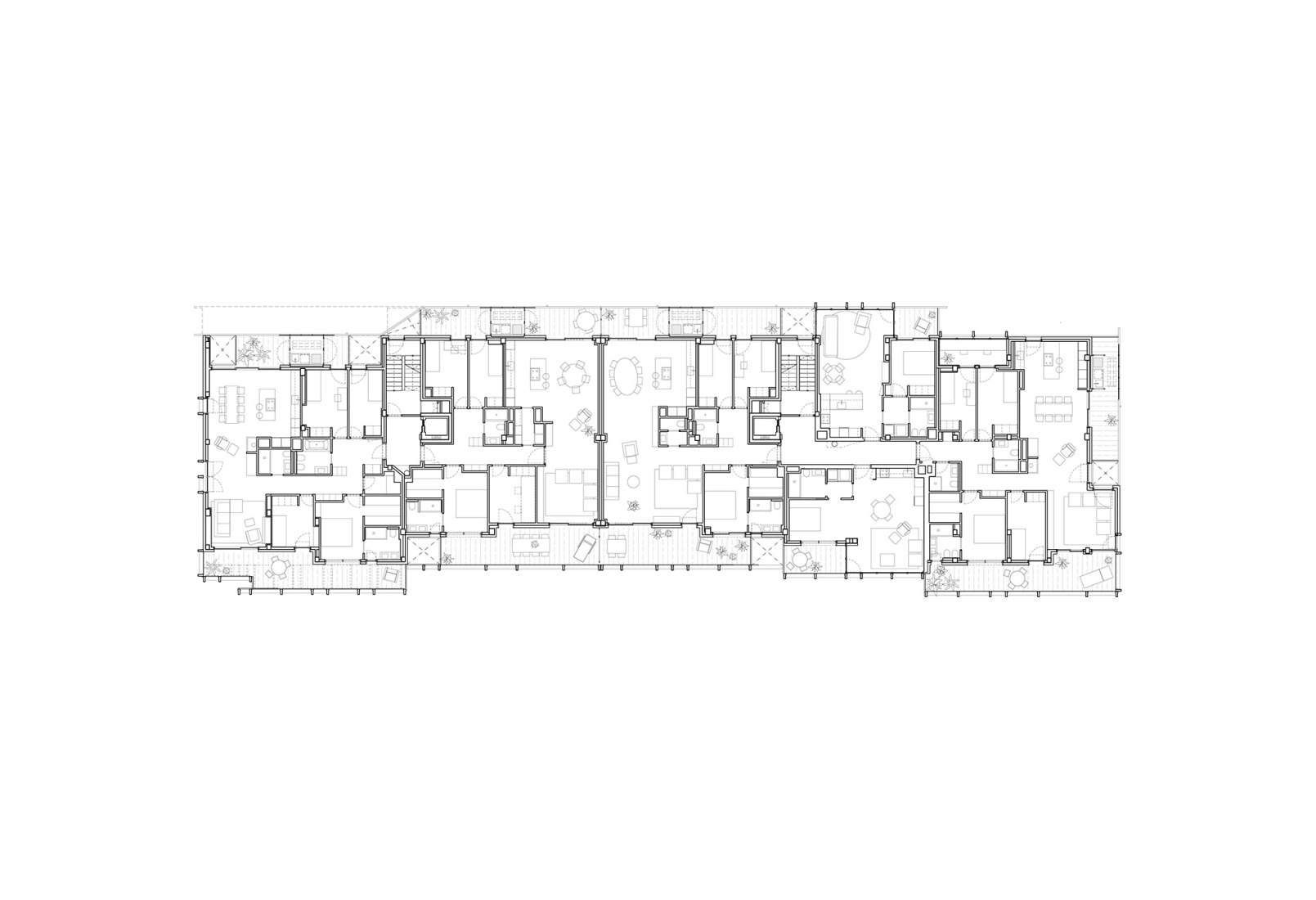
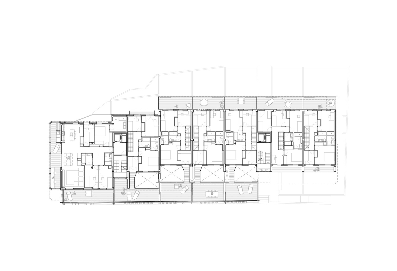
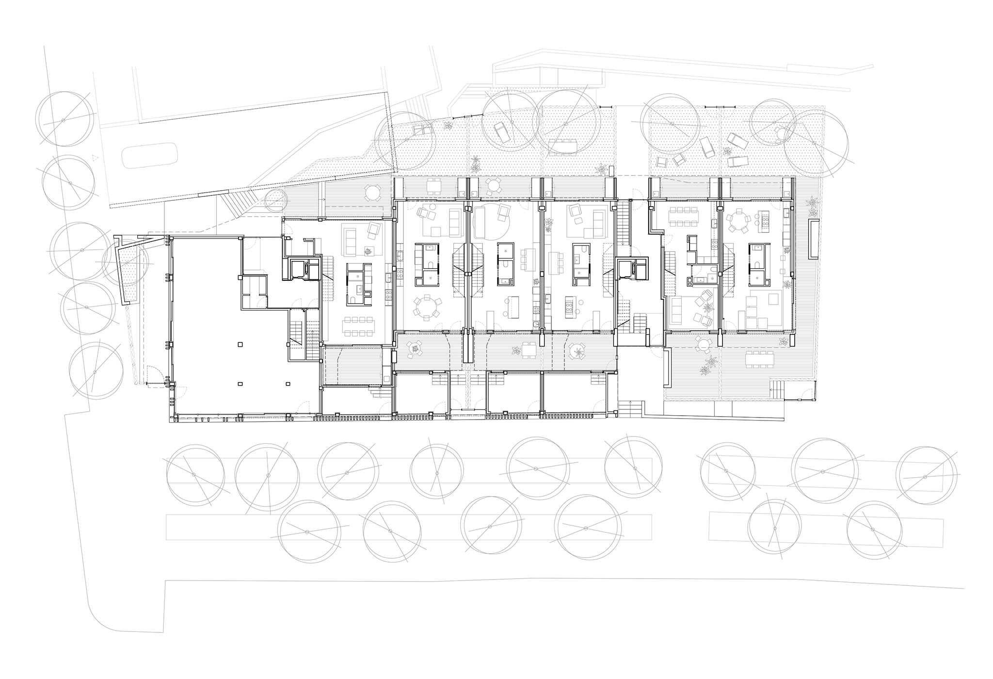
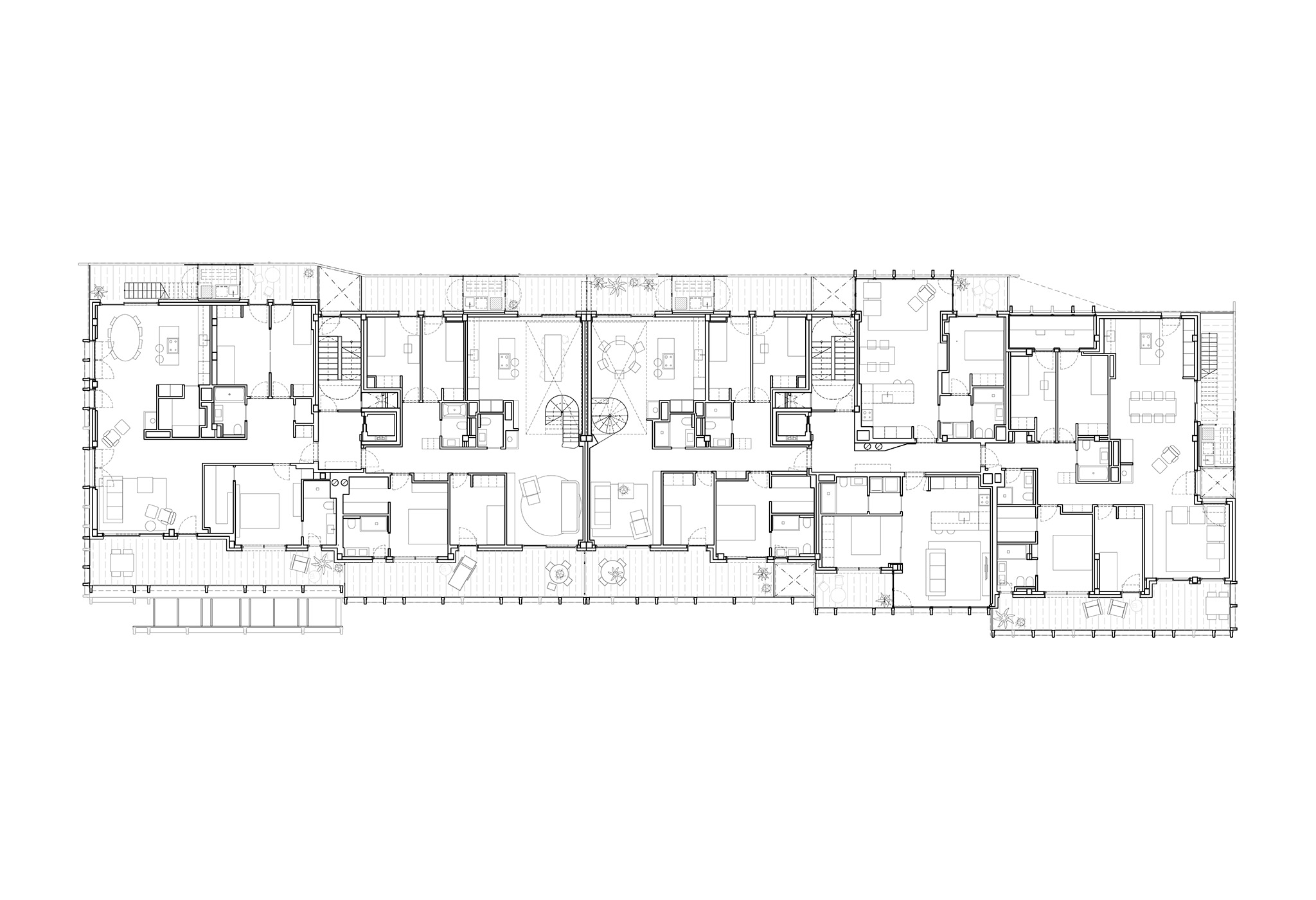
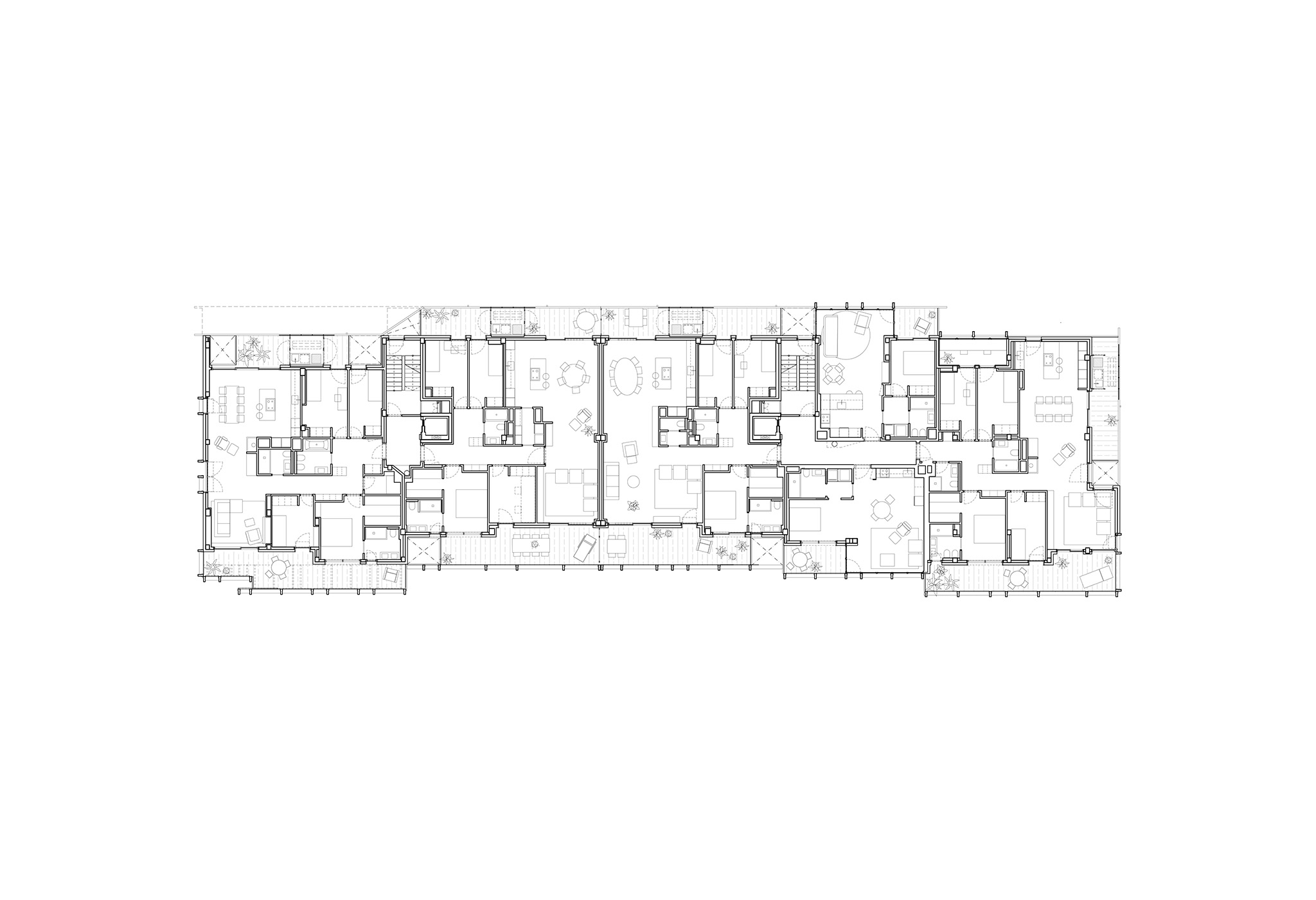
The project consists of four different phases, executed over a period of 15 years (currently, the fourth and final phase is in its early stages of construction). All phases share the same idea: designing garden apartments—homes that incorporate transitional climatic spaces between the interior and the exterior. These are undefined, ambiguous spaces without a predetermined function, but thanks to their section and configuration, they help regulate the building’s climate. They are homes in which all residents have semi-interior and semi-exterior intermediate spaces: open apartments that are nevertheless protected from outside conditions; porous apartments—apartments that breathe. Garden Apartments.
The Garden Apartments are characterized, in each phase, by a different section adapted to their solar orientation and site conditions. These homes include various types of transitional spaces—balconies, terraces, galleries, courtyards, and gardens—that provide residents with intermediate areas between the interior and exterior of the dwelling.
Bulging Bulky Prefabricated Concrete Facades
These transitional climatic spaces were constructed through the design of prefabricated concrete elements that incorporate adjustable shutters, allowing control of solar radiation and the building’s thermal demand.
In this Phase 3, the south-facing façade has not been enclosed with window frames and glass, as in the climatic galleries of the previous phases (F-1 and F-2). Instead, the buffer spaces remain open, without enclosure. They are more stripped-back intermediate spaces, equipped only with a solar protection element (shutter). In this way, more transparent environments are created that face the shared interior garden of the block: spaces protected from the sun but open to the surrounding greenery.
On the northwest façade, facing Josep Tarradellas Street, balconies of variable width—between 1.80 and 2.50 meters—have been designed, allowing the building to adapt to the street’s changing section while maintaining views from the apartments built in Phase 1. The railing of these terraces has been resolved using a solid prefabricated concrete element, which provides privacy for the dwellings.
The shared objective of the three phases—to create Garden Apartments—has been achieved through the design of thick façades. These are bulging façades defined by an integrated system of prefabricated concrete elements capable of incorporating solar protection and responding to the building’s thermal demand, while also including intermediate transitional spaces.
This prefabricated concrete system provides both unity and variety across the entire block. These façades incorporate an undefined space that, in each phase, adapts to its specific solar orientation and contextual conditions.