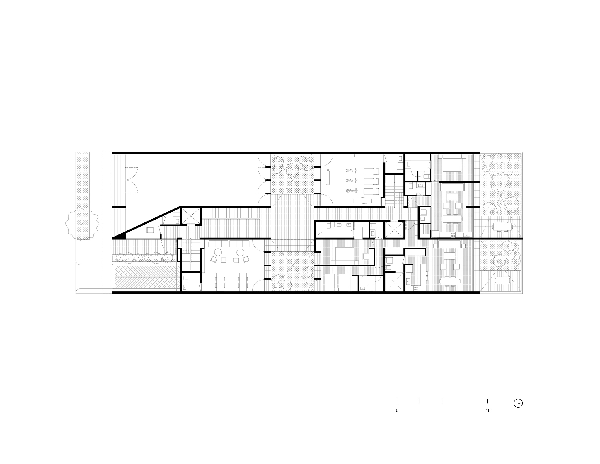
The strategy developed by Bernardo Quinzaños, the architect in charge of CCA, is based on the arrangement of two volumes: one facing the street and the other facing inward. Articulated by a central courtyard and a rear patio, these spaces not only ensure comfortable environmental conditions but also structure the organization of the complex. The floor plans are configured through combined layouts that avoid direct views between the two volumes, preserving privacy without compromising spatial quality.
The materiality is expressed in a main façade of exposed concrete pigmented in a reddish tone, whose composition emphasizes a vertical rhythm of windows and planters. The structure is resolved through a system of lightweight slabs and load-bearing vertical cores, while the interior façades are finished in stucco in the same tone, reinforcing the material continuity between the exterior spaces and the patios.

"Londres 187" by CCA. Photograph by Arturo Arrieta, courtesy of CCA | Bernardo Quinzaños.
Project description by CCA
Located on Londres Street in Colonia Juárez, the building combines collective housing with ground-floor retail. The proposal makes the most of the site through an organization of two volumes articulated by a central courtyard and a rear courtyard, which ensure natural light and cross ventilation.
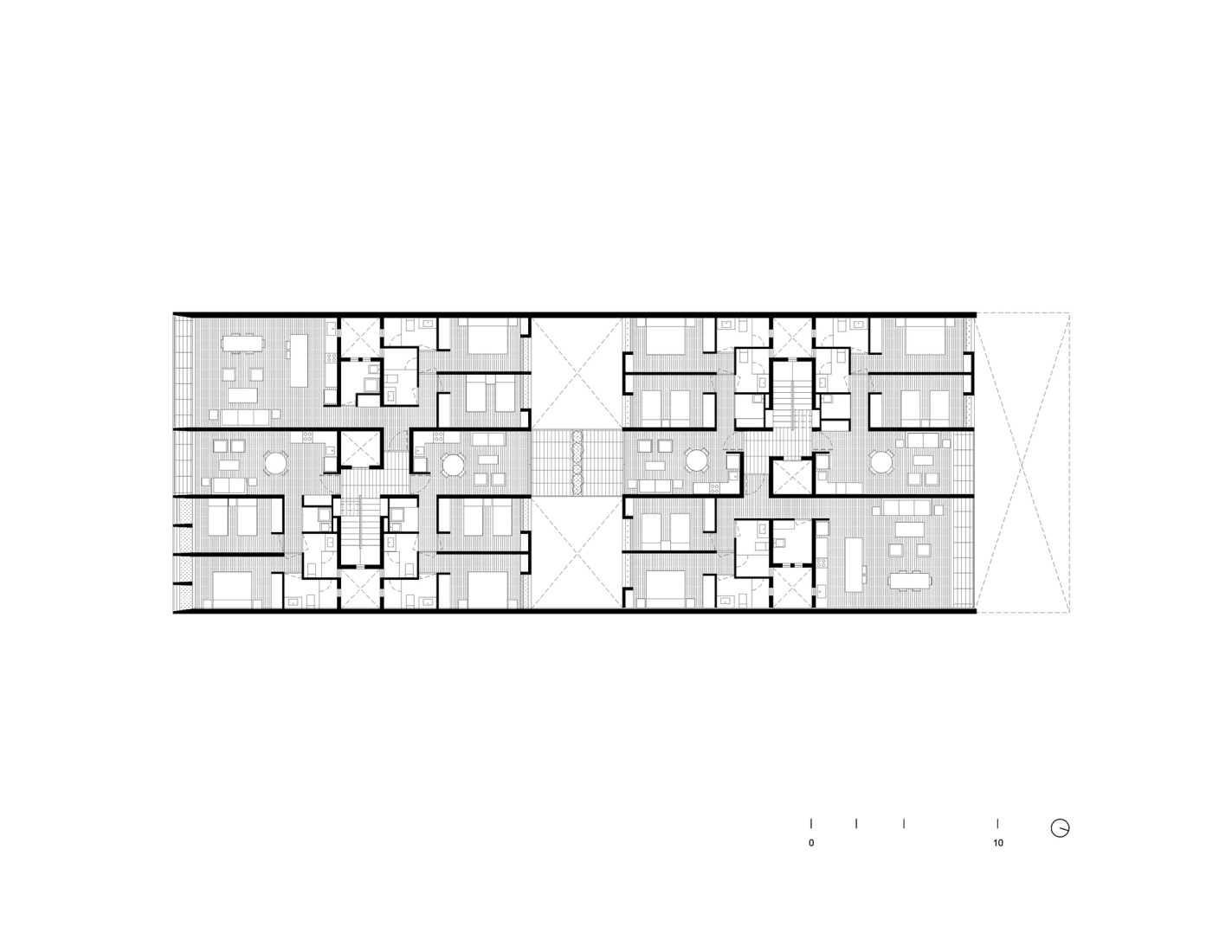
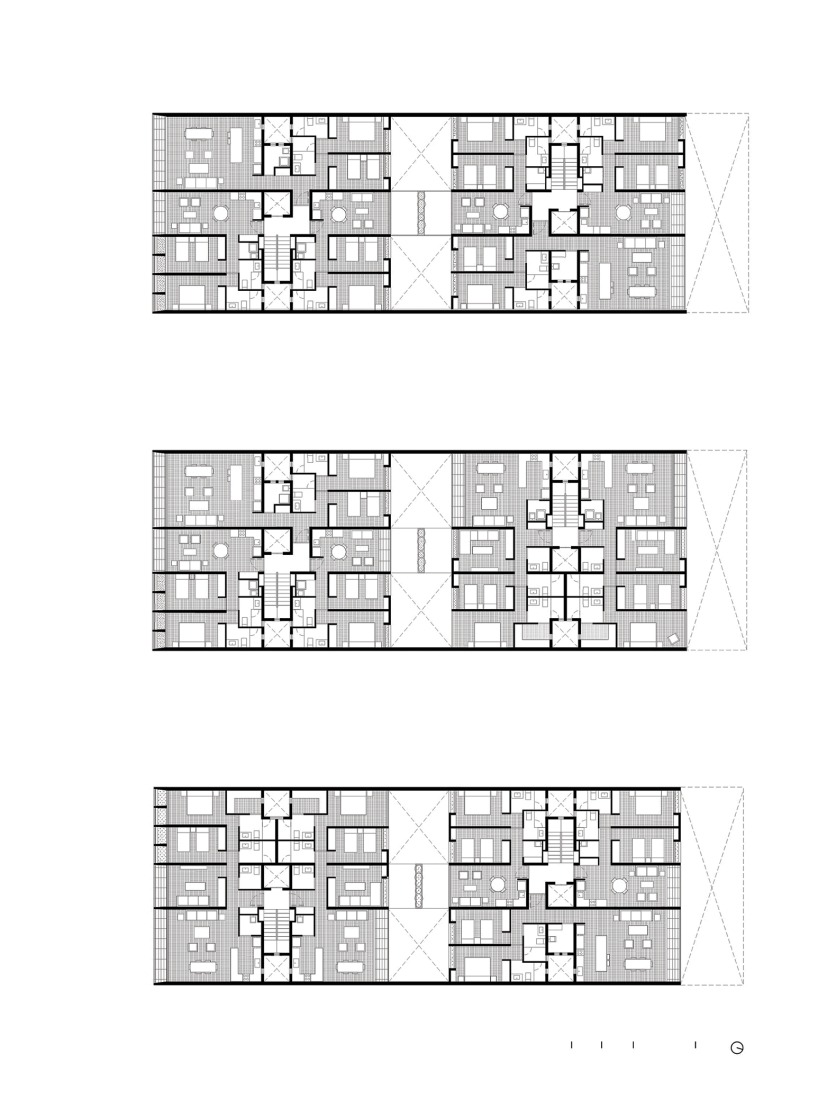
The brief called for maximizing the use of the lot through two- and three-bedroom units. To achieve this, one volume faces the street while the other is set toward the interior, both connected by two vertical circulation cores. The typologies were organized as a system of interlocking floor plans that avoids direct views between the two volumes, preserving privacy without compromising livability. As a result, each unit opens onto at least one view toward the interior courtyards or the exterior.
This internal logic is expressed on the main façade through a vertical rhythm that alternates windows and planters, in dialogue with the jacaranda tree along the sidewalk.
The program includes ground-floor retail, a multipurpose room, gym, split-level parking, storage rooms, and private rooftop terraces prepared for solar energy systems. Technical installations are concentrated in accessible service courtyards to facilitate operation and maintenance.
The main façade was built in exposed concrete pigmented in a reddish tone. The structure is resolved through lightweight slabs and load-bearing vertical cores; toward the interior, the façades are finished in stucco of the same tone, reinforcing material continuity between the exterior surfaces and the courtyards.