The architecture practice wulf architekten has designed the Oberamteistraße Historical Museum, located on a street of great heritage and historical value in the historic center of Reutlingen, Germany. In this historic row of houses, the architectural elements date back to the 13th century.

The project, a rehabilitation and historical preservation undertaking, required the construction of a new building on the site of the former "Stone House," one of the oldest and most interesting buildings in the old town of Reutlingen, which was demolished in 1972.

The Oberamteistraße Historical Museum, designed by wulf architekten, boasts a bright and iridescent appearance thanks to its barrier-free access and a roof and facade clad with a homogeneous layer of fused glass tiles. The new building, with its understated exterior and internal structure of wooden trusses, recovers the original form of the historic house.

The load-bearing timber structure was developed parametrically and features a triple-layered substructure of diagonally and horizontally overlapping timber elements that support the cast glass tiles with a beaver-tail shape, which envelop the building. Depending on the natural light and interior illumination, the timber truss becomes more or less visible, giving the whole an appearance of a mysterious chimera. Open joints in the façade allow for natural ventilation and smoke extraction.

Historical Oberamteistraße Museum by wulf architekten. Photograph by Brigida Gonzalez.
Historical Oberamteistraße Museum by wulf architekten. Photograph by Brigida Gonzalez.

Historical Oberamteistraße Museum by wulf architekten. Photograph by Brigida Gonzalez.

Project description by wulf architekten

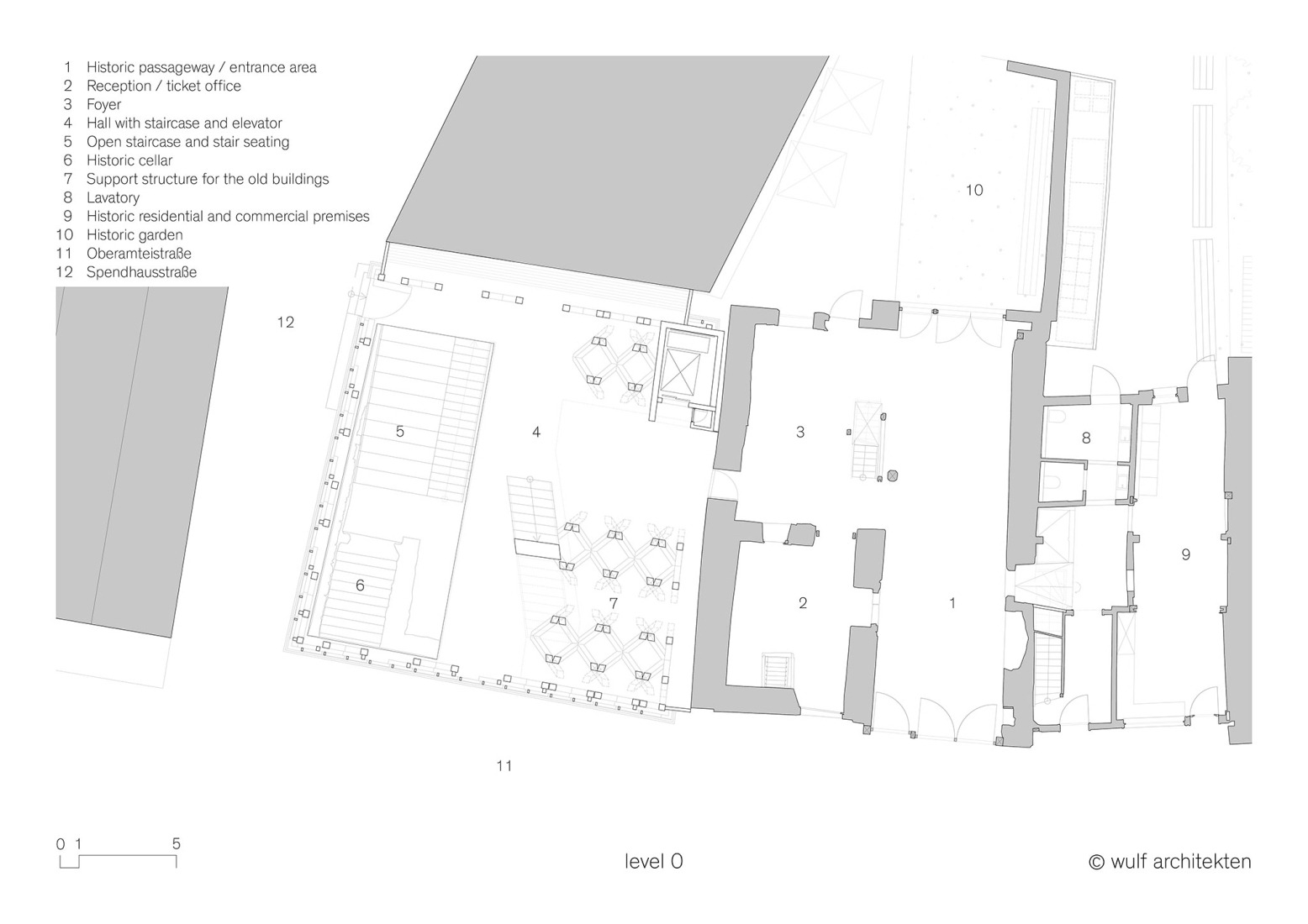
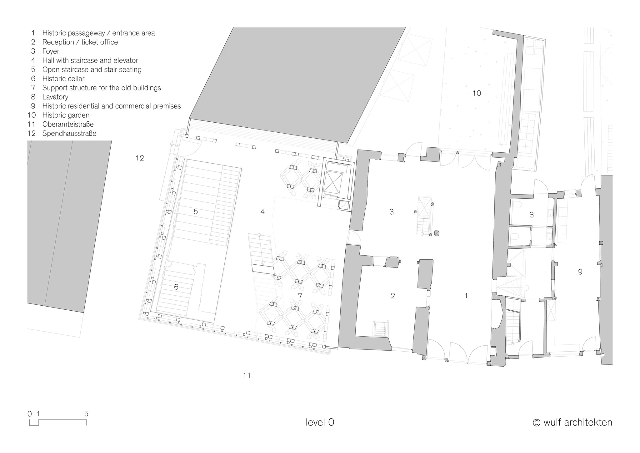
The historic row of houses at Oberamteistraße 28–32, along with the surviving basement of the “Stone House” that had occupied plot no. 34 but was demolished in 1972, are among the oldest and most interesting buildings in the former free imperial city of Reutlingen. These architectural artifacts date back to the 13th century, when the city of Reutlingen was founded. The ensemble is therefore one of the oldest rows of houses in southern Germany, authentically reflecting the development of building and living culture over the centuries.  

Historical Oberamteistraße Museum by wulf architekten. Photograph by Brigida Gonzalez.

The rehabilitation, which follows historic preservation criteria, has also required the construction of a new corner building where the former “Stone House” once stood, which shores up the surviving historic ensemble and protects it from collapse. The old buildings serve as a museum and are themselves exhibits, displaying over 700 years of urban, cultural, and architectural history. The new building’s outward appearance is restrained. The internal structure consists of wooden trusswork that braces the adjoining row of houses and reestablishes the lost form of the historic house. The new building facilitates barrier-free access to the old buildings and provides space for small events. The roof and facades are clad with a homogeneous layer of cast-glass “beaver-tail” tiles. Depending on the conditions of incident light, reflection, and interior lighting, the wooden trusswork behind it is more or less visible, and the building appears diaphanous and iridescent – giving it a mysterious quality, like a chimera. The newly designed outer skin makes the interior seem blurry, like a distant memory. Something that persists in the memories of those who still knew the old house is made visible again for future generations.  


Historical Oberamteistraße Museum by wulf architekten. Photograph by Brigida Gonzalez.
Historical Oberamteistraße Museum by wulf architekten. Photograph by Brigida Gonzalez.

The new building’s geometrically complex, load-bearing wooden structure was developed parametrically. The architectural requirements and constructive logic align precisely. A triple-layer, gradually dissipating substructure of diagonally and horizontally overlapping wooden members carries the glass beaver-tail tiles as external cladding for weather protection. No thermal insulation or air conditioning is required in the new building, which also serves as a protective enclosure for the historic cellar. Open joints along the entire exterior of the building provide natural ventilation and smoke extraction. The building was designed for circularity in accordance with the Cradle to Cradle (C2C) design and sustainability concept. Thus, all connections are screwed together so they can be easily disassembled. Concrete was generally avoided and only used where structurally necessary. The Historical Oberamteistraße Museum project is supported by the federal program “Nationale Projekte des Städtebaus” (National Urban Development Projects), enabling it to preserve and upgrade one of the oldest rows of half-timbered houses in southern Germany. 

More information

Label
Architects
Text

wulf architekten. Lead architect.- Stephan Burger. 

+ + copy Created with Sketch.
- + copy Created with Sketch.
Label
Project team
Text

Office Lead Architects.- Tobias Wulf, Jan-Michael Kallfaß, Ingmar Menzer, Steffen Vogt, Gabriel Wulf. 
Team.- Philipp Stute, Nicole Cao, Antonio Dürig, Hannah Esch, Junjie Long, Michael Mayer, Kübra Mercan, Damla Mirik, Nova Michalski, Simon Müller, Weiyan Wang, Maria Wyller.

+ + copy Created with Sketch.
- + copy Created with Sketch.
Label
Collaborators
Text

Landscape Architecture.- Bäuerle Landschaftsarchitekten.
Project Management.- Hitzler Ingenieure.
Engineering & Consulting - MEP.- IB Wienand.
Engineering & Consulting - Electrical.- IB Köhler.
Engineering & Consulting - Structura.- Structure.
Engineering & Consulting - Other.- Strebewerk, Ingenieurbüro Grau, planR, Brandschutz Consulting, Kurz und Fischer, Béla Berec.

+ + copy Created with Sketch.
- + copy Created with Sketch.
Label
Area
Text

338 sqm.

+ + copy Created with Sketch.
- + copy Created with Sketch.
Label
Dates
Text

2025.

+ + copy Created with Sketch.
- + copy Created with Sketch.
Label
Location
Text

Spendhausstraße 3, 72764 Reutlingen, Germany.

+ + copy Created with Sketch.
- + copy Created with Sketch.
Label
Manufacturers
Text

Sto, Binder Holz GmbH Wood Industry, Conluto, Fuchs Design, La Rochère, Tormax, Viabizzuno.

+ + copy Created with Sketch.
- + copy Created with Sketch.
Label
Photography
+ + copy Created with Sketch.
- + copy Created with Sketch.
wulf architekten is an architecture studio that was founded by Tobias Wulf in 1987. It has a total of 150 employees distributed between its headquarters in Stuttgart, Berlin and Basel.

The office is currently headed by Tobias Wulf, Jan-Michael Kallfaß, Ingmar Menzer and Steffen Vogt. From 1996 to 2018, Kai Bierich and Alexander Vohl were partners of Tobias Wulf at wulf architekten. In addition to office activity, they also participate in teaching, in professional organizations, as specialized judges and in design committees. In recent years, his projects have been awarded numerous awards.

All the projects they produce are guided by ten premises regarding; concept, context, resources, vision, structure, form, space, type, flexibility and complexity. His spectrum of work encompasses a variety of sophisticated construction assignments. Their architecture is characterized by clarity and breadth: they also seek simple solutions for complex tasks, always aware of the finite nature of our resources. Their commitment to quality is based on the continuity of work throughout all phases of the project. Functionality and economy are the basis for developing high-quality architecture, although this is never the only goal.
Read more
Published on: April 16, 2026
Cite:
metalocus, ANTONIO GRAS, ELVIRA PARÍS FERNÁNDEZ
"Iridescent and chimeric. Historical Oberamteistraße Museum by wulf architekten" METALOCUS. Accessed
<https://www.metalocus.es/en/news/iridescent-and-chimeric-historical-oberamteistrasse-museum-wulf-architekten> ISSN 1139-6415
Loading content ...
Loading content ...
Loading content ...
Loading content ...
Loading content ...
Loading content ...
Loading content ...
Loading content ...
Loading content ...
Loading content ...
Loading content ...
Loading content ...
Loading content ...
Loading content ...
Loading content ...
Loading content ...
Loading content ...
Loading content ...
Loading content ...
Loading content ...
Loading content ...
Loading content ...
Loading content ...
Loading content ...
Loading content ...
Loading content ...
Loading content ...
Loading content ...
Loading content ...
Loading content ...
Loading content ...
Loading content ...
Loading content ...
Loading content ...
Loading content ...
Loading content ...
Loading content ...
Loading content ...
Loading content ...
Loading content ...
Loading content ...
Loading content ...
Loading content ...
Loading content ...
Loading content ...
Loading content ...
Loading content ...
Loading content ...
Loading content ...
Loading content ...
Loading content ...
Loading content ...
Loading content ...
Loading content ...