Sogo Arquitectos ha querido que en los espacios se aproveche al máximo el buen clima de Picassent; por este motivo, se limitan a los volúmenes cubiertos los usos estrictamente docentes, dejando en los espacios abiertos el resto de usos. El acceso se realiza por el lado más urbanizado de los tres que tiene la parcela, para facilitar la circulación en la entrada y salida de las clases, seguido por un espacio ocupado por un gran árbol y naranjos, que dan paso al pórtico por el que se accede a los espacios de primaria, infantil y administración, y que se encarga de organizar el resto de los edificios. Al llegar al volumen norte a través del pórtico, se encuentran dos volúmenes paralelos y limítrofes con la huerta, en los que se incorporan el resto de aulas y un patio intermedio plantado con limoneros.
La estructura se basa en una combinación de pilares metálicos y forjados de losa maciza de hormigón que, al colocarse paralelos a la fachada, crean un pórtico lateral en el edificio. Los espacios de mayor dimensión, como el comedor o el gimnasio, se ubican en los laterales del volumen, limitados por un muro de hormigón que porta las cerchas con las que se construyen los lucernarios.
Los cerramientos son cerámicos y se recubren de piedra o enfoscado, dependiendo del espacio. Los pavimentos se diferencian según el uso, siendo de hormigón pulido en el interior y lavado en el exterior. Las carpinterías consiguen una unidad visual y mayor luminosidad tanto en el interior como en el exterior. La demanda energética del edificio se cubre gracias a las placas solares, que además abastecen a un sistema de renovación del aire.

Scbil.la Mercer por Sogo Arquitectos. Fotografía por Mariela Apollonio.
Descripción del proyecto por Sogo Arquitectos
El colegio público Sibi.la Mercer se encuentra en Picassent, un pueblo de unos 22.000 habitantes situado a 11 km al oeste del mar Mediterráneo y a otros tantos de la ciudad de Valencia. El terreno que separa a Picassent del mar es la vasta llanura en la que desemboca el río Turia. Un terreno de aluvión transformado a través de los siglos por la constante construcción de una infraestructura hidráulica que convirtió las áridas tierras en fértiles huertas estructuradas por la red de acequias que distribuyen las aguas del Turia, al norte y al sur de su cauce. Parte de la llanura está perforada por el lago de la Albufera, originalmente de agua salada y ahora convertido, en gran parte, en productivos campos de arroz. Casi en la frontera de esta llanura se encuentra Picassent, elevado 54 metros sobre el nivel del mar. Las tierras de Picassent fueron sustituyendo los cultivos de secano por cultivos de regadío, gracias a la construcción de nuevas infraestructuras hidráulicas que comenzaron en el siglo XVII. Actualmente, el término municipal de Picassent es un vergel cuajado de ordenados campos de naranjos y otros frutos.
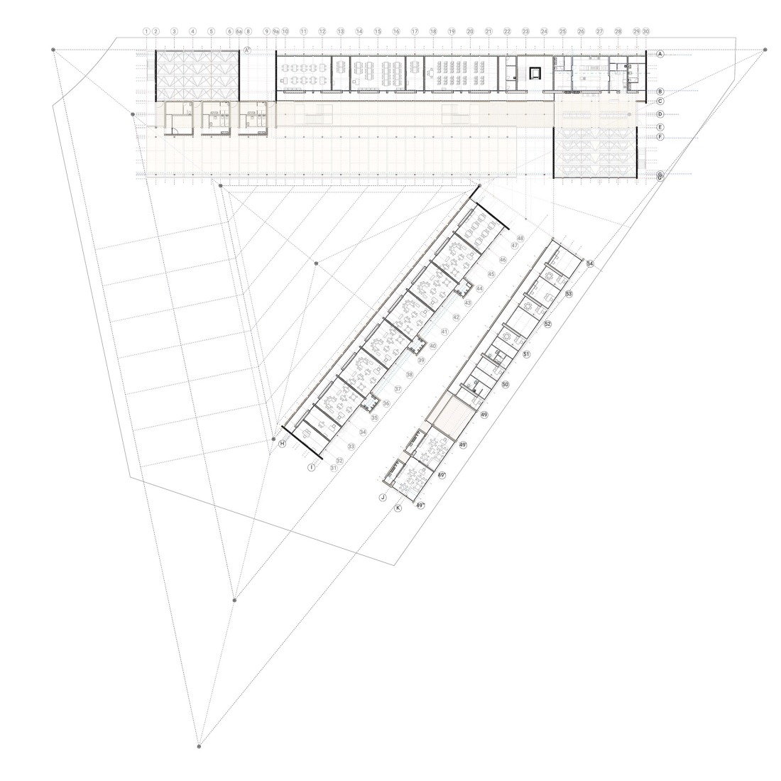
Tanto éste como todos los pueblos de la llanura, aunque estaban perfectamente insertados en la huerta, han crecido negándola. La edificación en altura, permitida con la finalidad de no ocupar el valioso territorio, no era incompatible con trazados que respetaran su verdadera estructura, que parte de la infraestructura hidráulica que genera los campos. El núcleo de Picassent crece hasta una línea y, tras ella, se encuentra el jardín. No se mezcla. En una de estas fronteras entre lo urbano y la fértil huerta se ubica la parcela en la que hemos construido el colegio. Se trata de una parcela triangular cuyo lado norte linda con la huerta, mientras que los otros dos recaen a un entorno completamente urbano.
La estrategia de implantación ha sido crear tres bandas paralelas al triángulo en las que se insertará la edificación necesaria y las pistas deportivas, de forma que quedan rodeando un jardín triangular que replica las direcciones de la parcela. La geometría que rige el proyecto es común tanto para los espacios construidos como para los exteriores, lo que contribuye a generar la continuidad entre unos y otros. Éste ha sido uno de los objetivos del proyecto: fomentar que el espacio disponible se viva aprovechando las perfectas condiciones climáticas de Picassent. Todos los espacios comunes no estrictamente docentes son exteriores, cubiertos, arbolados o buscando el agradable sol del invierno.
La entrada se produce por la parte más urbana, en la bisagra entre las dos bandas construidas. Tras una antesala en la que se plantan un árbol de gran porte (Grevillea robusta) y naranjos, aparece una gran marquesina que da paso al porche por el que se accede a primaria, al bloque de infantil y al de administración. Esta marquesina, además de recibir, completa la cubrición de los recorridos del colegio.
En el bloque norte se desarrolla todo el programa docente de Primaria. Dos cuerpos paralelos al lado que da a la huerta albergan las aulas, separadas por un patio en el que se han plantado limoneros y en cuyos extremos se sitúan las escaleras que comunican con unos espacios exteriores, aunque cubiertos, desde los que se accede a las aulas situadas en la primera planta. Cerrando el patio, en ambos extremos, se ubican las salas técnicas, desde donde parten los trazados de las instalaciones. Las aulas se construyen con pilares metálicos situados cada 3,75 m. y forjados conformados con losas macizas de hormigón armado, encofradas con tablilla de madera. Tanto los pilares -que discurren paralelos a la fachada sin interferir con ella- como los forjados quedaran vistos, permitiendo la comprensión del sistema constructivo del colegio. En extremos opuestos de las aulas se construyen los grandes espacios, comedor y gimnasio. Dos muros paralelos de hormigón visto soportaran las cerchas metálicas sobre las que descansan los lucernarios que permiten la entrada de luz desde el norte.
Al sureste de la marquesina se encuentran las aulas de Infantil, separadas del bloque de administración, que se abre ligeramente dejando entre ambas construcciones el patio infantil, al que vierten todas las aulas y en el que se han plantado moreras sin fruto.
Los cerramientos son de material cerámico recubierto con piedra o con enfoscado, los pavimentos de hormigón pulido en el interior, hormigón lavado en el exterior y piedra en escaleras y servicios. Las carpinterías son iguales en el exterior y en el interior, lo que aporta gran luminosidad y lectura unitaria desde los espacios interiores o el jardín. En las cubiertas se instalan placas fotovoltaicas suficientes para cubrir la demanda energética del colegio, en el que se ha implementado un sistema de renovación y climatización del aire.
Pretendemos que este colegio situado en el límite del núcleo urbano, cuando crezcan los árboles, contribuya a diluir estas fronteras que separan innecesariamente el precioso territorio tan costosamente trabajado por el ser humano, de un interior urbano que debería tenerlo más en cuenta. Mirar a la huerta y mezclarse con ella.