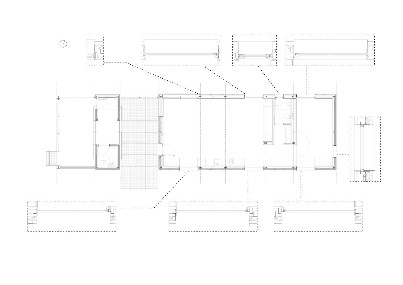
Combining efficiency and material quality, the design developed by Hanghar was entirely prefabricated in a workshop, allowing for improved control over finishes and reduced construction time. Once transported to its site, the house was assembled using a dry construction system, offering a viable alternative to traditional methods: faster, more precise, and without compromising landscape integration or spatial quality.
The materials used, in turn, respond to criteria of construction optimization, durability, and good thermal performance in a humid and variable climate like that of Asturias. In this regard, the project is resolved with a lightweight metal structure, a ventilated facade with sandwich panels, an insulated air cavity, and a corrugated metal roof, creating a coherent, efficient, and easily controllable system during the manufacturing process.

"Casa Guadalupe" by Hanghar. Photograph by Rory Gardiner.
Project description by Hanghar
Casa Guadalupe represents HANGHAR’s commitment to a contemporary form of housing grounded in industrialized construction, capable of combining efficiency, sustainability, and material quality without losing its connection to the Asturian landscape.
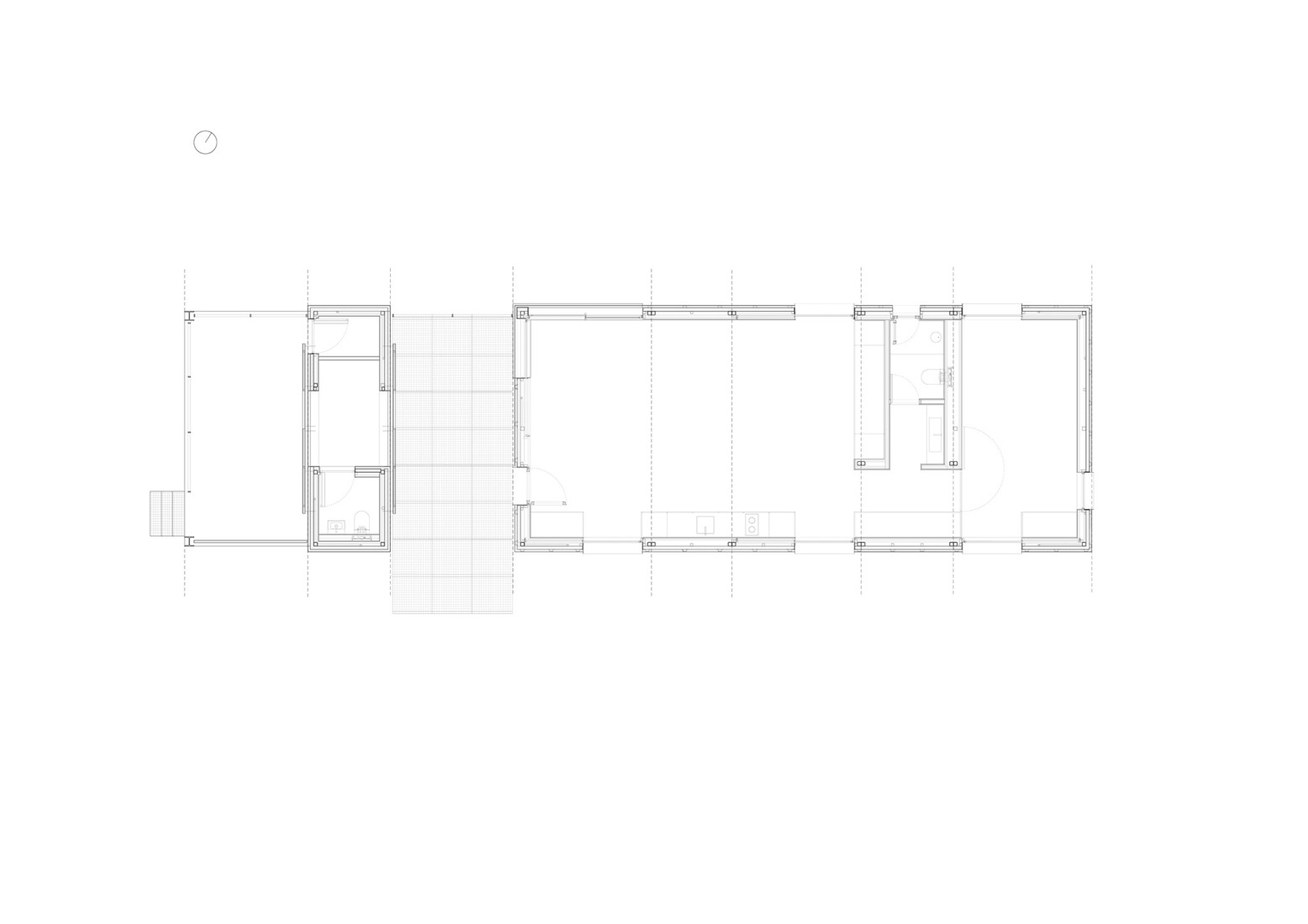
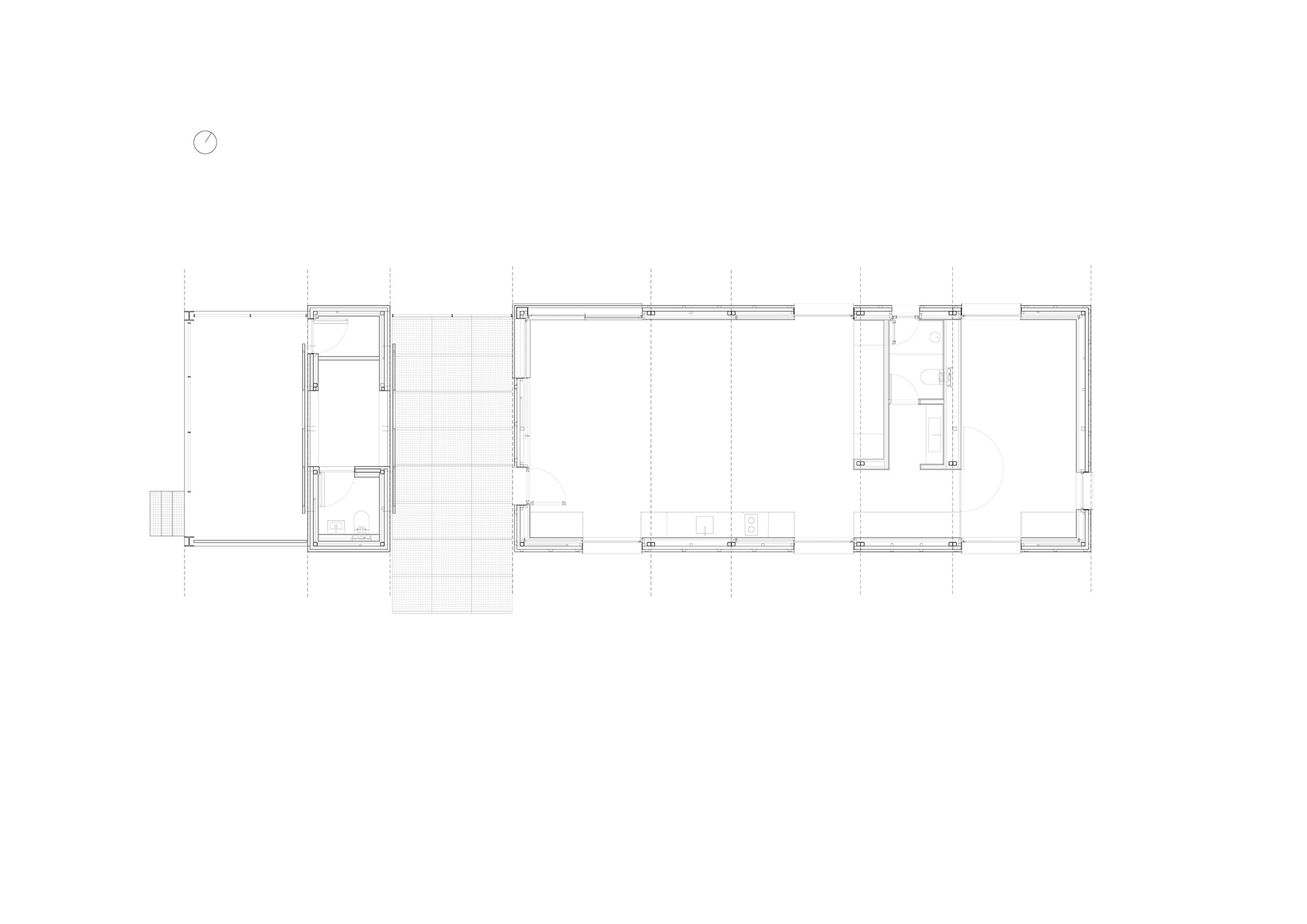
From a typological standpoint, the house is rooted in the local context through two figures that are deeply embedded in Asturian territory: the agricultural shed and the casa mariñana. In a suburban environment that is in fact more rural than residential, these typologies continue to organize the territory, its scale, and the way plots are occupied. Casa Guadalupe draws from them its clear volumetric logic, its direct relationship to the ground and the climate, and a restrained way of building, all reinterpreted through a contemporary language and a dry, prefabricated construction system.
The house is fully fabricated in a workshop, allowing for precise control over both finishes and production timelines. It was transported by semi-trailers and assembled on site in a very short time: the main structure was in place within 48 hours. This process significantly reduced construction time compared to conventional building, limited the impact on the site, and demonstrated that industrialized systems can achieve a high level of construction quality.
The building’s placement on the plot responds to the irregularity of the ground and to the intention of touching the land as lightly as possible. For this reason, the house is raised on a system of piers that adapts to the existing topography, minimizes earthwork, and preserves the natural condition of the site. Material selection follows criteria of constructive efficiency, durability, and thermal performance in a humid and variable climate. The building is resolved through a lightweight steel structure, a ventilated façade with sandwich panels, an insulated air cavity, and a corrugated metal roof, forming a coherent, efficient system that is easily controlled during fabrication.
Through this technical approach, Casa Guadalupe proposes a different way of understanding prefabricated housing: not as a standardized product, but as a flexible system capable of producing architecture with character, spatial quality, and a precise relationship to its surroundings. The project offers a viable alternative to traditional methods, one that is faster, more controlled, and more easily replicated, aligned with current demands for sustainable, well-built housing.
The execution of the house confirms that prefabrication can be a rigorous and effective design tool, where industrialization coexists with careful detailing, attention to place, and a thoughtful architectural sensibility.