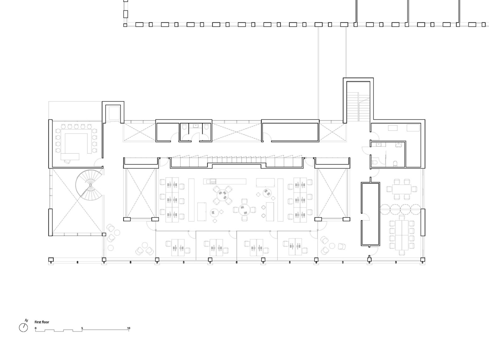
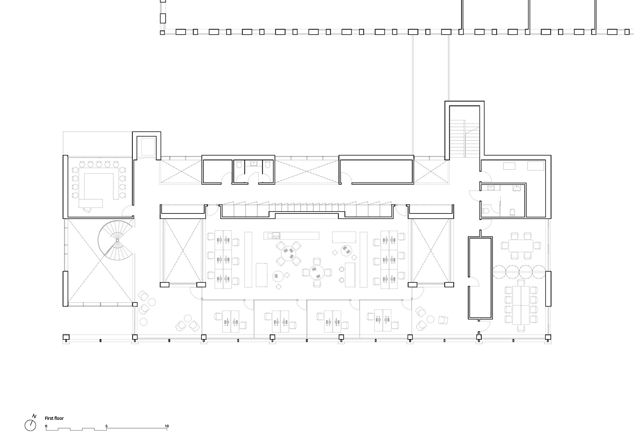
The expansion of the CEBT in León, designed by VIRA arquitectura, is developed in a rectangular building. The ground floor comprises a reception area, a cafeteria, a meeting room, two offices, a multipurpose room, and technical rooms. Circulation between the different areas is facilitated by a ramp with large, double-height windows and a spiral metal staircase. The first floor contains a training room, relaxation areas, lockers and a coworking space, four offices, and two meeting rooms.
The building's materials combine the transparency of glass, smooth aluminum composite panels, and solid, solid brick surfaces. The south façade is protected by a system of textile sunshades that control the amount of sunlight entering the interior, and similarly, the accessible area of the roof level is covered with awnings when needed.

Expansion of the Technology-Based Business Center by VIRA arquitectura. Photograph by Javier Bravo.
Project description by VIRA arquitectura
The project for the construction of the extension to the Technology Sector Business Building, popularly known as the ‘Red Building’, seeks a programmatic solution to the evolving needs of these types of companies.
It is a compact, detached building, punctuated by two light wells, rectangular in shape, and spanning two stories. In terms of its urban placement, it is positioned parallel to the aforementioned building, offset along its longitudinal axis so that it ‘looks out’ towards the access from the parking area, creating the institutional entrance. The connection between the two buildings is made in front of the entrance lobby of the first building, linked by a transparent walkway to the second of the new building's light wells, next to one of its access staircases.
The program is organized on the ground floor with a lobby and reception area with an associated cafeteria and office space, occupying a double-height area that connects the floors via a spiral metal staircase. Behind this, and as a backdrop, appears the first of the light wells, whose vegetation creates a backdrop for this first room and the multifunctional hall.
The connection between the rooms on this floor is made by a north-facing ramp with large, double-height windows that alternate, generating a rhythm of solids and voids that leads to the next room, the aforementioned multifunctional hall. This hall has a horizontal initial section and tiered seating that allows for a wide variety of configurations for presentations. It is flanked at the rear by the second light well and opens onto the street through a large window protected by a portico. Between the hallway and the hall, a strip of auxiliary spaces is arranged lengthwise. At the back of the floor are a meeting room, a utility room, and two offices.
On the first floor, less densely populated due to the double-height openings, there is a training room, a relaxation area, a locker area, and access to the coworking space. Located above the multifunctional hall, this space is illuminated by a translucent vaulted skylight with fiberglass insulation, providing uniform, glare-free lighting ideal for computer screens and the comfort of its users. Four offices face this coworking area. The program is completed with two additional meeting rooms, also associated with this function.
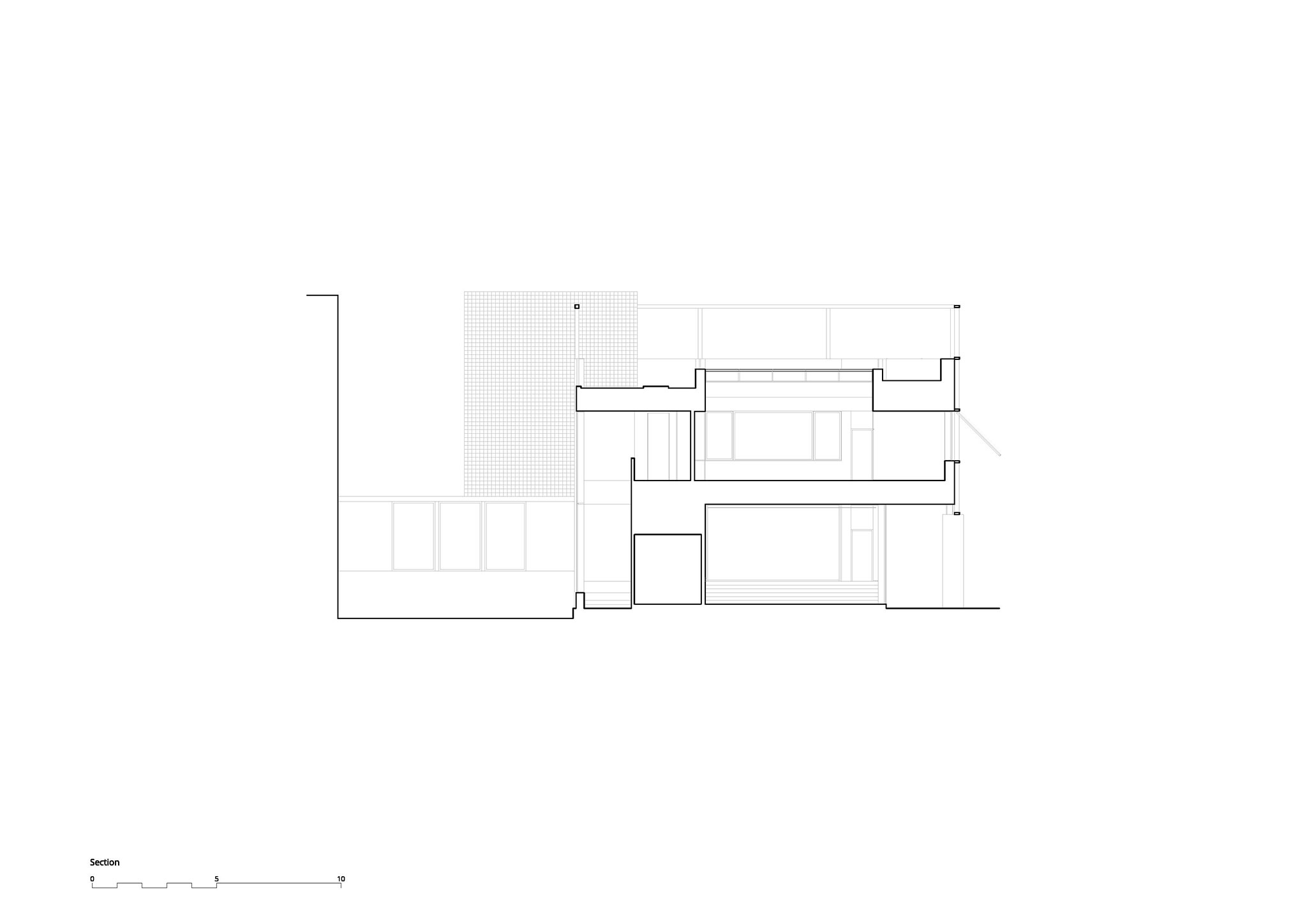
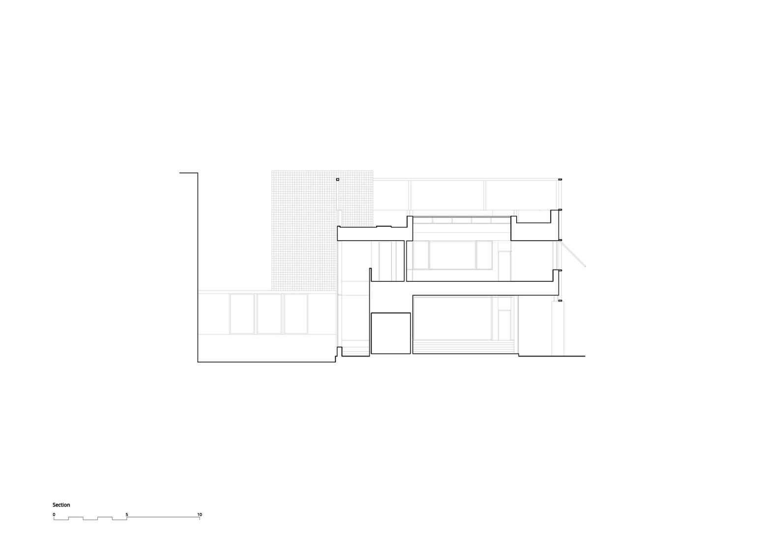
The building's materiality blends the transparency of vertical, slashed glass openings, determined by their orientation (and solar protection), with smooth aluminum composite surfaces and striking solid planes of a unique brick. This brickwork creates a self-ventilating façade through vertical perforations on its outermost face, resulting in a grid-like texture on the façades and exterior circulation blocks.
This contrasts with the glass, evoking a pixelated effect, so closely associated with the technological use the building represents. The south façade is protected by a system of textile sunshades that control the amount of sunlight entering the building. The roof level is open to the public, offering an outdoor relaxation area protected from the sun by awnings when needed. This second level is framed by a structure that enhances the building's scale and gives it a more prominent tripartite composition.
It is therefore a building with a simple yet efficient layout that meets the needs of its users, always prioritizing energy efficiency and bioclimatic performance, with the constant aim of ensuring user comfort. Light, vegetation, and the building's visual interconnection are the defining elements of its spaces.