La propuesta de Bouzas + salazarsequeromedina se plantea como la respuesta a un binomio que combina dos espacios construidos, el Guest Lounge, con un espacio evocado: los bosques del noroeste peninsular que ardieron de forma descontrolada durante el pasado mes de agosto.
El título del proyecto, 350.000 ha, hace referencia al número total de hectáreas calcinadas durante esos incendios, según datos del Ministerio para la Transición Ecológica, y alude también al inicio de una nueva conciencia ciudadana que surge de las cenizas.
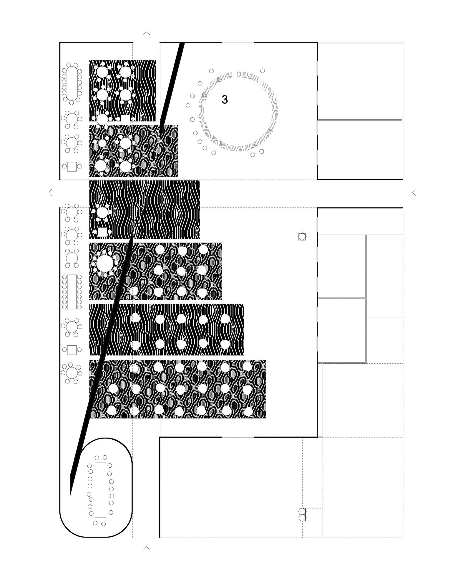
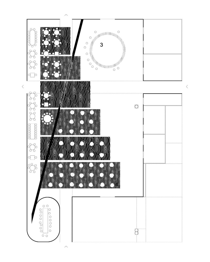
El Guest Lounge propuesto se articula en torno a dos ideas. La primera propone la construcción de toda la intervención con madera recuperada de los bosques incendiados (actualmente en proceso de limpieza por parte de FINSA). Se emplearán distintos elementos del árbol quemado: los segmentos de la corteza se reutilizan como revestimiento; la madera aserrada del interior se recupera para construir los planos de luz; superficies que se recubren con finas chapas de 0,3 mm, obtenidas mediante el pelado del tronco; y, por último, se incorporan tableros aglomerados derivados de la trituración de ramas y troncos no aprovechables, que se destinan al revestimiento del restaurante.

«350.000 Ha» Guest Lounge de ARCO Madrid 2026 por Manuel Bouzas + salazarsequeromedina.
La segunda idea consiste en proyectar una lumbre de escala monumental, capaz de generar una atmósfera cálida, acogedora y cautivadora. El espacio se concibe como una gran penumbra atravesada por una luz suave, donde las figuras de los visitantes se recortan a contraluz, creando una experiencia visual de calma en contraste con la intensidad del resto de la feria.
El proyecto se plantea como un juego de contrastes entre luz y oscuridad:
«Concebimos este reto como un laboratorio material: explorar qué historias pueden contar los recursos y los paisajes que movilizamos. Proponemos con ellos dibujar un espacio flexible, de calma y encuentro durante el día, que puede transformarse en escenario de celebración por la noche; una isla excepcional en medio de la intensidad de la feria: más en penumbra que expuesta, más velada que opaca, más ligera que pesada».