
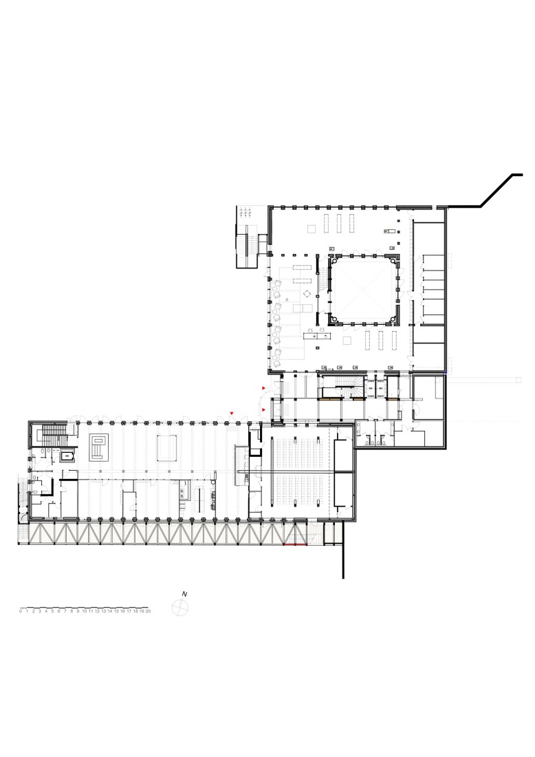
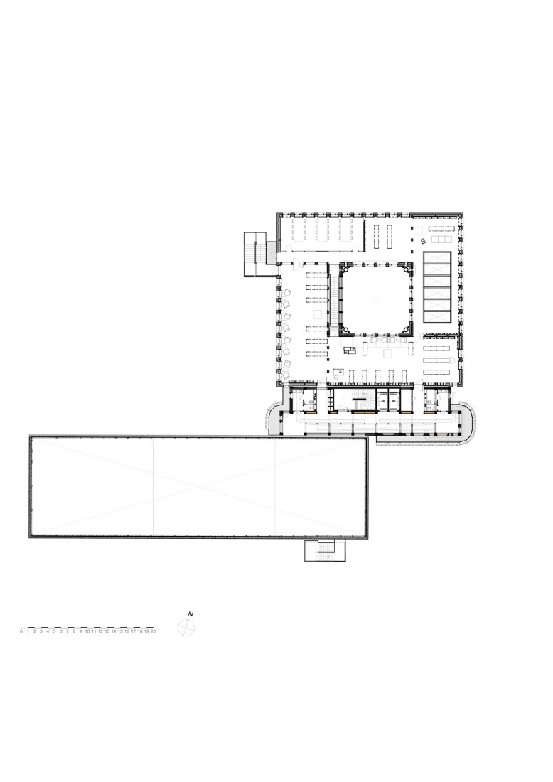
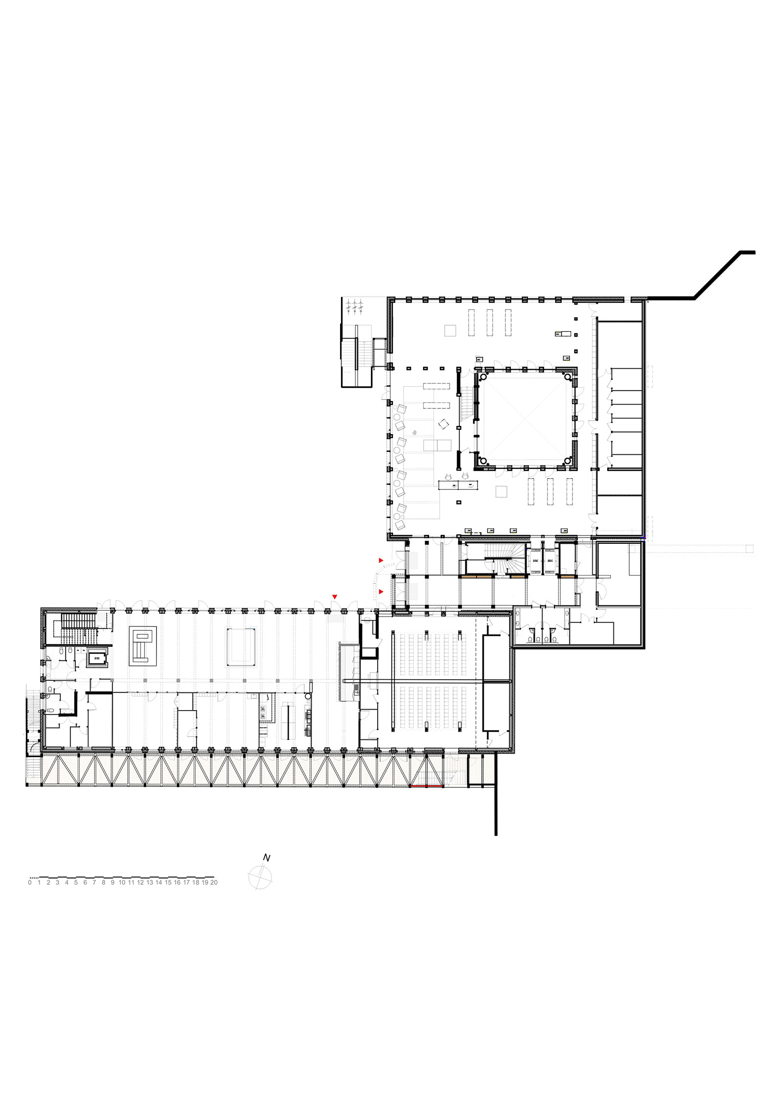
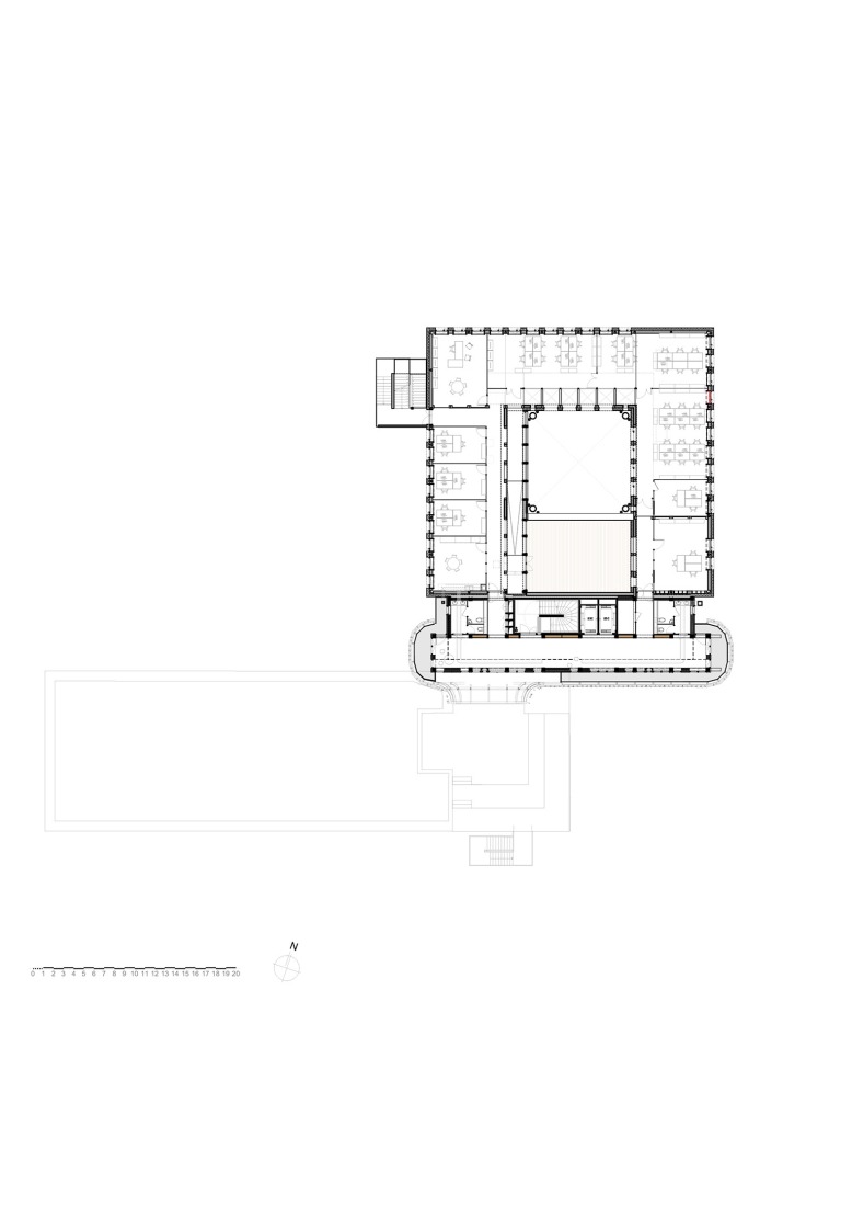
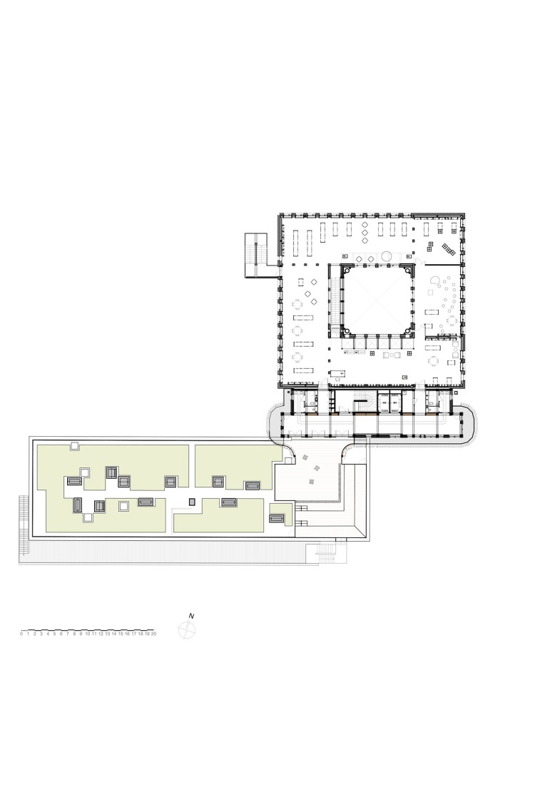
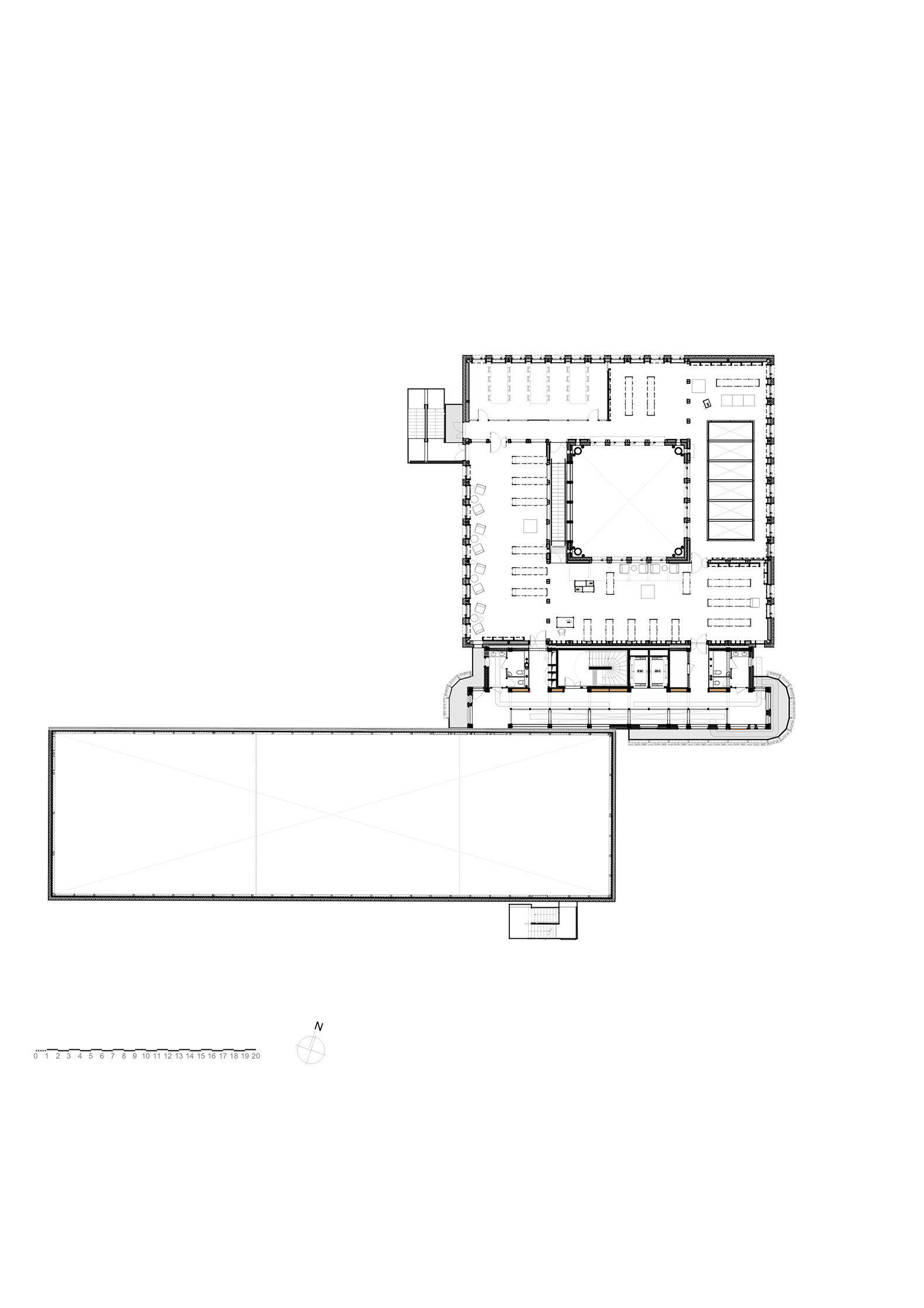
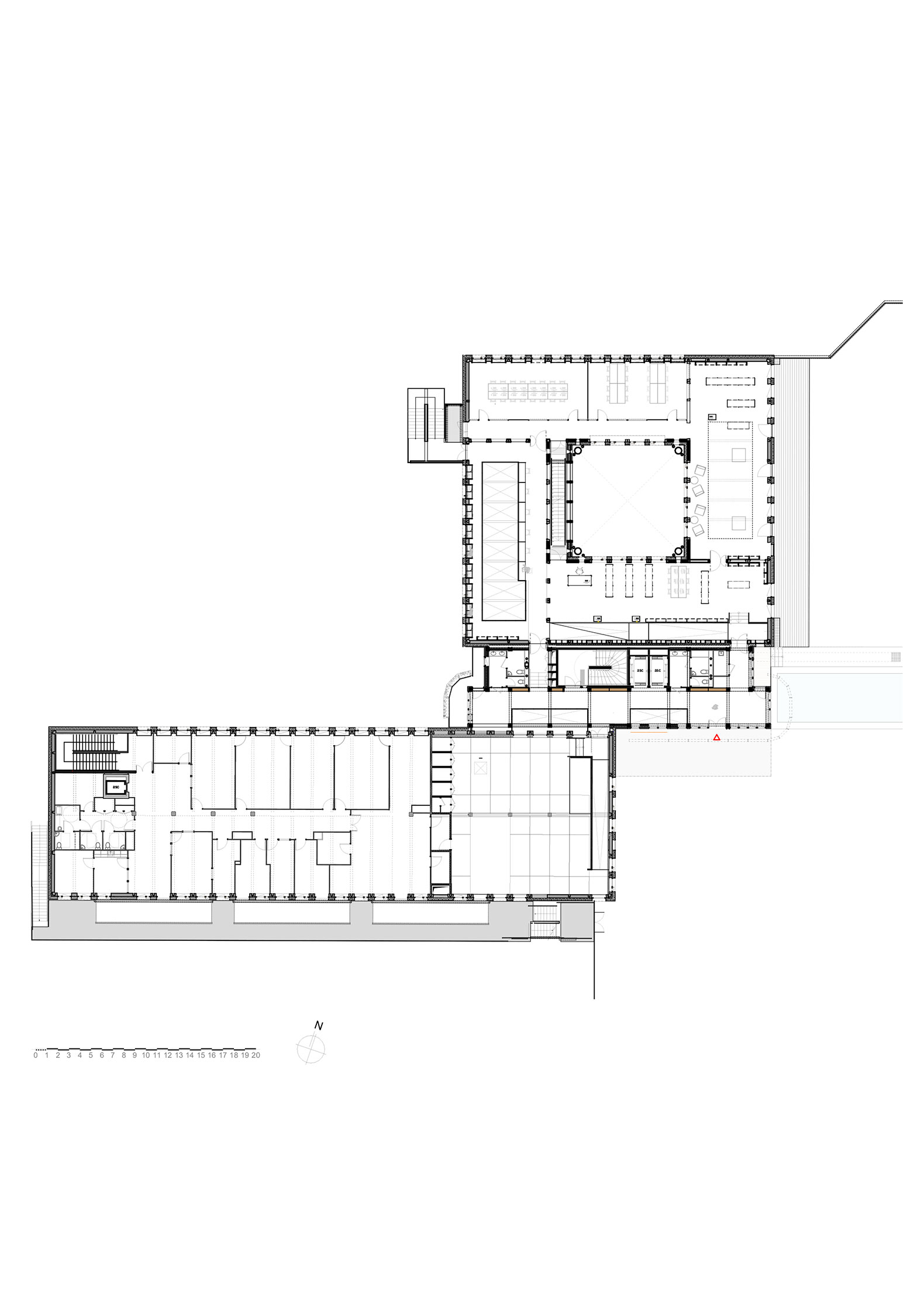
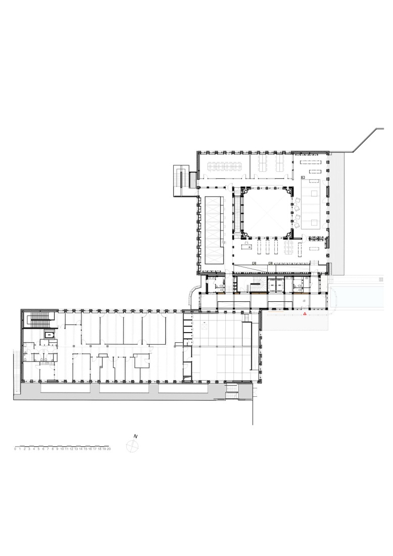
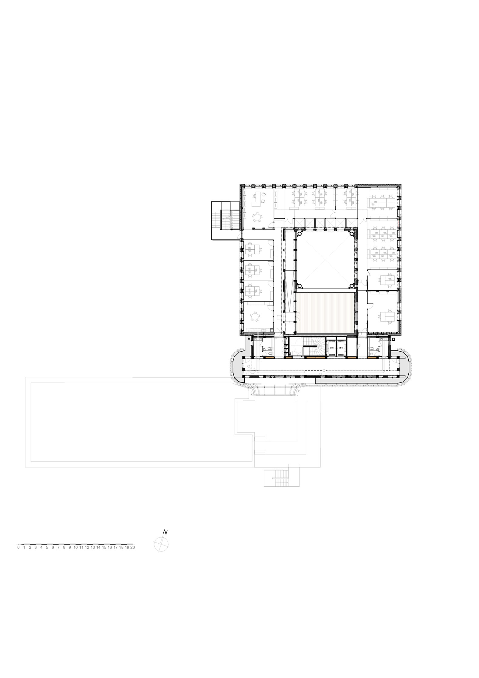
La mediateca y centro de acogida planteado por atelier associer conserva la estructura de la antigua escuela y plantea una cuidadosa rehabilitación de elementos prefabricados, como postes, vigas, suelos y paneles de fachada de hormigón armado junto con una selectiva deconstrucción de suelos, muros y paneles de fachada de hormigón.
Aplicando criterios de sostenibilidad, el proyecto aprovechó de los recursos del entorno. La orientación permite un mejor aprovechamiento de la luz del sol, mientras que, la estructura existente rehabilitada ofrece una inercia que mejora la regulación de la temperatura interior. Por medio de la incorporación de tolvas interiores de doble altura y de un pozo de aire con el jardín del patio, el edificio garantiza una correcta ventilación natural. Adoptando un planteamiento ecológicamente responsable, se consigue renovar integralmente la situación existente con una propuesta bioclimática integradora.

Mediateca y Casa de Refugiados James Baldwin by associer. Fotografía por Pierre-Yves Brunaud.
Descripción del proyecto por associer
En el corazón del distrito 19 de París, se ha rehabilitado un solar aislado rodeado de bloques de pisos y torres. El atelier associer transformó la escuela secundaria superior de hostelería Jean Quarré, de los años setenta, en una mediateca y una Casa de Refugiados.
Un proyecto innovador
El alto valor cultural y social del proyecto elegido es único en el mundo. Engloba un equipamiento cultural de barrio y un lugar dedicado a la integración de los exiliados en el territorio de París. La mediateca se une a las cuatro mediatecas de la ciudad de París que poseen un «centro para sordos» para acoger al público que se comunica con lengua de signos. La Casa del Refugiado reúne bajo un mismo techo todos los aspectos del camino de los refugiados hacia la integración, en un lugar de encuentro y convivencia.

Redescubrimiento de la estructura existente
Las estructuras de la antigua escuela secundaria se han conservado, limpiado y se les ha retirado el amianto. Se rehabilitaron elementos prefabricados como postes, vigas, suelos y paneles de fachada de hormigón armado. Se ha llevado a cabo una deconstrucción selectiva de suelos, muros y paneles de fachada de hormigón, y las piezas cortadas se han conservado in situ para su reutilización. Este proceso restauró la regularidad de la estructura y mejoró la calidad del hormigón armado visto. Como resultado, se han creado espacios ideales para una mediateca y un centro de acogida.
Espacio abierto al aire y a la luz natural
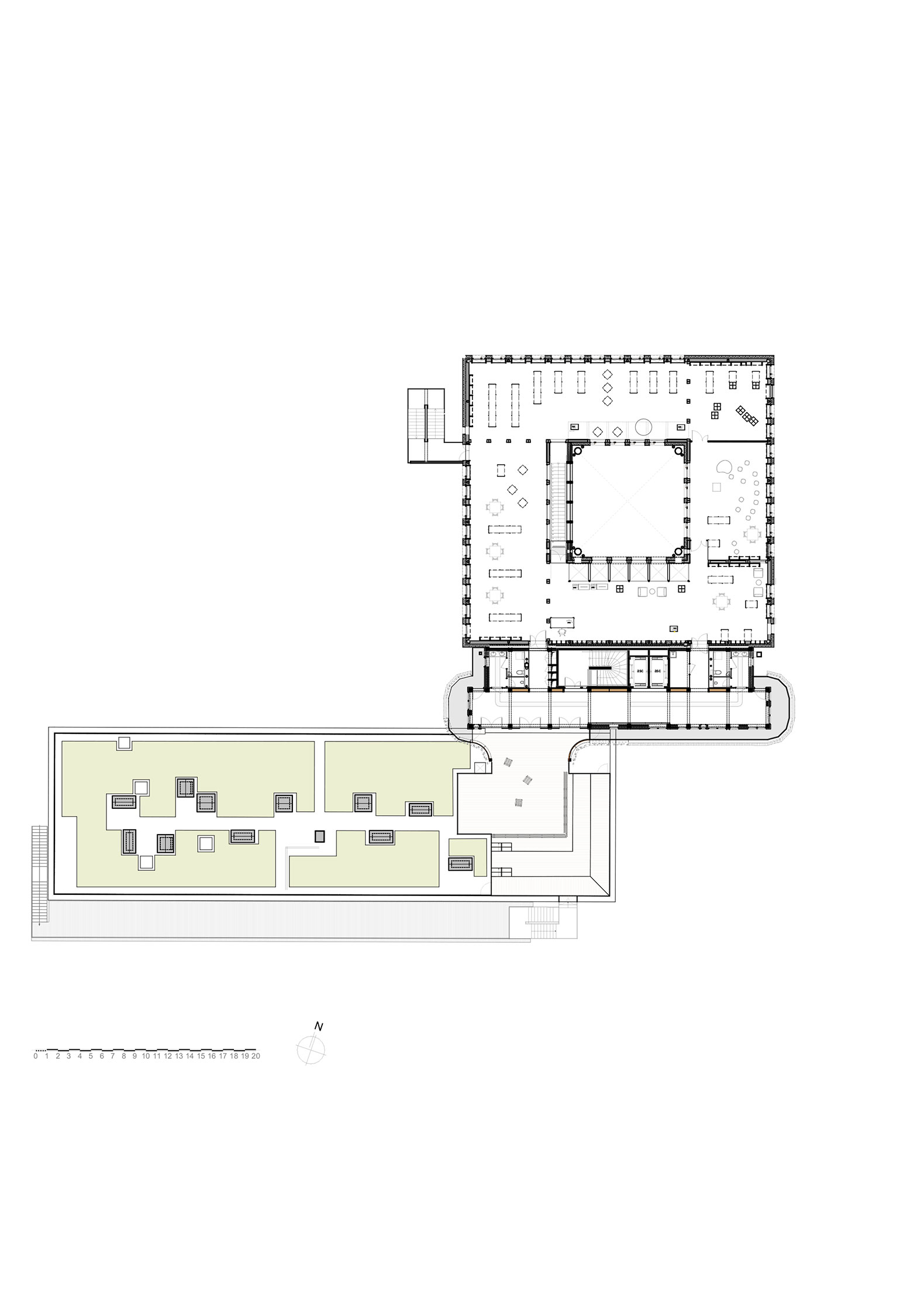
El proyecto es un diseño bioclimático, que aprovecha los recursos útiles para su correcto funcionamiento en su entorno. La estructura existente, ahora refinada, disfruta de una mayor penetración de luz natural. La estructura expuesta ofrece superficies suaves y ricas texturas, y proporciona una inercia favorable a la mejora de la regulación de la temperatura interior. El conjunto del proyecto también proporciona una ventilación natural e higiénica mejorada, concretamente mediante la creación de tolvas interiores de doble altura y de un pozo de aire con el jardín del patio.

Una conexión de madera y tierra porosa
Adoptando un planteamiento ecológicamente responsable, los arquitectos han conseguido renovar a fondo la situación existente con una nueva construcción hecha de material de origen biológico y «geológico». Los edificios, la mediateca cuadrada y la casa de refugiados alargada, están unidos por un volumen vertical, llamado «el enlace», que sirve a los diferentes niveles y espacios de estos dos establecimientos. Los muros de esta construcción de madera sin calefacción son de tierra vertida prefabricada, lo que garantiza la inercia térmica y la regulación de la humedad. Una mantilla de madera envuelve el enlace a la vez que sirve de filtro solar de alta protección.
Hospitalidad
La alta estructura de postes y vigas ofrece un espacio acogedor para que refugiados y residentes disfruten de bebidas, aprendan francés y cocinen. Cuenta con amplias zonas y diversos lugares con una acústica especialmente diseñada para la comodidad de todos. Una larga terraza orientada al sur ofrece momentos de relajación y acceso a un jardín compartido.

Paisaje y biodiversidad
El proyecto invirtió la impermeabilización del 70% de la superficie del solar. El terreno abierto reaparece por doquier, en el patio del centro de la mediateca, en la explanada, en el jardín sombreado, en el jardín compartido y en la terraza de la Casa del Refugiado. El esfuerzo por contrarrestar el efecto de isla de calor urbano se organiza mediante el aumento de las superficies verdes, la implantación de una cubierta vegetal de color claro (losas de hormigón reciclado y arena estabilizada) y un estanque poco profundo entre el jardín compartido y el jardín de sombra.