Los dos proyectos premiados han sido seleccionados entre un grupo inicial de 410 obras nominadas a los EUmies Awards 2026. Tras una primera selección de 40 proyectos, 5 finalistas de arquitectura y 2 de arquitectura emergente fueron visitados por el jurado acompañado por los autores de las obras, los clientes o promotores y los usuarios.
Tras las visitas del jurado a las obras finalistas, este mantuvo amplias deliberaciones para identificar a los ganadores dentro de un conjunto especialmente sólido y coherente. A través de intensos intercambios y distintas posturas, el jurado reconoció una dirección común entre los finalistas: una arquitectura que trabaja con las condiciones existentes, asume las limitaciones y redefine las posibilidades de transformación, reutilización y reparación en el contexto europeo contemporáneo.
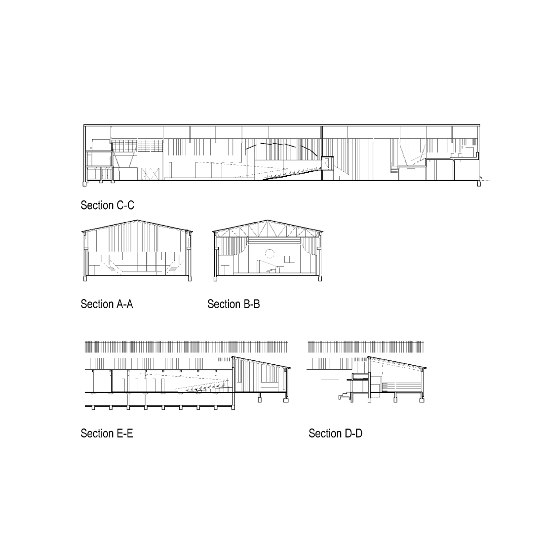
Ganador Arquitectura 2026
Palacio de Exposiciones de Charleroi, en Charleroi, Bélgica.
Arquitecto.- AgwA (Bruselas) y architecten jan de vylder inge vinck (Gante).
Cliente.- Ciudad de Charleroi.
Se premia por su transformación inteligente y precisa de un enorme edificio de exposiciones existente, demostrando cómo la arquitectura puede trabajar con lo ya construido para abrir nuevas posibilidades espaciales, sociales y materiales. En lugar de sustituirlo, el proyecto lo reactiva, asumiendo las limitaciones, aprovechando las cualidades propias del edificio y desarrollando un enfoque audaz pero ingenioso que convierte la escasez en oportunidad y la reparación en una potente estrategia de diseño.

Palacio de Exposiciones de Charleroi por architecten jan de vylder inge vinck y AgwA. Fotografía por Filip Dujardin.
Ganador Arquitectura Emergente 2026
Espacios temporales para el Teatro Nacional de Eslovenia en Liubliana, Eslovenia.
Arquitecto.- Vidic Grohar Arhitekti (Liubliana).
Cliente.- L56 d.o.o.
Se premia su capacidad para transformar una condición temporal en una potente y duradera declaración arquitectónica, activando un complejo industrial abandonado para convertirlo en una infraestructura cultural vibrante. A través de una serie de intervenciones precisas y de bajo presupuesto, el proyecto redefine la relación entre permanencia y reutilización, creando una secuencia de espacios flexibles e inclusivos que amplían la vida cultural de la ciudad, al tiempo que apuesta por la inteligencia material y la adaptabilidad.

Espacios temporales para el Teatro Dramático Nacional Esloveno por Vidic Grohar Arhitekti. Fotografía por Anja Vidic.
Entre los finalistas, varias obras destacan por su capacidad para relacionarse con las estructuras existentes como artefactos vivos, abriendo nuevas posibilidades entre la permanencia y el cambio. Plantean enfoques paralelos de intervención en entornos construidos a gran escala, donde trabajar con lo ya existente se convierte en un motor de innovación y demuestran cómo la inteligencia arquitectónica puede transformar estructuras heredadas en infraestructuras adaptables y significativas, capaces de acoger nuevos usos y experiencias colectivas.
En conjunto, las obras finalistas y ganadoras forman un cuerpo coherente de proyectos que refleja las principales direcciones que configuran la arquitectura contemporánea actual: una arquitectura que asume la incertidumbre, trabaja con las realidades existentes y transforma las limitaciones en oportunidades. En conjunto, ofrecen una visión crítica y optimista de cómo la arquitectura puede abordar los desafíos medioambientales, sociales y económicos, no a través del exceso, sino mediante la precisión, el ingenio y una comprensión renovada del valor de lo que ya existe.
Los ganadores fueron anunciados el 16 de abril en el Aalto Siilo de Oulu, en el contexto de la Capital Europea de la Cultura 2026. Los EUmies Awards Days, incluida la ceremonia de entrega de premios, tendrán lugar los días 11 y 12 de mayo de 2026 en el Pabellón Mies van der Rohe y el Palau Victòria Eugènia de Barcelona, en el marco de la Capital Mundial de la Arquitectura de Barcelona.