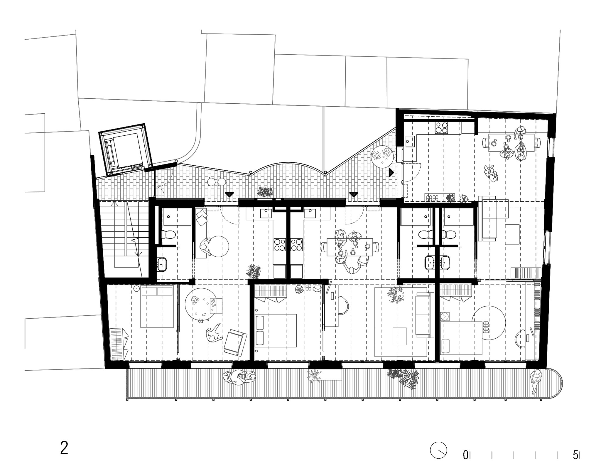
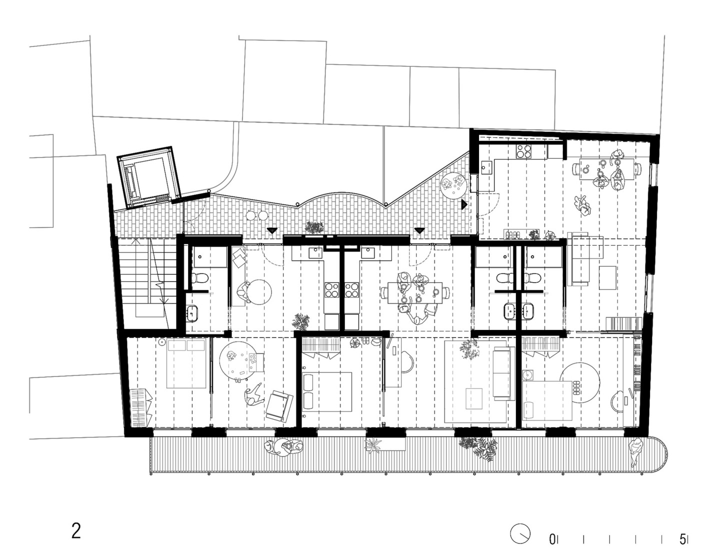
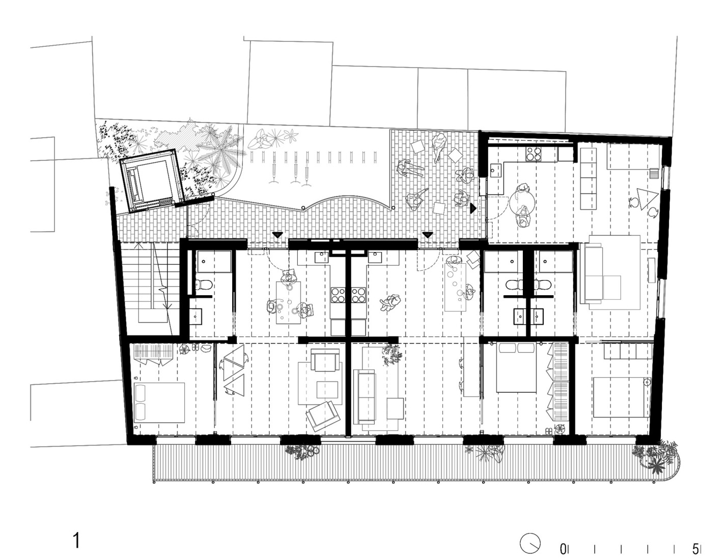
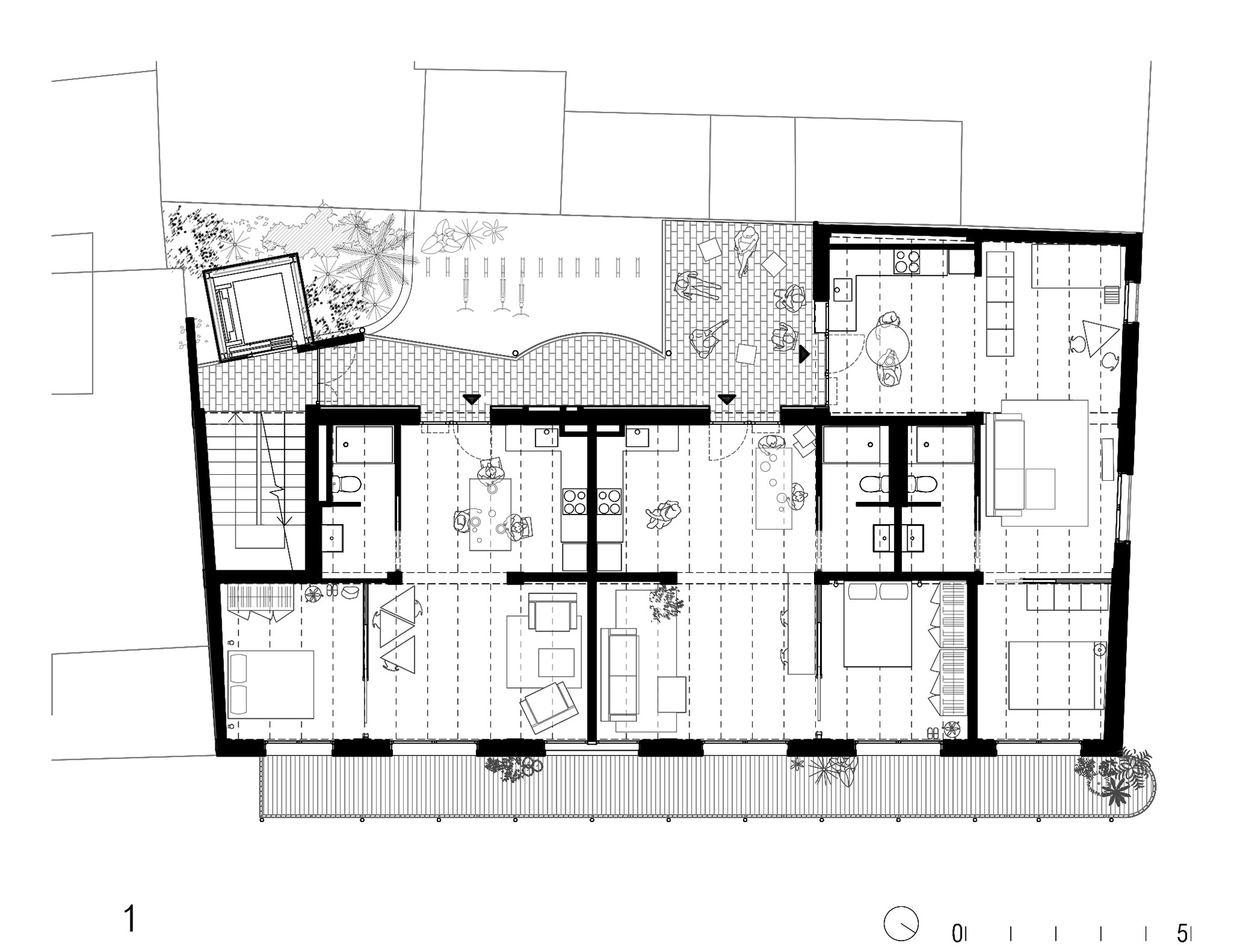
El proyecto de Lacol prioriza la incorporación de espacios de encuentro y áreas de uso común para garantizar la cohesión y el diálogo entre vecinas. Con un desarrollo realizado junto a los usuarios de «La Morada», el acceso al edificio se plantea desde un jardín interior con cocina comunitaria en planta baja, sobre la que se sitúa una entreplanta con habitaciones de invitados y un espacio de coworking. La planta superior cuenta con un amplio espacio común y una terraza ajardinada. Las viviendas conectadas por pasillos cuentan con terrazas privadas con vistas a la plaza.
Con un presupuesto limitado, la solución estructural es sencilla, optimizando el uso del hormigón con pilares y vigas de cuelgue, más vigas de ladrillo hueco, dispuestos rítmicamente, creando el forjado sobre el que se despliega el programa de las viviendas. El edificio cuenta con una capa de 10 cm de aislamiento térmico, paneles solares y aerotermia por suelo radiante, que le otorgan un certificado energético de clase A con cero emisiones de CO2.

«La Morada» por Lacol. Fotografía por Milena Villalba.
Descripción del proyecto por Lacol
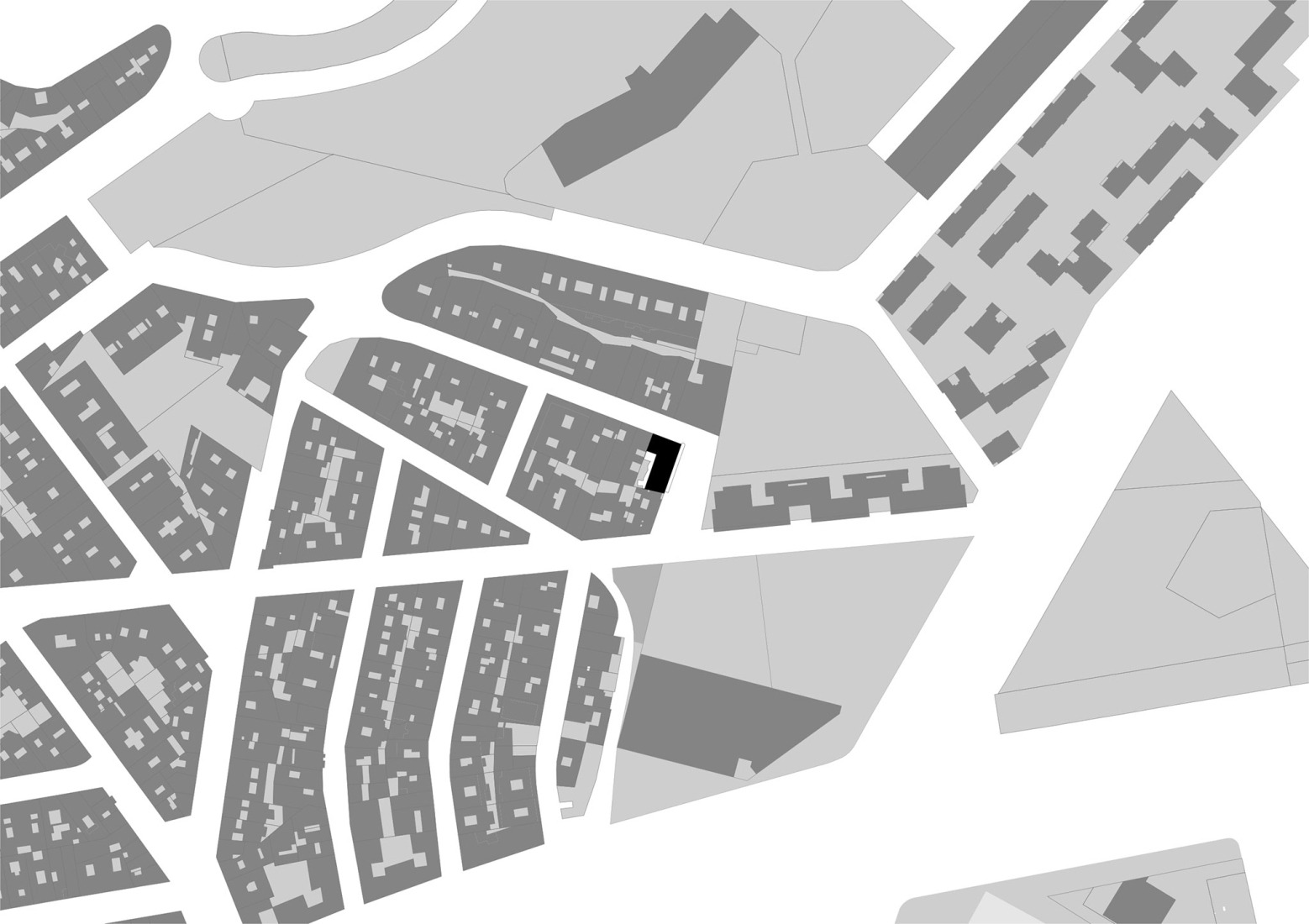
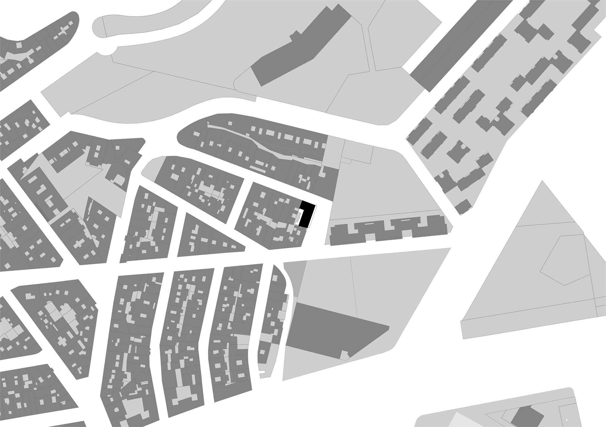
«La Morada» es una cooperativa de viviendas en cesión de uso ubicada en el barrio de Roquetes, Barcelona. Está liderada por un grupo de lesbianas, trans y otras mujeres que participan en diversas iniciativas feministas y buscan crear un modelo de vida comunitaria sostenible y solidaria. Su promoción se centra en un terreno propiedad de La Dinamo Fundació, cedido a «La Morada» en 2018 tras una convocatoria abierta, con el objetivo de construir 12 viviendas sociales (VPS). Lacol ha apoyado el proyecto tanto en el diseño arquitectónico como en la gestión de obra, además de asumir la dirección de obra para garantizar un proceso de construcción más sostenible, colaborativo y eficiente, optimizando presupuestos y ejecutando las tareas delegadas por la promotora. La Dinamo gestiona la gestión integral de la promoción.
El proceso de diseño se ha llevado a cabo en paralelo a un proceso de consulta con los futuros usuarios, con quienes hemos buscado establecer estándares para la convivencia en espacios y viviendas comunitarias. La promoción cuenta con una cocina comunitaria en la planta baja, que puede abrirse al exterior, facilitando así la participación en la vida comunitaria local. La entrada es un espacio acogedor donde los residentes pueden respirar aire fresco, con ventilación cruzada generada por la conexión con el patio interior. Justo encima de la cocina se encuentra una entreplanta que alberga habitaciones de invitados y un espacio de coworking. La planta superior (con acceso total mediante ascensor) cuenta con una amplia terraza con jardín en la azotea, un enrejado con paneles solares y lavandería. 290 m² de espacio común ofrecen una amplia gama de usos, complementando la superficie interior de las viviendas.
Otro de los objetivos del proyecto es ofrecer vistas gratificantes al exterior y luz natural, priorizando la creación de un patio interior más amplio en detrimento de otros usos y permitiendo el acceso a las viviendas a través de amplios pasillos que también pueden servir como puntos de encuentro y zonas de estar. La cocina ofrece una entrada a las viviendas y una transición a los espacios privados, también conectados por pasillos. Las cocinas y los baños individuales ocupan la sección central, mientras que los dormitorios y los salones ocupan las partes exteriores del edificio, lo que facilita futuras reformas. Cada vivienda cuenta con una terraza exterior privada con vistas a la plaza.
Para cumplir con los requisitos presupuestarios, se optó por un diseño estructural sencillo que optimiza el uso del hormigón mediante pilares y vigas de cuelgue de hormigón unidireccional y vigas de ladrillo hueco. El ritmo empleado en la estructura proporciona una base para la distribución de las viviendas y sus pequeñas variaciones en cada planta.
El edificio está protegido con 10 cm de aislamiento exterior y exteriores de madera maciza, complementados con paneles solares y aerotérmicos para la calefacción por suelo radiante, lo que garantiza un certificado energético de clase A con cero emisiones de CO2.