
El conjunto planteado por BIG superpone una serie de volúmenes rectangulares que se van apilando con giros en planta de 45 grados, para formar un edificio de cuatro plantas en cuyo centro se genera un gran atrio, que en palabras de Ingels constituye un «espacio social piranesiano», con un anfiteatro y diferentes programas informales a su alrededor que facilitan el encuentro entre los estudiantes.
El edificio contiene tres accesos: uno subterráneo en la esquina suroeste, que conduce a la planta baja del edificio, y dos entradas opuestas en la primera planta. Desde allí, una gran escalera asciende por el centro del edificio.
La fachada combina paneles de hormigón armado con fibra de vidrio con textura de madera, mientras que el interior utiliza cerchas triangulares de acero revestidas en abeto Douglas. El edificio cuenta con más de 1.000 metros cuadrados de paneles solares, terrazas exteriores y espacios abiertos, integrando laboratorios secos y húmedos, aulas flexibles y áreas sociales en un diseño funcional y sostenible.

Claremont McKenna College por BIG. Fotografía por Laurian Ghinitoiu.
Claremont McKenna College por BIG. Fotografía por Laurian Ghinitoiu.
Descripción del proyecto por BIG
El nuevo Robert Day Sciences Center en Claremont McKenna College maximiza la integración e interacción multidisciplinaria: cada nivel del edificio de 135,000 pies cuadrados está orientado en una dirección diferente, canalizando el flujo de personas e ideas entre los laboratorios, aulas y el campus circundante. Comisionado en 2020, el Robert Day Sciences Center atiende a una comunidad de 1,400 estudiantes. El centro es el primer proyecto construido de BIG en Los Ángeles y el primer edificio completado dentro del plan maestro diseñado por BIG para el Roberts Campus de CMC, que proyecta un campus más unificado, articulado por una serie de edificios que extienden el mall central y el sports bowl adyacente que actualmente está en construcción. Los colaboradores en el proyecto del Sciences Center incluyen a Saiful Bouquet como ingeniero estructural, KPRS Construction como contratista general y IDS Real Estate Group como gerente de construcción.
«Esta hermosa arquitectura amplifica y eleva una visión revolucionaria de la educación superior en un momento crítico para el bienestar de nuestra especie, nuestros cerebros y nuestro planeta. Ya no podemos depender de disciplinas aisladas dentro de las ciencias o entre las ciencias, las ciencias sociales y las humanidades para enfrentar los desafíos y oportunidades de nuestro tiempo. El Robert Day Sciences Center y el Kravis Department of Integrated Sciences fusionan instalaciones y programas, con experiencia multidisciplinaria, aprendizaje basado en problemas, ética aplicada e inteligencia humana avanzada en la era de la IA. Las pilas rotatorias de Bjarke crean oportunidades para aprender en las intersecciones. La madera alimenta nuestro calor social. El vidrio atraviesa las barreras. Los hermosos acabados y el espectacular arte público inspiran nuestro humanismo. Esta es una joya tallada para Claremont McKenna College. Una gema para la posteridad.»
Hiram E. Chodosh, Presidente, Claremont McKenna College.

Con vistas al Mount Baldy, el Robert Day Sciences Center se sitúa en el borde oriental del campus, en la esquina de Ninth Street y Claremont Boulevard, creando una nueva puerta de entrada a la escuela y facilitando estratégicamente conexiones sólidas con otros departamentos académicos. Un dramático canopy flotante de 15 pies da la bienvenida a estudiantes, profesores, personal y visitantes, atrayéndolos hacia un atrio multilevel iluminado por luz natural lleno de vida y movimiento.
«El Robert Day Sciences Center reúne ciencias de la computación, ciencia de datos y ciencias de la vida en un entorno integrado. Como primer edificio completado dentro de nuestro plan maestro para Claremont McKenna, extiende el mall norte en una serie de malls en zigzag, convirtiéndose en un distribuidor de flujos para todo el campus. Imaginamos el Sciences Center como una serie de volúmenes de edificios paralelos lado a lado, con un espacio público en medio, rotados en las mismas direcciones que el mall. Aunque cada volumen individual es racional, flexible y capaz de albergar laboratorios de computación o laboratorios húmedos, el atrio abierto en medio se convierte en un espacio social piranesiano, donde puedes ver a otros estudiantes, profesores y colegas desde cualquier nivel. Así, incluso si pasas la mayor parte del tiempo en un laboratorio húmedo, laboratorio de computación o aula, habrá muchas oportunidades de que surjan chispas entre tú y tus compañeros, estimulando el intercambio de ideas a través de los tradicionales silos del conocimiento. En ese sentido, el Robert Day Sciences Center se convierte en un crisol donde todos los diferentes tipos de conocimiento y estudiantes y profesores confluyen en un entorno de aprendizaje complejo y tridimensional.»
Bjarke Ingels, Fundador y Director Creativo, BIG.

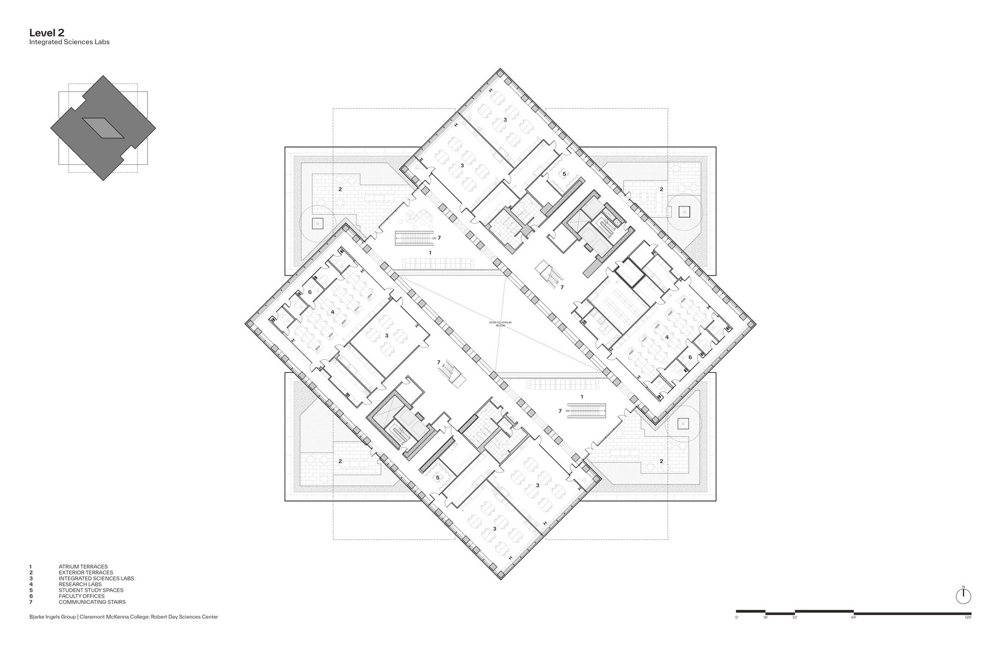
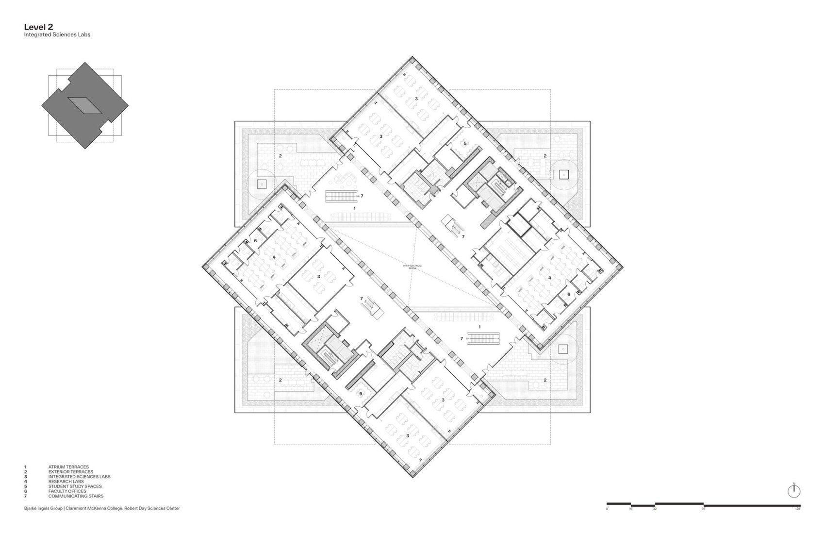
La estructura del edificio está diseñada como una pila de dos volúmenes, cada par rotado 45 grados respecto al nivel inferior. Los vacíos de los bloques rotados crean el atrio de doble altura en el corazón del edificio, que ofrece vistas directas a las aulas y espacios de investigación desde todos los niveles. Los espacios abiertos dentro del atrio invitan a la colaboración, encarnando el enfoque arquitectónico y educativo del centro. La fachada incorpora paneles de concreto reforzado con fibra de vidrio moldeados con tablero, que crean una textura similar a la madera a la vez que proporcionan la durabilidad y resistencia al fuego necesarias para un laboratorio moderno.
Los 1.022 metros cuadrados de paneles solares en el techo generan aproximadamente 342 megavatios-hora de energía por año. En el interior, cada nivel conecta con el inferior, sostenido por cerchas triangulares de acero revestidas en abeto Douglas. La textura, el ritmo y la geometría de las cerchas se trasladan al exterior, creando una transición armoniosa del interior al exterior. El atrio cuenta con una gran escalera para socializar y relajarse, que conecta los dos primeros pisos y un café, creando un núcleo vibrante en el centro del edificio. Suspendida a 30 pies de altura, la obra Magnetic Field de Damien Ortega —una intrincada escultura de la magnetosfera terrestre— flota en órbita, compuesta por 18 anillos de metal y 1.476 esferas de vidrio vibrantes.

La planta baja incluye el McElwee Forum, un gran espacio para seminarios, y suites de imágenes, mientras que aulas, espacios de investigación, laboratorios secos y húmedos, la Quantum Library y un maker's space se encuentran en los pisos superiores. Las aulas están organizadas alrededor del perímetro del edificio, ofreciendo vistas pintorescas mientras permanecen separadas del atrio y los espacios sociales de abajo. En todo el edificio, el revestimiento de madera cálida y los pisos de concreto se acentúan con los colores distintivos de la escuela: rojo y dorado. Los interiores diseñados por BIG están pensados para acoger futuras innovaciones científicas, incorporando elementos como aulas reconfigurables y asientos modulares. Ocho terrazas exteriores en las azoteas, situadas en los perímetros de cada “barra”, ofrecen vistas panorámicas de 360 grados de las montañas al norte, el campus al oeste y el sports bowl al este. Estos espacios multifuncionales, ajardinados con flora nativa, están diseñados para ser utilizados como aulas al aire libre, áreas de estudio o lugares de encuentro. El Robert Day Sciences Center busca la certificación LEED Gold.
«Como una reina bien colocada en el tablero de ajedrez, el Robert Day Sciences Building desbloquea nuevos movimientos para el campus: extiende el mall norte, inicia un mall diagonal y abre el acceso al campus deportivo este. Creciendo en paralelo con nuestra oficina de Los Ángeles, se ha convertido en un hito compartido, una piedra angular arquitectónica para el campus y un testimonio de la evolución de nuestro equipo como arquitectos en California.»
Leon Rost, Socio, BIG.
A medida que el día se convierte en noche, el Robert Day Sciences Center continúa siendo un faro para la confluencia de ideas científicas, investigación e innovación. Iluminado contra el telón de fondo de las San Gabriel Mountains, el centro no solo ancla la puerta oriental de CMC, sino que transforma el campus circundante en un lugar vibrante e inspirador de descubrimiento.