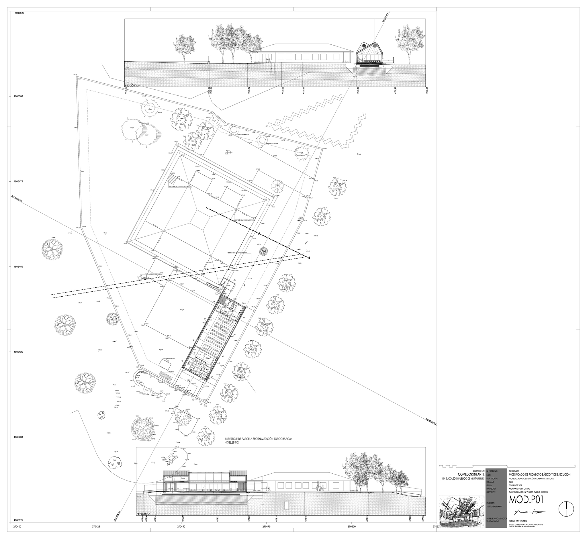
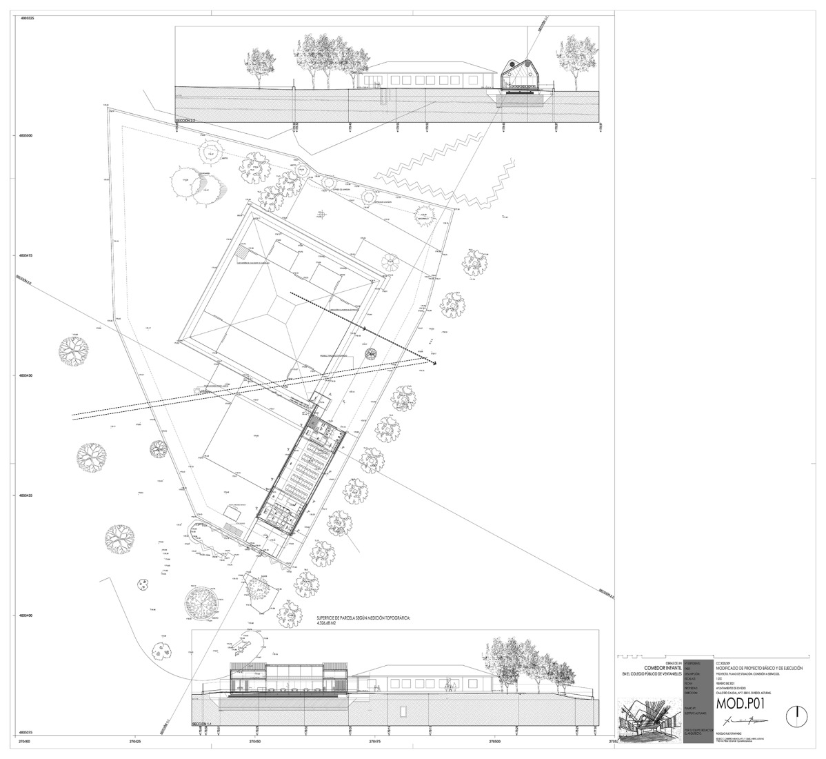
Formalmente, dos cabeceras y una nave central componen el comedor infantil proyectado por Rogelio Ruiz + Macario G. Astorga. Utilizando una lógica matemática sencilla, las cerchas que modulan la cubierta generan una variación en las alturas que da como resultado un volumen dinámico de movimientos asimétricos.
Para su ejecución, el equipo de arquitectos optó por una estructura metálica que, combinada con revestimientos curvos y planos colocados en seco, potencia el dinamismo exterior del edificio. Como una pieza independiente que se incorpora al verde del paisaje, el comedor infantil de Ventanielles se presenta como un proyecto donde niños y niñas disfrutarán de una espacialidad interior estimulante y alegre, en estrecha relación con el entorno circundante.

Comedor infantil de Ventanielles por Rogelio Ruiz + Macario G. Astorga. Fotografía por Marcos Morilla.
Descripción del proyecto por Rogelio Ruiz + Macario G. Astorga
El proyecto del comedor infantil de Ventanielles, en Oviedo, lo empezamos en 2017 y ahora (2025) se terminó la obra. Se trata de una pieza independiente anexa al colegio de prescolar.
Aspectos funcionales
Hay que tener en cuenta que en un comedor infantil hay dos tipos de usuarios, por un lado, los niños y niñas, y por otro los trabajadores y trabajadoras. Estos últimos son a su vez de dos tipos, unos los que vienen de fuera con el catering y manipulan los alimentos, y otros son el personal que debe de cuidar de los niños en el momento de la comida.
De este modo quisimos, desde el principio, separar la zona de cocina a la entrada de alimentos, y la zona de niños, con los servicios y un área para dejar mochilas. Así el proyecto se compone de dos cabezas de altura menor (ya que en su parte alta llevan instalaciones de aire acondicionado) y una nave central con toda la altura, donde se produce el refectorio propiamente dicho. Hemos tenido que dedicar bastante espacio a las zonas de cambio de ropa de los trabajadores (y duplicada por sexo), hemos añadido además el aseo adaptado ya que el colegio existente no contaba con él. Hay una serie de ventanas bajas que siguen la escala de los niños y otras, altas como los adultos.
Aspectos formales o de diseño
A pesar de la modulación del proyecto, para darle mayor movimiento y alegría los módulos son asimétricos, van cambiando el sentido de los faldones para que así aparezcan distintos frentes por encima del tejado. Hemos tratado de hacer un espacio especial, pero más que creando estructuras complejas, utilizando una matemática sencilla qué, por su disposición a derecha o izquierda, va generando un volumen fragmentado de gran dinamismo. Las cerchas, y por tanto las formas posteriores, se apoyan en los ángulos del cartabón, es decir: treinta y sesenta grados que se van uniendo, entre ellas y a la geometría de la base, por medio de curvas. Inicialmente se pensaba hacer la estructura atornillada, para facilitar un posible traslado, finalmente no fue así.
También, la forma espacial interior tiene una reminiscencia en la Iglesia de Alvar Aalto de Riola, próxima a Bolonia en Italia, detalles de Scharoun... Hay dos escalas, la del eje entrada-cocina que es la de los mayores, y por tanto se apoya en ventanas de escala «persona mayor», y la de las mesas de comedor, que llevan una ventana corrida a la escala «niños y niñas».
Pero también hay que decir que la formalización final del Comedor Infantil en Ventanielles es deudora del sistema constructivo elegido: estructura metálica revestida de paneles de distintos materiales colocados en seco (chapa galvanizada, alucobond...), con un juego de planos y curvas en las cubiertas que potencian su imagen en el entorno. Las conducciones de aire acondicionado quedan vistan en el gran espacio, y se pretendía, con una serie de elementos que vienen acabados con paneles, que aportasen color y alegría a los fríos elementos metálicos.
Desde la calle se pueden ver los niños y niñas comiendo y ellos, a su vez, pueden ver el verde del prado por las ventanas grandes del oeste, y coches y árboles en las ventanas bajas del este. También sus padres podrían ver desde el exterior como están sus retoños. En lo alto del espacio del comedor propiamente dicho, las ventanas circulares, una a norte y otra a sur, nos recordarán el sol y la luna.