From the outside in, the project developed by Zooco Estudio incorporates curved forms, circular elements, and natural textures, resulting in a café with its own distinct character, welcoming atmosphere, and fluid layout.
The bar, the centerpiece of the space, is conceived as an imposing volume of Cantabrian stone that, together with the custom-designed furniture and lighting, reinterprets Art Deco and Rationalist references from a contemporary perspective. In this way, "Atypique" establishes itself as a new landmark on Santander's urban landscape: a unique, distinctive, and intentionally atypical feature.

"Atypique" by Zooco Estudio. Photograph by David Zarzoso.
Project description by Zooco Estudio
“Atypique” is an artisan bakery and specialty coffee shop located on the ground floor of the iconic Siboney building, a key piece of 20th-century Santander architecture. This building is distinguished by its bold expressionist and Art Deco style, in stark contrast to the surrounding historicist buildings. Its presence on the most representative urban façade of Puerto Chico makes it a true visual and symbolic landmark.
The project takes this unique architectural personality as its starting point: cylindrical volumes, horizontal bands, porthole windows, red brick, and gray plaster. All of these elements were translated into the interior of the shop using a contemporary design language.
From the initial concept, the objective was clear: to replicate the atypical nature of the Siboney building within the shop, respecting its character and reinterpreting it according to the requirements of its new use. The design strategy consisted of reinterpreting the building's formal language from the inside out, transferring forms and textures to the interior space.
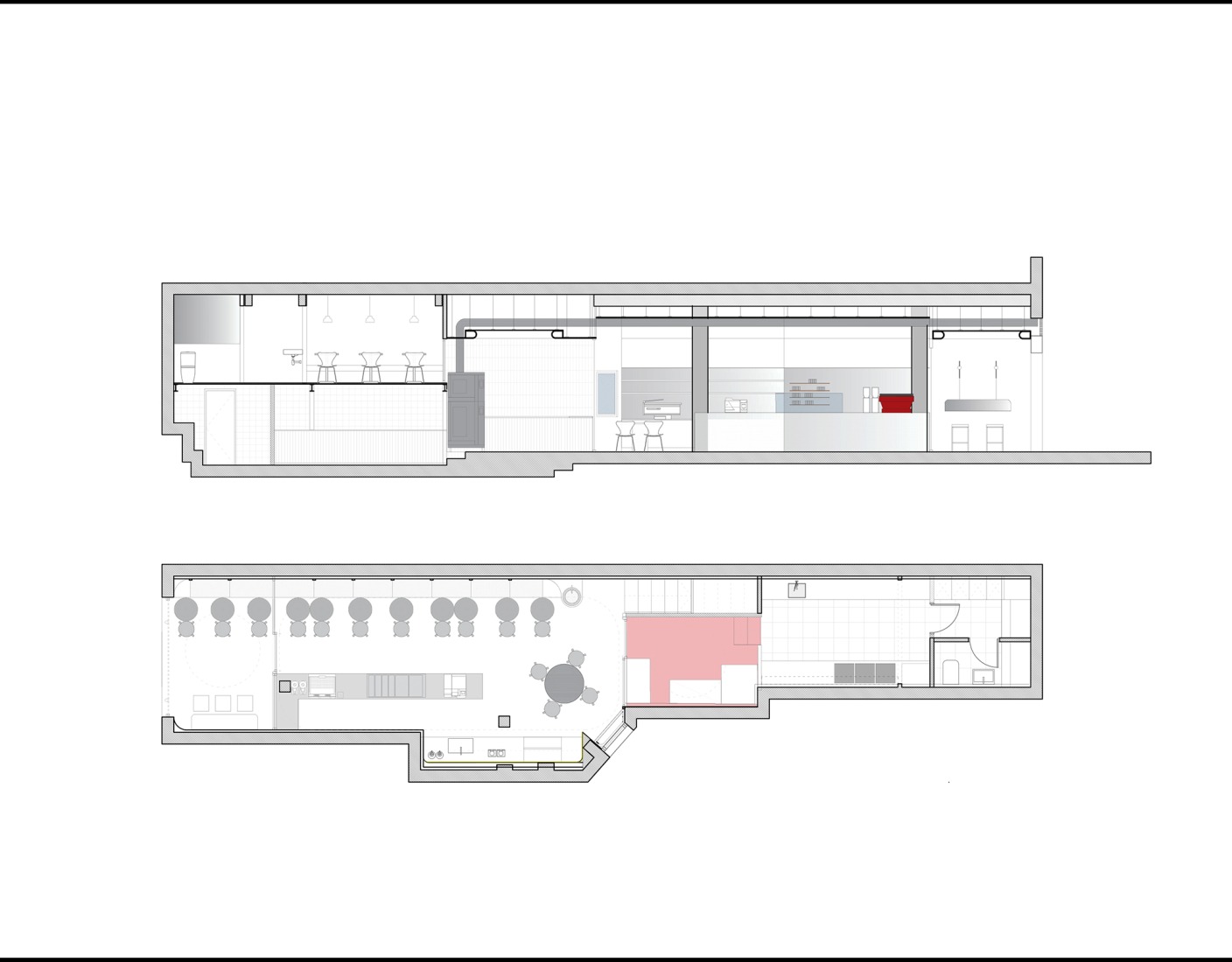
Thus, the curved forms, circular elements, and fragmented composition of the building's volume inspire an enveloping and fluid atmosphere within the space. The geometry responds not only to aesthetics but also to the rationalist functionality of the program: workshop, coffee area, and service, all articulated with clarity and precision.
To reinforce the project's local identity and its connection to the surrounding area, natural and locally sourced materials were chosen.
As a prime example and protagonist of this identity, the bar stands as a brutalist volume made of Cantabrian stone, in this case, scalloped limestone from Val de San Vicente.
To further enhance the space's identity, custom-designed furniture and lighting were created. Stainless steel was chosen as a symbol of strength and cleanliness.
The Atp28 and Atp L400 light fixtures combine Art Deco and Rationalist references with modern technical solutions, lending character and uniqueness to the spatial experience.
Light becomes a narrative tool: it reveals textures, accentuates curved forms, and guides the visitor's journey.
"Atypique" draws on influences from Nordic design in its pursuit of formal purity, functionality, and a connection with nature. The concept of "Naturally Different" is evident not only in its culinary offerings (functional beverages, specialty coffee) but also in its spatial configuration: a sober, elegant, yet welcoming and human environment.
It doesn't seek to blend into its surroundings but rather to engage with them respectfully yet firmly. Like the Siboney building in its day, the establishment aims to be a contemporary landmark, atypical by choice.