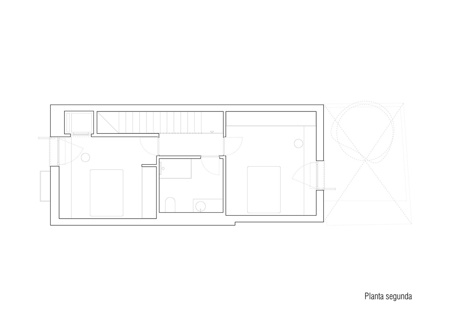
Mariola House, projected by Palera Arquitectos, has privileged views from the roof, which, due to regulations, cannot be accessed. For this reason, an operable skylight has been built above the shower, allowing the inhabitants to climb up to the roof.
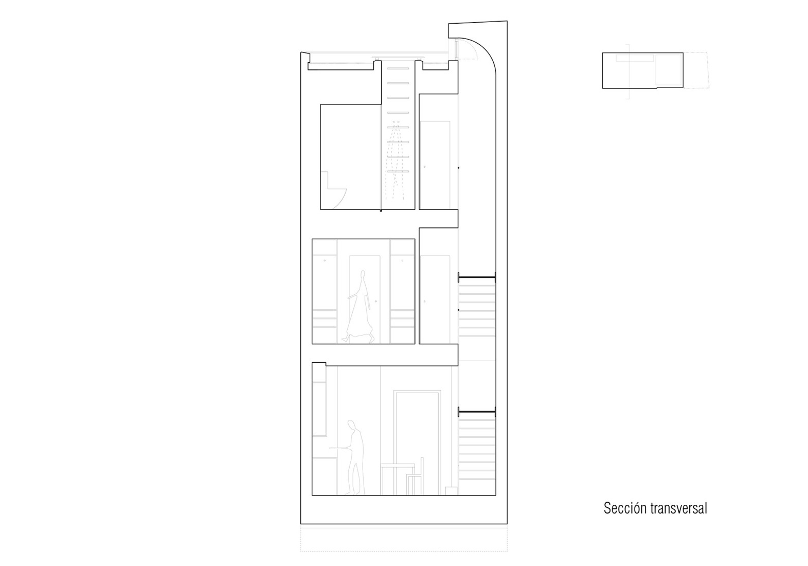
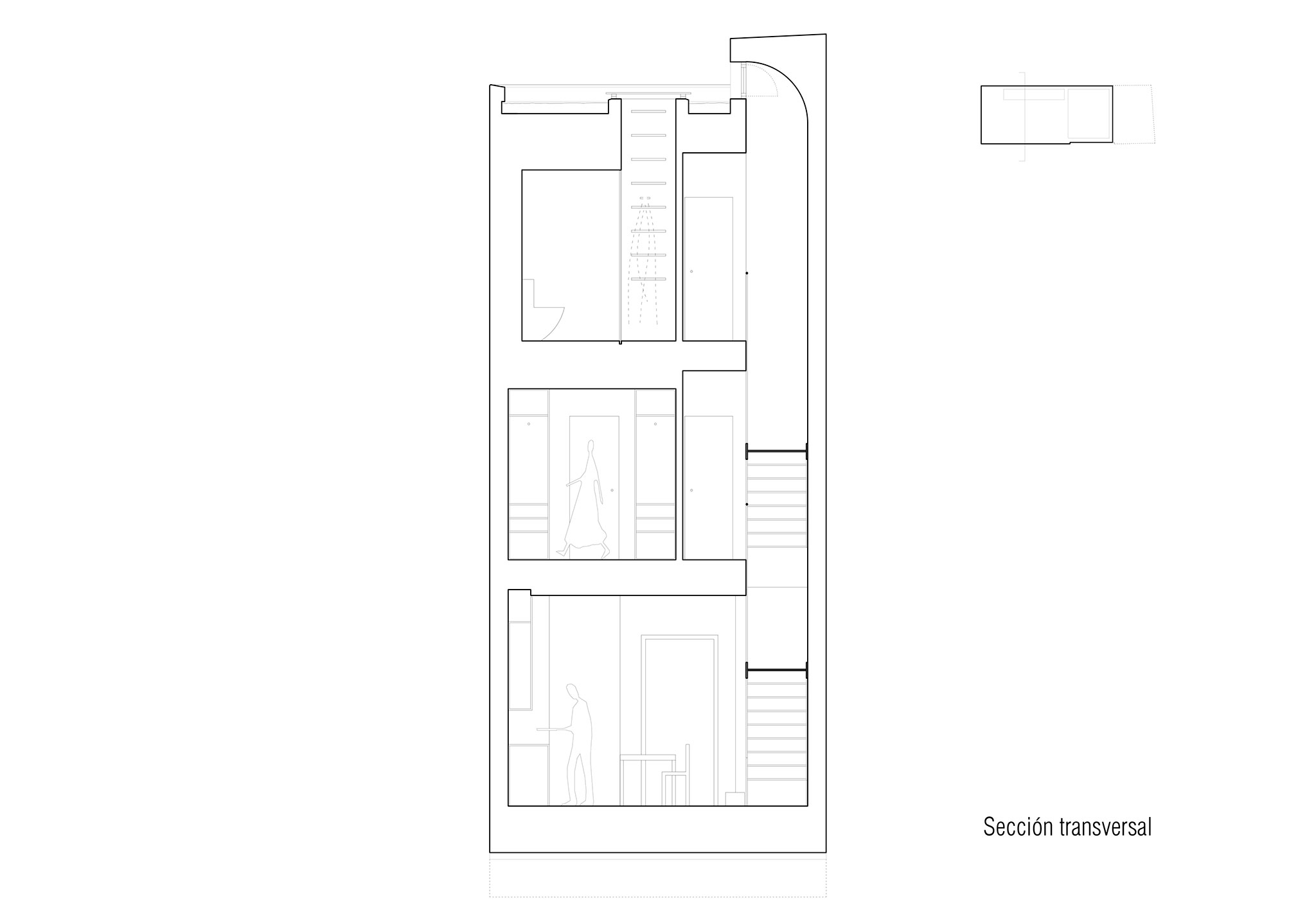
The house is adapted to family life and has a light and airy staircase, anchored to the structure by a stringer and handrail, which climbs between the gaps in search of the overhead light filtered through a skylight that crowns the space.

Mariola House by Palera Arquitectos. Photograph by Adam García.
Project description by Palera Arquitectos
A special commission, based on the memories of the former owner. After numerous discussions, it was finally decided to demolish the existing building and construct a home adapted to the new family's needs.
The project respects the essence of what was there before, a vertical house overlooking the backyard. The staircase, designed in a light manner, is anchored to the structure through its stringer and railing. The latter climbs between the gaps in the structure, seeking the overhead light that enters through the skylight that crowns the staircase space.
During the construction phase, an unexpected landscape appears. From the roof slab, the Torre de la Vela tower of the Alhambra stands out against the Granada skyline. However, regulations prevent this level from being made accessible. Given this limitation, it was decided to install an operable skylight above the shower, allowing the inhabitants to climb up to the roof and discover, almost furtively, a hidden view of the city.