The renovation of the "Cité Administrative," Lacaton & Vassal and Emmanuelle Delage Architecte, combines two strategies: architectural quality and careful urban integration. The aim is to reinvent this emblematic building as a dynamic element within its urban environment, while also being environmentally responsible.
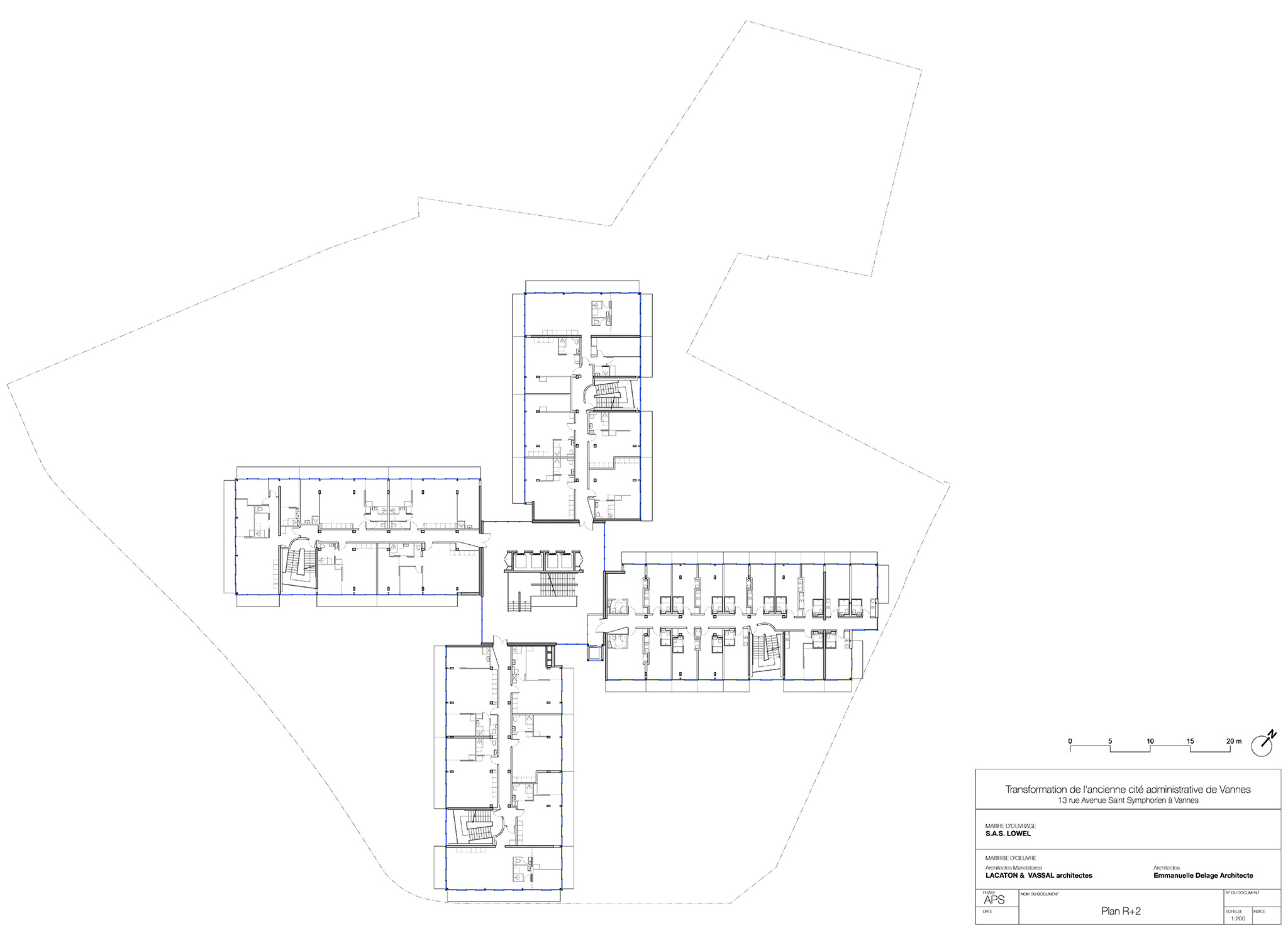
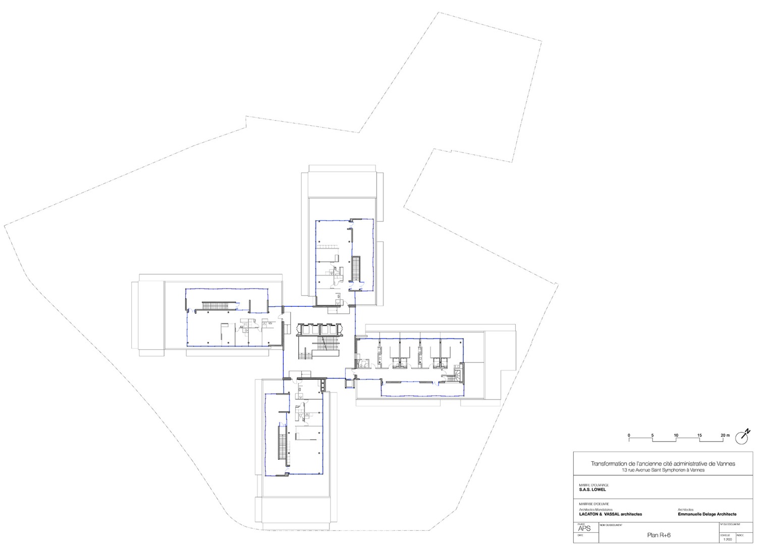
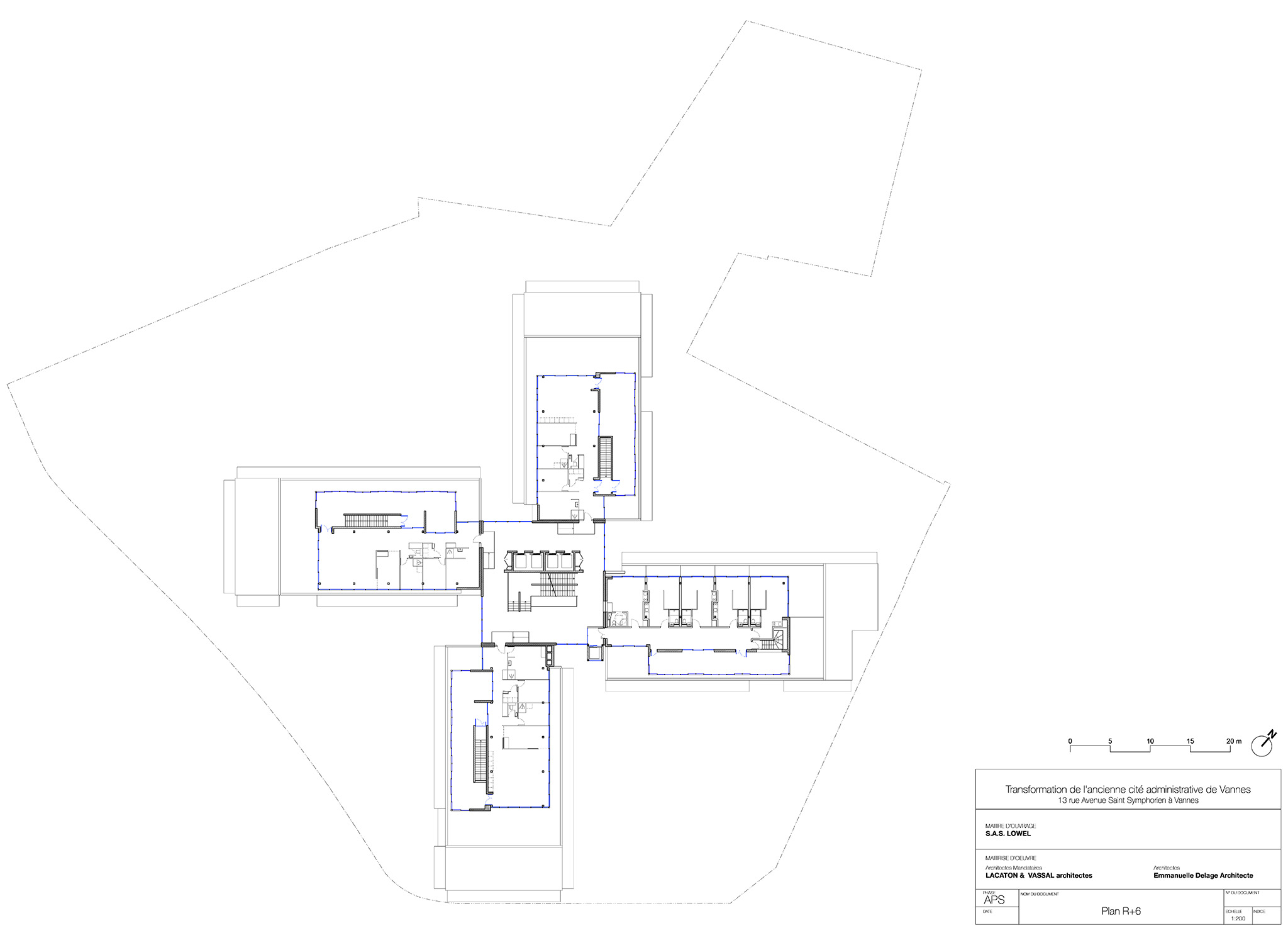
The project is organized around two existing volumes. The podium houses offices, shops, and services, while the cross-shaped volume is designated for the construction of between 86 and 90 apartments for students and young professionals.
Functional and social integration is the foundation of this project, which combines housing, professional offices, and public spaces, paying particular attention to the relationships between the different uses.

Rendering by Gwénaël Gosh. Transformation of the "Cité Administrative" by Lacaton & Vassal and Emmanuelle Delage.
The building's overall structure, volumes, and prominent architectural elements, such as the access area connecting the building to the street and the staircases, are preserved. The existing facades, some of which contain asbestos, are removed and replaced with high-performance glazed facades.
The open structural system, composed of posts, beams, and open-slab floors, is distributed on both sides of a corridor. The lightweight, removable partitions facilitate the transformation into a mixed-use building.