ACDF Architecture designed the residential building with entrances, common facilities, and parking located on the ground floor. The 189 apartments, ranging from studios to five‑bedroom units, are arranged in an eight‑story U‑shaped block to optimize the southern and southwestern orientation of the main façades and maximize natural daylight in the units.
The construction combines a reinforced concrete structure with prefabricated panel façades and high‑performance glazing. Materials were selected for their durability and low maintenance. The project incorporates advanced thermal insulation, triple‑glazed windows, and efficient HVAC systems that significantly reduce energy demand.

Mellem Les Trembles by ACDF architecture. Photograph by Adrien Williams.
Project description by ACDF Architecture
Developed through a close collaboration between ACDF Architecture and Maître Carré, MELLEM Les Trembles stands out first and foremost through the art of balance — a form of architectural “dosage” that has become essential in today’s context.
At a time when environmental challenges and limited resources demand that we do more with less, this approach has evolved into a genuine philosophy: creating architecture that is at once responsible, expressive, and meaningful.
Here, the balance between rootedness, longevity, and comfort is not only expressed through a distinctive architectural signature, but also through a deliberate pursuit of measured equilibrium — between restraint and richness of expression, between constructive efficiency and spatial generosity.
MELLEM Les Trembles faithfully embodies ACDF Architecture’s philosophy: creating architecture that asserts itself with quiet strength while privileging sobriety of means, ensuring that each gesture is both measured and purposeful.
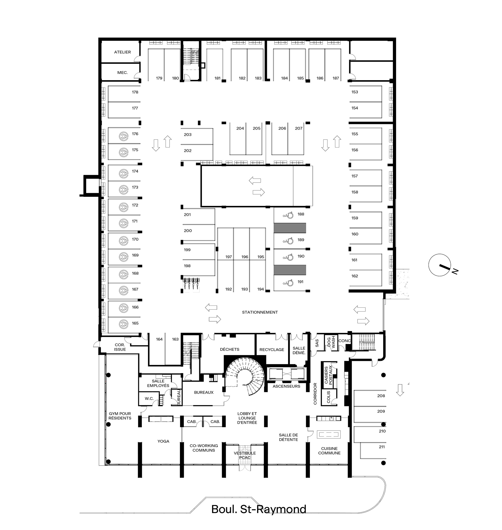
Comprising 189 rental units — from studios to five-bedroom apartments — the project distinguishes itself through the deliberate decision to locate most of the common areas on the ground floor, directly engaging with the city. This gesture reflects a desire to create spaces for connection and exchange, where architecture becomes a catalyst for community.
Rather than isolating residents within an individualistic housing model, the project celebrates the “we” over the “I”, emphasizing the collective value of multifamily living. The ground floor thus acts as a true inhabited threshold, a lively space that contributes to the vibrancy of the public realm, while fostering a sense of belonging among residents.
In this spirit, the ground-floor arches form the project’s defining architectural gesture. They express both the building’s rootedness in its site and the sensory dimension of dwelling that the architects and the developer sought to create. With their soft monumentality on the exterior and human-scaled, enveloping presence within, the arches embody an architecture that connects, gathers, and nourishes the idea of living together.
"The project is guided by a subtle sense of balance, reinterpreting the classical colonnade to express both rootedness and permanence," explains Christelle Monteuil-Jean-Pois, Associate Architect at ACDF Architecture. "Its style could be described as quiet elegance: an architecture that attracts the eye with precision, without ever seeking to dominate.”
The arched geometry extends through a series of curves integrated into the building’s overall volume. These flowing lines define a distinctive silhouette, where transitions between red and white brick read like a fine seam in couture, stitching together the project’s various components. This distinctive profile asserts the building’s presence at the scale of the city, while maintaining a refined human intimacy at street level.
Staggered balconies introduce texture, rhythm, and vitality to the façades, conveying the energy of the living environment within.
Perpendicular wall projections frame these compositions, creating a dynamic interplay of depth and shadow that gives the project a painterly dimension, perceptible even at the neighborhood scale.
Inside, ACDF designed the common areas with the same sense of balance that defines the project as a whole. The arches extend inward, shaping more intimate thematic zones while punctuating a longitudinal promenade that connects, end to end, the co-working space and communal kitchen to the gym.
Light-toned, reflective walls enhance natural illumination, while a dark ceiling absorbs exposed technical elements — ventilation, lighting — in a gesture of frugality and economy of means.
The result is a space that feels warm, functional, and carefully measured, fully aligned with the project’s design philosophy.
At the heart of the composition, a grand staircase aligned with the main entrance leads to a lounge area that opens onto an outdoor courtyard, landscaped above the first parking level.
Nestled within the natural slope of the site, the lower portion of the building houses the first level of parking, which accommodates most of the 375 bicycle spaces, promoting active transportation, along with 20 electric vehicle charging stations.
This focus on sustainable mobility reflects the developer’s responsible vision, positioning MELLEM Les Trembles as a model for urban living that is collective, adaptable, and environmentally conscious.
With its interplay of materials, welcoming arches, fluid curves, balanced interiors, and vibrant communal spaces, MELLEM Les Trembles exemplifies a distinctive and enduring urban architecture — sober yet expressive, inviting and collective, offering its residents a true urban refuge while enhancing Gatineau’s architectural landscape.
"Our greatest pride lies in having achieved a precise balance between efficiency and aesthetics," adds Monteuil-Jean-Pois. "The result is a unique architecture, imbued with humility, that integrates sensitively within its context, while asserting a distinctive signature."
The C-shaped configuration of the building, organized around a west-facing garden, optimizes the site’s potential and achieves a balanced density without relying on excessive height. MELLEM Les Trembles demonstrates that a well-composed architecture can achieve meaningful levels of density while contributing positively to the quality of the environments it inhabits.
By combining a finely balanced architectural composition with an efficient use of the site, the project achieves a level of financial performance sufficient to allow for more — and better.
Rather than seeking profit at the expense of quality, this approach makes it possible to reinvest where the impact is most meaningful — in the quality of common areas, the durability of materials, and the creation of shared spaces that nurture community life.
The project illustrates that density and financial viability, when approached with intelligence and sensitivity, can become powerful levers for creating collective habitats with a smaller environmental footprint — homes that celebrate sharing, proximity, and urban quality of life.