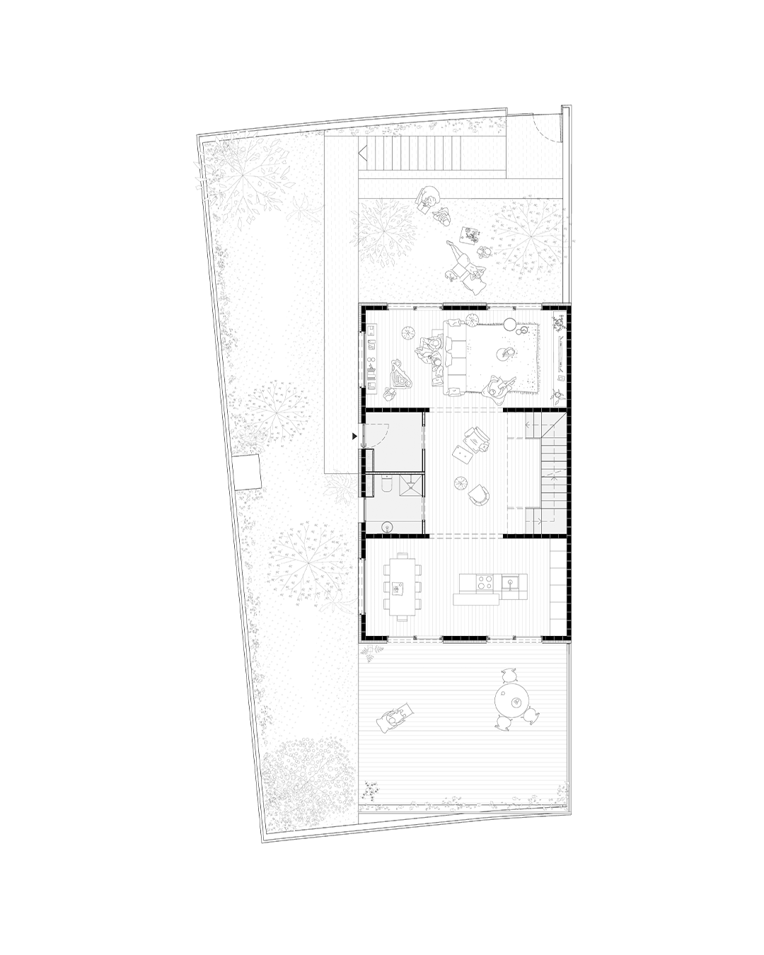
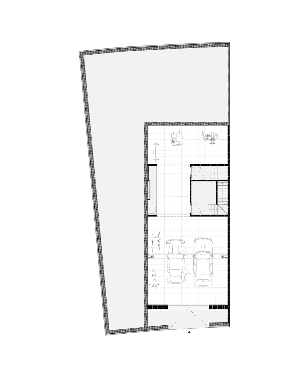
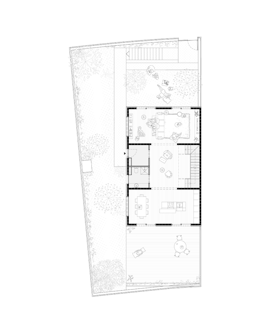
“Tiana Hills,” the housing complex designed by Sau Taller d’Arquitectura, is situated on a topography that dictates the project's configuration. The plots have a difference in elevation of more than three meters between the north and south facades. The building features a main pedestrian entrance at ground level from the south facade and a vehicular entrance from the north facade leading to a semi-basement level. Inside, it maintains a free and versatile layout that adapts to the needs of its residents.
The attic level was constructed using a dry construction method with a lightweight timber frame system. The building achieves high energy efficiency through passive strategies that ensure thermal comfort, with systems such as underfloor heating, solar control via adjustable louvers, and a ventilated facade.

Tiana Hills by Sau taller d'Arquitectura. Photograph by Andrés Flajszer.
Project description by Sau taller d'Arquitectura
Tianna Hills comprises three single-family homes in Tiana, at the entrance to the Maresme region, just minutes from Barcelona and very close to the Serralada de Marina mountain range.
The plots have a difference in elevation of more than three meters between the north and south facades. This topographical feature allows for vehicular access via the north facade, leading to a semi-basement level, while the main pedestrian access is at ground level via the south facade, directly onto the ground floor.
When approaching the project, two fundamental premises were established:
1. To achieve a high level of energy efficiency.
2. To guarantee maximum functional flexibility, capable of adapting to the lifestyles and changing needs of its future residents.
Energy Efficiency
Efficiency is achieved through a set of passive strategies aimed at ensuring thermal comfort. Beyond the incorporation of systems such as underfloor heating, solar control via adjustable louvers, and a ventilated façade, the project's defining element is the large, triple-height central void, which houses the staircase and is topped with two expansive roof openings. This space functions as a natural ventilation chimney, taking advantage of the Venturi effect and promoting cross-ventilation throughout the building.
Adaptability
Functional flexibility is achieved by concentrating the service cores in the central bay and articulating two lateral bays—one facing north and the other south—with a constant module of 3.5 meters. This configuration allows for a free and versatile arrangement of service and living spaces, capable of evolving over time and adapting to the changing needs of each user.
Formal Composition
This structural order is also reflected in the architectural composition. Both the north and south façades are configured with four identical openings arranged symmetrically with respect to the central space, avoiding a predefined hierarchy of uses. This compositional neutrality allows for a flexible interpretation of the program, permitting the kitchen to be positioned facing either south or north, depending on whether the priority is solar gain, views, or a cooler, shaded orientation.
The attic level, constructed using a dry timber frame system and located exclusively in the central bay, creates two terraces, one facing north and the other south. These terraces, together with the building that connects them, form a single unit traversed by large openings facing both directions. This strategy allows the entire space to be perceived as a continuous whole, with a sunnier area for winter and a more sheltered, shaded area for summer.
