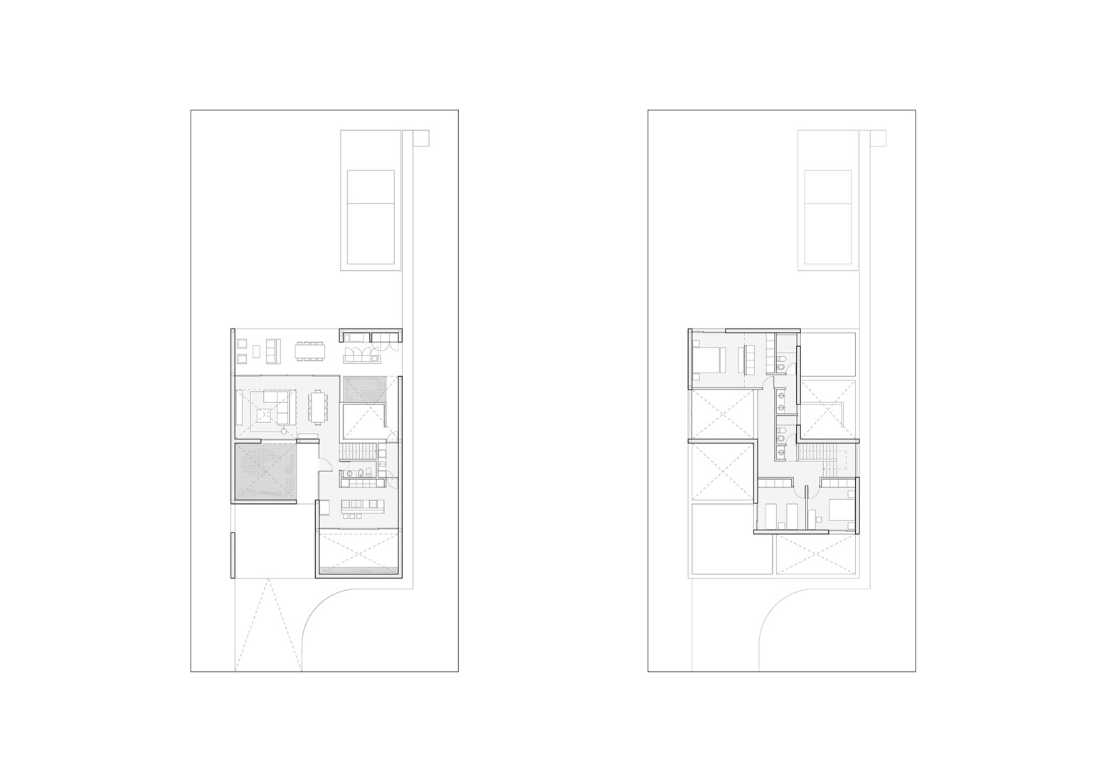
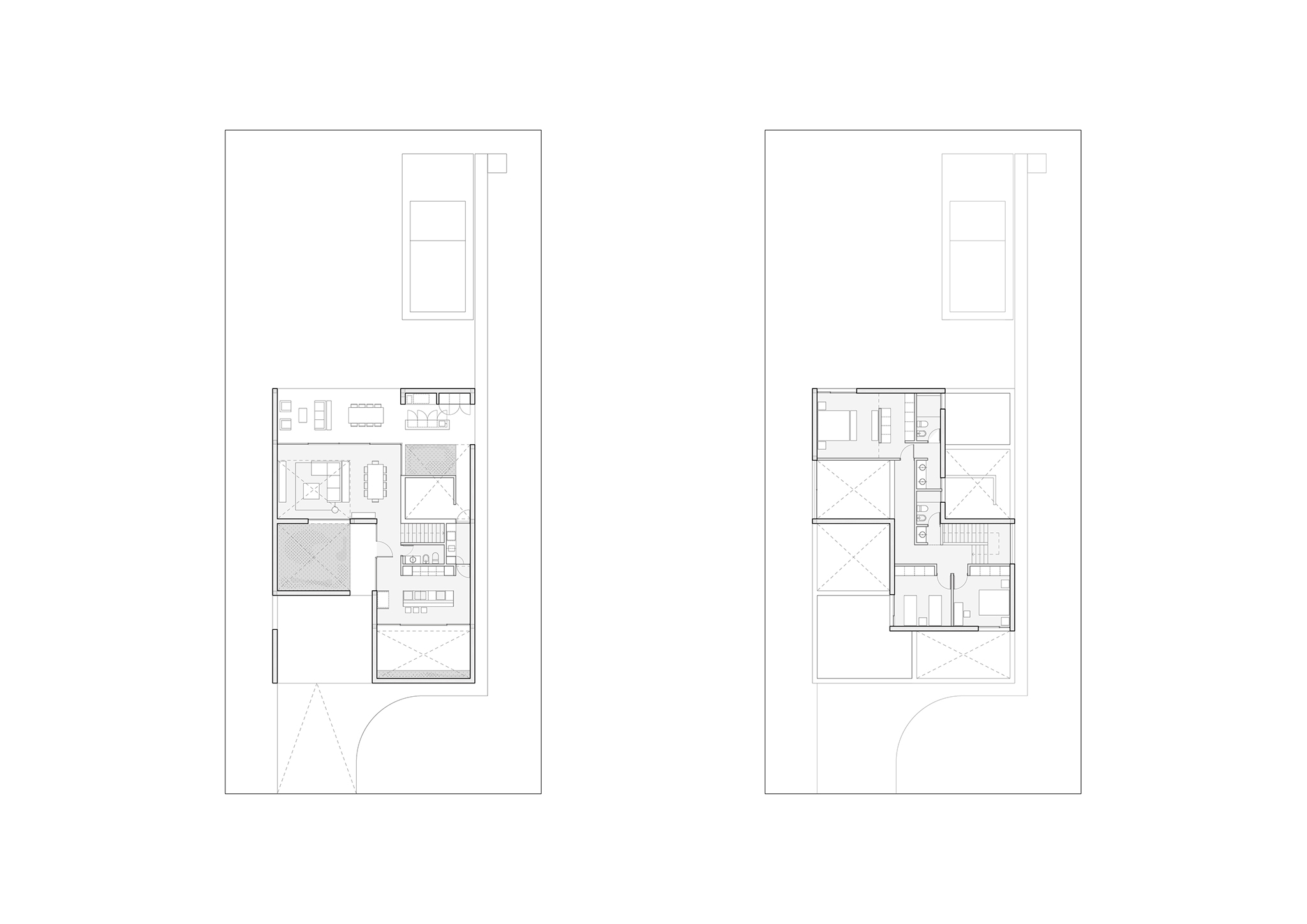
As a first step, the team at BBOA – Balparda Brunel Oficina de Arquitectura determined the different types of residents and family compositions that could potentially inhabit the project. Having defined the profile of the potential family group, they proposed a 285 m² house comfortably organized on two floors.
Formally, the project is summarized as a delicate and compact white volume that, for the most part, closes off from the exterior. Inside, a sequence of patios allows the living spaces to visually expand beyond their boundaries. In this way, the interiors acquire a close relationship with the exterior.
The limited distance between plots proved crucial in addressing the privacy needs of the future residents: through a deliberate volumetric subtraction, the project manages to distance itself from the neighboring buildings.

Vida U119 House by BBOA. Photograph by Ramiro Sosa.
Project description by BBOA - Balparda Brunel Oficina de Arquitectura
Since the 1990s, Argentina has promoted a residential model with protected lots, known as "private neighborhoods," to address security issues. This phenomenon grew without adequate regulation, resulting in critical urban development with walled-off sections, generating residual spaces around them.
This project focuses on developing a single-family home in a gated community in the northwest area of Rosario, Argentina. The neighborhood has lots of 800 m² each. The challenge is to design a house to be marketed by the developer without knowing the future residents.
The project began with an analysis to determine the types of families who might live in the house, their requirements, the area necessary to ensure the development's profitability, and the ratio between built and open space permitted by the lot.
Once the profile of the potential family group was defined, the foundations were established for a 285 m² house on two levels, with a precise plan of uses and living spaces. When designing the house, challenges arose due to the narrow distances between plots. Although there is a non-buildable area between plots that guarantees detached houses, these open spaces are mostly passageways. This situation raises questions about the true 'private' nature of the lots and the ways of living on them.
The project seeks a house that maintains a distance from adjacent buildings on the sides open to the exterior and that closes off on the sides near the property lines to improve interior privacy. Volumetric subtraction operations were carried out to verify distances to the property lines and to consider orientations for each interior space, in addition to semi-covered areas for parking and a gallery.
Three interior courtyards were incorporated into the social floor plan, extending the interior space into more private areas and creating a greater sense of spaciousness on the ground floor. These courtyards become virtual extensions of the interior, with visual boundaries that extend beyond the glass, providing a healthy filter for life within the collective complex.
The house's morphological appearance is that of a completely self-contained structure. However, this perception changes radically from the inside, where the rooms acquire a direct relationship with the exterior space through the new setbacks and, fundamentally, through the courtyards.